Vand vila P 1 in Ghimbav la aproximativ 10 minute de Brasov Tamplarie montata urmand realizarea fatadei si instalarea incalzirii in pardoseala cu o suprafata de 140 mp construiti si teren de 240 mp Compartimentare Parter living cu ferestre tip wintergarden bucatarie open space baie camera tehnica si o camera ce poate fi folosita ca birou sau dormitor Etaj doua dormitoare fiecare cu dressing si baie proprie balcon si hol cu dressing Utilitati Apa curent gaze si canalizare Imobilul se vinde la gata finalizata zugravita dispune de toate utilitatile direct de la proprietar fara comision Id intern P195412
⚠ AtenÈ›ie !
Nu plăti niciodată în avans într-un cont bancar până când nu l-ai întâlnit pe vânzător și ați semnat un acord.
Nu furniza informații confidențiale în discuții pe WhatsApp/Telegram sau alte aplicații de mesagerie unde utilizatorii își ascund ușor identitatea, deoarece te poți expune la fraude sau înșelăciuni.
Nu furniza niciodată detaliile cardului tău bancar (număr, data expirării, CVV). Te expune direct la fraude bancare.
Primirea unui mesaj pe WhatsApp/Telegram cu un ID scanat nu înseamnă că ai identificat cumpărătorul. Acest lucru se face pe loc, când semnați un acord de cumpărare.
Când comanzi online, alege livrarea cu verificare. Pentru un cost relativ mic, te protejezi de eventuale neplăceri.
Gratuit - proiect amenajare interioara in valoare de 4000euro Suprafata generoasa 140 mp construiti cu compartimentare optimizata pentru confortul tau Compartimentare inteligenta Parter camera multifunctionala birou/dormitor living luminos bucatarie open-space cu dining baie spatiu de depozitare si terasa Etaj 2 dormitoare spatioase cu bai fiecare si cu dressinguri si balcon hol cu dressing Dotari premium Finisaje moderne si elegante Utilitati complete apa gaz electricitate si canalizare Izolatie termica eficienta pentru consum redus de energie De ce Ghimbav Proximitate excelenta la doar cateva minute de Brasov Facilitati moderne scoli gradinite centre comerciale spa si sala de fitness in apropiere Mediu sanatos aer curat spatii verzi si o comunitate linistita De ce Ansamblul Mountain House Ghimbav Pentru ca iti ofera un camin modern intr-o zona in expansiune care combina linistea cu accesul rapid la facilitati urba...
apartament cu o camera la casa central in codlea este un apartament cu o camera central in codlea la curte intro casa saseasca cu curte are toate utilitatile si este mobilata minimal are bucatarie baie hol si dormitor casa de caramida la parter cu centrala de imobil pt curent contorizare separata se doreste chirie pe termen lung se mai poate negocia in functie de situatie Id intern P205501
Vand vila P 1 in Ghimbav la aproximativ 10 minute de Brasov Tamplarie montata urmand realizarea fatadei si instalarea incalzirii in pardoseala cu o suprafata de 140 mp construiti 106 mp utili si teren de 240 mp Compartimentare Parter living cu ferestre tip wintergarden bucatarie open space baie camera tehnica si o camera ce poate fi folosita ca birou sau dormitor Etaj doua dormitoare fiecare cu dressing si baie proprie balcon si hol cu dressing Utilitati Apa curent gaze si canalizare Imobilul se vinde la gri dispune de toate utilitatile direct de la proprietar fara comision Id intern P195412
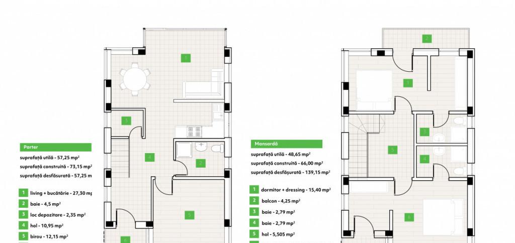
Bine ati venit la Mountain House by Premont un ansamblu exclusivist de doar 5 vile moderne situat pe Strada Narcisei 26 Ghimbav la doar 7 minute de Brasov Aceasta vila la gri este perfecta pentru cei care vor sa-si personalizeze casa de vis beneficiind de un pret atractiv si o locatie premium aproape de aeroportul Brasov-Ghimbav si de centrul orasului Detalii vila o Suprafata construita 140 mp o Suprafata utila 106 mp o Teren propriu aprox 240 mp front 12 ml la aleea privata o Configuratie Parter mansarda o Parter Living spatios tip wintergarden bucatarie open-space baie spatiu tehnic o Mansarda 3 dormitoare 2 bai dressinguri o Stadiu la gri o Tencuieli interioare si exterioare finalizate o Instalatii interioare functionale apa gaz electricitate canalizare o Termosistem fatada realizat izolatie termica premium 10 cm o De realizat in regie proprie gresie faianta parchet obiecte sanitare usi interioare amenajare exterioara t...
Cauti casa perfecta Descopera Mountain House din Ghimbav - locul ideal unde confortul modern se imbina armonios cu natura aerul curat si peisajele deosebite Situat intr-o zona in continua dezvoltare Ghimbav iti ofera un mediu sigur si linistit dar cu acces rapid la facilitatile Brasovului Ce iti oferim Suprafata generoasa 140 mp construiti cu compartimentare optimizata pentru confortul tau Compartimentare inteligenta Parter camera multifunctionala birou/dormitor living luminos bucatarie open-space cu dining baie spatiu de depozitare si terasa Etaj 2 dormitoare spatioase cu dressinguri hol cu dressing baie si balcon cu priveliste Dotari premium Finisaje moderne si elegante Utilitati complete apa gaz electricitate si canalizare Izolatie termica eficienta pentru consum redus de energie De ce Ghimbav Proximitate excelenta la doar cateva minute de Brasov Facilitati moderne scoli gradinite centre comerciale spa si sala de fit...
Daca visezi la o casa generoasa cu un design elegant si spatii perfect compartimentate aceasta vila individuala este alegerea ideala Situata pe un teren de 430 mp construita din materiale premium cu finisaje de calitate si complet mobilata locuinta este pregatita sa devina acasa pentru tine si familia ta De ce sa alegi aceasta vila Regim de inaltime S P 1 - spatiu din belsug pentru confort maxim Structura solida - beton caramida Porotherm durabilitate pe termen lung Tamplarie PVC cu tripan - izolare termica si fonica superioara Centrala proprie pe gaz calorifere - eficienta energetica si caldura uniforma Partial mobilata si utilata - te poti muta imediat fara griji Curte spatioasa - loc de relaxare si timp petrecut alaturi de cei dragi Compartimentare inteligenta Corp A Subsol pivnita casa scarii Parter birou bucatarie living baie hol vestibul Etaj 3 dormitoare baie balcon terasa Corp B hol vestibul camera bucatarie ...
situata langa lac si padure Vila P 1 individuala cu teren in suprafata de 500 mp cu deschidere de 20 m amprenta casei 116 mp suprafata construita 218 mp podul casei in suprafata de 30 mp este amenajat ca mansarda casa contruita in anul 2011 cu caramida Porotherm izolata cu polistiren de 10 cm acoperita cu tigla metalica Bel Profile toata tamplaria este QFort cu geam tripan curte libera amenajata 384 mp bransament la electricitate / trifazic la reteaua de gaze si dispune de fosa septica betonata cu volum 22 mc casa se vinde mobilata si utilata complet este situata intr-o zona deosebita si foarte linistita cu acces rapid din autostrada Soarelui A2 toate actele necesare vanzarii casa este libera se accepta credit discutabil
Ama Trust Imob va ofera spre vanzare o proprietate cu potential deosebit in Domnesti intr-o zona linistita ideala pentru o viata confortabila aproape de natura dar si de oras Detalii proprietate Teren generos de 1 020 mp - perfect pentru constructia a doua locuinte individuale cu suficient spatiu pentru curte gradina sau foisor Casa batraneasca pe teren - necesita renovare completa sau poate fi demolata in functie de proiectul dorit de noul proprietar Utilitati disponibile la poarta apa gaze canalizare - racordarea se face usor fara complicatii Acces rapid catre Bucuresti - doar 7-10 minute de mers cu masina pana la Centura Capitalei Zona linistita aer curat ideala pentru familii - in apropiere se afla si un mic parculet pentru copii perfect pentru joaca si relaxare Facilitati in apropiere Magazine Mega Image Lidl - pentru cumparaturi zilnice Educatie scoli si gradinite - asigurand acces facil la educatie pentru copii Lacasu...
Artemis Imobiliare va ofera spre vanzare o casa cu 4 camere in zona Iris Compartimentarea este semidecomandara suprafata utila este de 140 mp se prezinta astfel Living cu bucatarie 3 dormitoare 2 bai spatiu de depozitare Casa dispune de o curte de o suprafata de 200 mp cu posibilitate de a parca in curte Pentru mai multe informatii sau daca doriti o vizionare nu ezitati sa ne contactati Id P107360 Id intern P107360
Casa inteligenta tip duplex de vanzare cu o suprafata utila de 165 mp amplasata pe o parcela de 467 mp de teren pe o strada linistita in zona Tiglari Sibiu Casa are un regim de inaltime D P M si este compusa din 5 camere decomandate din care 3 sunt dormitoare 1 bucatarie 2 bai debara camara pivnita si garaj in curte Casa a fost construita in anul 1975 pe structura de caramida si fundatie de piatra si a fost renovata complet in anul 2022 Compartimentarea proprietatii este astfel La demisol nbsp este 1 camera 13 9 mp spatiu tehnic 1 baie un hol si o pivnita de 14 7 mp La parter nbsp se afla o bucatarie inchisa 13 6 mp 1 dormitor 14 8 mp 1 living 19 3 mp 1 baie dressing si hol La mansarda este 1 dormitor 19 7 mp 1 living 21 2 mp cu acces in terasa de 14 7 mp casa scarii si pod pentru depozitare Aceasta proprietate este o casa inteligenta pentru iluminatul interior si exterior are invertor 8 kw Este folosit frecvent la transformarea curentului...
Sibiu - 14 Iulie 2025
270.000 €
Atenție
Din motive de securitate și pentru protecția utilizatorilor, această funcționalitate nu este disponibilă pentru locația ta.