apartament cu o camera la casa central in codlea este un apartament cu o camera central in codlea la curte intro casa saseasca cu curte are toate utilitatile si este mobilata minimal are bucatarie baie hol si dormitor casa de caramida la parter cu centrala de imobil pt curent contorizare separata se doreste chirie pe termen lung se mai poate negocia in functie de situatie Id intern P205501
⚠ AtenÈ›ie !
Nu plăti niciodată în avans într-un cont bancar până când nu l-ai întâlnit pe vânzător și ați semnat un acord.
Nu furniza informații confidențiale în discuții pe WhatsApp/Telegram sau alte aplicații de mesagerie unde utilizatorii își ascund ușor identitatea, deoarece te poți expune la fraude sau înșelăciuni.
Nu furniza niciodată detaliile cardului tău bancar (număr, data expirării, CVV). Te expune direct la fraude bancare.
Primirea unui mesaj pe WhatsApp/Telegram cu un ID scanat nu înseamnă că ai identificat cumpărătorul. Acest lucru se face pe loc, când semnați un acord de cumpărare.
Când comanzi online, alege livrarea cu verificare. Pentru un cost relativ mic, te protejezi de eventuale neplăceri.
Gratuit - proiect amenajare interioara in valoare de 4000euro Suprafata generoasa 140 mp construiti cu compartimentare optimizata pentru confortul tau Compartimentare inteligenta Parter camera multifunctionala birou/dormitor living luminos bucatarie open-space cu dining baie spatiu de depozitare si terasa Etaj 2 dormitoare spatioase cu bai fiecare si cu dressinguri si balcon hol cu dressing Dotari premium Finisaje moderne si elegante Utilitati complete apa gaz electricitate si canalizare Izolatie termica eficienta pentru consum redus de energie De ce Ghimbav Proximitate excelenta la doar cateva minute de Brasov Facilitati moderne scoli gradinite centre comerciale spa si sala de fitness in apropiere Mediu sanatos aer curat spatii verzi si o comunitate linistita De ce Ansamblul Mountain House Ghimbav Pentru ca iti ofera un camin modern intr-o zona in expansiune care combina linistea cu accesul rapid la facilitati urba...
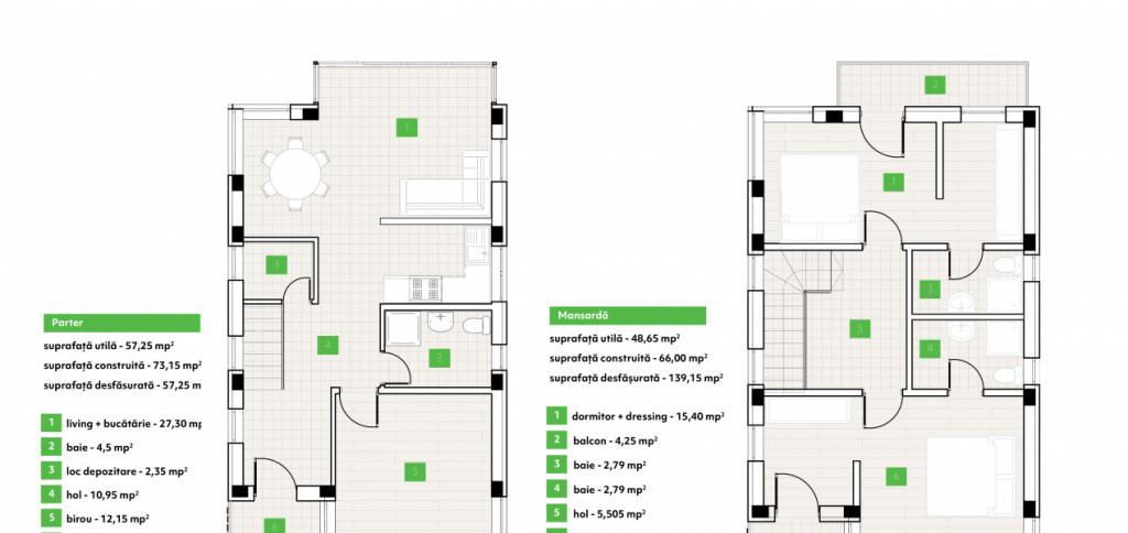
Vand vila P 1 in Ghimbav la aproximativ 10 minute de Brasov Tamplarie montata urmand realizarea fatadei si instalarea incalzirii in pardoseala cu o suprafata de 140 mp construiti si teren de 240 mp Compartimentare Parter living cu ferestre tip wintergarden bucatarie open space baie camera tehnica si o camera ce poate fi folosita ca birou sau dormitor Etaj doua dormitoare fiecare cu dressing si baie proprie balcon si hol cu dressing Utilitati Apa curent gaze si canalizare Imobilul se vinde la gata finalizata zugravita dispune de toate utilitatile direct de la proprietar fara comision Id intern P195412
Vand vila P 1 in Ghimbav la aproximativ 10 minute de Brasov Tamplarie montata urmand realizarea fatadei si instalarea incalzirii in pardoseala cu o suprafata de 140 mp construiti 106 mp utili si teren de 240 mp Compartimentare Parter living cu ferestre tip wintergarden bucatarie open space baie camera tehnica si o camera ce poate fi folosita ca birou sau dormitor Etaj doua dormitoare fiecare cu dressing si baie proprie balcon si hol cu dressing Utilitati Apa curent gaze si canalizare Imobilul se vinde la gri dispune de toate utilitatile direct de la proprietar fara comision Id intern P195412
Bine ati venit la Mountain House by Premont un ansamblu exclusivist de doar 5 vile moderne situat pe Strada Narcisei 26 Ghimbav la doar 7 minute de Brasov Aceasta vila la gri este perfecta pentru cei care vor sa-si personalizeze casa de vis beneficiind de un pret atractiv si o locatie premium aproape de aeroportul Brasov-Ghimbav si de centrul orasului Detalii vila o Suprafata construita 140 mp o Suprafata utila 106 mp o Teren propriu aprox 240 mp front 12 ml la aleea privata o Configuratie Parter mansarda o Parter Living spatios tip wintergarden bucatarie open-space baie spatiu tehnic o Mansarda 3 dormitoare 2 bai dressinguri o Stadiu la gri o Tencuieli interioare si exterioare finalizate o Instalatii interioare functionale apa gaz electricitate canalizare o Termosistem fatada realizat izolatie termica premium 10 cm o De realizat in regie proprie gresie faianta parchet obiecte sanitare usi interioare amenajare exterioara t...
Cauti casa perfecta Descopera Mountain House din Ghimbav - locul ideal unde confortul modern se imbina armonios cu natura aerul curat si peisajele deosebite Situat intr-o zona in continua dezvoltare Ghimbav iti ofera un mediu sigur si linistit dar cu acces rapid la facilitatile Brasovului Ce iti oferim Suprafata generoasa 140 mp construiti cu compartimentare optimizata pentru confortul tau Compartimentare inteligenta Parter camera multifunctionala birou/dormitor living luminos bucatarie open-space cu dining baie spatiu de depozitare si terasa Etaj 2 dormitoare spatioase cu dressinguri hol cu dressing baie si balcon cu priveliste Dotari premium Finisaje moderne si elegante Utilitati complete apa gaz electricitate si canalizare Izolatie termica eficienta pentru consum redus de energie De ce Ghimbav Proximitate excelenta la doar cateva minute de Brasov Facilitati moderne scoli gradinite centre comerciale spa si sala de fit...
Art Imobiliare va prezinta un apartament superb de 2 camere situat in zona o locatie apreciata pentru acces rapid la mijloace de transport apropiere de parcuri centre comerciale Proprietatea beneficiaza de dotari si facilitati precum centrala proprie aer conditionat parcare balcon finisaje moderne fiind pregatita pentru mutare imediata Ideal pentru un cuplu sau o familie care cauta confort si liniste intr-o zona selecta a orasului Pret chirie 750 EUR/luna Pentru mai multe detalii sau pentru a programa o vizionare va rugam sa ne contactati Cod oferta 2755119
imediat piata Minis 2 camere decomandate 55mp parter curat luminos dispune de aer conditionat termopane usa metalica gresie faianta parchet mobilat tineresc utilat cu aragaz frigider masina de spalat liber disponibil imediat pentru mutare plata anticipat 1 1
Se ofera spre inchiriere un apartament cu 2 camere semidecomandate situat in cartierul Manastur str Mehedinti nr 42-44 la etajul 7 al unui imobil cu 10 etaje Apartamentul este compus din dormitor baie si un living deschis cu buicataria Locuinta se inchiriaza mobilata si utilata cum se vede in fotografii cu TV smartm frigider masina de spalat rufe aragaz masina de spalat vase aer conditionat cuptor cuptor cu microunde aspirator centrala termica proprie fiind ideala pentru un cuplu sau o persoana singura Apartamentul este finisat mobilat si utilat modern zona este linistita si foarte accesibila cu spatii verzi este la 4 minute de statie in apropiere regasindu-se magazine scoli gradinite parcuri de joaca pentru copii baza sportiva La terenuri Big iar accesul cu mijloacele de transport se face usor atat spre Centru cat si spre punctele importante ale orasului Locuinta nu dispune de parcare si nu este pet friendly Ocupabil imediat Pentru ...
Va propunem spre inchiriere un apartament superb cu 2 camere pe strada Drumul Dealul Babii 26-30 Apartamentul se afla la parter inalt intr-un bloc cu 7 etaje in Complexul Cavar Residence Imobilul este mobilat si utilat modern cu electrocasnice de inalta calitate plus un TV cu diagonala de 139cm Toate elementele au fost alese cu grija pentru a va oferi confortul necesar unei sederi cat mai placute Complexul este monitorizat cu supraveghere video bariera pentru acces iar imobilul dispune si de loc de parcare Pentru mai multe detalii nu ezitati sa ne contactati Comision 0
București - 4 August 2025
550 €
Atenție
Din motive de securitate și pentru protecția utilizatorilor, această funcționalitate nu este disponibilă pentru locația ta.