Vand vila construita in regie proprie individuala dispusa pe parter etaj si pod mansardat situata la 5-7min de mers pe jos pana la statia de metrou Ap Patriei avand dubla deschidere cu posibilitatea parcarii a 5 masini 2 in curte si 3 pe zona de proprietate
Se vinde fie mobilata si utilata cel putin cum se vede in fotografii fie goala dupa cum se doreste
Arata exact ca in fotografii este certificata energetic casa A
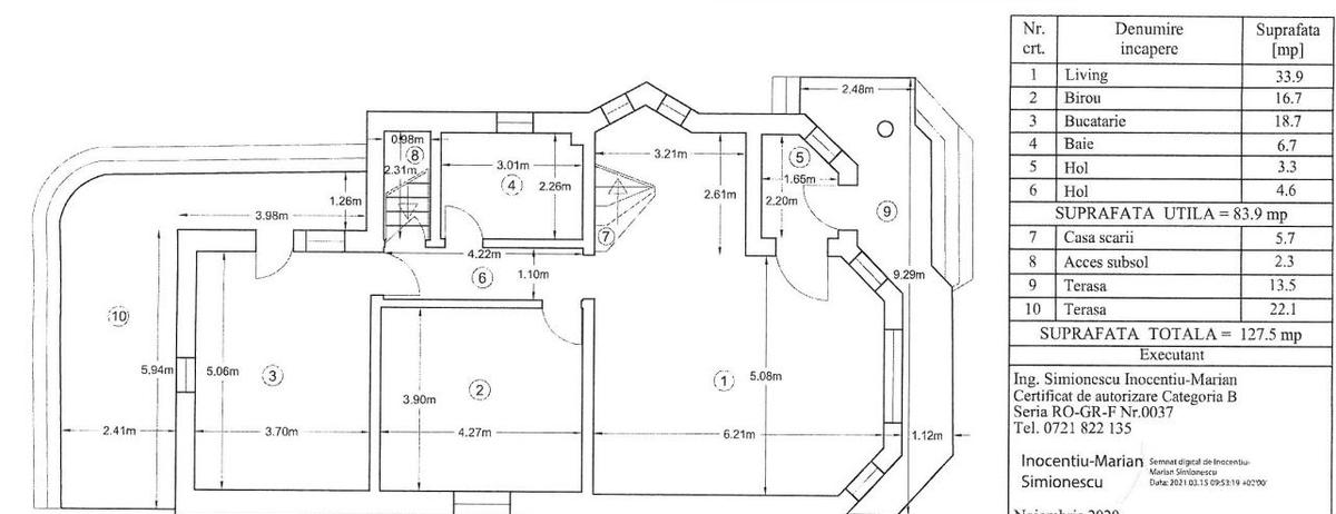
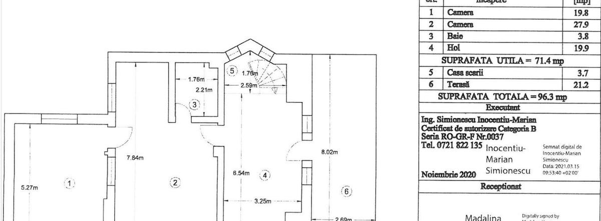
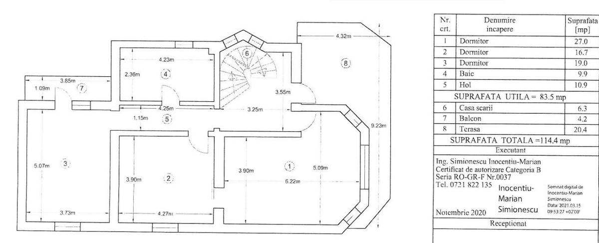
Va rog sa regasiti in informatiile atasate fotografiile si releveul corespunzator pe fiecare nivel in parte
Mai multe detalii pentru potentialii clienti interesati de achizitie in mod real la tel 0720002332
Toate actele sunt pregatite pentru vanzare
Dispune atat de loc de joaca amenajat deasupra piscinei exterioare pentru copii cat si de piscina
Beneficiaza atat de toate utilitatile publice apa energie electrica gaz internet-cablu TV cat si de put propriu cu hidrofor pentru alimentarea cu apa a piscinei si intretinerea spatiului verde
⚠ AtenÈ›ie !
Nu plăti niciodată în avans într-un cont bancar până când nu l-ai întâlnit pe vânzător și ați semnat un acord.
Nu furniza informații confidențiale în discuții pe WhatsApp/Telegram sau alte aplicații de mesagerie unde utilizatorii își ascund ușor identitatea, deoarece te poți expune la fraude sau înșelăciuni.
Nu furniza niciodată detaliile cardului tău bancar (număr, data expirării, CVV). Te expune direct la fraude bancare.
Primirea unui mesaj pe WhatsApp/Telegram cu un ID scanat nu înseamnă că ai identificat cumpărătorul. Acest lucru se face pe loc, când semnați un acord de cumpărare.
Când comanzi online, alege livrarea cu verificare. Pentru un cost relativ mic, te protejezi de eventuale neplăceri.
Dezvoltator/Comision 0 Achizitie cash/credit Info/vizionari - tel 0720002332 Pretul afisat este valabil pentru plata integrala 99 la antecontract si include TVA de 9 Pentru plata a 50 din pret la antecontract pretul apartamentului este de 139900euro Amplasarea proiectului este pe Bvd N Grigorescu in apropierea statiei de autobuz 243 cam la jumatatea distantei dintre metroul N Grigorescu drumul european E81 si Splaiul Unirii raul Dambovita Fiecare apartament dispune de centrala termica proprie pe gaz Ariston incalzire in pardoseala si tamplarie termopan cu geam tripan Apartament compus din 2 camere si dependinte tip studio living deschis cu bucataria daca se doreste se poate inchide oferind spatii generoase pe fiecare zona ce defineste compartimentarea acestuia Orientarea apartamentului este pe S-E Balconul este mai mult decat generos si permite accesul din fiecare camera in parte Proiect cu regim mic de inaltime P 4 cu lift situat in zona ...
Direct dezvoltator Comision 0 Consultanta si asistenta pe toata durata procesului de achizitie fara costuri Pentru vizionari si detalii 0720002332 Important 1 Fotografiile sunt doar de prezentare dintr-un alt ansamblu finalizat de dezvoltator si vandut integral situat in aceeasi zona si nu corespund compartimentarilor prezentate in schite proiectele in sine fiind diferite 2 Pretul afisat este pentru plata cash 95 la antecontract si include TVA-ul de 21 3 Pretul pentru credit este de 118580euro TVA 21 inclus 4 Amplasarea ansamblului ofera toate facilitatile zonei din proximitatea Mall Grand Arena Apartament compus din 2 camere si dependinte generos decomandat cu predare la cheie g f p obiecte sanitare centrala termica proprie incalzire prin pardoseala contorizare individuala pentru utilitati apa energie electrica gaze internet fibra optica si cabluTV Pretul locurilor de parcare este 8 000 euro TVA loc parcare exterior / 10 000 ...
Direct dezvoltator Comision 0 Consultanta si asistenta pe toata durata procesului de achizitie fara costuri Pentru vizionari si detalii 0720002332 Important 1 Fotografiile sunt doar de prezentare dintr-un alt ansamblu finalizat de dezvoltator si vandut integral situat in aceeasi zona si nu corespund compartimentarilor prezentate in schite proiectele in sine fiind diferite 2 Pretul afisat este pentru plata cash 95 la antecontract si include TVA-ul de 21 3 Pretul pentru credit este de 121605euro TVA 21 inclus 5 Amplasarea ansamblului ofera toate facilitatile zonei din proximitatea Mall Grand Arena Apartament compus din 3 camere si dependinte decomandat cu predare la cheie g f p obiecte sanitare centrala termica proprie incalzire prin pardoseala contorizare individuala pentru utilitati apa energie electrica gaze internet fibra optica si cabluTV Pretul locurilor de parcare este 8 000 euro TVA loc parcare exterior / 10 000 euro ...
Direct dezvoltator Comision 0 Consultanta si asistenta pe toata durata procesului de achizitie fara costuri Pentru vizionari si detalii 0720002332 Important 1 Fotografiile sunt doar de prezentare dintr-un alt ansamblu finalizat de dezvoltator si vandut integral situat in aceeasi zona si nu corespund compartimentarilor prezentate in schite proiectele in sine fiind diferite 2 Pretul afisat este pentru plata cash 95 la antecontract si include TVA-ul de 21 3 Pretul pentru credit este de 116765euro TVA 21 inclus 4 Amplasarea ansamblului ofera toate facilitatile zonei din proximitatea Mall Grand Arena Apartament compus din 2 camere si dependinte generos decomandat cu predare la cheie g f p obiecte sanitare centrala termica proprie incalzire prin pardoseala contorizare individuala pentru utilitati apa energie electrica gaze internet fibra optica si cabluTV Pretul locurilor de parcare este 8 000 euro TVA loc parcare exterior / 10 000 e...
Direct dezvoltator Comision 0 Consultanta si asistenta pe toata durata procesului de achizitie fara costuri Pentru vizionari si detalii 0720002332 Important 1 Cele 5 tipuri de schite doua dintre ele sunt identice - dar in oglinda corespund acelorasi preturi de vanzare mentionate in acest anunt de promovare apartamentele corespunzatoare avand suprafete utile cuprinse intre 50 5 - 53 5 mp la care se adauga balcoane avand suprafete cuprinse intre 4 2 - 7 mp ajungand la o suprafata totala cuprinsa intre 56 5 - 57 7 mp 2 Fotografiile sunt doar de prezentare dintr-un alt ansamblu finalizat de dezvoltator si vandut integral situat in aceeasi zona si nu corespund compartimentarilor prezentate in schite proiectele in sine fiind diferite 3 Pretul afisat este pentru plata cash 95 la antecontract si include TVA-ul de 21 4 Pretul pentru credit este de 99825euro TVA 21 inclus 5 Amplasarea ansamblului ofera toate facilitatile zonei din proximitatea ...
Duplex cu 300 mp de Teren intimitate si confort la Doar Cateva Minute de Oras Caracteristici Cheie 2 Dormitoare Spatioase 2 Bai Bucatarie semideschisa cu livingul Gradina Privata de 300 mp Poarta mare pentru acces masina Pe un teren de 300 mp complet imprejmuit cu gard aveti posibilitatea de a crea propria oaza de relaxare Organizati gratare in aer liber amenajati un colt de joaca pentru copii sau creati un spatiu placut sub cerul liber Langa Oras dar in Armonie cu Natura Pozitionat la doar cateva minute de centrul orasului acest duplex va ofera avantajul unei vieti urbane vibrante fara a sacrifica linistea si frumusetea naturii Materiale de calitate Tabla Lindab caramida Soceram geamuri Salamander cu 3 randuri de geamuri anvelopata izolatie etaj cu vata bazaltica incalzire in pardoseala centrala gaz metan gard Parcare Privata Parcati cu usurinta in propria parcare privata asigurandu-va ca intotdeauna aveti acces facil...
Beneficiaza de aceasta oferta exceptionala acum Va oferim spre vanzare casa duplex cu 4 camere bucatarie 2 bai in localitatea GILAU zona centrala Casa are suprafata utila de 100 mp cu un teren de 250 mp Casa este dispusa pe nivele astfel parter-camera de zi bucatarie separat dormitor baie acces in curte etaj 1-3 dormitoare baie hol acces in pod Duplexul este situat aproape de mijloacele de transport in zona linistita in zona cu spatiu verde Imobilul este construit din caramida acoperis de tigla fundatie de beton izolatie exterioara Casa mai are si alte dotari precum centrala proprie ferestre de termopan usa din pvc gradina acces auto in curte frigider aragaz Daca va place aceasta oferta sau pentru alte oferte nu ezitati sa ne contactati telefonic sau la sediul nostru EDIL Floresti Str Eroilor Nr 25 Ap 15 et 1 Floresti CACJ246431
Casa de Vanzare situata in zona centrala mai exact pe str Fetitelor Nr 12 intre Hala Traian si Piata Sf Stefan pozitia zonala a imobilului ofera posibilitatea cu acces rapid la transport centre comerciale si zone de interes Descriere imobil 1 Parter Living 1 Camera 1 Bucatarie Grup sanitar Hol Suprafata Utila 70 mp 2 Mansarda Living 2 camere Grup sanitar Hol Terasa Suprafata Utila 76 mp Casa Parter Mansarda compusa din 5 camere cu o suprafata de 146 mp dispune 3 Boxe Terasa Garaj cu o suprafata de 58 mp in total 204 mp construitii Casa este construita in anul 1925 din caramida fundatia si structura a fost reconsolidata si mansardata in An 2000 structura mansardei este din lemn pardoseli din lemn masiv instalatia electrica si sanitara refacuta incalzirea se face cu Centrala pe gaz cu calorifere schimbate in 2021 geamuri termopan usile exterioare sunt din lemn masiv dispune de 2 intrari separate In an 2024 a fost renovata integral ...
Detalii RELEVANTE oferta - 1/2 duplex in Mosnita Veche cu regim de inaltime Parter Mansarda cu finalizare in Iulie 2025 - suprafata utila de 94 65mp plus terasa de 9 14 mp - teren de 309 mp - detalii constructive ziduri exterioare si interioare din caramida porotherm termoizolata exterior acoperis de tigla Compartimentare - parter hol acces bucatarie baie camera de zi dormitor terasa - etaj 2 dormitoare baie balcon - detalii AMENAJARE interioara parchet laminat gresie faianta ferestre cu tamplarie PVC si geam tripan usa PVC la intrare usi interioare noi vopsea lavabila corpuri sanitare noi - SE POT ALEGE DE CATRE CUMPARATOR INTR-UN BUGET PRESTABILIT TOATE FINISAJELE - CENTRALA termica PROPRIE 24 KW si incalzire in pardoseala Terasa este spatioasa si cu acoperis din tigla - dispune de toate utilitatile apa gaz curent iar canalizarea este asigurata printr-o fosa septica Dispune de acces auto asfaltat drumul fiind p...
Comision cumparator 0 ASCENDENT IMOBILIARE are deosebita placere sa va prezinte o proprietate unica situata pe strada Voican in municipiul Sfantu Gheorghe judetul Covasna ndash un adevarat colt de liniste si rafinament Aceasta casa cocheta cu o suprafata utila de 108 mp si un teren generos de 333 mp imbina armonios confortul modern cu atmosfera calda a unui camin primitor Inca de la intrare proprietatea te imbie sa o descoperi pas cu pas intr-un cadru intim si bine gandit Diminetile pot incepe cu o cafea savurata in foisorul din curte sau pe terasa insorita in timp ce te bucuri de aerul curat si parfumul florilor din gradina proprie Casa este mobilata cu gust in stil mediteranean si este dotata complet pentru a oferi un nivel ridicat de confort in orice anotimp Izolatia exterioara 18 cm polistiren contribuie la mentinerea unei temperaturi placute reducand considerabil costurile energetice Utilitati complete Incalzire centrala Apa din sursa p...
Covasna - 2 Decembrie 2025
198.000 €
Atenție
Din motive de securitate și pentru protecția utilizatorilor, această funcționalitate nu este disponibilă pentru locația ta.