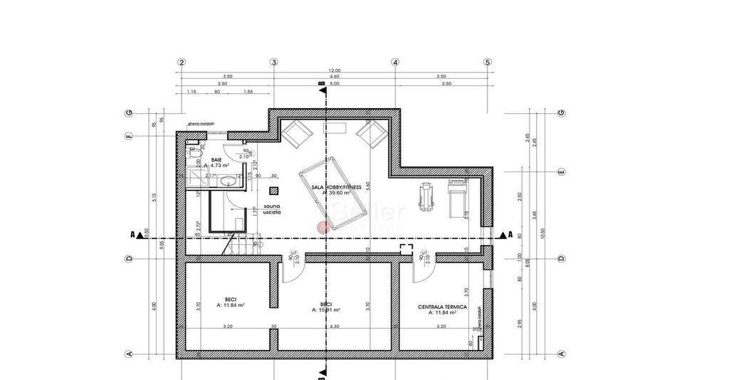
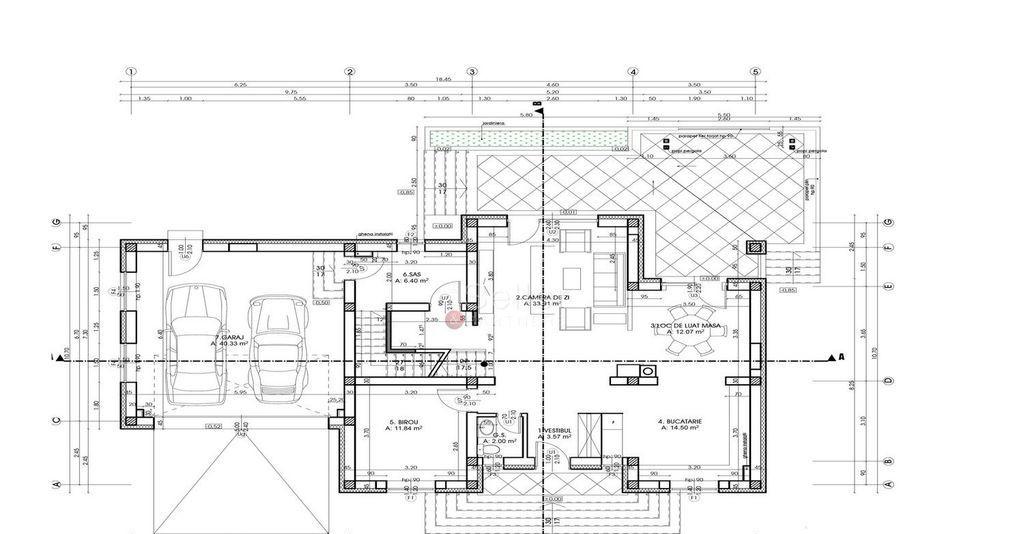
Ati accesat un imobil situat in Ghimbav intr-o zona linistita de case aproape de centrul orasului DATE TEHNICE Proprietatea este dispusa pe D P 1 fiind compartimentata astfel DEMISOL Acesta este compus din zona media sala sport cu sauna baie zona tehnica si pivnita PARTER Dispus pe living bucatarie si zona de dinning birou baie garaj si hol acesta are acces la terasa care este insorita si dispune de o jardiniera built-in ideala pentru plantarea de arbusti sau plante ETAJ Acest nivel este alocat zonei de noapte aici existand 4 dormitoare fiecare cu baie proprie trei dintre ele avand si dressing de 9mp si doua balcoane Proprietatea dispune de un teren in suprafata de 755 mp cu o amprenta a cladirii de 158 mp Suprafata utila a casei este de 340 mp FINISAJE Imobilul se tranzactioneaza in varianta prezentata fara finisaje DOTARI Proprietatea detine - garaj 2 masini - 2 centrale termice - incalzire in pardoseala - camere de supraveghere si sistem de alarma - geamuri tripan - usa intrare cu amprenta digitala si wifi AVANTAJE - zona centrala - casa este racordata la toate utilitatile IMPREJURIMI Proprietatea este situata intr-o zona de vile cocheta accesul fiind unul facil OBSERVATII Zona rezidentiala de interes ridicat Nota Structura acestei prezentari si informatiile mai sus detaliate nu pot fi preluate fara acordul scris al The Seller Partners
⚠ AtenÈ›ie !
Nu plăti niciodată în avans într-un cont bancar până când nu l-ai întâlnit pe vânzător și ați semnat un acord.
Nu furniza informații confidențiale în discuții pe WhatsApp/Telegram sau alte aplicații de mesagerie unde utilizatorii își ascund ușor identitatea, deoarece te poți expune la fraude sau înșelăciuni.
Nu furniza niciodată detaliile cardului tău bancar (număr, data expirării, CVV). Te expune direct la fraude bancare.
Primirea unui mesaj pe WhatsApp/Telegram cu un ID scanat nu înseamnă că ai identificat cumpărătorul. Acest lucru se face pe loc, când semnați un acord de cumpărare.
Când comanzi online, alege livrarea cu verificare. Pentru un cost relativ mic, te protejezi de eventuale neplăceri.
Situat la etajul al 6-lea al unui imobil de lux din vecinatatea mall-ului Coresi si avand o superba terasa de 38 mp acest penthouse ofera o priveliste frumoasa atat spre Masivele Piatra Mare Bucegi si Tampa cat si a intregului oras Brasov LOCALIZARE Imobilul este situat in carierul Tractorul fiind pozitionat in imediata apropiere a zonei comerciale Coresi a Parcului Tractorul si a Patinoarului Olimpic in zona regasindu-se gradinite scoli licee si centre de invatamant universitar spitale si clinici private sali de fitness Gara Brasov si Piata Agroalimentara Tractorul precum si supermarket-urile Auchan Lidl Profi si Penny DATE TEHNICE Proprietatea este dispusa pe 4 camere si este in curs de mobilare dupa cum urmeaza - Holul de acces dotat cu spatii multifunctionale pentru depozitare perfect integrate - Living-ul detine o suprafata vitrata mare ofera o deschidere ampla catre terasei - Bucataria tip open-space este utilata cu electrocasnicele precum cu...
Vila situata in Tohanul Nou Str Branului Nr 2 Proprietatea este pozitionata la 4 km de Castelul Bran si la 27 km de Brasov cu acces direct din DN 73 Aceasta se desfasoara pe o suprafata de 2126 mp de teren fiind deservita de parcari teren de tenis foisor si zona de barbeque cu terasa acoperita Destinatia initiala a cladirii a fost una sociala fiind autorizat in acest sens ca si Centru ingrijire persoane varstnice Construita in 2008 este o cladire dispusa pe Demisol Parter Etaj Mansarda astfel - Demisolul - cu o suprafata utila de 106 mp detine acces atat din interior prin scara de beton direct de la parter cat si din exterior cu acces din curtea interioara a fost configurat si utilizat ca si depozit de alimente cu camera frig vestiar personal grup sanitar spalatorie si holuri de acces - Parterul cu o suprafata utila de 277 mp este compartimentat in receptie si living cu vestibul sala de mese bucatarie profesionala complet utilata si mobila...
Ati accesat un imobil situat in cartierul Tractorul - Complex Kasper LOCALIZARE Proprietatea este pozitionata intr-un bloc rezidential nou cu parcare supraterana fiind pozitionat la 5 minute distanta de Mall Coresi si zona comerciala COMPARTIMENTARE Apartamentul este dispus pe 2 camere avand urmatoarea compartimentare - Holul de acces care face legatura spre toate zonele living bucatarie baie si dormitor - Living-ul care are o suprafata generoasa detine suprafata vitrata mare este mobilat modern si are deschidere spre balcon - Bucatarie openspace cu mobilier integral si electrocasnice - Baia dotata cu cabina de dus - Dormitorul matrimonial are o suprafeta generoasa este complet mobilat DOTARI - centrala termica - tamplarie PVC cu geam termopan - usa metalica - loc de parcare Tranzactionarea proprietatii se va face cu mobilierul aferent prezentei ofertari IMPREJURIMI Apartamentul este situat intr-o zona...
LOCALIZARE Acest imobil este situat in zona Noua in imediata apropiere a Gradinitei 18 si a sectiei de Politie 4 COMPARTIMENTARE - Holul de acces care face legatura intre toate incaperile - Zona de zi care detine suprafata vitrata mare beneficiind de acces catre balconul inchis - Bucataria de tip inchis este mobilata si dotata cu plita cuptor hota frigider etc - Dormitorul 1 care este luminos - Dormitorul 2 care este mobilat in nuante calde - Baia este dotata cu cada si geam pentru aerisire DOTARI - centrala termica - tamplarie PVC cu geam termopan - balcon deschis cu vedere spre masivul Tampa Inchirierea proprietatii se va face cu mobilierul aferent prezentei ofertari Imobilul este situat intr-o zona de blocuri accesul auto pana in zona de centru a orasului facandu-se in cca 3 minute ATRACTII ZONA Magazine restaurante parcuri scoli spitale ACCESIBILITATE Transport public in apropiere NOTA Perioada Minima Inchiriere...
Ati accesat un imobil situat in Ghimbav Livada intr-o zona cu acces facil la oras departe de agitatia urbana si totusi la doar 9 km distanta de zona centrala a Brasovului LOCALIZARE Proprietatea este pozitionata in imediata apropiere a DN 73B DN1 si a Soselei Ocolitoare a Cristianului avand acces facil catre viitoarea Autostrada Bucuresti - Sibiu si totodata catre Aeroportul international Ghimbav Brasov COMPARTIMENTARE Imobilul este dispus pe 3 camere avand urmatoarea compartimentare PARTER Acest nivel gazduieste zona de zi fiind format din - holul de acces care deserveste toate incaperile de pe acest nivel - o baie care detine aerisire naturala - spatiu de depozitare - bucataria care este open space aceasta fiind integrata cu zona de zi - living-ul in care regasim si zona de dining acesta avand acces la gradina ETAJ Acest nivel este alocat zonei de noapte fiind dispus astfel - hol - 2 dormitoare care detin 14 respectiv 19 ...
DIRECT Proprietar - COMISION 0 Vila Tip CUBIC - Balotesti - Laguna Verde Parcul Eden land Park 4 camere suprafata utila 120 mp suprafata curte 150 mp 2 parcari Vila tip duplex construite cu materiale de inalta calitate pentru a oferi siguranta si confort sporit Situat in Balotesti doar la 15 minute de nordul capitalei intr-o zona verde armonioasa departe de stres si de poluare dar aproape de Bucuresti Acces facil din 4 directii DN1 A3 Soseaua Pipera si A0 In apropiere centrele comerciale DN1 Value Center Lidl Profi Mega Image amplasate la ca 10 minute distanta Mijloace de transport la numai 300 m Proiectul este unul modern arhitectura caselor de tip cub fiind ceea mai eficienta solutie in exploatarea spatiului interior si exterior Fiecare vila cu regim de inaltime P 1E are suprafata utila 120 mp utili Terenul aferent de 260 mp dintre care de o curte libera de 150 mp o terasa de 27 mp si cele 2 parcari care sunt amplasate in zona de acces a vilelor ...
Te invitam sa descoperi aceasta proprietate rara cu peste 200 mp utili situata pe strada General Gheorghe Lupu la cativa pasi de intrarea in Parcul Tineretului dinspre Calea Serban Voda O zona selecta plina de farmec unde istoria si eleganta se impletesc la tot pasul In doar cateva minute de mers pe jos ajungi in Parcul Tineretului iar putin mai departe te asteapta Parcul Carol U-Center Tineretului Colegiul Gheorghe Sincai si statiile de metrou Tineretului si Eroii Revolutiei Un loc perfect pentru familie dar si pentru un stil de viata activ cu toate facilitatile aproape Casa a fost reconstruita complet in 2009 cu grija si atentie de actualul proprietar pastrand farmecul zonei dar oferind structura solida a unei constructii moderne La etaj ai Doua dormitoare luminoase O baie spatioasa Un living generos de 33 mp Hol de 16 mp Terasa de 16 mp si balcon de 7 mp unde poti savura diminetile linistite La parter gasesti Un living sau dormitor de 20 ...
Daca iti doresti o vila de vacanta departe de agitatia orasului in mijlocul naturii aceasta proprietate din Lepsa este alegerea ideala Situata intr-o zona montana superba cabana ofera confort modern intr-un cadru natural de poveste Descriere generala Aceasta proprietate este compusa din doua corpuri de cladire Corpul 1 este construit pe un singur nivel di este compus din 2 camere bucatarie baie suprafata utila de 80 mp Corpul 2 P M 6 camere 5 bai bucatarie beci terasa suprafata utila de 200 mp Dotari si facilitati Incalzire cu doua centrale termice pe lemne 38 kW si 25 kW Curent electric 220V cu posibilitate de 380V si grup electrogen de 8kW Apa din put propriu cu hidrofor Canalizare cu fosa septica Structura solida fundatie continua din beton armat constructie pe structura de lemn Ferestre si usi interioare din lemn stratificat geamuri termopan Instalatii electrice si sanitare din cupru 2 beciuri spatii de depozitare s...
Va propun spre vanzare o vila individuala pozitionata in Dobroiesti pe strada Doinei construita S E M din caramida Porotherm in anul 2011 Vila se vinde mobilata si utilata este compartimentata in 6 camere 4 bai 2 balcoane terasa bucatarie Arata foarte bine si merita vazuta centrala pe gaz terenul o suprafata totala de 307 amprenta casei este de 97 mp cu terasa singur in curte pentru mai multe detalii despre acesta oferta cat si pentru a programa o vizionare astept sa ma contactati Comisionul agentiei este de 2 TVA si se plateste separat Informatii eficienta energetica Clasa energetica Consumul de energie primara Indicele de emisii echivalent CO2 Consum de energie din surse regenerabile
Va propunem spre vanzare casa noua la cheie 4 camere parter 3 dormitoare si 2 bai 82 mp cu teren total 330mp cu o deschidere stradala generoasa de 12 ml situata intr-o zona linistita si accesibila DETINE LOC PARCARE si toate utilitatile POD 30 mp CURTE FATA si SPATE - pet friendly TERASA BECI centrala proprie IMMERGAS INCALZIRE IN PARDOSEALA curent trifazic putere 15KW tamplarie PVC Tripan-Salamander gresie si faianta RONDINE-ITALIA Situata in proximitatea viitoarei statii de METROU - capat Magistrala M2 Aceasta proprietate este ideala pentru o familie care isi doreste sa locuiasca intr-un mediu urban dar sa beneficieze de intimitate si confort Curtea poate fi amenajata cu spatiu verde gradina loc pentru gratar Avantajele zonei Proximitate fata de Mega Image LIDL Carrefour Pepco si diverse magazine la doar cateva minute de mers pe jos sau cu masina Scoli si gradinite de calitate in imediata apropiere ceea ce face zona ideala pentru familiil...
Ilfov - 1 Aprilie 2025
154.900 €
Atenție
Din motive de securitate și pentru protecția utilizatorilor, această funcționalitate nu este disponibilă pentru locația ta.