Vand casa curte 210mp suprafata de 90mp constuictie pe un singur nivel construita din caramida acoperita cu tabla 4 camere spatioase 2 bucatarii baie hol veranda gresie faianta parchet termopan centrala termica gaze apa curenta canalizare casa izolata exterior ceea ce face ca iarna sa fie calduroasa si vara racoroasa situata pe stada asfaltata cu vecini buni acces facil la piata Rahova transport in comun pret 90000 euro tel 0723 389967 cadastru intabulare se accepta credit
⚠ AtenÈ›ie !
Nu plăti niciodată în avans într-un cont bancar până când nu l-ai întâlnit pe vânzător și ați semnat un acord.
Nu furniza informații confidențiale în discuții pe WhatsApp/Telegram sau alte aplicații de mesagerie unde utilizatorii își ascund ușor identitatea, deoarece te poți expune la fraude sau înșelăciuni.
Nu furniza niciodată detaliile cardului tău bancar (număr, data expirării, CVV). Te expune direct la fraude bancare.
Primirea unui mesaj pe WhatsApp/Telegram cu un ID scanat nu înseamnă că ai identificat cumpărătorul. Acest lucru se face pe loc, când semnați un acord de cumpărare.
Când comanzi online, alege livrarea cu verificare. Pentru un cost relativ mic, te protejezi de eventuale neplăceri.
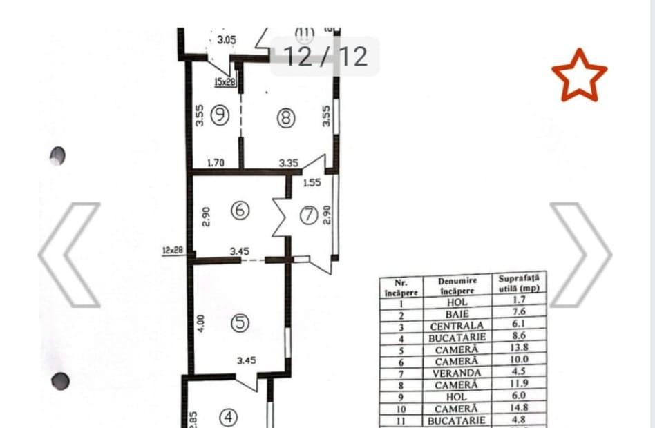
Liber apartament 2 camere 40mp etaj 1/4 gresie faianta parchet termopan bloc reabilitat situat in apropierea mijloacelor de transport legatura directa cu centrul acces usor la metrou P-ta Sudului cadastru intabulare
Ocazie Apartament 2 camere decomandat 42mp termopan usa metalica gresie faianta parchet usi interior noi mobilat utilat pt cine doreste se poate elibera de mobilier pret 53000 euro 0723389967 0723 389967 cadastru intabulare se accepta credit
Ocazie Apartament 2 camere decomandat 42mp termopan usa metalica gresie faianta parchet usi interior noi mobilat utilat pt cine doreste se poate elibera de mobilier pret 53000 euro 0723389967 0723 389967 cadastru intabulare se accepta credit
Vand apartament 3 camere decomandat 80 mp hol H etaj 4/8 2 grupuri sanitare dotat cu gresie faianta parchet termopan usi interior schimbate curat situat in bloc construit in anul 1990 in apropiere de liceul Stefan Odobleja transport in comun acces usor la statia de metrou Razoare pret 128000 euro 0723 389967 cadastru Intabulare se accepta credit
Vand apartament 3 camere decomandat 80 mp hol H etaj 4/8 2 grupuri sanitare dotat cu gresie faianta parchet termopan usi interior schimbate curat situat in bloc construit in anul 1990 in apropiere de liceul Stefan Odobleja transport in comun acces usor la statia de metrou Razoare pret 128000 euro 0723 389967 cadastru Intabulare se accepta credit
Proprietar vand casa in Sibiu cartier Lazaret compusa din doua apartamente cu contorizare separata la toate utilitatile suprafata totala de aprox 220 mp utili Suprafata totala a terenului este de 640 mp Imobilul se afla in apropierea facilitatilor orasului cu acces usor si comod la acestea zona centrala gara statii de autobuz scoli magazine mall iesirea spre autostrada Compartimentare imobil Apartament 1 compus din 3 camere mari si luminoase bucatarie camara camera de zi hol baie cu geam dressing Apartament 2 compus din hol bucatarie 2 camere baie cu geam terasa camara pivnita Ambele apartamente au centrale termice separate si calorifere Curtea cu acces auto este pavata In curte mai este o anexa cu acces spre gradina compusa din filigorie bucatarie de vara si o baie de serviciu In gradina sunt pomi fructiferi arbusti fructiferi zona de relaxare cu gratar ciubar pentru 6 - 8 persoane etc In spatele gradinii se afla un atelier casnic si o mag...
Esti in cautarea unei case de locuit si doresti si dezvoltarea unei afaceri de familie ce zici si de un spatiu comercial pe proprietate care sa iti asigure un venit pasiv inca de la cumparare Iti prezint mai jos in reprezentare exclusiva o oportunitate de a achizitiona o casa la sol perfecta atat pentru locuit cat si pentru investitie situata intr-o zona extrem de accesibila din Orasul Constanta intre Trocadero si Coiciu Proprietatea este compusa dintr-o casa de chirpici cu 5 camere baie si bucatarie renovata si finisata cu materiale de actualitate si amplasata pe un teren de 257mp Casa prezinta urmatoarele particulariti sunt 3 intrari distincte in casa lasand posibilitatea convietuirii mai multor generatii sau a 2 familii putand fii ipotetic impartita in 2 corpuri de casa fiecare camera beneficiaza de lumina naturala si este ideala pentru a fi folosita ca dormitor living birou sau camera de oaspeti are centrala proprie pe gaz este izolat...
Va prezentam spre vanzare o PROPRIETATE deosebita situata in Baia Sprie in zona restaurant Rustic compusa din CASA cu etaj si pod mansardabil cu 3 balcoane 2 garaje si un atelier ANEXA/CASUTA si TEREN aferent de 22 5 arii -CASA - tip P 1 structurata astfel - parter -se afla doua garaje un atelier beci de provizii pe o fundatia din piatra naturala - etaj - sunt 4 camere un living cu balcon bucatarie si baie plus o camaruta - mansarda dispune de suficient spatiu care poate fi configurat dupa preferinte - ANEXA - insuprafata de 48 mp poate avea ca destinatie casa de oaspeti - TEREN INTRAVILAN - cu pomi fructiferi flori gradina - in suprafata de 2 248 mp In partea din spate a curtii a fost conceputa o piscina consolidata prin pereti de piatra naturala cu intrare cu trepte Pentru mai multe detalii sau vizionari va stau la dispozitie la telefon 0742362037 - Consultant imobiliar Mihaela Mi...
Casa Moderna in Complex Privat - Confort Liniste si Locatie Premium Visezi la o casa noua Acum e momentul sa te muti unde chiar conteaza - intr-o zona in plina dezvoltare cu acces rapid la oras si toate facilitatile moderne Langa Spitalul Regional Bulevardul Nou Carpenului Acces facil Zona linistita Ideala pentru familii Ce iti ofera aceasta casa 3 camere spatioase intr-un design modern si luminos Incalzire in pardoseala - confort garantat tot timpul anului Curte amenajata cu gazon si sistem de irigare automat 2 locuri de parcare in fata casei - proprietate personala Constructie solida cu materiale de calitate superioara Racordata la toate utilitatile - gata de mutat BONUS Poze din toate etapele constructiei - transparenta 100 Perfecta pentru Familii tinere Cupluri Cei care cauta un camin linistit dar aproape de tot ce conteaza Programeaza o vizionare azi si fa primul pas spre noua ta locuinta Contact rapid in mesaj...
Blitz va propune spre vanzare o unitate de duplex amplasata in comuna Feleacu la doar cateva minute de sediul Politiei Proprietatea se afla intr-o zona retrasa si linistita oferind un cadru perfect pentru viata de familie cu acces rapid catre oras Suprafata totala a terenului este de 1140 mp ceea ce inseamna 570 mp pentru fiecare unitate Optional se poate achizitiona si un teren suplimentar de 1140 mp situat langa una dintre proprietati Fiecare unitate ofera o suprafata utila de 170 mp inclusiv un subsol de 55 mp completata de terase insumand 32 mp Compartimentare o Subsol garaj spalatorie camera tehnica hol o Parter living generos cu zona de luat masa si iesire pe terasa bucatarie separata baie cu geam doua holuri o Etaj dormitor matrimonial cu baie proprie cu geam si dressing doua dormitoare baie cu geam hol si doua balcoane o Pod spatiu de depozitare Proprietatea se preda in stadiul la rosu beneficiind de toate utilitatile gaz cu...
Cluj - 23 Iunie 2025
290.000 €
Atenție
Din motive de securitate și pentru protecția utilizatorilor, această funcționalitate nu este disponibilă pentru locația ta.