Va prezentam in Magurele o Vila deosebita, construita in anul 2022, formata din parter, etaj si mansarda. Ideala pentru locuit sau oportunitate investitie, cu deschidere la doua strazi, zona centrala, asfaltata, langa padurea Magurele, liniste, aproape de A0, de centura Bucurestiului, de DN Bucuresti-Giurgiu, de Sos Bucuresti-Magurele, acces foarte rapid in Bucuresti si catre A0.
Vila face parte dintr-un complex de 5 case si are vecini seriosi. Vila dispune de 4 dormitoare fiecare cu dressing propriu si de 3 bai, suprafata totala fiind de 260 mp utili, desfasurati astfel:
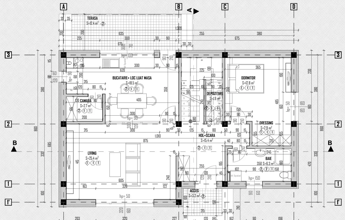
PARTER : hol intrare generos+spatiu de depozitare, living+dinning+bucatarie in suprafata de 46 mp+camara de 2,7 mp, terasa exterioara de 12.4 mp, dormitor de 12.8 mp+dressing de 2.9 mp si o baie de 6.3 mp.
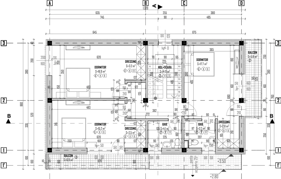
ETAJ: dormitor matrimonial 17.7mp cu baie proprie, dressing de 2.8mp si un balcon de 7 mp, un dormitor de 15.2 mp cu dressing de 2.5mp si un bacon de 6 mp, un dormitor de 16.9mp cu dressing de 3.2mp si o baie pe hol.
MANSARDA deosebita inalta, spatiu relaxare/birou: open space in suprafata totala de 85mp, casa scarii cu scara interioara de beton cu acces pana la mansarda.
Curte 410 mp, amenajata cu gazon si pomi fructiferi, avand sistem de irigare inteligent, foisor din lemn de 12 mp, pivnita de 12 mp avand acces cu scara de beton.
Vila este construita pe structura de beton armat cu caramida de 30 cm, izolata la exterior cu vata bazaltica de 10 cm, izolatie din spuma de 25 cm in mansarda, acoperis Lindab, dispune de toate utilitatile, gaz, curent, canalizare, inclusiv curent trifazic cu priza incarcare masina electrica, sistem de monitorizare video si alarma, centrala pe gaz de 35 kw Ariston, 3 AC (unul 18.000 BTU si doua de 12.000 BTU), este dotata cu geamuri termopan tripan (Salamander), casa
este foarte luminoasa, mansarda inalta luminoasa cu fereastra Velux si cu lucarna mare, avand vedere spre padure.
Vila dispunde de finisaze premium, parchet de 14 mm, usi de interion Pinum, spatii de depozitare foarte generoase.
Se vinde mobilita si utilata. Se pot prezenta fotografii si filmari video cu toate etapele de constructie. Va asteptam cu drag la vizionare!
⚠ AtenÈ›ie !
Nu plăti niciodată în avans până când nu l-ai întâlnit pe vânzător și ați semnat un acord.
Nu furniza informații confidențiale în discuții pe alte aplicații de mesagerie unde utilizatorii își ascund ușor identitatea.
Nu furniza niciodată detaliile contului sau cardului tău bancar.
Când comanzi online, alege livrarea cu verificare. Pentru un cost relativ mic, te protejezi de eventuale neplăceri.
Cel mai bun pret Imobilul face parte dintr-o constructie noua EDIL Floresti imobiliare va ofera o casa individuala de vanzare in localitatea Gilau iesirea din Gilau spre Oradea access rapid la viitoare centura a Clujului Casa este situata in zona turistica a localitatii foarte linistita cu access rapid la E60 dar retras de la drumul principal Ideala pentru cei ce iubesc natura In zona gasiti multa verdeata proprietatea se invecineaza cu raul Capus access direct la drum de tara pt plimbari cu ATV motociclete biciclete etc Casa a fost finalizata in anul 2020 are suprafata utila de 92 mp teren de 393 mp construita pe un singur nivel si este compartimentata in living bucatarie 3 dormitoare 2 bai si un hol Pt constructie s-a folosit pt zidarie BCA YTONG de 40 cm izolat cu polistiren de 10 cm tencuiala decorativa si lambriu pe 2 laturi iar pe alte 2 laturi tabla faltuita Lindab geamuri termopan tripan Salamander Blue Evolution 92 sticla 52 mm Casa se vinde mob...
Case cu suflet - 455 mp utili teren 1 000 mp / unitate individuale lipite la calcan Balaceanca 15 min de Bucuresti PRET PE UNITATE Aceaste case nu sunt constructii de vanzare la numar Au fost gandite si realizate pentru viata unor familii cu grija la fiecare detaliu spatiu generos lumina naturala confort si structura solida Se afla intr-o zona linistita si aerisita cu acces rapid catre Bucuresti 15 minute de metroul Anghel Saligny si de complexul comercial Pallady aprox 15 minute catre Piata Sudului / Berceni Ce o face speciala Casele sunt aproape finalizate dar poti personaliza finisajele parchet gresie usi - fara costuri suplimentare de demolare Toate utilitatile sunt disponibile apa canalizare curent iar gaze daca vrei avand in vedere conceptul de casa pasiva Fiecare colt poate fi adaptat dupa gustul tau astfel incat sa devina caminul tau perfect Suprafata si compartimentare 455 mp utili distribuiti pe 3 nive...
Va propunem spre vanzare o proprietate versatila cu potential ridicat investitional situata in cartierul Gheorgheni intr-o zona cu numeroase facilitati economice si sociale Casa dispune de 9 camere fiind structurata in 4 unitati locative independente si un spatiu comercial o combinatie ideala pentru locuire si generare de venit pasiv Proprietatea se afla pe un teren de 417 mp dintre care aproximativ 250 mp reprezinta curte libera iar frontul la strada este de 12 m Structura proprietatii Spatiul comercial Construit in anii 70 cu o suprafata de 60 mp este amplasat la strada si compartimentat in doua camere fiecare cu baie proprie si acces separat fiind potrivit pentru doi agenti economici Zona rezidentiala D P Etaj M - edificata in 1985 Dispune de doua intrari separate - una catre locuinta de la parter - una catre cele trei unitati locative situate la etaj si mansarda Compartimentare rezidentiala Demisol pivnita utila pentru depozitare Parter - lo...
Blitz va propune spre vanzare o constructie la rosu situata in Radauti reprezentand o oportunitate excelenta pentru dezvoltarea unui spatiu comercial pensiune sau restaurant Cu o suprafata utila generoasa de 600 mp distribuita pe trei nivele si un teren aferent de 2600 mp imobilul ofera flexibilitate in amenajare si utilizare Beneficii si Potential de Dezvoltare Spatii comerciale Datorita suprafetei mari si a structurii solide cladirea poate fi compartimentata pentru a gazdui diverse activitati comerciale birouri sau magazine Pensiune Cele trei nivele permit amenajarea unui numar considerabil de camere pentru o pensiune fiecare nivel putand fi destinat diferitelor tipuri de servicii cazare spa restaurant Restaurant Parterul sau unul dintre nivele poate fi transformat intr-un restaurant elegant beneficiind de spatii ample pentru bucatarie sali de mese si zone de relaxare Imobilul este construit din caramida Porotherm de 38 cm asigurand o izolatie termi...
Blitz va prezinta o casa P M cu atelier 100 mp si teren generos - Bod Brasov Localitatea Bod jud Brasov Necesita investitii Utilitati disponibile la strada Descriere generala O oportunitate ideala pentru cei care cauta spatiu de locuit activitate profesionala intr-un mediu linistit aproape de Brasov Proprietate cu teren generos de 924 mp situata pe strada asfaltata cu toate utilitatile la poarta Suprafata teren 924 mp Structura constructie lemn Tip cladire Parter mansarda Suprafata parter aprox 140 mp atelier 100 mp NU este racordata la gaz si canalizare - disponibile la limita proprietatii Compartimentare parter Living Bucatarie Doua dormitoare Doua bai Hol Atelier spatios de 100 mp - perfect pentru atelier mestesugaresc mica afacere birou hobby-uri Mansarda Spatiu necompartimentat - cu potential de amenajare dormitoare sala de hobby birou etc Alte informatii Apa si curent r...
BraÅŸov - 30 Ianuarie 2026
175.000 €
Atenție
Din motive de securitate și pentru protecția utilizatorilor, această funcționalitate nu este disponibilă pentru locația ta.