Blitz va propune spre vanzare un apartament intr-o zona aerisita cu locuinte individuale la doar 2 km de Cetatea Alba Carolina cu acces rapid la toate facilitatile importante magazine Lidl scoala spital parc transport public zona de agrement Zona exclusivista pentru constructia de locuinte colective de joasa inaltime si locuinte individuale aproape de Cetate dar fara haos urbanistic Cartier fara blocuri inalte - comunitate selecta acces controlat in imobil si parcare intimitate gradina spatiu verde amenajat loc de joaca pentru copii Apartamente finisate complet - Incalzire in pardoseala - Centrala termica proprie gaz - 1 aparat de aer conditionat 9000 BTU / apartament - Videointerfon la scara Sistem fotovoltaic care sustine consumul spatiilor comune Amenajari eco friendly spatii verzi alei pavate Locuri de parcare contra cost Cod oferta / ID BLITZ P153338 Id intern P153338
Locatie de Top in Bucuresti vis-a-vis de parcul Constantin Brancusi - Situata in cartierul Titan strada C-tin Brancusi colt cu parcul IOR si metrou Titan una dintre cele mai cautate zone ale capitalei - Acces facil la toate facilitatile orasului magazine restaurante scoli si centre de sanatate metrou Titan la 5 minute - Tip Garsoniera ideala pentru tineri profesionisti sau investitori - Pret atractiv doar 64900 euro pentru 31mp bloc construit in anul 1978 reabilitat termic De ce sa alegi aceasta oferta - Potrivit pentru investitie sau pentru a deveni propriul tau camin - Posibilitatea de a personaliza spatiul dupa gusturile tale - Oportunitate de a beneficia de o locatie avantajoasa cu conexiuni rapide catre centrul orasului si zonele invecinate Nu rata aceasta oferta unica Transforma visul tau de a avea propria locuinta intr-o realitate
Garsoniera nbsp de vanzare decomandat 28 mp zona Strand Sibiu nbsp nbsp Aici ai o garsoniera care iti poate genera profit din parima luna Avantaje majore ale acestei garsoniere nbsp bull nbsp Pivnita 12mp bull nbsp Etajul 1 bull nbsp Balcon bull nbsp Pretabil investitie sigura bull nbsp Zona bine cotata TABOO Imobiliare propune o garsoniera decomandata situata in localitatea Sibiu zona Strand aflata la etajul 1 intr -un imobil tip bloc cu regim de inaltime pe Parter 4 Etaje si mansarda anul constructiei 1967 structura beton Suprafata utila de 28 mp balcon de 4 mp Garsoniera nbsp este structurata astfel bull Hol bull Bucatarie bull Baie bull Camera Finisajele interioare sunt clasice bull Usa intrare metal bull Usi interioare lemn nbsp nbsp nbsp nbsp nbsp nbsp nbsp nbsp nbsp nbsp nbsp nbsp nbsp nbsp nbsp nbsp nbsp nbsp nbsp nbsp nbsp nbsp nbsp nbsp nbsp bull Tamp...
Garsoniera noua cu curte proprie si boxa - Popesti-Leordeni Se ofera spre vanzare garsoniera in bloc nou finalizat in 2025 situata in Popesti-Leordeni Str Solstitiului nr 69 intr-o zona linistita cu acces facil catre Bucuresti Detalii proprietate Suprafata utila totala 35 8 mp Curte proprie 34 mp Boxa 4 mp Etaj Parter din 5 Bloc nou constructie moderna Garsoniera este ideala atat pentru locuire cat si pentru investitie oferind avantajul unei curti private generoase perfecta pentru relaxare gradina sau spatiu exterior personal Pret 72 000 euro Boxa se vinde la pretul de 5000 euro obligatoriu Serviciul nou oferit de PREMIER Imobiliare Solicita acum VIZIONARE ONLINE pentru aceasta proprietate COMISION 0 Aceasta proprietate se poate achizitiona prin orice tip de credit bancar Departamentul nostru financiar Premier Credit Hub va sta la dispozitie GRATUIT comision 0 pentru - identificarea celei mai bune solutii de finantare - intocmirea dosarulu...
Apartament situat pe Bd Constantin Brancoveanu intr-un bloc solid ideal pentru locuire imediata sau investitie Etaj 8/10 bloc cu lift 1970 Suprafata utila 64 85 mp Se vinde complet mobilat Centrala termica proprie aer conditionat Termopane parchet Electrocasnice incluse frigider aragaz Balcon generos vedere deschisa Functional locuibil - necesita renovare estetica Locatie foarte buna 5-7 min metrou Brancoveanu Acces rapid Piata Sudului / Tineretului / Sos Giurgiulu Comision standard Pentru mai multe detalii vizionari sau oferte similare contactati-ma Beatrice 0771631848
Apartament 2 camere - Drumul Gazarului Se ofera spre vanzare apartament cu 2 camere semidecomandat avand o suprafata de 40 mp situat la etajul 4 din 4 intr-un bloc construit in 1976 Apartamentul este proaspat renovat cu finisaje moderne si se vinde complet mobilat si utilat fiind gata pentru mutare imediata Compartimentarea este practica si eficienta oferind un spatiu confortabil atat pentru locuit cat si pentru investitie Se accepta credit Parcare disponibila de la Primarie cu preluare directa de la proprietar Pentru detalii si vizinari 0731667759
Ramiro Imob va propune spre vanzare un apartament cu 2 camere Situat la parterul unui bloc de 4 etaje construit in 1982 Imobilul este situat intr-o zona linistita si accesibila -Suprafata 55 mp -Balcon -Geam la baie -Mobilat si utilat -Instalatii schimbate -Renovat recent -Boiler electric Pret 135 000 Euro Pentru mai multe detalii vizionari sau oferte similare contactati-ma Cristian - 0761 173 617 Comision standard Oferim suport complet in relatia cu banca cu acces la cele mai bune oferte de finantare precum si asistenta notariala la cele mai bune preturi
Blitz propune spre vanzare un apartament cochet ultracentral in Predeal cu vedere directa spre padure si toate facilitatile la cativa pasi - Partie - Centru - Restaurante - Gara - Supermarket - Farmacie Locuinta are 32 mp renovati este decomandata iar bucataria a fost extinsa cu aproximativ 13 mp Se vinde mobilata si utilata complet TV frigider masina de spalat electrocasnice covoare etc - totul nou Vantaje Centrala proprie Parcare in fata blocului 2 camere bucatarie baie hol Eliberare rapida in 3-4 zile de la semnare Bonus major Ai drept de extindere in pod pe toata suprafata apartamentului ceea ce iti permite sa amenajezi un al doilea apartament sau mai multe camere suplimentare Cod oferta / ID BLITZ P158494 Id intern P158494
Va propun spre vanzare un apartament cu 2 camere decomandat situat pe Bulevardul Alexandru Obregia 200m de Fantana florilor la etajul 2 din 9 intr-un bloc anvelopat construit in anul 1967 Caracteristici - Suprafata utila 52 mp - Compartimentare Decomandat - Etaj 2/9 - Bloc anvelopat - Balcon pe sufragerie si bucatarie - Geamuri termopan - Repartitoare digitale - Instalatii electrice/sanitare schimbate - Loc de parcare disponibil Avantaje zona - Scoala 194 si gradinita la 5 minute - Piata si Kaufland in apropiere - Metrou Piata Sudului la 10 minute - Mall Sun Plaza la 10 minute Pentru detalii si vizionari 0758880813 Antonia Comision standard
Iti prezentam un apartament de 2 camere cu suprafata de 49 mp situat ultracentral la etajul 2 cu loc de parcare inclus - o alegere excelenta atat pentru locuit familie/cuplu cat si ca investitie inchiriere pe termen lung Avantaje cheie - Ultracentral - acces rapid catre puncte de interes institutii magazine cafenele - Etaj 2 - nivel ideal confort termic si accesibilitate - Loc de parcare - rar si extrem de valoros in zona centrala - Compartimentare eficienta - potrivit pentru un stil de viata urban - Investitie sigura - cerere constanta la inchiriere in zona centrala Localizare Piatra Neamt - zona ultracentrala Suprafata 49 mp Etaj 2 Parcare inclusa Pret 55 000 Pentru detalii poze si programare vizionare scrie-mi in privat sau suna la 0722 660 100 Id intern P235672
Blitz va propune spre vanzare un apartament cu o camera in zona Florilor situat in apropierea magazinelor statiilor de autobuz farmaciilor Se afla la etajul 4 al unui imobil de P 4 M constructie 2012 Dispune de o suprafata de 35mp compartimentata astfel living bucatarie baie balcon de 5mp Apartamentul se vinde dupa cum se vede in poze mobilat si utilat iar incalzirea se face prin centrala termica proprie noua Apartamentul se afla intr-o zona linistita aproape de orice punct de interes Pentru mai multe detalii sau pentru a stabili o vizionare nu ezitati sa ne contactati Cod oferta / ID BLITZ P161607 Id intern P161607
R E A Imobiliare va ofera spre vanzare un apartament cu 3 camere in zona Colentina decomandat situat intr-un bloc reabilitat bine intretinut si cu vedere spre Parcul Plumbuita Bloc construit in 1977 care nu este incadrat in nicio categorie de risc seismic nefiind expertizat Se afla la etajul 8 al unui bloc cu 9 etaje si are o suprafata utila totala de 80 mp din care 18 mp sunt reprezentati de balcon Compartimentare living doua dormitoare bucatarie baie si balcon Se vinde partial mobilat si utilat Confortul termic este asigurat prin reteaua edilitara de termoficare Zona pet-friendly In imediata apropiere se afla puncte comerciale bancare farmaceutice medicale educationale si de divertisment Acces facil la mijloacele de transport in comun Se accepta toate modalitatile de plata Informatiile tehnice au caracter orientativ acestea fiind preluate de la proprietar Daca sunteti in cautarea unui apartament cu 3 camere in zona Colentina nu ratati acea...
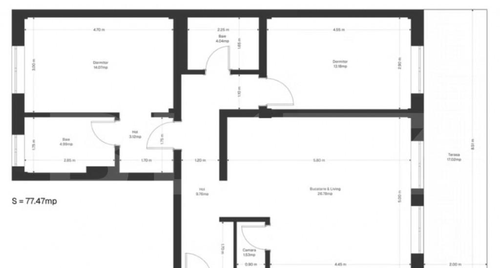
Apartament spatios de 3 camere in Confort City - confort lumina si potential intr-o zona verde si linistita Va propunem spre vanzare un apartament deosebit cu 3 camere situat la parterul unui imobil modern din ansamblul rezidential Confort City o zona apreciata pentru aerul curat linistea si echilibrul pe care le ofera locuitorilor sai Cu o suprafata utila de 89 mp apartamentul se remarca printr-o compartimentare inteligenta si spatii largi luminoase ce pot fi usor personalizate in functie de stilul de viata al fiecarui cumparator Locuinta este confort 1 semidecomandata oferind intimitate dar si o comunicare fireasca intre camere Interiorul necesita o usoara renovare si mobilare aspect care se poate transforma intr-un avantaj major viitorul proprietar isi poate pune amprenta personala asupra designului si compartimentarii Exista posibilitatea de a amenaja doua bai pentru un plus de confort sau in functie de preferinte de a transforma spatiul suplimentar in...
AZURA Imobiliare va ofera in regim de Reprezentare Exclusiva si Comision 0 la cumparator - un apartament de 2 camere confort 1 decomandat in cartierul Popa Sapca ideal pentru locuit sau investitie Un apartament corect compartimentat luminos si bine pozitionat intr-un bloc solid construit in 1985 pentru cei care cauta o locuinta practica fara compromisuri de spatiu Nimic inghesuit nimic improvizat - fiecare camera este clar delimitata exact cum trebuie sa fie un apartament de confort 1 Detalii esentiale 2 camere decomandate Suprafata totala 53 06 mp Balcon inclus in suprafata totala 3 78 mp Bucatarie inchisa separata Baie cu cada Etaj 4 Orientare Nord-Est Bloc din beton an constructie 1985 Apartamentul se vinde mobilat complet fiind locuibil imediat Finisajele sunt clasice curate bine intretinute - o baza solida pentru cine vrea sa se mute rapid sau sa il modernizeze gradual fara presiune Este genul de apartament cinstit care iti ofer...
Va propunem spre vanzare o garsoniera situata pe strada Campia Libertatii intr-o zona bine conectata si apreciata pentru accesul facil catre puncte de interes importante Garsoniera de vanzare - Campia Libertatii o Suprafata utila 26 41 mp o Balcon 6 49 mp o Etaj Parter / 4 o Bloc reabilitat termic o Metrou Piata Muncii - 10 min o Zona cu scoli gradinite o Aproape de Parcul IOR si Mall ParkLake Ideala pentru locuit sau investitie Aspecte juridice si financiare Acte la zi - se poate vinde imediat Se accepta credit Oferim asistenta completa pentru obtinerea creditului si intocmirea actelor Pret 59 990 Euro Pentru mai multe detalii vizionari sau oferte similare contactati-ma Adrian Mihai 0770 965 679 Comision standard
R E A Imobiliare va ofera spre vanzare in exclusivitate un apartament cu 2 camere decomandat in zona Pantelimon situat pe Strada Delfinului la 10 minute de metrou Costin Georgian la 3 minute de Parcul Morarilor si Parcul Florilor langa Scoala nr 62 si la 7 minute de Mega Mall intr-un bloc in curs de reabilitare termica Orientare sud Blocul este construit in anul 1984 si nu este incadrat in nicio categorie de risc seismic nefiind expertizat Se afla la etajul 3 al unui imobil cu 8 etaje si are o suprafata utila totala de 55 mp din care 4 mp sunt reprezentati de balcon Compartimentare living dormitor bucatarie baie si balcon Renovat integral in anul 2022 instalatii electrice si sanitare schimbate renovat si igienizat in ianuarie 2026 se vinde complet mobilat si utilat Confortul termic este asigurat prin reteaua edilitara de termoficare dar si cu ajutorul aparatului de aer conditionat Zona pet-friendly cu acces facil la mijloacele de transport in ...
Apartament 2 camere de vanzare - Sinaia Vedere catre Muntii Bucegi Agentia imobiliara Mervani va propune spre vanzare un apartament cu 2 camere situat in Sinaia intr-un complex rezidential la etajul 1 ideal atat pentru locuinta de vacanta cat si pentru investitie - Suprafata utila totala 46 mp - Balcon 7 mp - cu vedere spectaculoasa catre Muntii Bucegi - Etaj 1 Apartamentul se vinde complet mobilat si utilat fiind foarte bine intretinut gata pentru mutare sau inchiriere imediata Imobilul are centrala proprie pe gaz tamplarie exterioara din pvc cu geam termopan si tamplarie interioara din MDF - Compartimentare practica - Mobilier si electrocasnice incluse - Balcon generos cu view montan - Locuri de parcare gratuite in incinta complexului - Zona linistita ideala pentru relaxare - O proprietate excelenta intr-o statiune de top perfecta pentru cei care isi doresc confort liniste si peisaje deosebite
Apartament cochet ideal pentru un cuplu de vanzare Constantin Brancoveanu zona Piata Salajeanca bloc relativ nou constructie 2012 se vinde apartament modern in suprafata de 42 mp Proprietatea se deosebeste prin finisajele de inalta calitate apartamentul se bucura de o priveliste frumoasa spre blocurile noi din vecinatate Beneficii -pozitionare excelenta iesire spre Bulevardul Republicii zona Sf Ioan -bloc nou scara curata si spatioasa -bloc cu mansarda acoperis nou in garantie -vecinatati-scoli gradinite supermarket statie de autobus PRET ATRACTIV Suna acum si programeaza o vizionare
Va oferim spre vanzare un apartament cu personalitate urbana fix acolo unde orasul nu doarme niciodata Vorbind serios doar un pic vorbim despre un apartament de 3 camere cu o suprafata de 63 mp circular construit in 1975 situat la etajul 4 din 14 - nici prea sus nici prea jos exact cat sa fie la inaltime Pozitionarea este una greu de ignorat deasupra magazinului Bucur Obor in blocul ALMO 2 reabilitat termic - adica izolat cochet si prietenos cu facturile Ai piata sub tine la propriu transport magazine viata energie si miros de covrigi calzi dimineata Compartimentarea circulara iti ofera libertate de miscare si idei indraznete de amenajare Este genul de apartament care nu spune asa trebuie ci fa-ma cum vrei tu Perfect pentru cei care vor sa-si puna amprenta si sa transforme un spatiu clasic intr-un acasa cu stil Pe scurt locatie iconica bloc reabilitat suprafata generoasa si mult potential Pentru mai multe detalii sau pentru prog...
Comision cumparator 2 tva din valoarea de tranzactionare ASCENDENT IMOBILIARE va propune spre vanzare o proprietate amplasata excelent in admirabila statiune montana Poiana Brasov Va invitam sa experimentati o vizionare initiala din locatia unde va aflati chiar acum prin accesarea turului virtual/ si a filmului de prezentare LIVE din confortul casei tale https //my matterport com/show/ m XYC4iNAXvDo Invitatia pe care v-o fac este in Complexul Vilele de Aur un cartier plin de verde de flori cu un aer proaspat de vacanta unde exista o comunitate de oameni minunati Apartamentul este situat la etajul 1 intr o cladire cu 3 apartamente si beneficiaza de loc de parcare in fata vilei Imobilul are o suprafata totala de 110 mp si are urmatoarea configuratie - living generos de aproximativ 48mp cu bucatarie open space doua dormitoare doua bai cu aerisre naturala cu cada si cabina de dus terasa la180 grade care inconjoara tot apartamentul astfel inc...
Blitz va prezinta un apartament modern cu 2 camere - la cheie in bloc nou 2019 - Floresti Descopera confortul unui camin luminos si primitor gata sa fie locuit fara nicio investitie suplimentara Cu o compartimentare inteligenta finisaje moderne si o priveliste libera garantata cel putin 5 ani acest apartament este alegerea ideala pentru un stil de viata comod si relaxat Detalii si compartimentare o Suprafata utila 42 6 mp o Living cu bucatarie open-space - spatiu aerisit pentru relaxare si socializare o Dormitor generos si luminos o Dressing incapator o Hol de intrare spatios o Baie moderna cu dotari noi si lumina ambientala o Balcon cu vedere spre teren liber - priveliste superba fara constructii planificate in urmatorii ani Confort si dotari o Finisaje si mobilier moderne o Centrala termica proprie - costuri reduse si temperatura optima in orice anotimp o Apartament complet utilat gata de mutare Locatie o Etaj 3 mansarda intr-un imobil P 2 M const...
R E A Imobiliare va ofera spre vanzare un apartament cu 3 camere semidecomandat in zona Parcul Circului situat intr-un bloc anvelopat si bine intretinut Blocul este construit in 1964 si nu este incadrat in nicio categorie de risc seismic nefiind expertizat Vedere spre Parcul Circului Se afla la etajul 1 al unui bloc cu 4 etaje si are o suprafata utila totala de 59 mp din care 5 mp sunt reprezentati de balcon Compartimentare living doua dormitoare bucatarie baie si balcon Renovat integral se vinde complet mobilat si utilat Confortul termic este asigurat prin reteaua edilitara de termoficare Instalatiile electrice si sanitare au fost schimbate Posibilitate parcare cu abonament Zona pet-friendly In imediata apropiere se afla puncte comerciale bancare farmaceutice medicale educationale si de divertisment Acces facil la mijloacele de transport in comun 5 minute pana la statia de metrou Se accepta toate modalitatile de plata Informatiile tehnice au ca...
Blitz ofera spre vanzare un apartament de 3 camere luminos si modern situat la etajul 8 din 10 intr-un imobil din prima linie in zona Nufarul Suprafata totala de 54 mp plus un balcon de 6 mp ofera un spatiu confortabil pentru familie Detalii principale 3 camere doua dormitoare living si bucatarie open-space baie Panorama deosebita asupra orasului din Prima Green Residence Nufarul Mobilat in stil scandinav si utilat complet plita frigider masina de spalat Podele cu incalzire in pardoseala pentru confort maxim Dotari de top senzori antiefractie aer conditionat Bloc echipat cu doua lifturi Disponibil imediat Posibilitate de finantare Se accepta achizitie cu credit imobiliar Pentru vizionari sau mai multe informatii nu ezitati sa ne contactati Cod oferta / ID BLITZ P152190 Id intern P152190
Comision cumparator 2 tva din valoarea de tranzactionare ASCENDENT IMOBILIARE propune spre vanzare in EXCLUSIVITATE un apartament luminos cu structura decomandat- circulara compus din trei camere situat in Brasov cartier Noua o zona apreciata pentru liniste verdeata si accesibilitate Proprietatea este mobilata si utilata oferind posibilitatea mutarii imediate sau a unei personalizari graduale in functie de stilul viitorului proprietar Va invitam sa experimentati o vizionare initiala din locatia unde va aflati chiar acum prin accesarea turului virtual tridimensional https //my matterport com/show/ m 7xwyBLTnayK Rezidenta dispune de doua dormitoare bine proportionate un living primitor baie si un balcon generos inchis cu geamuri termopan care asigura un plus de confort termic si izolare fonica Compartimentarea circulara permite o circulatie fluida intre spatii si o separare clara intre zona de zi si zona de noapte Pozitionarea este apreciabila ...
Blitz Romania va ofera spre vanzare un apartament de 3 camere situat in inima celei mai cautate zone din Giroc Aceasta proprietate reprezinta solutia ideala pentru cei care isi doresc un echilibru intre conectivitate urbana si confortul unei locuinte noi complet finisate De ce sa alegi acest apartament Locatia este punctul forte principal Fiind situat in zona de acces dinspre Calea Martirilor / Bulevardul Sudului apartamentul ofera o mobilitate excelenta spre Timisoara fiind in acelasi timp la distanta de mers pe jos de principalele facilitati comerciale Lidl Penny farmacii Configuratie si Dotari Compartimentare Inteligenta 3 camere living 2 dormitoare separate ideal pentru familii sau pentru un birou dedicat Work from Home Stil Comfort Modern Amenajat complet cu piese de mobilier la comanda si electrocasnice moderne Designul este cald functional si foarte bine intretinut Gata de Mutat Apartamentul se vinde complet mobilat si utilat Economisiti timp s...
De vanzare - Apartament 3 camere - Berceni Piata Straduintei Apartament semidecomandat situat intr-o zona foarte verde si linistita ideala pentru locuit sau investitie la doar 1 minut de Piata Straduintei Suprafata 62 mp Etaj 3/4 Bloc anvelopat Foarte luminos cu orientare buna Caracteristici Apartament zugravit recent Instalatii schimbate Teava de gaze la usa Partial mobilat include pat matrimonial nou dressing nou sifonier in stare foarte buna comoda 2 noptiere masina de spalat aproape noua Debara camara - spatii de depozitare foarte utile Localizare excelenta 1 minut de Piata Straduintei aproape de Gradinita Dumbrava Minunata 5 minute de Scoala Gimnaziala 194 Marin Sorescu acces rapid la transport public multe spatii verzi in jur Apartamentul este ingrijit luminos si gata de mutare potrivit atat pentru locuit cat si pentru investitie
Va propunem spre vanzare un apartament cu 3 camere situat intr-o zona excelenta a Capitalei la cateva minute de mers pe jos de statia de metrou Dristor 6 minute Imobilul se afla la etajul 4/10 intr-un bloc reabilitat termic construict in anul 1970 Apartamentul beneficiaza de o comparimentare functionala cu camere luminoase si spatii bine proportionate Proprietatea necesita renovare oferind astfel viitorilor proprietari oportunitatea de a o amenaja dupa propriul gust si nevoi Zona este foarte bine conectata la mijloacele de transport in comun si dispune de toate facilitatile necesare scoli gradinite supermarketuri centre comerciale Park Lake Parcul I O R si acces rapid catre principalele artere ale orasului Ideal atat pentru locuit cat si pentru investitie Pentru mai multe informatii sau vizionari puteti suna la numarul afisat Pret 138 000 euro negociabil 0786 111 771
Direct proprietar NU COLABOREZ CU AGENTII Apartament 3 camere decomandat spatios strada Dealul Tugulea 78MP UTILI Etaj 1/4 bloc construit in 1989 reabilitat termic 2 bai una cu geam parchet Lemn Masiv dormitor matrimonial 180x200 lemn masiv Centrala termica proprie Debarale pentru depozitare Masina de spalat vase Electrolux Recent renovat 2023 dormitoare bai instalatii sanitare si electrice pe cupru Usi noi Teava de gaz pentru racordare centrala Certificat Energetic clasa A Mobilat si utilat complet cu electrocasnice Electrolux Zona linistita cu acces facil la magazine scoli gradinite Aproape de Lujerului si LACUL MORII spitale si transport public tramvaiul 41 si metrou Lujerului Acest apartament este o oportunitate excelenta pentru cei care isi doresc o locuinta spatioasa si moderna intr-o zona bine conectata si plina de facilitati urbane Se preda complet mobilat aceasta fiind nou schimbata odata cu modernizarea apartamentului In apropiata vecinatate a ap...
Apartament nou complet finisat Vanzare de catre proprietar persoana fizica nu se plateste TVA nbsp Comision 0 pentru cumparator nbsp Apartament cu 2 camereintr-un imobil nou predat in folosinta in 2024 situat in Prelungirea Ghencea 59A langa Cartierul Latin si este pozitionat stradal cu vedere spre spate spre zona de case nbsp Imobilul are structura din cadre de beton si peretii interiori si exteriori din caramida termoizolat exterior cu regim de inaltime p 8 si beneficiaza de 2 lifturi moderne Parterul imobilului este destinat spatiilor comerciale Aleea de acces in imobil este amenajata cu spatii verzi iar accesul este securizat nbsp Apartamentul este situat la etajul 4/8 are o compartimentare decomandata cu o suprafata totala de 59 9 mp din care suprafata utila de 52 6 mp si un balcon spatios in suprafata de 7 3 mp Compartimentarea este extrem de practica si ideala cu bucatarie inchisa si spatioasa 8 6mp un hol spatios 1 grup sanitar nbsp livi...
Apartament 2 camere semidecomandat - zona Pantelimon Se ofera spre vanzare un apartament semidecomandat cu 2 camere avand o suprafata de 51 mp situat la etajul 9 din 10 al unui imobil construit in anul 1976 bloc reabilitat termic Apartamentul beneficiaza de un living luminos cu parchet si lumina naturala din plin Bucataria este moderna dotata cu electrocasnice si finisata cu gresie de calitate Dormitorul dispune de parchet si vedere catre strada iar baia este amenajata simplu si functional cu dus si gresie in tonuri pastelate Balconul este inchis si ofera spatiu suplimentar de depozitare Locuinta este amplasata intr-o zona urbana bine dezvoltata cu acces rapid la numeroase facilitati Spitalul Pantelimon este situat peste strada statia de metrou Costin Georgian se afla la aproximativ 7 minute de mers pe jos iar Parcul Morarilor este foarte aproape In zona se regasesc de asemenea scoli gradinite restaurante magazine si centre comerciale Apartamentul s...
Apartament cu 3 camere decomandat situat pe strada Prevederii intr-o zona excelent conectata la doar 3 minute de metrou 1 Decembrie 1918 Apartamentul este foarte luminos pe tot parcursul zilei si a fost renovat recent in toamna anului 2025 - Suprafata utila 57 mp - 3 camere - Compartimentare decomandat - Etaj 4 din 8 - Constructie 1975 - Centrala proprie Viessmann clasa energetica A - Apartament luminos - Renovare recenta 2025 Avantaje zona - Scoala nr 92 la 3 minute - Cresa la 2 minute - Metrou 1 Decembrie 1918 la 3 minute - Doua parcuri pentru copii in apropiere - Magazine alimentare in imediata vecinatate - Zona linistita ideala pentru familie Pentru detalii si vizionari 0733 240 997 - George
Apartament 3 camere - 74 mp utili - mobilat complet - Bragadiru / Soseaua Alexandriei Descopera un apartament spatios si primitor situat intr-o zona linistita din Bragadiru la doar cateva minute de Soseaua Alexandriei Construit in 2014 acest apartament de 3 camere situat la mansarda iti ofera tot confortul de care ai nevoie - Suprafata utila 74 mp - Mobilier modern nou - totul pregatit pentru mutare imediata - Bucatarie complet mobilata si utilata - inclusiv cuptor plita si frigider - Baie moderna dotata cu masina de spalat 2 ani vechime - Confort termic centrala proprie si aer conditionat - Loc de parcare disponibil - inchiriat prin administratia cartierului Perfect pentru o familie tanara sau un cuplu care cauta un camin gata de locuit intr-o comunitate linistita si accesibila Vanzare direct proprietar
Apartament 3 camere intr-un imobil boutique - constructie noua 2025 Va propunem spre vanzare un apartament cu 3 camere semidecomandat situat la etajul 1 al unui imobil tip boutique construit in anul 2025 ce ofera intimitate confort si un standard modern de locuire Apartamentul este finisat modern cu atentie la detalii si beneficiaza de -doua balcoane ideale pentru momente de relaxare -centrala termica proprie -instalatii electrice si sanitare noi complet functionale Compartimentarea este practica si aerisita iar lumina naturala pune in valoare spatiile interioare creand o atmosfera placuta si primitoare O locuinta ideala pentru rezidenta sau investitie intr-o constructie noua cu finisaje contemporane si confort deplin Id intern P851
Compania RE/MAX Central va propune spre vanzare un apartament de 3 camere tip duplex situat pe ultimele doua etaje 8 si 9 ale unui imobil modern in zona Tractorul proiectul celor de la Maurer Residence strada Ioan Popasu Compartimentarea este eficienta si bine gandita Etaj 8 doua dormitoare si o baie Etaj 9 living spatios cu bucatarie open-space zona de dining si balcon perfect pentru relaxare Apartamentul este complet mobilat si utilat fiind gata pentru mutare imediata sau pentru investitie inchiriere In plus beneficiaza de boxa la subsol ideala pentru depozitare Locul de parcare poate fi preluat cu contractul de inchiriere actual Avantaje cheie Apartament tip duplex cu scara interioara Ultimele doua etaje - liniste si intimitate Orientare Est Complet mobilat si utilat Balcon Proprietatea este potrivita atat pentru locuire cat si pentru investitie oferind un mix excelent intre confort functionalitate si potential Va invitam cu...
Ramiro Imob va propune spre vanzare un apartament cu 2 camere decomandat Situat la etajul 6 al unui bloc de 8 etaje Imobilul este situat in Berceni zona Nitu Vasile la 8-10 minute de mers pe jos pana la metrou Piata Sudului Decomandat Suprafata 43 mp Pret 70 000 Euro Negociabil Pentru mai multe detalii vizionari sau oferte similare contactati-ma Antonia 0758880813 Comision standard Oferim suport complet in relatia cu banca cu acces la cele mai bune oferte de finantare precum si asistenta notariala la cele mai bune preturi
Blitz va propune sa descoperiti un apartament cu adevarat special situat in inima Timisoarei la doar cativa pasi de Parcul Rozelor - un loc perfect pentru plimbari relaxante sport sau iesiri cu familia Cu o suprafata generoasa de 100 mp acest apartament este ideal pentru cei care cauta spatiu confort si o locatie premium Localizare excelenta Central intr-o zona linistita si verde aproape de toate punctele de interes - transport in comun magazine scoli restaurante cafenele si zone culturale Detalii apartament -3 camere mari si luminoase cu geamuri mari nu jumatati de geam ce ofera o lumina naturala placuta -2 bai complet functionale ideale pentru familii sau pentru confort sporit -Bucatarie mobilata si utilata gata sa gazduiasca mesele in familie sau intalnirile cu prietenii -Demisol inalt - cu izolatie exterioara si fara probleme de infiltratii - uscat curat si bine intretinut -Apartamentul este bine izolat mentinand o temperatura placuta in toat...
Blitz va propune spre vanzare un apartament cu 3 camere decomandat avand o suprafata utila de 68 mp situat in complexul rezidential SUN CITY la etajul 2 Blocul este construit in 2015 pe structura din cadre de beton armat cu pereti din caramida tip GV Apartamentul este format din living doua dormitoare bucatarie separata hol baie si doua balcoane dintre care unul de 5 5 mp este inchis cu termopan Exista posibilitate de mutare imediata Complexul ofera parcare gratuita cu bariera si sistem de supraveghere video In proximitate se afla statie de autobuz si magazine Profi si Kaufland sala de fitness si afterschool Zona este in plina dezvoltare fiind situata la circa 2 5 km de Catedrala Catolica din CUG la 4 5 km de Palas si avand acces facil catre centura Iasi Cod oferta / ID BLITZ P159339 Id intern P159339
Va propunem spre vanzare un apartament situat in cadrul complexului rezidential Palladium Residence localizat la 10 minute de mers pietonal fata de statia de metrou Nicolae Teclu si Centrul Comercial Pallady Zona este in continua dezvoltare caracterizata printr-o comunitate tanara si o atmosfera placuta Ansamblul beneficiaza de acces auto securizat si multiple locuri de parcare Optional viitorii proprietari ai acestui apartament pot decide pentru achizitia unui loc de parcare exterior Ideal pentru cei ce apreciaza absenta vecinilor la etajul superior apartamentul este amplasat la etajul 11 si ofera un nivel ridicat de confort prin spatii generoase compartimentare decomandata si o amenajare realizata cu bun gust Proprietatea se distinge prin atentia acordata detaliilor si prin eficienta in utilizarea spatiului Este complet mobilata si utilata astfel incat viitorii proprietari isi pot aduce doar lucrurile personale - locuinta poate fi locuita imediat Confortul term...
Apartament 2 camere tip studio situat la parter inalt intr-un bloc construit in 2022 Suprafata utila 46 mp Se vinde complet mobilat si utilat gata de mutare Zona bine conectata Carrefour si sala fitness la 2 minute metrou Berceni si transport public la aproximativ 10 minute Auchan sala fitness si Sinsay la 6 minute Pret 91 900 euro Parcari optionale subterana ndash 10 000 euro exterioara ndash 8 000 euro Ideal pentru locuit sau investitie Contact Andrei Iovanescu Numar contact 0739922882
Blitz ofera spre vanzare un apartament cu 2 camere situat in zona Ramiro - Burdujeni la etajul 6 al unui bloc construit in anul 2017 cu lift - Suprafata totala 69 mp - Boxa la subsol 4 mp - Se vinde complet mobilat si utilat dotat cu centrala termica si AC Apartamentul este decomandat si compartimentat astfel - living spatios - dormitor - bucatarie - baie - hol Apartament este luminos si bine intretinut ideal pentru locuit sau investitie cu mutare imediata Pentru mai multe detalii sau pentru a progama o vizionare contactati-ne Zona buna cu acces rapid la magazine transport si alte puncte de interes Cod oferta / ID BLITZ P162186 Id intern P162186
Garsoniera spatioasa cu suprafata utila de 35 mp situata la parterul unui imobil reabilitat termic intr-o zona excelenta din Sectorul 4 pe strada Stanjeneilor in imediata apropiere a centrului comercial Sun Plaza si a statiei de metrou Piata Sudului Proprietatea este ideala atat pentru locuit cat si pentru investitie sau activitate privata - Suprafata utila 35 mp - P/8 - Complet decomandata - Camera mare si luminoasa cu parchet - Bucatarie separata spatioasa - Baie cu cada - Hol generos cu debara - Bloc reabilitat termic Ce veti gasi in zona - Metrou Piata Sudului - Sun Plaza Mall - Statii STB tramvai si autobuz - Magazine restaurante farmacii - Acces rapid catre centrul orasului
Excelenta prin experienta Apartament 4 camere in cartierul Viziru 3 langa spitalul Judetean Compartimentarea interioara este de tip decomandat Apartamentul este la etajul 9 Imobilul in care este amplasat apartamentul are 10 etaje Apartamentul are un living spatios 2 dormitoare 1 birou 1 bucatarie 1 baie se poate amenaja a doua baie 2 balcoane hol intrare si a fost renovat in anul 2020 Proprietarea dispune de toate utilitatile necesare Finisaj interior - parchet gresie faianta vopsea lavabila tamplarie PVC cu geam termopan la ferestre usi interioare din lemn usa intrare metalica Incalzirea se face cu centrala proprie pe gaz si calorifere Apartamentul se vinde mobilat si utilat fara electrocasnice Locuri parcare - in fata blocului Mentionez ca apartamentul nu se vinde cu credit de la banca
VG Real Estate va propune spre vanzare un apartament cu 2 camere situat in zona Aviatiei-Pipera in complexul rezidential premium Cortina North ideal pentru locuinta proprie sau investitie Detalii proprietate -Compartimentare Semidecomandat -Suprafata 49 5 m2 -Construita 61 11 m2 - Etajul 4 - Anul constructiei 2023 - Tipul cladirii bloc nou structura din beton armat Se preda mobilat Electrocasnice sunt incluse Utilitati apa gaz curent electric canalizare internet/cablu TV incalzire prin centrala proprie Avantaje si proximitati Complexul dispune de un centru de wellness complet echipat o centru de fitness complet echipat o piscina interioara o pista de alergare de 1 5 km in incinta complexului o peste 10 000 mp de spatii verzi amenajate o acces securizat 24/7 Accesibilitate o acces rapid catre zona de birouri Aviatiei-Pipera o conexiuni facile catre principalele bulevarde si centrul orasului Puncte ...
Cu siguranta oricine si-ar dori sa locuiasca intr-un imobil nou cu finisaje moderne situat intr-o zona premium a cartierului Gheorgheni la un minut distanta de Iulius Mall si Auchan la cateva minute de FSEGA Baza Sportiva Gheorgheni parcuri spatii verzi si multe alte puncte de interes Constructia noua dispune de facilitati deosebite precum sala de fitness paza umana 24/24 supraveghere video spatii de joaca pentru copii si multe altele VEGO IMOBILIARE va ofera oportunitatea de a locui in acest apartament de 2 camere pozitionat la etajul 1 al unui imobil recent finalizat Locuinta se desfasoara pe o suprafata utila de 44 mp o terasa de 8 mp fiind compartimentata astfel - 1 camera de zi 1 bucatarie open-space - 1 dormitor - 1 baie cu cada - 1 terasa de 8 mp - 1 hol Apartamentul se ofera spre vanzare complet finisat mobilat si utilat conform fotografiilor de prezentare Optional se poate achizitiona si un loc de parcare situat in garajul subteran ...
Apartament cu 4 camere decomandat avand o suprafata de 84 mp situat la etajul 1 din 4 intr-un bloc reabilitat termic situat pe Bulevardului Constantin Brancoveanu langa biserica Huedin restaurant Nasu si Finu Petrom Brancoveanu - Suprafata utila 84 mp - Decomandat - Etaj 1/4 - Bloc reabilitat termic - Boxa la subsol inclusa - ideala pentru depozitare Avantaje zona - Zona linistita si verde - Statii STB in apropiere - Scoli si gradinite - Magazine si facilitati urbane - Acces rapid catre Bd Constantin Brancoveanu Ideal pentru o familie sau pentru investitie Pentru detalii si vizionari 0733 240 997 - George
ID 3C015 Va propunem spre vanzare un apartament cu 3 camere semidecomandat situat la 4 minute de mers pe jos de Bulevardul Alexandru Obregia si de mijloacele de transport in comun Suprafata 68 mp Etaj 4/4 Se preda mobilat-utilat Dispune de loc de parcare Actele sunt pregatite pentru vanzare mutare imediata Comision standard Pret 89 900 euro Pentru mai multe detalii vizionari sau oferte similare contactati-ma Adrian 0770 965 679
Ramiro Imob va propune spre vanzare un apartament cu 3 camere decomandat Situat la etajul 10 din 10 cu etaj tehnic deasupra intr-un bloc reabilitat termic Imobilul este situat intr-o zona bine conectata si accesibila Decomandat Reabilitat termic Suprafata 72 mp Acte pregatite pentru vanzare Pret 78 500 Euro Agent Adrian - 0770 965 679 Comision standard Pentru detalii si vizionari va asteptam cu drag Oferim suport complet in relatia cu banca cu acces la cele mai bune oferte de finantare precum si asistenta notariala la cele mai bune preturi
Va propun spre vanzare un apartament de 2 camere cu o suprafata totala de 57 mp Caracteristici - decomandat - complet mobilat si utilat - loc de parcare inclus in pretul apartamentului - lot 47 - an constructie 2021 - in imediata apropiere a parcului si a viitorului campus scolar - Imobil bine intretinut - Avantaje cheie - se vinde exact ca in poze - mobilat si utilat complet - ideal pentru mutare imediata fara investitii suplimentare Localizare excelenta - apartamentul se afla la cateva minute de transportul public Zona foarte cautata de familii tinere si pentru inchiriere Pret 112 000 EUR Nu ratati ocazia de a locui intr-o zona centrala cu toate facilitatile la indemana Se accepta credite Actele sunt la zi este disponibil imediat Comision standard Aveti nevoie sa obtineti un credit va putem ajuta cu broker gratuit Pentru mai multe detalii vizionari sau oferte similare in zona contactati-ma 0749 080 500 Stefan
Apartament 2 camere situat in Popesti-Leordeni Strada Biruintei la cateva minute de metrou Berceni Suprafata utila 54 51 mp gradina proprie amenajata 58 mp parter imobil construit in 2018 Centrala termica proprie se vinde partial mobilat Loc de parcare cadastrat inclus in pret Ideal pentru locuit sau investitie Contact Andrei Iovanescu Numar 0739922882
București - 31 Ianuarie 2026
130.000 €
Folosim cookie-uri pentru a îmbunătăți experiența ta de navigare pe anunt.net, pentru afișa conținut, reclame și pentru a analiza traficul.