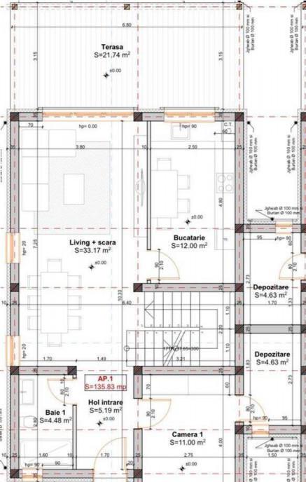
OPORTUNITATE - Duplex separat prin camera tehnica - Zona excelenta - Toate utilitatile Agentia imobiliara PRIMUM are placerea de a va prezenta spre vanzare un duplex superb amplasat in cea mai dinamica zona din Giroc aproape de fiecare punct de interes al zonei Casa are o compartimentare excelenta imbinand perfect utilitatea suprafetelor cu design-ul elaborat si impunator al unui loc pe care il putem numi acasa Casa este dispusa sub forma P E Pod avand 136 mp utili terasa si balcon totul dispus pe un teren generos de 310 mp Compartimentare PARTER hol de acces birou/dormitor camera tehnica baie spatiu de depozitare living generos bucatarie inchisa terasa acoperita de 22 mp ETAJ hol de acces dormitor matrimonial cu dressing baie proprie si balcon 2 dormitoare de 14 mp fiecare baie POD separat prin placa de beton excelent pentru depozitare Acoperisul constructiei este dispus in 4 ape facilitand montarea unor panouri solare Confortul termic se realizeaza prin centrala termica pe gaz cu incalzire in pardoseala existand termostate de ambient in fiecare camera In incinta proprietatii exista 3 locuri de parcare private Pretul locuintei este de 250 000 Euro TVA Se accepta credit Pentru mai multe informatii si pentru o vizionare nu ezitati sa ne contactati
⚠ AtenÈ›ie !
Nu plăti niciodată în avans într-un cont bancar până când nu l-ai întâlnit pe vânzător și ați semnat un acord.
Nu furniza informații confidențiale în discuții pe WhatsApp/Telegram sau alte aplicații de mesagerie unde utilizatorii își ascund ușor identitatea, deoarece te poți expune la fraude sau înșelăciuni.
Nu furniza niciodată detaliile cardului tău bancar (număr, data expirării, CVV). Te expune direct la fraude bancare.
Primirea unui mesaj pe WhatsApp/Telegram cu un ID scanat nu înseamnă că ai identificat cumpărătorul. Acest lucru se face pe loc, când semnați un acord de cumpărare.
Când comanzi online, alege livrarea cu verificare. Pentru un cost relativ mic, te protejezi de eventuale neplăceri.
127969 ZONA EXCELENTA ndash ETAJ 1 ndash LOC PARCARE ndash NEMOBILAT ndash IDEAL PENTRU AMENAJARE SAU INVESTITIE Agentia Imobiliara PRIMUM ndash Timisoara va prezinta spre vanzare un apartament cu 3 camere semidecomandat situat in Giroc la doar cativa pasi de Timisoara intr-o zona linistita curata si foarte accesibila Proprietatea se afla in apropierea principalelor puncte de interes 128652 mijloace de transport in comun bull 127978 supermarketuri si magazine bull 128138 farmacii bull 127979 scoli gradinite si 127795 parcuri 128205 Pozitie excelenta ndash acces rapid catre oras si toate facilitatile Apartamentul este situat la etajul 1 al unui imobil P 2 construit in 2011 intr-un bloc cu regim mic de inaltime si vecini linistiti Cu o suprafata utila de 63 mp o terasa generoasa de 10 mp spatiul este bine compartimentat si functional Hol de acces generos Baie spatioasa Living luminos cu bucatarie open-space ...
Agentia imobiliara PRIMUM are placerea de a va prezenta spre vanzare un duplex deosebit cu 4 camere situat in Giroc intr-o zona linistita si cu acces facil catre Timisoara 128208 Suprafata 101 mp utili terasa de 15 mp pod 127795 Suprafata teren 250 mp 128682 Compartimentare Semidecomandat Compartimentare interioara PARTER - hol de acces - living cu iesire pe terasa - bucatarie inchisa - baie cu dus ETAJ - hol de acces - 2 dormitoare - dormitor matrimonial cu dressing - baie mare cu cada - pod inalt si izolat pentru depozitare 128293 Confort termic sporit centrala proprie cu incalzire in pardoseala clima 18 000 BTU 127968 Duplexul este finalizat si se vinde complet mobilat respectiv utilat conform imaginilor de prezentare 128663 Loc de parcare in fata imobilului respectiv in curte 128736 65039 Finisaje si instalatii - termoizolatie cu polistiren de 10 cm - geamuri tripan tip Salamnder - centrala pe ...
OPORTUNITATE - Duplex separat prin camera tehnica - Zona excelenta - Toate utilitatile - OFERTA LIMITATA Agentia imobiliara PRIMUM are placerea de a va prezenta spre vanzare un duplex superb amplasat in cea mai dinamica zona din Giroc aproape de fiecare punct de interes al zonei Casa are o compartimentare excelenta imbinand perfect utilitatea suprafetelor cu design-ul elaborat si impunator al unui loc pe care il putem numi acasa Casa este dispusa sub forma P E Pod avand 136 mp utili terasa si balcon totul dispus pe un teren generos de 310 mp Compartimentare PARTER hol de acces birou/dormitor camera tehnica baie spatiu de depozitare living generos bucatarie inchisa terasa acoperita de 22 mp ETAJ hol de acces dormitor matrimonial cu dressing baie proprie si balcon 2 dormitoare de 14 mp fiecare baie POD separat prin placa de beton excelent pentru depozitare Acoperisul constructiei este dispus in 4 ape facilitand montarea unor panour...
Agentia imobiliara PRIMUM are placerea de a va prezenta spre vanzare un duplex cu 3 camere si 2 bai amplasat in zona Calea Urseni inainte de centura de SUD Duplexul dispune de 83 5 mp utili terasa fiind dispus pe un teren de 200 mp Compartimentare PARTER hol de acces living bucatarie deschisa baie camera tehnica ETAJ 2 dormitoare baie POD inalt si perfect pentru depozitare Confortul termic se realizeaza prin pompa de caldura cu incalzire in pardoseala Acesta dispune de panouri solare Se accepta credit Pentru mai multe informatii si pentru o vizionare nu ezitati sa ne contactati
Agentia imobiliara PRIMUM are placerea de a va prezenta spre vanzare un apartament cu 2 camere situat la ETAJUL 2 in Timisoara in zona Braytim 128208 Suprafata 62 mp balcon de 5 mp 127970 Etaj 2 din 3 Constructie 2014 128682 Compartimentare Semidecomandat Compartimentare interioara - hol de acces - bucatarie - living - dormitor - baie - balcon generos 127968 Apartamentul se vinde mobilat respectiv utilat conform imaginilor de prezentare 128293 Confort termic centrala proprie cu incalzire in calorifere clima In pretul de vanzare este inclus si un loc de parcare privat Ideal pentru un camin confortabil apartamentul are o compartimentare practica si datorita pozitionarii la ETAJUL 2 9473 imobilul beneficiaza de liniste intimitate dar si acces rapid totodata departe de agitatia de la nivelul solului 128222 Suntem la un telefon distanta pentru detalii suplimentare sau pentru a programa o vizionare Va asteptam cu drag
Casa individuala pe un singur nivel Teren 667 mp Zona Turnisor COMISION 0 Agentia Imobiliara ExpertSibiu va propune spre vanzare cu COMISION 0 o casa individuala situata intr-o zona exclusiv de case si vile in cartierul Turnisor Proprietatea este singur in curte si este construita pe un singur nivel cu regim de inaltime P Pod podul poate fi mansardat Suprafata utila casa aprox 50 mp Suprafata teren 667 mp Front stradal 13 5 m Compartimentare hol cu acces la pod si baie bucatarie camera Imobilul se vinde mobilat si partial utilat Imbunatatiri si dotari centrala termica tamplarie PVC utilitati curent electric apa canalizare gaz curte cu acces auto strada asfaltata si iluminata public pivnita de 23 mp Pret 147 000 Euro negociabil Informatii 0751 775 754 - Ghita COMISION 0
Blitz prezinta o vila de 200mp utili amplasata pe un teren generos de 3100mp cu un front stradal de 33m Casa este compartimentata astfel La parter avem o zona de dining de 14mp fiind un mediu prietenos pentru luat mesa iar bucataria de 12mp semiinchisa va permite sa pregatiti alimente intr-un spatiu generos Livingul de 17mp este locul ideal pentru a petrece timp cu familia si prietenii Baia de serviciu de 4mp este perfecta pentru oaspeti sau pentru uz zilnic La etaj gasim 3 dormitoare ce ofera spatiu generos pentru odihna iar cele 2 bai asigura confortul familiei Placa de beton intre etaje adauga stabilitate si izolare Avand toate utilitatile disponibile gaz apa canalizare curent electric si avand acces la drum asfaltat cu acces rapid catre oras aceasta proprietate este o oportunitate excelenta pentru a va construi viitorul camin Deasemnea marimea casei numarul de camere de bai terenul mai mult decat generos cu o panorama superba acesta proprietate poate si...
Compania imobiliara Apulum94 are placerea sa va prezinte spre vanzare o casa superba construita cu mult bun gust si atentie sporita la detalii Este o cladire frumoasa modernizata interior / exterior cu regim inaltime doar parter in prim plan fata de soseaua Bucuresti - Urziceni ce traverseaa localitatea In pretul casei este cuprins si terenul aferent acesteia in dimensiune de 1837 MP Casa este compartimentata in 5 camere de locuit plus dependinte Casa are pod nu mansarda Casa este racordata la toate utilitatile apa de la put propriu gaz la butelie canalizare prin fosa septica curent electric internet etc Pretul de vanzare este 111 000 EUR negociabil Comision 0 Pentru mai multe detalii despre oferta prezentata sau alte oferte similare astept mesajele dumneavoastra Va astept la vizionare Aurelian Popescu / 0 7 3 3 6 8 3 4 5 6 APULUM94 - Un partener de cursa lunga
REV2003095 SVN Romania va prezinta aceasta vila splendida multifunctionala disponibila pentru vanzare Locatie Exceptionala Vila este situata intr-o zona rezidentiala linistita la doar 10 minute de Casa Presei Libere cu acces facil la mijloacele de transport in comun Aceasta locatie convenabila va ofera acces rapid la diverse facilitati si servicii Spatii Generoase Proprietatea dispune de 4 dormitoare un living spatios debara spatiu de depozitare si 3 bai ceea ce o face potrivita pentru o varietate de utilizari Curte Generoasa Vila are o curte generoasa cu o gradina frumos amenajata zona de gratar barbecue si o terasa in curte oferind un spatiu excelent pentru relaxare si divertisment in aer liber Locuri de Parcare Proprietatea pune la dispozitie pana la 5 locuri de parcare ceea ce este extrem de util intr-o zona urbana Multifunctionala Aceasta vila are potentialul de a servi multiple scopuri fiind potrivita pentru locuinta de familie sediu d...
Vila individuala situata in Otopeni-Zona Ferme la doar cateva minute de zona de Nord Bucuresti la numai 10 minute de statia de metrou de la aeroport si de mijloace de transport in comun Este o zona cu acces usor catre aeroport si oras prin cai principale DN1 si A0 fiind aproape de centre comerciale importante Baneasa Shopping City IKEA Mall Corbeanca etc gradinite scoli private si de stat zone de distractie si agrement Therme Gradina Zoologica bransata la toate utilitatile si finisata cu materiale de foarte buna calitate Imobilul situat in zona Otopeni-Ferme P 1 131mp utili are 4 camere 3 dormitoare 3 grupuri sanitare cu geam la baie 2 balcoane 1 terasa dormitor matrimonial cu baie proprie constructie din caramida si stalpi din beton casa se preda finisata la alb glet Teren 350mp din care amprenta casei este de 67mp din care teren liber in suprafata de 208mp spatiu pentru parcare - 2 auto curte amenajata cu gazon Finisaje -pereti di...
București - 21 Iulie 2025
183.193 €
Atenție
Din motive de securitate și pentru protecția utilizatorilor, această funcționalitate nu este disponibilă pentru locația ta.