Agentia Imobiliara PRIMUM are placerea de a va prezenta spre vanzare 1/2 duplex situat in Mosnita Veche Tipologia este P POD Duplexul este decomandat si are urmatoarea compartimentare hol acces doua dormitoare baie living bucatarie terasa acces in pod Dispune de toate utilitatile posibilitate de personalizare interioara Mai multe detalii telefonic
⚠ AtenÈ›ie !
Nu plăti niciodată în avans într-un cont bancar până când nu l-ai întâlnit pe vânzător și ați semnat un acord.
Nu furniza informații confidențiale în discuții pe WhatsApp/Telegram sau alte aplicații de mesagerie unde utilizatorii își ascund ușor identitatea, deoarece te poți expune la fraude sau înșelăciuni.
Nu furniza niciodată detaliile cardului tău bancar (număr, data expirării, CVV). Te expune direct la fraude bancare.
Primirea unui mesaj pe WhatsApp/Telegram cu un ID scanat nu înseamnă că ai identificat cumpărătorul. Acest lucru se face pe loc, când semnați un acord de cumpărare.
Când comanzi online, alege livrarea cu verificare. Pentru un cost relativ mic, te protejezi de eventuale neplăceri.
Agentia Imobiliara PRIMUM va propune spre vanzare o casa individuala spatioasa si bine compartimentata situata in Ghiroda pe un teren generos de 506 mp Casa are o suprafata utila de 147 mp cu amprenta la sol de 98 mp fiind ideala pentru o familie care cauta confort spatiu si liniste Compartimentare Parter - living generos - bucatarie inchisa camara - 1 dormitor - baie - spatiu de depozitare sub scari - terasa - garaj Etaj - dormitor matrimonial cu baie proprie si balcon - 2 dormitoare - 1 baie suplimentara Alte beneficii - pod izolat cu spuma poliuretanica - incalzire prin calorifere si semineu pe lemne - anexa in curte cu o camera si baie ideala pentru musafiri birou sau hobby - pivnita ideala pentru depozitare - rulouri O proprietate completa perfecta pentru cei care isi doresc o casa bine construita intr-o zona linistita dar aproape de oras Pentru alte detalii sau ...
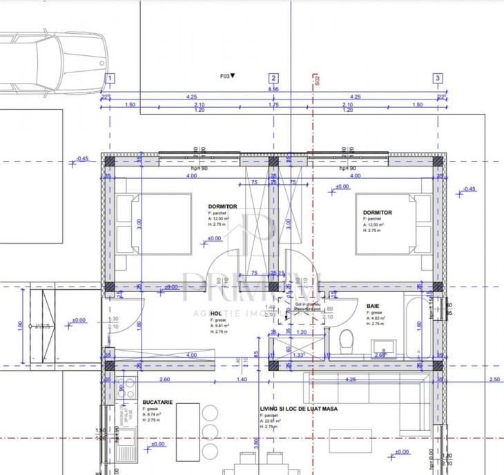
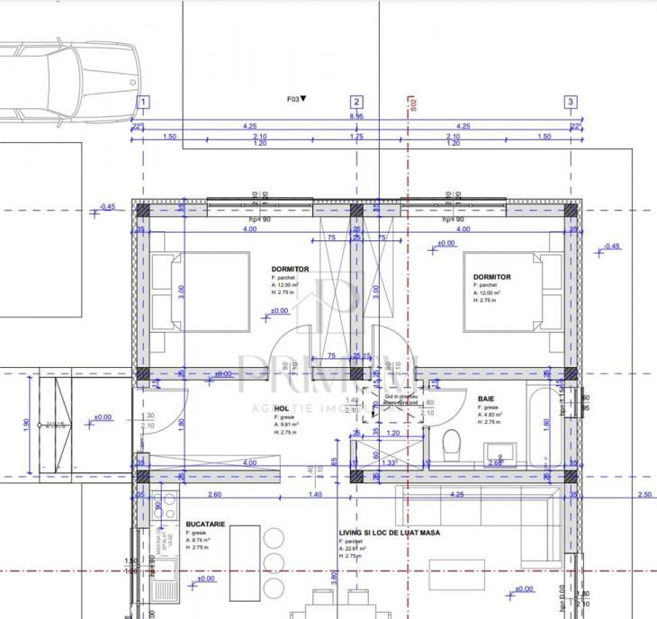
Agentia Imobiliara PRIMUM are placerea de a va prezenta spre vanzare un duplex cu posibilitate de personalizare interioara situat in Mosnita Veche Duplexul este decomandat si are urmatoarea compartimentare Parter hol acces doua dormitoare doua bai living bucatarie terasa Mansarda doua dormitoare baie Dispune de toate utilitatile Pozele sunt cu caracter informativ Stadiul momentan al duplexului este la gri Mai multe informatii telefonic
Agentia imobiliara PRIMUM are placerea de a va prezenta spre vanzare un apartament deosebit cu 3 camere pe doua niveluri situat in DUMBRAVITA Apartamentul este situat aproape de supermarketuri gradinite scoli si mijloace de transport O alegere ideala pentru familii sau pentru cei care cauta confort si liniste dar si acces rapid catre oras Detalii proprietate Suprafata utila 76 34 mp Compartimentare moderna pe doua niveluri Etajul 1 1 dormitor 1 baie Living luminos cu iesire pe balcon Bucatarie Hol generos Mansarda 1 dormitor 1 baie Spatiu pentru depozitare Apartamentul dispune de un balcon ideal pentru relaxare iar in pret este inclus 1 loc de parcare Finisajele sunt de calitate iar compartimentarea ofera intimitate si functionalitate ndash perfect pentru o familie sau pentru cei care doresc un spatiu generos de locu...
Agentia imobiliara PRIMUM are placerea de a va prezenta spre vanzare un duplex mobilat si utilat situat intr-o locatie excelenta din Mosnita Veche Tipologia este P 1 POD Duplexul este decomandat si are urmatoarea compartimentare Parter hol acces baie living bucatarie terasa Etaj doua dormitoare baie acces in pod Duplexul dispune de toate utilitatile curte amenajata Mai multe detalii telefonic
Agentia Imobiliara PRIMUM are placerea de a va prezenta spre vanzare un duplex modern situat in Mosnita Noua Tipologia este P 1 POD Duplexul dispune de o suprafata utila de 100 mp si de un teren de 385 mp Duplexul este decomandat si are urmatoarea compartimentare Parter hol acces dormitor baie living bucatarie terasa Etaj 3 dormitare baie balcon Duplexul dispune de toate utilitatile posibilitate de personalizare interioara
Vila P 1 de vanzare vecinatate selecta strazi linistite si acces facil catre toate zonele centrale Situata intr-o zona foarte apropiata a Bucurestiului unde apar rar proprietati la vanzare aceasta casa noua P 1 imbina rafinamentul arhitecturii moderne cu confortul unui spatiu intim perfect adaptat vietii urbane Parterul gazduieste zona de zi - un living amplu cu ferestre largi ce aduc multa lumina naturala dining bucatarie separata si grup sanitar Etajul este dedicat zonei de noapte cu doua dormitoare spatioase dressing interior minimalist in tonuri calde cu accent pe luminozitate si confort Bai complet echipate cu obiecte sanitare moderne si elemente de design natural Ideala atat pentru rezidenta cat si pentru birou boutique / cabinet privat Muncii str Ronda Popa Nan
Casa de vanzare in Sibiu are 5 camere o suprafata utila 200 mp si suprafata teren 209 mp Separat de acest spatiu exista o terasa Compartimentare - Locuinta are regimul de inaltime P 1 M - Parterul este compus dintr-un hol de acces 2 camere si o baie de serviciu La etaj se gaseste un living spatios si luminos frumos amenajat De asemenea pe langa acesta exista o bucatarie separata o baie o baie de serviciu si un dormitor - La mansarda exista o camera spatioasa si inca un spatiu de depozitare care poate fi transformat cu usurinta intr-o camera incapatoare Avantaje -mobilat si utilat - garaj pentru 2 masini - videointerfon - renovata acoperis nou - poarta automatizata - spatiu de depozitare - zona linistita cu acces facil inspre orasul Sibiu - posibilitatea de a amenaja inca o camera - numeroase puncte de interes in zona - terasa si curte libera Pretul ramane la fel indiferent de modul de plata ID intern 20531
Va propun o vila frumoasa o vila in adevaratul sens al cuvantului cu o configuratie frumoasa cu teren suficient cu o gradina amenajata cu arbori mari cu intimitate utilitati acces din strada asfaltata si toate acestea la cateva minute de Bucuresti Astfel imobilul este la 10 minute de Bucuresti in partea de sud vest in centrul localitatii Clinceni intre Bragadiru si Domnesti Avem un front stradal generos de peste 20ml la asfalt In partea dinspre strada s-au plantat mai multi brazi si arbori decorativi care acum sunt la maturitate Tot aici avem un frumos foisor iar terenul este ornat cu piatra de rau avem deasemenea si alei betonate vila fiind construita in spatele acestei gradini frumos amenajate Constructia este finalizata in 2007 insa desi au trecut 16 ani pare terminata recent deoarece este foarte bine intretinuta si are o configuratie deosebita Avem o casa foarte bine construita grinzile de beton armat groase de 50cm care asigura rezistenta casei si l...
Casa cocheta in centrul orasului - ideala pentru confortul tau Blitz Imobiliare iti ofera o oportunitate unica de a achizitiona o casa situata intr-o zona centrala perfecta pentru cei care isi doresc acces rapid la toate facilitatile orasului fara a renunta la intimitate si confort Detalii proprietate Suprafata utila 80 mp Teren 463 mp Compartimentare o Hol primitor o Living spatios o Bucatarie o Dormitor o Baie o Camara o Antreu o Pivnita - ideala pentru depozitare Curte amenajata Partial pavata cu loc de parcare pentru 3 masini Zona verde cu pomi fructiferi vita de vie si flori Spatiu de depozitare suplimentar Avantajul unei locatii excelente Aproape de banci farmacii spitale In proximitatea scolilor si gradinitelor Acces rapid la parcuri si zone verzi In apropierea restaurantelor si cafenelelor Nu rata aceasta ocazie Programeaza o vizionare si descopera noul tau camin Contacteaza-ne acum ...
escopera confortul si linistea intr-un ansamblu rezidential modern compus din doar 4 case spatioase construite cu grija si atentie la detalii Caracteristici principale 4 camere luminoase living generos 3 dormitoare confortabile 2 bai moderne hol spatios si bucatarie cu acces direct pe terasa ideala pentru momente de relaxare in aer liber Placa de beton cu iesire in consola intre parter si pod oferind spatiu suplimentar de depozitare organizat si practic Teren de 400 mp amenajat cu gazon ingrijit spatiu verde ideal pentru familie si copii plus loc de parcare dedicat Toate utilitatile esentiale asigurate energie electrica gaz metan apa curenta si canalizare ApaVital Finisaje si dotari premium ndash casele se predau la cheie Pardoseli cu parchet laminat de calitate superioara gresie si faianta moderne rezistente si estetice Tamplarie PVC Salamander cu geam termopan pentru izolatie termica si fonica exce...
IaÅŸi - 15 Iulie 2025
139.900 €
Atenție
Din motive de securitate și pentru protecția utilizatorilor, această funcționalitate nu este disponibilă pentru locația ta.