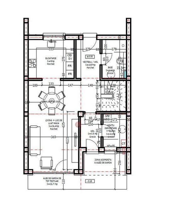
LOCALIZARE Acest imobil face parte dintr-un ansamblu de case insiruite situat in zona Bartolomeu in imediata apropiere de iesirea pe Centura Brasovului Blue Arena Sport precum si a numeroase magazine de cartier In aceasta zona a fost aprobat proiectul pentru construirea de catre Primaria Brasov a unui parc in suprafata de peste 31 000 mp COMPARTIMENTARE Cu regim de inaltime P E vila este dispusa astfel PARTER - holul de acces - living de tip open-space cu acces direct la terasa - zona de dining care este inclusa in zona de zi - bucataria care este deschisa insa optional se poate inchide - baia dotata cu cada si aerisire ventilata - spatiu tehnic ETAJUL Alocat zonei de noapte acesta detine - 3 dormitoare cu suprafete generoase unul dintre ele avand acces la un balcon de tip logie - baia prevazuta cu bideu si cada Pentru oricare dintre bai se poate alege cabina de dus in loc de cada - acces in pod DOTARI - centrala termica - incalzire pardoseala - tamplarie PVC cu geam termopan - doua locuri de parcare in curte - izolatie cu polistiren de 15 cm - tabla faltuita metalica - pereti exteriori caramida de 30 cm - pereti interiori caramida 20 cm Imobilele se afla in faza de constructie la rosu avand termen de finalizare la finalul acestui an IMPREJURIMI Imobilul este situat intr-o zona de vile accesul auto pana in zona de centru a orasului facandu-se in cca 15 minute ACCESIBILITATE Transport public in apropiere FORMA ACHIZITIONARE Se accepta plata prin accesare credit NOTA Informatiile prezentate reflecta situatia reala a proprietatii fara a constitui o oferta contractuala Aceste date au fost obtinute verbal de la titularul de drept al imobilului Structura acestei prezentari nu poate fi reprodusa fara acordul scris al The Seller and Partners
⚠ AtenÈ›ie !
Nu plăti niciodată în avans într-un cont bancar până când nu l-ai întâlnit pe vânzător și ați semnat un acord.
Nu furniza informații confidențiale în discuții pe WhatsApp/Telegram sau alte aplicații de mesagerie unde utilizatorii își ascund ușor identitatea, deoarece te poți expune la fraude sau înșelăciuni.
Nu furniza niciodată detaliile cardului tău bancar (număr, data expirării, CVV). Te expune direct la fraude bancare.
Primirea unui mesaj pe WhatsApp/Telegram cu un ID scanat nu înseamnă că ai identificat cumpărătorul. Acest lucru se face pe loc, când semnați un acord de cumpărare.
Când comanzi online, alege livrarea cu verificare. Pentru un cost relativ mic, te protejezi de eventuale neplăceri.
LOCALIZARE Acest imobil este situat in proiectul Cosmopolit Zenit un ansamblu rezidential modern construit cu atentie la detalii si finisaje de inalta calitate unde design-ul elegant si arhitectura contemporana se imbina perfect Proiectul se afla la intrare in Racadau in imediata apropiere a Centrului Comercial Magnolia COMPARTIMENTARE - Hol de acces care face legatura intre toate incaperile - Zona de zi in care este inclusa bucataria deschisa si o zona de dining cu spatii vitrate mari si acces catre terasa - Bucataria de tip open-space - Dormitorul cu dressing si acces la terasa - Baie cu aerisire ventilata - Terasa ce ofera o priveliste panoramica in suprafata de 25 mp DOTARI - centrala termica pe intregul bloc - tamplarie PVC ferestre cu vitraj termoizolant alcatuite din 3 foi de sticla - termoizolatie exterioara cu vata bazaltica de 15 cm - usa de intrare metalica - incalzire prin pardoseala - parchet stratif...
LOCALIZARE Acest imobil este situat in proiectul Cosmopolit Zenit un ansamblu rezidential modern construit cu atentie la detalii si finisaje de inalta calitate unde design-ul elegant si arhitectura contemporana se imbina perfect Proiectul se afla la intrare in Racadau in imediata apropiere a Centrului Comercial Magnolia COMPARTIMENTARE - Hol de acces care face legatura intre toate incaperile - Zona de zi ce detine o suprafata generoasa de 24 mp si acces catre primul balcon - Bucataria care este inchisa beneficiind de acces catre balconul comun cu zona de zi - Dormitor luminos si spatios avand totodata acees catre cel de al doilea balcon - Baie cu aerisire ventilata - Doua balcoane de tip logie cu o suprafata de 11 10 mp respectiv 4 78 mp DOTARI - centrala termica pe intregul bloc - tamplarie PVC ferestre cu vitraj termoizolant alcatuite din 3 foi de sticla - termoizolatie exterioara cu vata bazaltica de 15 cm - usa de int...
LOCALIZARE Acest imobil este situat in zona Florilor in imediata apropiere a Scolii nr 27 a Centrului Comercial ITC zona beneficiind de numeroase magazine farmacii sala de sport si spatii verzi COMPARTIMENTARE - Chicineta - Camera care este luminoasa - Baia DOTARI - centrala pe bloc - panou radioant - tamplarie PVC cu geam termopan - usa metalica Inchirierea proprietatii se va face cu mobilierul aferent prezentei ofertari Imobilul este situat intr-o zona de vile si blocuri accesul auto pana in zona de centru a orasului facandu-se in cca 7 minute ATRACTII ZONA Magazine restaurante parcuri scoli spitale ACCESIBILITATE Transport public in apropiere NOTA Perioada Minima Inchiriere Acceptata 12 luni Informatiile prezentate reflecta situatia reala a proprietatii fara a constitui o oferta contractuala Aceste date au fost obtinute verbal de la titularul de drept al imobilului Structura acestei prezentari ...
LOCALIZARE Acest imobil este situat in proiectul Cosmopolit Zenit un ansamblu rezidential modern construit cu atentie la detalii si finisaje de inalta calitate unde design-ul elegant si arhitectura contemporana se imbina perfect Proiectul se afla la intrare in Racadau in imediata apropiere a Centrului Comercial Magnolia COMPARTIMENTARE - Hol de acces care face legatura intre toate incaperile - Living-ul in care este inclusa bucataria si o zona de dining detine suprafete vitrate mari si acces catre una dintre terase - Bucataria de tip open-space - Dormitorul 1 cu dressing baie proprie si acces la terasa - Dormitoarele 2 si 3 spatioase si luminoase fiecare beneficiind de acces catre terasa - Baile una dotata cu dus cealalta cu cada ambele cu aerisire ventilata - Patru terase impreuna insumand o suprafata de 99 52 mp DOTARI - centrala termica pe intregul bloc - tamplarie PVC ferestre cu vitraj termoizolant alcatuite din 3 f...
LOCALIZARE Acest imobil este situat in proiectul Cosmopolit Zenit un ansamblu rezidential modern construit cu atentie la detalii si finisaje de inalta calitate unde design-ul elegant si arhitectura contemporana se imbina perfect Proiectul se afla la intrare in Racadau in imediata apropiere a Centrului Comercial Magnolia COMPARTIMENTARE - Hol de acces care face legatura intre toate incaperile - Living-ul cu suprafete vitrate mari si acces catre primul balcon - Bucataria care este inchisa - Cele doua dormitoare spatioase si luminoase ambele beneficiind de acces catre cel de al doilea balcon - Baile una dotata cu dus cealalta cu cada ambele cu aerisire ventilata - Doua balcoane de tip logie fiecare avand o suprafata de aproximativ 7 mp DOTARI - centrala termica pe intregul bloc - tamplarie PVC ferestre cu vitraj termoizolant alcatuite din 3 foi de sticla - termoizolatie exterioara cu vata bazaltica de 15 cm - usa de intrare ...
PYF018B11054 Vanzare Casa individuala Zona Stefan Cel Mare Lizeanu Pret 330 000 Euro ID oferta ID intern PYF018B11054 Echipa Pyf Real Estate va prezinta o Vila individuala de vanzare in zona Stefan cel Mare - Bucuresti reper Lizeanu avand 4 camere si 2 bai suprafata totala construita 93 mp suprafata utila 93 mp si suprafata teren 124 mp si o curtea individuala libera de 30 mp Renovat in 2023 in aceeasi perioada instalatiile electrice si sanitare au fost schimbate Casa avand 3 dormitoare 2 bai si 1 bucatarie Dotari acoperis lindab bucatarie da calorifere da ferestre casa term pvc incalzire casa centrala termica izolatii termice exterior interior pereti faianta lavabil podele parchet gresie tip curte individuala Pretabil locuinta birou locuinta/birou spatiu comercial Se vinde nemobilat/neutilat lasand la indemana cumparatorului sansa de a isi amenanja casa cat si spatiul dupa bunul plac Acces rapid la mijloace de transport in comun met...
Cauti o casa pentru familia ta O investitie de viitor Blitz Imobiliare Timisoara vine in ajutorul tau Intr-una dintre cele mai frumoase zone centrale ale Lugojului unde linistea strazilor vechi se impleteste cu pulsul vietii urbane te asteapta o casa din anii 90 - o constructie solida temeinica facuta sa dureze Ridicata pe un teren de 241 mp casa impresioneaza prin structura sa solida - fundatie si planseu din beton pereti grosi si o dispunere pe subsol etaj si pod oferind atat confort cat si functionalitate Curtea are acces auto pentru doua masini iar anexa tip garaj din spate impartita astazi in trei zone deschide multiple posibilitati spatiu de lucru atelier mic birou sau chiar revenirea la o destinatie comerciala SAD Parterul inalt te intampina cu un antreu generos ce face legatura cu subsolul - format din doua incaperi spatioase perfect pentru depozitare sau un mic wine cellar Tot aici regasim bucataria inchisa o baie cu dus un living am...
Va prezentam o casa deosebita cu peste 200mp utili curte proprie situata la 70 de metri de intrare in Parcul Tineretului Zona deosebit de selecta zona istorica una dintre cele mai frumoase zone din Bucuresti strada general Gheorghe Lupu langa Calea Serban Voda Intrarea in Parcul Tineretului este la cateva case iar la 10 minute de mers pe jos se ajunge la intrarea in Parcul Carol U- Center Tineretului Colegiul Sincai Statia de Metrou Tineretului Statia de Metrou Eroii Revolutiei Casa a fost reconstruita total in 2009 de actualul proprietar in acelasi timp cu vecinul In prezent casa are la etaj - 2 dormitoare si baie mare plus living mare de 33mp hol 16mp terasa de 16mp balcon de 7mp iar la parter - dormitor sau living de 20mp 1 hol de 28mp in care se pot compartimenta usor 2 camere separat de zonele de acces hol langa scara pentru etaj bucatarie mare de 12mp baie mare cu sauna hol acces la garaj si la beci La interior casa este in cond...
Casa este situata in vestul Municipiului Bucuresti la 5 km de Soseaua de Centura DNCB in localitatea Dragomiresti Vale intr-o zona rezidentiala noua Imobilul are structura de rezistenta din beton armat cu fundatii continue placa radier stalpi grinzi cu placa din beton armat peste parter si zidarie portanta din caramida de 25 cm fara pereti de rigips Casa este tip parter si are 143 mp construiti din care 107 mp utili terasa 18 mp si este formata din living bucatarie 3 dormitoare 2 bai dresing hol si terasa Locuinta se izolaeaza termic cu polistiren de 100 mm cu EPS 80 tencuiala decorativa siliconta Peretii interiori se tencuiesc gletuiesc finiseaza si se zugravesc Casa va fi acoperita cu tigla metalica mata de 0 5 mm tamplarie exterioara din PVC cu geamuri tripan Incalzirea centrala termica pe gaze in condensatie de 24 kw si calorifere din otel Optional incalzire in pardoseala Parchetul gresia faianta usile interioare si obiectele sanitare se pot aleg...
Va prezentam un teren intravilan de 315mp in zona Martisor Calea Vacaresti in spate la Casa Memoriala Tudor Arghezi la cateva minute Parcul Lumea Copiilor Strandul Vacaresti Pe teren este construita o casa si cateva anexe Casa mai necesita mici investitii pentru a putea fi locuita Centrala pe gaz este aproape noua In ambele parti ale curtii sunt 2 beciuri de 16mp fiecare fara infiltratii Locatia face acest teren o oportunitate excelenta pentru constructia unei noi case deosebite cu o curte mare si plina de copaci si flori Vecini deosebiti zona fara inundatii Detalii Suprafata 315 mp Deschidere generoasa 24 m Zona L1A - ideala pentru locuinte individuale sau colective mici P 2 h 10 metri Utilizari admise mansardare functiuni comerciale servicii profesionale sau mici activitati manufacturiere max 250 mp ADC Nu ratati ocazia de a cumpara acest teren intr-o zona deosebita cu toate facilitatile la indemana Pentru mai multe detalii Agen...
București - 20 Iunie 2025
368.950 €
Atenție
Din motive de securitate și pentru protecția utilizatorilor, această funcționalitate nu este disponibilă pentru locația ta.