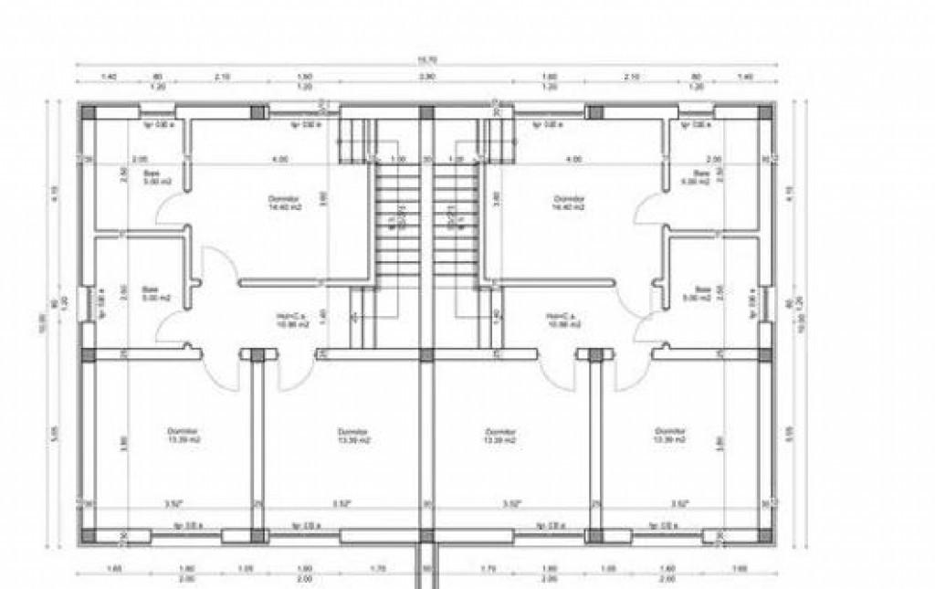
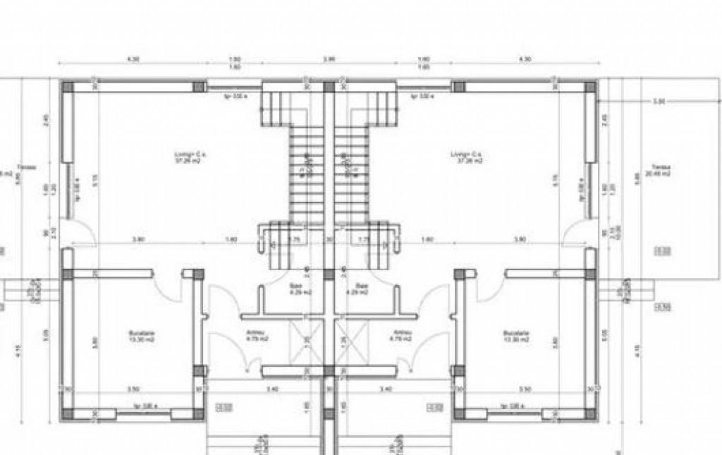
Agentia Acord Imobiliar propune la vanzare 2 case in oglinda tip duplex P 1 construite in zona centrala a localitatii Agigea Casele vor pot fi predate la alb cu toate utilitatile in MAXIM 2 LUNI DE LA SEMNAREA UNUI PRECONTRACT Terenul aferent fiecarei case este de 260mp si este in proprietate Fiecare casa are o suprafata utila de 128mp si sunt compatimentate astfel - la parter living cu iesire in curte bucatarie inchisa baie si antreu - la etaj 3 dormitoare si 2 bai dormitor matrimonial cu baie distincta Casa este construita pe schelet de beton cu pereti exteriori si interiori de BCA cu grosimea de 30cm Planseele dintre etaje sunt realizate din beton armat inclusiv planseul pentru pod Intre case este instalata izolatie antifonica Izolatia exterioara este realizata din polistiren de 8cm Podul are structura din lemn de rasinoase si tigla metalica Wetterbest Podul poate fi folosita si ca spatiu de depozitare Tamplaria PVC este Salamander de tip Streamline AD-76 toate ferestrele fiind echipate cu geamuri tripan de tipul 4 season/ clar/ low Fecare casa are deja terasa ei si loc de parcare in curte Predarea la alb include tencuieli decorative texturate pe plasa de fibra de sticla in culori deschise inclusiv gardul curte amenajata cu gazon si piatra centrala termica pe gaz si calorifere Pretul la alb pentru o casa este 140000 euro acesta putand fi achitat si in doua transe Pretul la cheie este negociabil functie de solicitarile clientului Pentru mai multe detalii rog sa ne contactati
⚠ AtenÈ›ie !
Nu plăti niciodată în avans într-un cont bancar până când nu l-ai întâlnit pe vânzător și ați semnat un acord.
Nu furniza informații confidențiale în discuții pe WhatsApp/Telegram sau alte aplicații de mesagerie unde utilizatorii își ascund ușor identitatea, deoarece te poți expune la fraude sau înșelăciuni.
Nu furniza niciodată detaliile cardului tău bancar (număr, data expirării, CVV). Te expune direct la fraude bancare.
Primirea unui mesaj pe WhatsApp/Telegram cu un ID scanat nu înseamnă că ai identificat cumpărătorul. Acest lucru se face pe loc, când semnați un acord de cumpărare.
Când comanzi online, alege livrarea cu verificare. Pentru un cost relativ mic, te protejezi de eventuale neplăceri.
Agentia Acord Imobiliar va propune spre vanzare un apartament de 3 camere decomandat situat la parterul unui bloc de 10 etaje cu o suprafata de 67mp cu balcon Apartamentul se afla intr-o zona excelenta a orasului Constanta in imediata apropiere a Universitatii Ovidius dispune de scurgere separata 2 bai 2 dormitoare spatioase living bucatarie inchisa si balcon generos din constructia blocului Pentru mai multe detalii va stam la dispozitie la numerele afisate Vizionarea se face pe baza Acordului de vizionare
Agentia Acord Imobiliar va propune spre vanzare un apartament cu 2 camere situat la etajul 5/5 intr- un bloc nou cu lift cu o suprafata utila de 61mp cu balcon dispune de centrala proprie Renovat total Se vinde cum se vede in poze Pentru mai multe detalii nu ezitati sa ne contactati
--Acord imobiliar va propune pt inchiriere pe termen lung un apartament de 2 camere situat pe malul marii la intrare in statiunea Mamaia cu acces rapid spre mare si plaja avand o terasa generoasa cu vedere frontala la mare apartamentul este finisat modern mobilat bucatarie open space dotata cu tot ce trebuie etaj 5 bloc stradal ideal pentru o persoana singura sau o familie tanara recomand vizionare -la 5 minute de parcul si lacul Tabacarie - acces rapid spre city park mall --pe perioada sezonului cald persoana care inchiriaza apartamentul va beneficia si de accesul la piscina privata a blocului --nu se doreste cu animale de companie
Agentia Acord Imobiliar va propune spre inchiriere un apartament situat intr-o zona excelenta a orasului Constanta recent renovat complet 2 camere decomandat etaj 1/10 suprafata 71 mp cu balcon inchis terasa deschisa Apartamentul dispune de centrala pe gaz este mobilat/utilat complet si se inchiriaza pe termen lung Vizionarea se face pe baza acordului de vizionare Pentru mai multe detalii va stam la dispozitie la numerele de telefon afisate
Agentia Acord Imobiliar va propune spre inchiriere/vanzare un studio in zona Mamaia Nord in spatele hotelului Opera Studioul este transformat in apartament cu 2 camere etaj 5/7 suprafata utila 37mp balcon Acesta se inchiriaza complet mobilat finisaje lux Proprietatea reprezinta o oportunitate ideala pentru inchirere pe termen lung implicit perioada verii Pentru mai multe detalii sau pentru vizionare va invitam sa ne sunati la numerele de telefon afisate
Blitz va ofera spre achizitie o casa individuala eleganta conceputa pentru confort si functionalitate La parter veti gasi un dormitor ce poate fi utilizat si ca birou o bucatarie deschisa integrata armonios cu livingul cu optiunea de a inchide bucataria o baie o camera tehnica si un dressing spatios Din living accesul catre o terasa generoasa completeaza perfect atmosfera de relaxare La etaj sunt amplasate trei dormitoare fiecare cu acces catre o terasa proprie oferind intimitate si spatiu pentru momentele de respiro Dormitorul matrimonial impresioneaza printr-un dressing generos Intreaga locuinta este incalzita pe gaz si beneficiaza de incalzire in pardoseala asigurand un confort termic superior Cod oferta / ID BLITZ P142625 Id intern P142625
Descoperiti aceasta proprietate amplasata pe strada Deltei din Sebis Imobilul este situat pe un teren generos de 491 mp avand doua fronturi stradale ceea ce ofera multiple posibilitati de acces si utilizare Descrierea proprietatii Demisol -2 garaje spatioase -2 magazii -1 incapere dedicata depozitarii diverselor articole Parter -Sufragerie primitoare -2 camere -Bucatarie cu camara pentru alimente -1 baie -2 balcoane care ofera un spatiu suplimentar de relaxare Mansarda -3 dormitoare luminoase -1 baie -1 balcon Proprietatea este construita la stadiul la gri la demisol si la rosu la parter si etaj insa exteriorul este complet finalizat Aceasta va ofera ocazia sa personalizati interiorul conform preferintelor dumneavoastra Detalii suplimentare Acoperisul este realizat din tigla de calitate asigurand durabilitate Utilitatile sunt urmatoarele - curent monofazic si trifazic apa canalizare la strada Aceasta casa reprezinta o oportu...
Blitz ofera spre vanzare o casa individuala pozitionata in Jucu de Mijloc ferita de zgomotul si poluarea orasului dotata cu facilitatile unei zone rezidentiale moderne Proprietatea este construita in 2022 are suprafata utila de 120mp peretii din caramida cu izolatie exterioara geamuri si usi la intrare din termopan Imobilul este dispus pe doua niveluri P E P avand urmatoarea compartimentare P hol bucatarie spatioasa living baie de serviciu garaj 2 terase E 3 dormitoare 2 balcoane 2 bai dintr-una de poate face dressing Podul se poate folosi ca spatiu de depozitare Se vinde la stadiul de semifinisat cu sapa pereti gletuiti instalatii la pozitie centrala termica pe gaz incalzire in pardoaseala la parter si calorifere la etaj Terenul aferent casei este de 603 mp TVA INCLUS Cod oferta / ID BLITZ P106557 Id intern P106557
Va propunem spre vanzare o vila situata central in zona Parc Carol pe strada Mitropolit Grigore Proprietatea a fost construita in anul 2007 si este formata din P 1E M are o suprafata de 406 mp pe un teren de 227mp iar curtea libera are o suprafata de 80mp Parterul casei este format din living camera bucatarie baie camera tehnica debara si hol Etajul 1 este format din 5 camere 2 bai hol si balcon Mansarda este formata din 2 camere bucatarie baie balcon si o generoasa terasa de 46 65mp Structura de rezistenta este integral din beton armat stalpi grinzi cadre inclusiv grinzile acoperisului Zidurile sunt din BCA grosime de 25 cm cu termosistem exterior polistiren 8 cm iar interiorul este placat cu gips carton si vata minerala Peretii despartitori sunt din gips carton structura de 100mm dublu placati cu vata minerala Acoperisul are o izolatie dubla cu polistiren de 8 cm si vata bazaltica de 10 cm si placare dubla cu gips carton anti-foc ...
Case parter si pod cu placa de beton direct de la proprietar independente pe teren cu suprafata de 350mp 88mp cota drum servitute in zona frumoasa si linistita Utilitati gaze naturale curent electric canalizare si apa curenta Casele dispun de living cu bucatarie open space 3 dormitoare 2 grupuri sanitare mobilate si utilate placa de beton peste parter centrala cu gaze parchet gresie faianta tamplarie salamander 6 camere tripan cu sticla 44mm low-e 4 anotimpuri izolatie termica de 10cm realizata cu polistiren EPS 80 Casele se predau la cheie cu toate finisajele incluse Acceptam plata prin credit ipotecar sau prima casa si oferim sprijin in vederea obtinerii acestuia
Ilfov - 23 Mai 2025
125.000 €
Atenție
Din motive de securitate și pentru protecția utilizatorilor, această funcționalitate nu este disponibilă pentru locația ta.