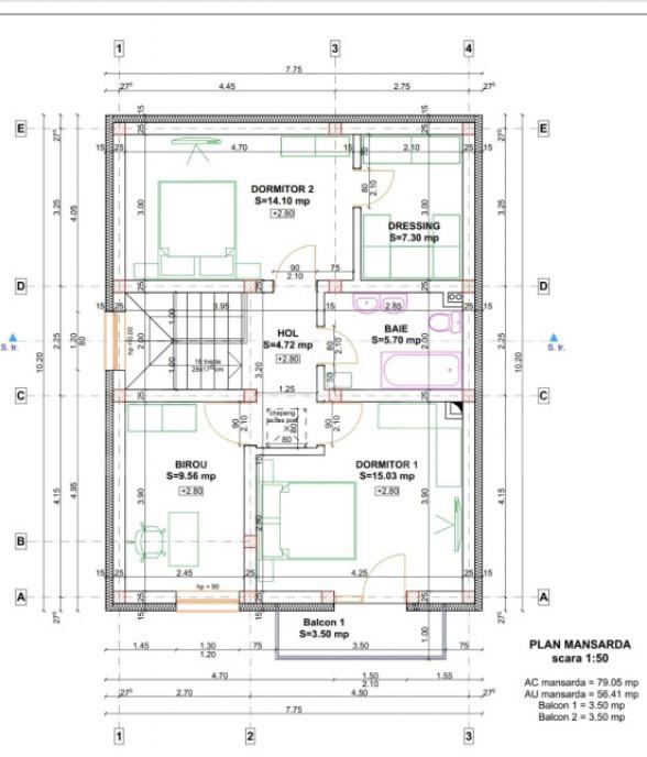
Blitz propune spre vanzare o proprietate rara pe piata finalizata in 2025 situata la doar 6 km de Targoviste Spre deosebire de proiectele dezvoltate strict in scop comercial aceasta locuinta a fost ridicata cu regim de construire pentru uz personal beneficiind de o atentie sporita la fiecare etapa a executiei Detalii de structura si constructie Aceasta proprietate se distinge prin rigoarea tehnica si calitatea materialelor utilizate fiind gandita sa asigure siguranta si durabilitate pe termen lung Structura de rezistenta Realizata fara rabat de la proiect cu o armare a betonului peste medie si zidarie din caramida de inalta densitate Izolatie si eficienta Acoperis din tigla metalica de calitate superioara si sisteme de termoizolatie care asigura un consum redus de energie Instalatii premium Utilitati complete apa gaz curent canalizare executate cu materiale de top garantand fiabilitatea sistemelor pe termen lung Confort si dotari moderne Incalzire in pardoseala Implementata pe toata suprafata utila a casei pentru un confort termic superior si o distributie uniforma a caldurii Posibilitate de personalizare Interiorul este pregatit pentru ultimele finisaje oferind viitorului proprietar libertatea de a alege gresia faianta parchetul si culorile peretilor Spatii exterioare O terasa generoasa si doua balcoane cu vedere deschisa catre natura ideale pentru momente de liniste si aer curat Localizare si teren Teren Suprafata de 500 mp potrivita pentru amenajarea unei gradini sau a unui spatiu de relaxare privat Amplasament Situata pe o strada linistita cu trafic redus oferind acces rapid catre Targoviste 7-10 minute dar pastrand avantajele locuirii intr-o zona verde si curata Avantaje principale Constructie noua 2025 cu documentatie completa Sistem de incalzire modern si performant Control total asupra calitatii finisajelor finale Toate utilitatile racordate Pret 155 000 euro Aceasta casa reprezinta o alegere sigura pentru cineva care cauta o locuinta solida construita responsabil unde calitatea executiei structurale a fost prioritatea numarul unu Pentru detalii suplimentare si programarea unei vizionari va stam la dispozitie Cod oferta / ID BLITZ P157620 Id intern P157620
⚠ AtenÈ›ie !
Nu plăti niciodată în avans într-un cont bancar până când nu l-ai întâlnit pe vânzător și ați semnat un acord.
Nu furniza informații confidențiale în discuții pe WhatsApp/Telegram sau alte aplicații de mesagerie unde utilizatorii își ascund ușor identitatea, deoarece te poți expune la fraude sau înșelăciuni.
Nu furniza niciodată detaliile cardului tău bancar (număr, data expirării, CVV). Te expune direct la fraude bancare.
Primirea unui mesaj pe WhatsApp/Telegram cu un ID scanat nu înseamnă că ai identificat cumpărătorul. Acest lucru se face pe loc, când semnați un acord de cumpărare.
Când comanzi online, alege livrarea cu verificare. Pentru un cost relativ mic, te protejezi de eventuale neplăceri.
Blitz propune spre vanzare un apartament de tip penthouse de 3 camere decomandat in zona Torontalului o zona in plina dezvoltare si cu multe facilitati in apropiere avand supermarket-uri benzinarii Iulius Town si alte beneficii Apartamentul se afla la etajul 3 etaj retras Este compartimentat practic si inteligent living bucatarie 2 dormitoare 2 bai cu o suprafata de 82mp utili si o terasa superba de 70 mp Va asteptam la vizionare Cod oferta / ID BLITZ P94376 Id intern P94376
BLITZ va propune spre vanzare un apartament modern excelent compartimentat ideal pentru familii sau investitie o 2 dormitoare spatioase o Living luminos o Bucatarie inchisa o Terasa pentru momente de relaxare Localizare excelenta cu acces facil la mijloace de transport parc cu loc de joaca privat scoli si gradinite in apropiere In plus apartamentul se afla la cativa pasi de Iulius Mall si Aquapark Amazonia oferind un stil de viata confortabil si activ Acest apartament imbina perfect functionalitatea confortul si avantajele unei locatii premium Contactati-ne pentru mai multe detalii si pentru a programa o vizionare Cod oferta / ID BLITZ P153059 Id intern P153059
Blitz va propune spre inchiriere un penthouse deosebit cu 4 camere de 110 mp 120 mp terasa amenajata Acest apartament este situat in Buna-Ziua in complexul rezidential Bonjour residance Apartamentul se inchiriaza mobilat si utilat mai putin un dormitor care se poate mobila la cerere Apartamentul este compartimentat astfel - un living mare de 40mp openspace cu bucataria si loc de luat masa -un dormitor matrimonial cu baie proprie un dormitor cu o canapea extensibila un dormitor/birou momentan nemoibilat o baie principala un hol mare -o terasa de 120mp cu pergola retractabila si loc de luat masa plus diverse spatii de depozitare Tot mobilierul si toate electrocasnicele sunt de foarte buna calitate aer conditionat plita cu inductie hota cuptor electric masina de spalat vase masina de spalat rufe cu uscator frigider In pret este inclus un loc de parcare in garajul subteran cu priza pentru incarcare masina si separat se mai pot inchiria doua locuri subterane ...
Blitz Imobiliare va propune spre vanzare un apartament cochet situat intr-o zona extrem de apreciata din cartierul Grigorescu intr-o casa cu curte comuna ideal pentru cei care isi doresc liniste intimitate si acces rapid catre oras Suprafata utila 52 mp Compartimentare semidecomandata Loc de parcare inclus Apartamentul se vinde mobilat si utilat fiind pregatit pentru mutare imediata Beneficiaza de bucatarie functionala baie cu geam pentru aerisire naturala spatii bine organizate atmosfera intima specifica locuintelor la casa Zona este recunoscuta pentru liniste si aer curat fiind retrasa de la traficul intens vecinatati de case cu un nivel ridicat de confort si siguranta acces rapid catre parcuri malul Somesului si zone de recreere apropiere de magazine servicii scoli si gradinite conexiuni rapide catre centrul orasului si principalele puncte de interes Aceasta proprietate este ideala atat pentru locuinta personala cat si pe...
Apartament de 2 camere in zona Torontalului e o zona in plina dezvoltare si cu multe facilitati in apropiere avand supermarket-uri benzinarii Iulius Town si alte beneficii Apartamentul este situat intr-un bloc nou avand o suprafata de 52 15 mp plus o gradina de 19 mp compartimentat astfel living cu acces pe balcon dormitor baie cu cada si bucatarie Locul de parcare este inclus in pret In aceast bloc exista mai multe variante de apartamente cu 2 camere respectiv 5 variante cele de la parter beneficiaza si de gradina de minim 19 mp Va recomand sa le descoperim impreuna Cod oferta / ID BLITZ P6070 Id intern P6070
REV2002098 SVN Romania va propune spre vanzare o vila cu o suprafata utila de 150 mp plus terasa si o curte superb amenajata de 400 mp in zona Mogosoaia- Crevedia Casa este racordata la utilitati si este disponibila imediat Principalul avantaj privind achizitionarea unei locuinte in zona este zona linistita departe de agitatia orasului cu acces facil catre oras Centrul comercial Baneasa Mall aflat la numai 15 minute de mers cu masina si 30 min de Piata Romana Proximitatea padurilor parcurilor si lacurilor va ofera un trai linistit cu aer curat ideal pentru cresterea copiilor Accesul la gradinite si scoli private proximitate de policlinica scoli Supermarket si Centre Comerciale Casa dispune de un living generos de 42 mp cu bucatarie open space ce poate fii inchisa si iesire pe terasa amenajata 3 dormitoare dressing 2 bai si multiple spatii de depozitare Casa se vinde la cheie complet finisata cu materiale de cea mai buna calitate Certificatul energe...
Ansamblu cu 340 de locuinte intr-un proiect gandit pe termen lung Ai visat la o casa cu curte intr-un cartier nou bine organizat si cu toate utilitatile Tocmai a inceput dezvoltarea unui proiect rezidential amplu ce va include 340 de case construite in etape Acum este in desfasurare prima faza cu 40 de case disponibile 3 tipuri de case - confort adaptat nevoilor tale Parter 3 camere - ideal pentru cupluri sau familii la inceput de drum Parter 4 camere - mai mult spatiu totul pe un singur nivel Parter Etaj 4 camere - compartimentare inteligenta si zona de zi separata de zona de noapte Terenurile variaza intre 320 si 500 mp oferind spatiu pentru relaxare gradina sau loc de joaca pentru copii Dotari incluse in pret Incalzire prin pardoseala in toata casa Placa de beton peste parter/etaj - constructie solida Finisaje moderne cu optiunea de personalizare daca rezervi din timp proiect rosu sau alb Apa din reteaua publica Curte amenajata cu gazon si sistem de ...
Excelenta prin experienta Refugiul perfect la doar 1 minut de DN ndash O casa care nu e doar locuinta ci un stil de viata Intr-o oaza de liniste si verdeata in inima unei comunitati civilizate si discrete din Gulia te asteapta o proprietate rara care imbina confortul functionalitatea si acel sentiment profund de bdquo acasa Aceasta casa impunatoare cu o suprafata totala de 293 mp nu este doar spatioasa ndash este inteligent gandita Cele 5 camere luminoase sunt completate de 4 incaperi suplimentare ideale pentru depozitare dressinguri generoase sau chiar birouri oferind flexibilitate maxima in amenajare Cele 3 grupuri sanitare asigura confortul unei familii moderne active La exterior ai parte de un spatiu care inspira si relaxeaza o terasa de 30 mp ideala pentru dimineti linistite cu cafeaua in mana sau seri petrecute in compania celor dragi Curtea de 483 mp perfect echilibrata intre verde si functional ofera intimitate si potential pentru gradina l...
Pelican Imobiliare vinde un imobil spatios si elegant ideal pentru locuinta permanenta sau pensiune turistica Localizare excelenta - in centru chiar pe strada Principala Teren generos - 3 108 MP cu 23 5 M deschidere stradala Casa spatioasa - 202 MP formata din - 3 dormitoare - Living generos - Bucatarie mare - deschisa - 2 sali mari multifunctionale - 2 bai moderne - Beci din piatra naturala Constructie mixta chirpic BCA extinsa si renovata integral in 2014 Se vinde mobilata si utilata complet exact ca in fotografii - amenajata cu mult bun gust In curte garaj cu terasa si magazie Perfecta pentru Locuinta de familie Investitie intr-o pensiune sau casa de vacanta Disponibila exclusiv la Pelican Imobiliare Viziteaza-ne pe Str Isaccei Nr 57 Bloc Pelican etaj Suna acum si programeaza o vizionare pelican-imobiliare ro Profesionisti Id intern P183225
Tulcea - 10 Iulie 2025
130.000 €
Atenție
Din motive de securitate și pentru protecția utilizatorilor, această funcționalitate nu este disponibilă pentru locația ta.