BLITZ ofera spre vanzare o proprietate unica in piata romaneasca prin modalitatea de constructie certificata de cel mai recunoscut organism din domeniu Passive House Germania Casele sunt construite la standardul de case pasive nu au nevoie de gaz si costurile de incalzire si racire sunt mai mici cu 95 in comparatie cu o casa normala Standardele de eficienta energetica se estimeaza a fi introduse abia in 2050 si vor fi punctul de plecare pentru independenta energetica Sistemul SMART HOME aduce inovatie din interior spre exterior Sistem de iluminare wireless sisteme de reglare temperatura control acces proprietate precum si utilizarea robotilor de curatenie asigura un confort unic Sistemul Smart de udare a gradinii care se adapteaza in functie de specificul vremii Toate curtile au fost amenajate astfel incat sa necesite aproape zero mentenanta Casa dispune de 2 locuri de parcare exterioare cu statie de incarcare masini electrice curte amenajata ultramodern cu gazon si plante de gradina automatizare smart pentru irigatii si roboti pentru tunderea gazonului terasa spate amenajata si jardiniere cu sistem de irigare smart individual Compartimentare PARTER hol intrare grup sanitar camera tehnica living si bucatarie un spatiu deschis de 70 mp ETAJ hol casa scarii 3 dormitoare spatioase 1 birou 2 bai dressing si baie proprie pentru dormitorul matrimonial Imobilul face parte dintr-un ansamblu ce reprezinta un etalon in ceea ce priveste sustenabilitatea eficienta integrarea tehnologiei si grija fata de mediu prin asimilarea in constructia lor a peste 95 din materialele folosite de origine naturala iar tehnicile de constructie de la fundatie pana la ultimele detalii de finisaje au in vedere sanatatea locatarilor Mai mult se folosesc materiale absorbante pentru chimicale toxice care pot proveni din mobilarea casei se genereaza un control suplimentar asupra calitatii aerului interior Va invitam sa descoperiti un nou mod de a locui SMART si SANATOS CASA ESTE IN CURS DE FINISARE astfel incat pretul final se modifica in functie de evolutia lucrarilor Totodata pretul afisat nu include TVA Cod oferta / ID BLITZ P2583 Id intern P2583
⚠ AtenÈ›ie !
Nu plăti niciodată în avans într-un cont bancar până când nu l-ai întâlnit pe vânzător și ați semnat un acord.
Nu furniza informații confidențiale în discuții pe WhatsApp/Telegram sau alte aplicații de mesagerie unde utilizatorii își ascund ușor identitatea, deoarece te poți expune la fraude sau înșelăciuni.
Nu furniza niciodată detaliile cardului tău bancar (număr, data expirării, CVV). Te expune direct la fraude bancare.
Primirea unui mesaj pe WhatsApp/Telegram cu un ID scanat nu înseamnă că ai identificat cumpărătorul. Acest lucru se face pe loc, când semnați un acord de cumpărare.
Când comanzi online, alege livrarea cu verificare. Pentru un cost relativ mic, te protejezi de eventuale neplăceri.
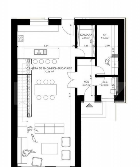
Blitz iti prezinta un apartament de 3 camere situat la etajul 1 din 4 cu 2 bai boxa la subsol si loc de parcare inclus in pret Suprafata utila 77 mp mobilat superb complet renovat -- pregatit sa devina acasa Localizare excelenta zona bine conectata aproape de magazine scoli mijloace de transport Finisaje moderne mobila de calitate ambient elegant Spatiu generos ideal pentru familie sau pentru cei care vor mai mult confort Pentru detalii si vizionari contacteaza-ne Cod oferta / ID BLITZ P154315 Id intern P154315
Blitz va ofera un apartament de 4 camere 80 mp cu beci in zona Paltinisului Situat la parterul blocului avand interfon Compartimentarea apartamentului 4 camere 2 dormitoare 1 baie 1 bucatarie 2 holuri Apartamentul este luminat din 2 parti Apartamentul necesita renovare Pentru mai multe detalii sau o vizionare Cod oferta / ID BLITZ P142731 Id intern P142731
Blitz propune spre vanzare un apartament tip penthouse amplasat intr-un bloc rezidential nou intr-o zona centrala a orasului Arad Este o proprietate cu adevarat rara cu o suprafata totala de aproximativ 300 mp in urma etajarii complete si o terasa deschisa de 25 mp cu orientare pe trei laturi si priveliste panoramica Apartamentul se afla la rosu ceea ce ofera viitorului proprietar libertatea de a amenaja si finisa spatiul dupa propriul stil si gust transformandu-l intr-o locuinta exclusivista Detalii si avantaje Suprafata totala aprox 300 mp Terasa generoasa 25 mp cu vedere ampla asupra orasului Orientare pe 3 parti cu lumina naturala pe tot parcursul zilei Lift cu acces direct la usa apartamentului Locuri de parcare disponibile in garajul subteran Bloc rezidential nou cu supraveghere video si standarde moderne Pozitionarea centrala suprafata impresionanta si posibilitatea de a personaliza complet designul fac din acest penthouse o alegere ideala pen...
Apartament de 2 camere in zona Torontalului e o zona in plina dezvoltare si cu multe facilitati in apropiere avand supermarket-uri benzinarii Iulius Town si alte beneficii Apartamentul este situat intr-un bloc nou avand o suprafata de 52 15 mp plus un balcon de 3 24 mp compartimentat astfel living cu acces pe balcon dormitor baie cu cada si bucatarie Locul de parcare nu este inclus in pret In aceast bloc exista mai multe variante de apartamente cu 2 camere respectiv 7 variante cele de la parter beneficiaza si de gradina de minim 50mp Va recomand sa le descoperim impreuna Cod oferta / ID BLITZ P6070 Id intern P6070
Blitz va prezinta un apartament de 3 camere intr-un bloc de 6 etaje finalizat situat la parter inalt la demisolul blocului este amenajata parcarea Apartamentul se preda la stadiul de cheie cu materiale pe care viitorii clienti le aleg TVA-ul de 9 si locul de parcare suprateran este inclus in pretul apartamentului Se pot achizitiona suplimentar boxe la subsolul blocului Compartimentarea Camera de zi 18 7 m2 Bucatarie 10 05 m2 Dormitor 1 12 90 m2 Dormitor 2 12 70 m2 Baia mare 5 00 m2 Baia mica 3 55 m2 Logie 13 4 m2 Apartamentul beneficiaza de Loc de parcare Usa metalica de acces Usi interioare Gresie si faianta la alegerea clientului Parchet la alegerea clientului Obiecte sanitare la alegerea clientului Prize si intrerupatoare PVC Salamander cu geam termopan Low-E cu 3 foi de sticla si 5 camere Glafuri interior-exterior Centrala proprie in condensare Saunier Duval senzor de gaz Distribuitor pentru instalatia de incalzire Incalzire in pa...
Comision cumparator 0 ASCENDENT IMOBILIARE COVASNA va prezinta o bucatica din bucuria vietii la Arcus Casa cocheta construita in 2023 la 10 km de orasul Sfantu Gheorghe Aceasta adorabila locuinta structurata pe trei niveluri respectiv S P M construita cu atentie la detalii este o adevarata bijuterie in inima pitoreasca a localitatii Amplasata pe un teren incantator cu o suprafata de 804 metri patrati ofera un echilibru perfect intre confortul modern si farmecul rustic al mediului rural La parter veti gasi un spatiu generos de zi luminos si primitor ideal pentru momente de relaxare alaturi de familie si prieteni Bucataria este amenajata cu gust si utilata complet fiind locul perfect pentru a va incanta papilele gustative cu preparate delicioase Etajul superior gazduieste dormitoarele fiecare amenajat cu atentie la detalii pentru a oferi confort si intimitate Dormitorul principal impresioneaza prin spatiul sau generos oferindu-va un refugiu perfect...
Blitz va propune spre vanzare doua unitati locative de 4 camere intr-un duplex situat in cartierul Iris Imobilul se vinde in stadiu de semifinisat si este dispus pe un regim de inaltime P E M Zona este linistita aproape de parcuri O unitate locativa dispune de o suprafata utila de 170 mp utili plus balcon si un teren cu o suprafata de 200 mp Compartimentarea interioara este compusa dupa cum urmeaza -Parter hol intrare living cu bucatarie open space camara baie -Etaj dormitor matrimonial cu dressing un dormitor o baie hol si un balcon -Masarda dormitor matrimonial cu dressing un dormitor o baie hol si balcon Casa e construita cu caramida Porotherm 30 Robust este izolata polestiren de 10 cm iar la masarda cu spuma 10-15cm Se preda in stadiul semifinisat la interior cu peretii gletuiti sapa tamplarie PVC Rehau 3 sticle 4 season incalzire in pardosea la parter etaj masarda instalatii electrice si sanitare trase pe pozitii iar la ext...
parcare Comision 0 de la cumparator Direct dezvoltator Complex prietenos de vile insiruite pentru familii care isi doresc intimitatea si linistea cu acces numai pentru locatari sau vizitatori Complexul dispune de unitati locative cu 3 si 4 camere Casele vor fi predate finisate la gata si racordate la utilitatile orasului - Finisaje de calitate superioara incalzire in pardoseala doua placi de beton inclusiv placa de beton peste etajul 1 izolatie exterioara de 10 cm curte proprie terasa 2 locuri de parcare/pentru fiecare casa 3 bai dormitor matrimonial cu baie proprie si dressing - Curte privata Pret vanzare 160000 euro pentru casele cu 3 camere curte terasa si 2 locuri de parcare si 180000 euro pentru casele cu 4 camere curte terasa si 2 locuri de parcare Va asteptam cu drag sa ne contactati atat pentru detalii cat si pentru vizionari si sa te putem ajuta sa-ti cumperi locuinta mult visata
Koncept Imobiliare va ofera spre vanzare case individuale semifinisate in comuna Jucu Cluj Fiecare casa are o suprafata utila de 145 mp si este compusa dintr-un living cu bucatarie open-space 3 dormitoare 3 bai si terasa acoperita Dispune de 350 mp de teren amenajat cu pavaj 2 locuri de parcare si cota parte din drumul de acces Se preda la stadiul de semifinisat cu centrala proprie incalzire in pardoseala si geamuri tripan Imobilul detine CF iar la pret se adauga TVA Recomandam acest imobil pentru o familie care cauta o casa spatioasa si de calitate care se afla intr-o zona linistita totodata accesibila Exista posibilitate de vanzare la cheie contra cost Pentru informatii suplimentare programarea unei vizionari sau pentru a afla oferta noastra completa nu ezitati sa ne contactati telefonic prin e-mail sau la sediul agentiei noastre de pe str Aviator Badescu nr 19 Cluj-Napoca Id intern P16657
Ultima unitate disponibila Esti in cautarea unei locuinte cu o suprafata generoasa si optim compartimentata amplasata intr- o zona linistita dar cu acces facil catre oras Bine ai venit la Fashion House Villas 2 Complexul de case se afla la 11 km 12 minute de condus fata de statia de metrou Anghel Saligni in imediata vecinatatate a complexului comercial Fashion House Outlet Centre Pallady 3 km Casele se predau complet finisate Specificatii tehnice generale/dotari - zidarie exterioara si compartimentari interioare caramida tip Porotherm - geamuri termopan profil PVC 7 3 foi de geam tripan Low E Salamander - termoizolare cu polistiren 10 cm tencuiala decorative texturata decorativa/placare material textura lemn -centrala termica in condensatie - incalzire prin pardoseala - placari ceramice - parchet - obiecte sanitare - usa metalica acces - curti imprejmuite gard panouri beton tabla perforata - parcaje amenajate -porti metalice auto s...
Ilfov - 6 Mai 2025
150.000 €
Atenție
Din motive de securitate și pentru protecția utilizatorilor, această funcționalitate nu este disponibilă pentru locația ta.