ID EXP530 Compania imobiliara iNEX eXp va ofera spre v acirc nzare o casa parter cu 4 camere situata icirc n zona centrala din Bradu icirc ntr-un cadru natural aerisit ferit de agitatie si zgomot dar bine conectat la viata orasului Proprietatea este amplasata pe un teren de 400 mp si urmeaza sa fie construita icirc n anul 2026 fiind predata la cheie Casa beneficiaza de o compartimentare practica si functionala compusa din living bucatarie 3 dormitoare dressing 2 bai terasa precum si pod cu suprafata de aproximativ 100 mp Imobilul se preda icirc mprejmuit bransat la toate utilitatile iar finisajele interioare sunt alese de catre proprietar icirc n limita unui buget prestabilit Termen de predare iunie 2026 Mentioneaza cand ne suni ID EXP530 si site-ul unde ati vazut anuntul Ne puteti suna NON STOP in functie de disponibilitate raspundem la orice ora - La achizitionarea imobilului cu credit Noua Casa/imobiliar/ipotecar primiti asistenta GRATUIT la realizarea dosarului bancar Nu ne asumam raspunderea pentru greselile de afisare sau erori ale sistemelor informatice care pot afecta oricare dintre informatiile furnizate Informatiile schitele preturile si imaginile prezentate in acest anunt au scop pur informativ si nu au caracter angajant de orice natura si pot suferi modificari Pentru o informare exacta asupra situatiei unui imobil sau a stocului existent va rugam sa solicitati informatii exacte de la brokerul imobiliar care reprezinta proprietarul In unele situatii la contructiile noi de la dezvoltator pretul afisat este fara TVA in functie de caz TVA este de 0 sau 21 Id intern EXP530
⚠ AtenÈ›ie !
Nu plăti niciodată în avans într-un cont bancar până când nu l-ai întâlnit pe vânzător și ați semnat un acord.
Nu furniza informații confidențiale în discuții pe WhatsApp/Telegram sau alte aplicații de mesagerie unde utilizatorii își ascund ușor identitatea, deoarece te poți expune la fraude sau înșelăciuni.
Nu furniza niciodată detaliile cardului tău bancar (număr, data expirării, CVV). Te expune direct la fraude bancare.
Primirea unui mesaj pe WhatsApp/Telegram cu un ID scanat nu înseamnă că ai identificat cumpărătorul. Acest lucru se face pe loc, când semnați un acord de cumpărare.
Când comanzi online, alege livrarea cu verificare. Pentru un cost relativ mic, te protejezi de eventuale neplăceri.
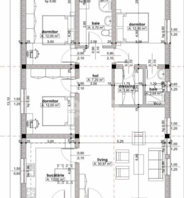
ID EXP524 Compania imobiliara iNEX eXp vva propune spre v acirc nzare un ansamblu rezidential nou format din 15 case moderne situat icirc n Trivale ndash zona Platou una dintre cele mai apreciate si cautate zone rezidentiale din Pitesti Proiectul este conceput pentru confort intimitate si calitate a constructiei cu finalizare estimata la sf acirc rsitul anului 2026 Caracteristici generale Numar unitati 15 case individuale Suprafata utila 115 mp Regim de icirc naltime Parter Structura cadre si grinzi din beton armat cu 2 placi pentru durabilitate si siguranta Constructie si finisaje Zidarie exterioara din caramida de 25 cm cu izolatie termica Compartimentari interioare din caramida de 25 cm si 15 cm T acirc mplarie PVC cu 7 camere si geam tripan glafuri interioare si exterioare Acoperis din tabla Centrala termica icirc n condensatie Utilitati si infrastructura Racordare completa la utilitatile orasului gaz apa canalizare energie electri...
ID EXP513 Compania imobiliara iNEX eXp nbsp va ofera spre vanzare in zona Pipera un studio spatios si luminos situat icirc ntr-unul dintre cele mai exclusiviste proiecte rezidentiale din nordul Capitalei ndash One North Lofts Conceput at acirc t pentru locuire c acirc t si pentru investitie acest studio impresioneaza prin designul contemporan proportiile generoase si pozitionarea icirc ntr-o zona cu potential ridicat de dezvoltare Spatiul este eficient compartimentat adaptat unui stil de viata activ si modern iar icirc naltimea tavanului de 2 80 m creeaza o senzatie accentuata de deschidere si lumina Ferestrele ample permit patrunderea luminii naturale pe tot parcursul zilei oferind o atmosfera placuta si aerisita Baia este finisata cu materiale premium si dotari moderne atent alese pentru confort si functionalitate Caracteristici principale Compartimentare eficienta ideala pentru locuire sau icirc nchiriere Icirc naltime tavan 2 80 m Finisaje premiu...
ID EXP508 Compania imobiliara iNEX eXp nbsp va ofera spre nbsp v acirc nzare un apartament modern cu 2 camere suprafata utila totala 60 98 mp decomandat situat la parterul unui imobil construit icirc n 2019 icirc ntr-o zona verde si linistita foarte bine conectata la facilitatile urbane Avantaje Complet mobilat si utilat Loc de parcare inclus Localizare nbsp Proprietatea se afla icirc n Cartierul Trivale la doar c acirc teva minute de mers pe jos de statia de autobuz scoli gradinite si supermarketuri Detalii apartament Suprafata generoasa nbsp Compartimentare practica cu 2 camere luminoase Un apartament luminos si primitor ideal pentru o familie sau pentru cei care icirc si doresc confort si liniste aproape de natura beneficiind totodata de acces rapid catre oras Proprietate v acirc nduta de persoana fizica Pretul afisat este Pretul Final nbsp icirc n cazul persoanelor fizice NU se aplica TVA Mentioneaza cand ne suni ID EXP508 ...
ID EXP459 Compania imobiliara iNEX eXp nbsp spre v acirc nzare o casa spatioasa confortabila si modern compartimentata situata icirc ntr-o zona accesibila cu acces facil catre mijloace de transport icirc n comun scoli si gradinite Imobilul este construit pe parter cu placa de beton si pod realizat cu atentie la detalii si respect acirc nd cele mai recente standarde icirc n constructii civile nbsp Caracteristici constructive Structura pe cadre si grinzi din beton armat Pereti exteriori din caramida Porotherm de 30 cm cu izolatie termica de 10 cm grosime totala 40 cm Compartimentari interioare din caramida de 25 cm si 15 cm T acirc mplarie premium Clasa A cu 5 camere si 3 foi de sticla glafuri incluse interior si exterior Acoperis din tabla Finisaje si dotari Usi interioare Porta Doors Gresie faianta si parchet Delta Studio Obiecte sanitare Romstal bai complet echipate Baterii Grohe pentru chiuveta si cada Vopsea lavabila alba STO Instalatii ...
ID EXP486 Compania imobiliara iNEX eXp va ofera spre v acirc nzare un apartament cu 2 camere confort 1 situat icirc ntr-un imobil nou aflat icirc n constructie cu termen de finalizare icirc n anul 2026 Proiectul face parte dintr-un ansamblu rezidential modern amplasat icirc ntr-o zona aerisita icirc n mijlocul naturii ferita de agitatia orasului dar bine conectata la principalele puncte de interes Caracteristici apartament 2 camere spatioase cu o compartimentare practica si functionala Finisaje premium cu posibilitatea de personalizare Spatii luminoase ideale pentru familii sau pentru cei care doresc confort si intimitate Racordat complet la utilitati gaz apa curent canalizare Infrastructura complet amenajata si functionala la momentul predarii Vedere deschisa aer curat si mediu linistit Acest apartament este o alegere excelenta pentru un stil de viata modern si echilibrat Calitatea constructiei atentia la detalii si amplasarea icirc ntr-un c...
Detalii RELEVANTE oferta - 1/2 duplex in zona Mosnita Noua la 2 minute de Esso cu regim de inaltime Parter Mansarda cu finalizare in Octombrie 2025 - suprafata utila de 114 mp plus terasa de 15 mp - teren de 272 mp cu front stradal de 7 5 m - detalii constructive ziduri exterioare si interioare din caramida porotherm termoizolata exterior acoperis de tigla - compartimentare - parter hol acces bucatarie camera de zi spatiu de depozitare baie terasa - mansarda hol acces 3 dormitoare baie dressing balcon - se preda finisat la cheie cu posibilitatea alegerii finisajelor intr-un buget prestabilit - CENTRALA termica PROPRIE pe gaz si incalzire in pardoseala Detalii suplimentare - teren imprejmuit terasa este spatioasa - dispune de toate utilitatile apa gaz curent iar canalizarea este asigurata printr-o fosa septica Dispune de acces auto asfaltat drumul fiind pietruit pe o portiune restransa ...
Agentia imobiliara Mervani va prezinta o casa cu doua camere situata in orasul Azuga pe strada Postavariei Imobilul a fost consolidat si renovat in totalitate in anul 2022 Tamplaria casei este din aluminiu iar invelitoare este tabla de tip Lindab La exterior casa este izolata cu polistiren de 5 cm Incalzirea casei se realizeaza cu centrala termica Compartimentare - vestibul - bucatarie - baie - dormitor - camera de zi - hol
Casa individuala de tip A de vanzare cu priveliste panoramica peste dealurile din Daia Noua la doar 5 km de intrarea in orasul Sibiu Construita pe un teren intravilan inscris in eTerra cu suprafata totala de 586 nbsp mp aceasta insumneaza o suprafata utila de nbsp 125 mp distribuita pe 2 nivele nbsp la parter 75 mp compusi din bucatarie cu living camera si baie iar la etaj nbsp 50 mp sunt prezente doua dormitoare accesul facandu-se pe o scara interioara Acoperisul este construit din tigla metalica cu izolatie corespunzatoare In materie de utilitati avem urmatoarele - Curent nbsp electric nbsp - nbsp pentru buna functionalitate a casei - Curent trifazic - urmeaza a se adauga nbsp - nbsp Sursa de apa nbsp - prezenta prin intermediul fantanii la care au fost adaugate 6 burlane - Statie de epurare nbsp - inlocuitor perfect pentru canalizare - nbsp Pompa de caldura - cu incalzire prin calorifere - nbsp Aer conditionat - pentru confortul propriu Predarea...
casa pe parter suprafata 90 mp teren 307 mp deschidere 15 ml 3 camere 2 bai terasa pod centrala proprie izolata termic termopan parchet gata de locuit constructie 2024 2 locuri parcare
Comision cumparator 0 ASCENDENT IMOBILIARE COVASNA Va prezinta o vila situata intr-un peisaj mirific inconjurata de padure de stejari si conifere la periferia statiunii Covasna Covasna o statiune balneoclimaterica importanta in Romania renumita pentru resursele sale naturale unice mofetele si apele minerale carbogazoase este un loc ideal pentru sanatate liniste si relaxare Va invitam sa experimentati o vizionare initiala din locatia unde va aflati chiar acum prin accesarea filmului de prezentare https //www youtube com/watch v SdjYc 9KLhw Proprietatea este recomandata pentru familie retreat business turistic sau rezidenta permanenta Este locul perfect pentru iubitorii de natura care doresc sa locuiasca intr-un spatiu unic si linstit la marginea padurii departe de zgomotul urban poluare si agitatie Constructia solida cadre din beton armat si zidarie de BCA garanteaza siguranta si durabilitate in timp Dispunerea proprietatii Parter ...
Covasna - 29 Decembrie 2025
300.000 €
Atenție
Din motive de securitate și pentru protecția utilizatorilor, această funcționalitate nu este disponibilă pentru locația ta.