Casa de vanzare P 1 etaj intr un complex nou de case cu toate utilitatile Suprafata utila de 100 mp Parter Living Bucatarie Debara Baie cu dus Hol Etaj Baie cu cada 3 camere Hol Teren 200 mp Locuri de parcare 2 Terasa acoperita Structura pe cadre de beton Caramida bks 25 Stalpi din beton 30x30 Placa din beton peste etaj Pret 139000 EUR tva inclus Pentru mai multe detalii sau pentru a stabili o vizionare va stam la dispozitie Id intern P7976
⚠ AtenÈ›ie !
Nu plăti niciodată în avans într-un cont bancar până când nu l-ai întâlnit pe vânzător și ați semnat un acord.
Nu furniza informații confidențiale în discuții pe WhatsApp/Telegram sau alte aplicații de mesagerie unde utilizatorii își ascund ușor identitatea, deoarece te poți expune la fraude sau înșelăciuni.
Nu furniza niciodată detaliile cardului tău bancar (număr, data expirării, CVV). Te expune direct la fraude bancare.
Primirea unui mesaj pe WhatsApp/Telegram cu un ID scanat nu înseamnă că ai identificat cumpărătorul. Acest lucru se face pe loc, când semnați un acord de cumpărare.
Când comanzi online, alege livrarea cu verificare. Pentru un cost relativ mic, te protejezi de eventuale neplăceri.
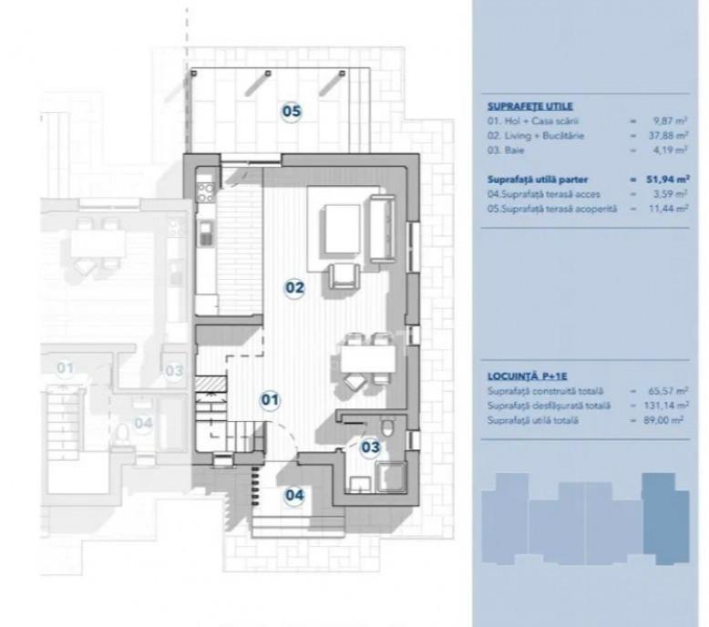
Comision 0 - pret direct de la dezvoltator Va propunem spre vanzare un apartament de 1 camera cu suprafata totala de 41 mp situat intr-un bloc nou prevazut cu lift Loc de parcare suprateran inclus in pret In apropiera complexului se afla restaurant supermartket sala fitnes statie pentru mijloc de transport in comun la 100 metri distanta Pentru alte detalii contactati-ma la nr tel 0753482114 Id intern P7516
Casa de vanzare Valea Lupului Iasi 4 camere 85 mp utili Teren 420 mp Nu rata ocazia de a achizitiona o locuinta moderna in zona cautata Valea Lupului Programeaza acum o vizionare si descopera aceasta casa cu 4 camere ideala pentru o familie Detalii generale o Locatie Valea Lupului Iasi o Tip locuinta Casa pe un singur nivel in stil mediteranean o Suprafata utila 85 mp o Teren 420 mp o Terasa acoperita 23 mp 80 acoperita perfecta pentru relaxare Dotari si finisaje o Incalzire prin pardoseala - confort pe tot parcursul anului o Tamplarie Salamander - eficienta termica si fonica superioara o Acoperis Bilka - protectie pe termen lung o Complet racordata la utilitati apa canalizare curent gaz - contracte individuale Facilitati in zona o Infrastructura moderna drumuri betonate iluminat stradal retea electrica separata o Mediu linistit si sigur ideal pentru familie Id intern P7767
Comision 0 - pret direct de la dezvoltator Invest Imobiliare va propune spre vanzare un apartament deosebit de 3 camere cu suprafata utila de 64 mp terasa acoperita de 19 mp situat in Popas Pacurari Iasi la 500 metri de Rond Era Apartamentele se predau amenajate la cheie cu centrala proprie balcoane inchise cu tamplarie Salamander aer conditionat incalzire in pardoseala Proiectul cuprinde 3 blocuri cu regim redus de inaltime D P 3E fiecare prevazute cu lift Accesul in complex este privat cu bariera sistem de supraveghere video sistem de iluminare exterioara spatii verzi amenajate statie de autobuz in fata complexului Primele apartamente vor fi predate la cheie in octombrie 2025 cu posibilitate de achizitie si cu plata prin credit bancar Pentru alte detalii contactati-ma la nr tel 0753482114 Id intern P7347
Comision 0 - pret direct de la dezvoltator Va propunem spre vanzare un apartament de 3 camere cu suprafata de 78 mp situat la etajul 1 intr-un bloc nou cu lift intr-un complex rezidential din Valea Lupului Apartamentul este finalizat pregatit pentru mutare imediata centrala termica tamplarie Salamander usi cu cadru de lemn loc de parcare in fata blocului Se afla la 200 metri de mijloacele de transport in comun supermarket farmacie sala de sport si restaurant Se poate achizitiona cu cash si cu credit Pret la care se adauga TVA Id intern P7998
Comision 0 - pret direct de la dezvoltator Va prezentam in zona Valea Lupului un apartament cu 2 camere situat intr-un bloc nou cu lift finalizat in 2024 Cu o suprafata totala de 55 mp acest apartament este un camin perfect pentru confortul dumneavoastra Beneficiati de un loc de parcare suprateran inclus in pret fara griji legate de parcarea masinii In apropierea complexului veti gasi tot ce aveti nevoie de la restaurante si supermarketuri la o sala de fitness si o statie pentru mijloacele de transport in comun la doar 100 de metri distanta Acesta este momentul sa va creati un camin modern cu toate facilitatile la indemana Pentru detalii suplimentare sau pentru a programa o vizionare sunati la numarul de telefon 0753 482 114 - Dragos Popoaia Id intern P7997
casa spre vanzare langa lac in comuna Berceni cu mutare imediata se accepta si variante cu imobile la schimb Vila individuala - comuna Berceni suprafata teren 450 mp Casa individuala in imediata apropiere de spatii comerciale restaurante supermarketuri stb 475 terenuri de sport sala de sport lacuri etc Constructie 2023 si intabulata regim de inaltime P 1E pod avand o suprafata utila de 118mp fara pod Teren 450 mp Utilitati gaz curent fosa individuala Compartimentarea se face astfel Parter living - 25 mp bucatarie - 11 mp hol 5 5 mp baie 5 3 mp - terasa - 22 mp Etaj dormitor - 15 mp dormitor - 13 8mp dormitor - 14 5mp baie pe hol - 7 7 mp palier - 4 71 mp Casa dispune de incalzire in pardoseala baile sunt dotate cu obiecte sanitare cada wc dus baterii etc intrerupatoare si prize modulare gresie faianta parchet toate finisajele sunt superioare locuinta este izolata termic cu polistiren de 10 cm ...
ID ITERN 4732 REGIS Imobiliare va prezinta o casa deosebita in stil cabana situata in pitoreasca zona Malul Ursului din Predeal o locatie apreciata pentru liniste peisaje montane impresionante si proximitatea fata de atractiile turistice din zona Construita din caramida aceasta casa imbina stilul rustic cu elementele de confort modern oferind o suprafata utila de 135 metri patrati Proprietatea este mobilata si utilata complet fiind pregatita sa devina locuinta ideala pentru cei care isi doresc un refugiu in mijlocul naturii In plus casa dispune de o soba functionala care adauga un farmec aparte si completeaza atmosfera calda si primitoare Casa este dispusa pe 3 nivele dupa cum urmeaza Demisol - format din bucatarie mobilata si utilata cu tot ce este necesar Parter- format din living chicineta baie cu dus 2 dormitoare Mansarda- formata din 2 dormitoare si baie cu dus balcon Suprafata utila este de 135 metri patrati compartimentati inteligent pentru a oferi spati...
Casa frumoasa noua cu potential de extindere rapida Daca doresti sa pleci din agitatia orasului te invit sa vezi o casuta cocheta eleganta abia construita 2023 pe parter si pod inalt mansardabil aflata la doar 23 de km de Bucuresti intr-o comuna ingrijita cu vecini prietenosi scoala gradinita centru medical deschis in permanenta cu doctor non stop statie peco spalatorie masini vulcanizare Langa casa se afla un magazin satesc cu de toate si zilnic trec vanzatori ambulanti cu legume fructe La 5 minute de mers cu masina sau microbuzul se gasesc megaimage Pepco profi farmacii CEC Bank cabinet veterinar aprozare fitofarmacie liceu etc Casuta care se vinde are langa ea si cabana din lemn de 20 mp care este izolata interior locuibila Casa a fost construita in regie proprie sub supravegherea noastra pentru folosinta proprie retragere de la sosea de 22 m S-au folosit cele mai bune materiale pentru siguranta confortul propriu si pentru eficientizarea consu...
Va propunem spre achizitie/cumparare un imobil din caramida parter pod din caramida refacuta in totalitate compusa din 4 camere living 3 dormitoare bucatarie holuri baie - cu cabina de dus grup sanitar de serviciu totul finisat termopane parchet gresie faianta lavabila etc Suprafata totala de teren - 700 mp cu deschidere la sosea de 17 m curtea fiind prevazuta si cu o cismea Imobilul este izolat pe exterior are acoperisul refacut cu tabla Bilka are canalizare apa curenta fundatie din beton Exista si o mica magazie Locatie comuna Vedea judetul Teleorman la doar 7 km de orasul Vedea Acces facil catre Alexandria Bucuresti Oferta reala Ocazie
Teleorman - 6 August 2025
60.000 €
Atenție
Din motive de securitate și pentru protecția utilizatorilor, această funcționalitate nu este disponibilă pentru locația ta.