Va prezentam o locuinta noua moderna cocheta si eficient compartimentata amplasata intr-o zona linistita la iesire din Com Berceni la intrare in cartierul Dealul Verde cu acces rapid la drumul judetean DJ401 si la viitorul drum radial DR9 Vila este construita pe un teren generos de 375 mp are o suprafata desfasurata totala de 150 mp o amprenta la sol de 75 mp si un regim de inaltime P 1E Pod Acces rapid la drumul judetean DJ401 Calea Bucuresti Acces rapid la Autostrada A0 si metrou M2 statia Tudor Arghezi Park Ride Metrou Berceni Acces rapid la viitorul drum radial DR9 Statie STV la 50 metri Proiecte de extindere a retelei de metrou cu 3 statii noi in Comuna Berceni Detalii constructie si compartimentari Fundatie inalta si solida impermeabilizata in masa cu aditiv Hyseal Structura de rezistenta - cadre de beton Beton de clasa superioara C25/30 B 400 Placa de beton peste etaj intre etaj 1 si pod Zidarie cu caramida tip porotherm robust 30 Acoperis din tabla Bilka Parter Living spatios cu iesire pe terasa din spate Bucatarie mare luminoasa Baie Hol cu spatiu de depozitare sub scara Terasa acoperita pentru acces Etaj 3 dormitoare generoase Baie Hol Balcon Constructia a fost inceputa anul acesta in luna iunie si are autorizatia de constructie valabila pana in luna martie anul 2027 Terenul are o deschidere de 15 m deschidere si o lungime de 25 m si se afla in planul 2 fata de soseaua principala Calea Bucuresti - Intrarea Margaretei Utilitati curent electric si gaze pe strada Proprietatea dispune de put forat la 28 m adancime Pretul este final nu se aplica TVA
⚠ AtenÈ›ie !
Nu plăti niciodată în avans într-un cont bancar până când nu l-ai întâlnit pe vânzător și ați semnat un acord.
Nu furniza informații confidențiale în discuții pe WhatsApp/Telegram sau alte aplicații de mesagerie unde utilizatorii își ascund ușor identitatea, deoarece te poți expune la fraude sau înșelăciuni.
Nu furniza niciodată detaliile cardului tău bancar (număr, data expirării, CVV). Te expune direct la fraude bancare.
Primirea unui mesaj pe WhatsApp/Telegram cu un ID scanat nu înseamnă că ai identificat cumpărătorul. Acest lucru se face pe loc, când semnați un acord de cumpărare.
Când comanzi online, alege livrarea cu verificare. Pentru un cost relativ mic, te protejezi de eventuale neplăceri.
Va propun spre vanzare o casa moderna si luminoasa aflata la prima inchiriere mobilata si utilata complet situata in Pipera in cartierul ZenVille o zona inconjurata de liniste si multa verdeata Ansamblul ofera acces usor si rapid la 7-10 minute cu masina la Aeroportul Henri Coanda si la polul principal de birouri situat in Dimitrie Pompeiu si Floreasca Zona beneficiaza de imediata proximitate a mall-urilor Baneasa si Pipera Plaza precum si a scolilor de prestigiu din zona dar si de acces la centura Bucurestiului si la orasele limitrofe De asemenea transportul public este disponibil in apropiere cu statiile de autobuz pentru R459 301 si 135 La parterul casei se afla bucataria inchisa camera de zi si zona de servit masa cu acces direct in terasa Exista de asemenea un hol cu spatiu de depozitare Casa este proiectata si construita cu patru grupuri sanitare un grup sanitar la parter doua bai la etajul 1 si o baie la etajul 2 La etajul 1 se afla doua dormitoa...
Proprietate - vanzare - Novaci - strada Parangului - langa supermarket-ul Penny Domina Imobiliare va propune spre vanzare proprietate stil autentic situata in Novaci strada Parangului - langa supermarket-ul Penny Caracteristici - casa complet renovata este pozitionata pe un teren intravilan in suprafata de 1623 mp cu deschidere la strada de 13 m l - suprafata utila a casei este de 184 mp si se compune din living 3 dormitoare bucatarie 3 holuri si 2 bai fiind structurata pe un singur nivel - utilitatile curent electric apa curenta canalizare si fantana proprie - dotari tamplarie pvc cu geam termopan la interior tamplarie lemn reconditionata gresie faianta parchet laminat sistem de supraveghere boiler electric iar incalzirea se realizeaza prin sobe de teracota etc Curtea ampla amenajata cu o serie de locuri functionale si de destindere multiple anexe gospodaresti vatra pod 2 beciuri si avand multe zone de vegetatie vita de vie pomi fr...
Vrei sa te muti intr-o zona linistita si retrasa dar totusi aproape de oras TABOO IMOBILIARE iti prezinta nbsp aceasta casa individuala din zona Turnisor Sibiu poate fi exact ceea ce cauti un camin complet spatios cu un teren generos si toate conditiile pentru o viata relaxata si confortabila alaturi de familie Proprietatea este situata intr-o zona preponderent de case unde traficul este redus si atmosfera este una placuta de cartier cu vecini linistiti si mult spatiu verde in jur Accesul catre centrul orasului este rapid iar toate punctele de interes ndash magazine scoli transport public ndash sunt la doar cateva minute distanta Casa a fost construita in anul 1998 pe un teren de 460 mp nbsp si dispune de o suprafata construita de 184 mp cu o suprafata utila de 150 mp Este compartimentata eficient si ofera spatiu suficient atat la interior cat si la exterior pentru toate nevoile unei familii moderne La parter vei gasi un hol de acces un living generos ...
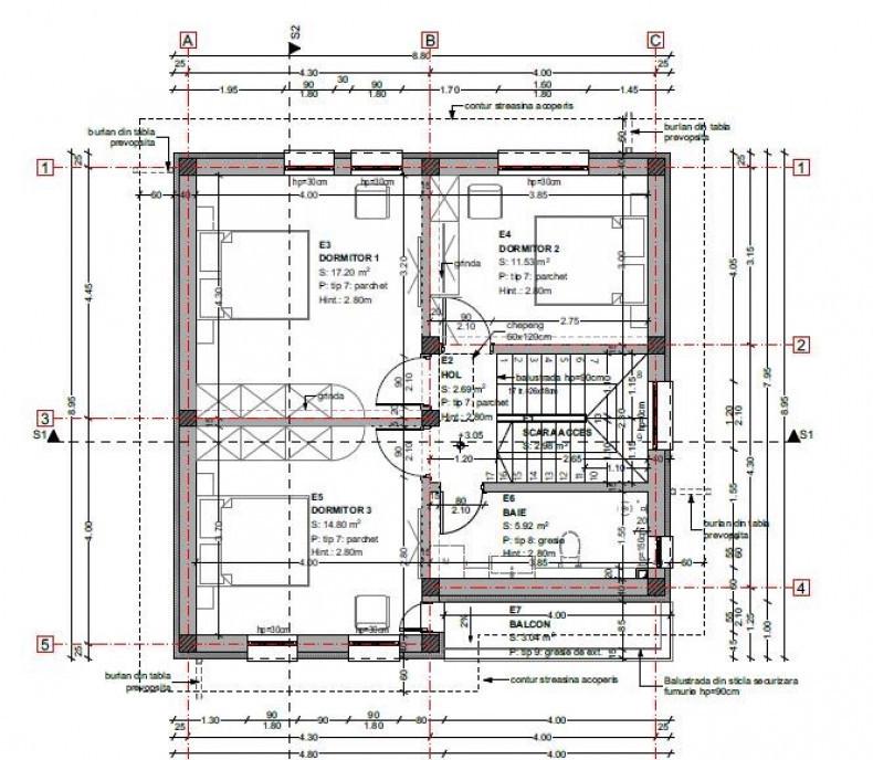
Proprietar Vand vila construita in regie proprie individuala dispusa pe parter etaj si pod mansardat situata la 5-7min de mers pe jos pana la statia de metrou Ap Patriei avand dubla deschidere cu posibilitatea parcarii a 5 masini 2 in curte si 3 pe zona de proprietate Se vinde fie mobilata si utilata cel putin cum se vede in fotografii fie goala dupa cum se doreste Arata exact ca in fotografii este certificata energetic casa A Va rog sa regasiti in informatiile atasate fotografiile si releveul corespunzator pe fiecare nivel in parte Mai multe detalii pentru potentialii clienti interesati de achizitie in mod real la tel 0720002332 Toate actele sunt pregatite pentru vanzare Dispune atat de loc de joaca amenajat deasupra piscinei exterioare pentru copii cat si de piscina Beneficiaza atat de toate utilitatile publice apa energie electrica gaz internet-cablu TV cat si de put propriu cu hidrofor pentru alimentarea cu apa a piscinei si intre...
REV2004953 SVN Romania va propune spre vanzare o casa cu potential excelent pentru business situata stradal intr-o zona cu vad foarte mare atat pietonal cat si auto Pozitionata strategic proprietatea beneficiaza de o expunere deosebita si acces facil fiind ideala pentru activitati comerciale sau profesionale Statia de metrou se afla la doar 5 minute de mers pe jos ceea ce sporeste semnificativ accesibilitatea pentru clienti sau colaboratori Imobilul este compus din doua zone functionale distincte Spatiu comercial stradal de aproximativ 50mp perfect pentru receptie showroom sau zona de lucru cu publicul Casa P 1 amplasata in spatele spatiului comercial compartimentata astfel Parter 1 dormitor 1 baie 1 bucatarie Etaj 2 dormitoare 1 baie 1 balcon Aceasta configuratie permite desfasurarea activitatilor de tip cabinet notarial cabinet de avocatura clinica medicala birouri sau alte servicii profesionale intr-un mediu bi...
București - 21 Iulie 2025
980.000 €
Atenție
Din motive de securitate și pentru protecția utilizatorilor, această funcționalitate nu este disponibilă pentru locația ta.