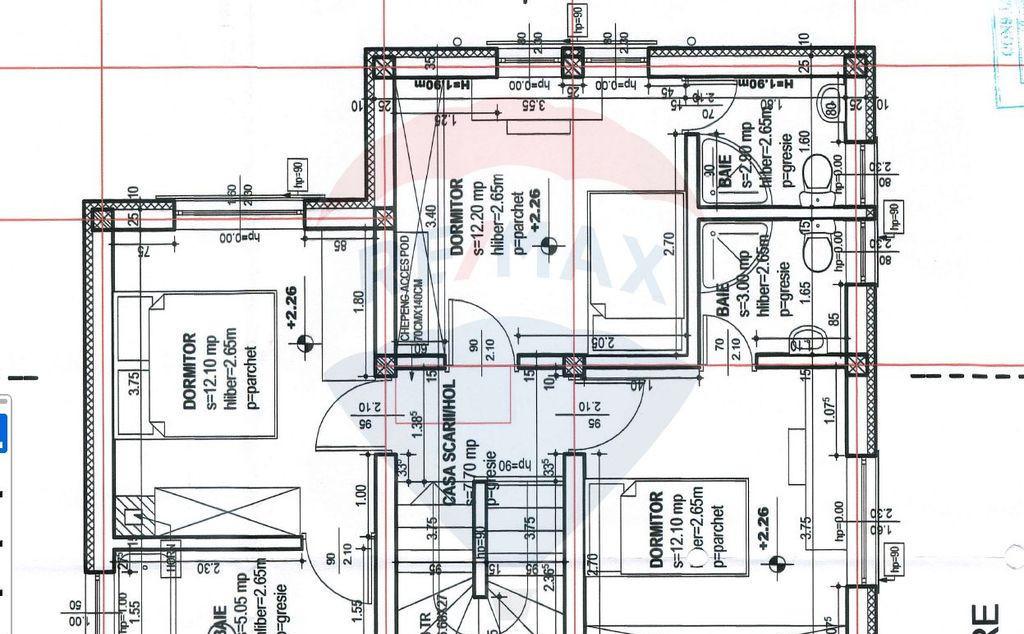
Va propunem la vanzare o casa individuala situata in Satul Salicea la 13 km de centrul orasului Cluj-Napoca Terenul pe care este amplasata constructia are 350 mp avand 21 ML front la strada recent asfaltata Constructia este realizata din caramida pe fundatie din beton armat avand o amprenta la sol de 70 MP desfasurata pe 3 niveluri supraterane cu o suprafata utila de 166 MP la care se adauga podul ca spatiu de depozitare La Parter avem o bucatarie inchisa un living cu suprafata de 28 MP cu iesire pe terasa si o baie La Etaj avem 3 camere cu suprafete de aproximativ 12 MP fiecare camera are baie proprie La Demisol sunt 3 camere spatioase Suprafata vitrata este generoasa fiind montata tamplarie cu sticla tripan profil Rehau Synego 80 cu 7 camere cu sticla refractanta Pentru a oferi priveliste si lumina naturala toata tamplaria are o inaltime de 2 3M Pompa de Caldura va asigura atat apa calda menajera cat si incalzirea termica aceasta fiind realizata prin pardoseala la ambele etaje astfel veti avea un confort sporit dar si un cost mai mic de intretinere La exterior avem o izolatie de 15 cm si tencuiala decorativa in pod este izolatie cu spuma poliuretanica cu celula inchisa Constructia se vinde la stadiul de semifinisat cu 2 straturi de glet la interior armate cu plasa si finisata complet la exterior Pentru informatii suplimentare dar si pentru poze cu toate etapele constructiei contactati-ne cu incredere
⚠ AtenÈ›ie !
Nu plăti niciodată în avans într-un cont bancar până când nu l-ai întâlnit pe vânzător și ați semnat un acord.
Nu furniza informații confidențiale în discuții pe WhatsApp/Telegram sau alte aplicații de mesagerie unde utilizatorii își ascund ușor identitatea, deoarece te poți expune la fraude sau înșelăciuni.
Nu furniza niciodată detaliile cardului tău bancar (număr, data expirării, CVV). Te expune direct la fraude bancare.
Primirea unui mesaj pe WhatsApp/Telegram cu un ID scanat nu înseamnă că ai identificat cumpărătorul. Acest lucru se face pe loc, când semnați un acord de cumpărare.
Când comanzi online, alege livrarea cu verificare. Pentru un cost relativ mic, te protejezi de eventuale neplăceri.
Va propunem spre inchiriere un apartament cu 3 camere situat in Manastur Apartamentul se afla pe strada Mehedinti Nr 7 la 200m de complexul Big la 50m de scoala generala Liviu Rebreanu fiind aproape de statia de autobuz magazine si de toate facilitatile zonei Apartamentul se inchiriaza mobilat si utilat urmand a se schimba televizorul cu unul nou Apartamentul este disponibil din imediat Pentru informatii suplimentare contactati-ne cu incredere
Casa/Vila de vanzare in Hemeius jud Bacau Comision 0 De mult timp esti in cautarea unei case in apropierea orasului care sa fie si intr-o zona linistita si cu aer curat unde sa te poti relaxa alauri de familia ta Aceasta este casa pe care o cauti Aceasta proprietate este ideala pentru o familie ce isi doreste sa stea departe de agitatia din oras dar totodata sa ajunga imediat in orice punct de interes Aici ai toate utilitatile necesare unei vieti usoare si o priveliste frumoasa asupra orasului chiar de la marginea unei padurici Casa se afla pe Varianta Hemeius la doar 10 minute 8 km de centrul orasului Finalizata in anul 2024 cu un regim de inaltime P M o suprafata construita de 167 mp 130 mp utili si 448 mp teren aceasta casa este ideala pentru o familie cu copii dar nu numai Casa este compusa pe parter dintr-un living generos bucatarie baie iar la mansarda din 3 dormitoare din care unul cu dressing si balcon si o baie Curtea este un...
Va prezentam spre achizitie o vila dispusa pe subsol parter cu 2 camere hol si vestibul generos bucatarie si baie etaj cu 2 camere 1 baie hol cu acces catre mansarda si terasa si mansarda in suprafata totala de 220 mp suprafata utila 108 mp Vila se bucura de o terasa generoasa de 15 mp la nivelul 1 Vila a fost reconstruita in anul 1995 pe structura unei case vechi structura fiind de caramida si beton consolidata la reconstructie Exista un raport tehnic de consolidare ce poate fi prezentat la cerere Vila se incalzeste cu centrala proprie insa centrala nu a mai fost pusa in functiune de cca 6 ani Vila necesita renovare completa la interior iar mansarda poate fi inaltata pentru a creea un nou spatiu util de locuit in suprafata de 82 mp Data fiind pozitia semi centrala in zona de case vila poate fi potrivita pentru rezidenta unei familii sau pentru un sediu de firma notariat birou avocati cabinete medicale sau alte afaceri Atentie Nu exista curte libe...
Agentia imobiliara VIP Imob va propune spre cumparare o casa moderna stil mediteranean cu 4 camere si 3 bai situata in complexul rezidential Valea cu Flori Residence 9 din cartierul Izvor Imobil nou finalizat si intabulat Compozitie parter camera de zi bucatarie hol baie cu dus camera tehnica mansarda 3 dormitoare dintre care 1 cu dressing si baie proprie baie hol terasa acoperita cu o suprafata utila de 116 00 mp si teren in suprafata de 300 00 mp Dotari - iluminat tip led - bai mobilate si utilate - parchet gresie faianta - apa curent electric fosa septica individualade 1500L cu drenaj de 10m - loc de parcare acoperit pentru 2 masini amenajat cu pavaj Detalii tehnice - constructie din lemn cu acoperis din tabla marca Bilka - termoizolatie cu polistiren expandat de 10 cm la exterior vata minerala de 20 cm la interior vata minerala de 20 cm sub acoperis - incalzire in pardoseala cu pompa de caldura aer-apa marca Ferolli d...
Te asteptam miercuri 6 august intre orele 17 00 - 20 00 sa descoperi personal aceasta proprietate deosebita Inscrierile pentru vizionare se fac aici https //docs google com/forms/d/e/1FAIpQLSd6es2mptsxAN540EdOI1NuHr1qRVnUsXC78sBa1H5A6nXMKw/viewform Va prezentam o vila tip duplex construita cu materiale de calitate superioara situata pe Strada Lebedelor nr 82N Comuna Berceni intr-o zona linistita aproape de lac pe strada asfaltata si iluminata public Structura solida Fundatie de 145 cm 14 stalpi de 30 cm grinzi transversale beton C16/20 fier O14 si O18 Pereti dublu perete la calcan caramida de 25 cm cu polistiren de 10 cm intre pereti granulatie 80 Izolatie exterioara dubla - 10 cm 5 cm polistiren granulatie 80 Geamuri tripan Gealan profil german superior cu izolatie fonica Acoperis tabla Bilka cu izolatie vata minerala de 15 cm Placi groase 35 cm intre parter si etaj asteriala lemn izolata cu vata minerala 15 cm Consum redus de energ...
Cauti o locuinta ideala pentru tine si pentru familia ta in Sibiu Iti doresti o casa intr-o zona linistita cu curte TABOO Imobiliare iti propune aceasta casa de vanzare cu 4 camere in zona Terezian Sibiu Terenul casei are o suprafata totala de 500 mp iar suprafata utila a casei este de 160 mp Structura cladirii este din caramida are sistem de incalzire cu centrala proprie incalzire pardoseala si sistem de climatizare aer conditionat Casa de vanzare din zona Terezian Sibiu a fost construita in anul 2012 renovata in 2023 si are suprafata construita de 210 mp Casa este de tip duplex cu un regim de inaltime Parter 1 etaje nbsp mansarda Casa este compartimentata astfel Parter hol living baie bucatarie nbsp si casa scarii Etaj nbsp 1 hol 3 dormitoare dintre care unul cu balcon baie Mansarda 1 camera de gaming cu baie proprie si dressing Casa are o curte libera de 430 mp cu 3 locuri de parcare loc pentru zona de joaca a copiilor nbsp zona ...
Sibiu - 5 Noiembrie 2025
307.900 €
Atenție
Din motive de securitate și pentru protecția utilizatorilor, această funcționalitate nu este disponibilă pentru locația ta.