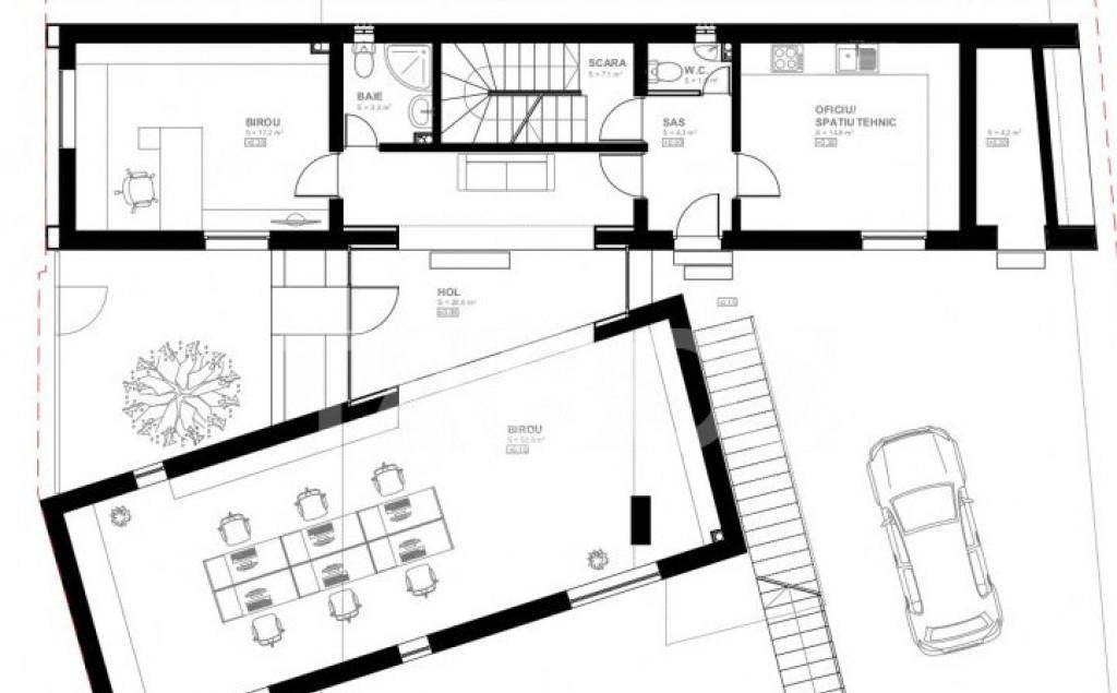
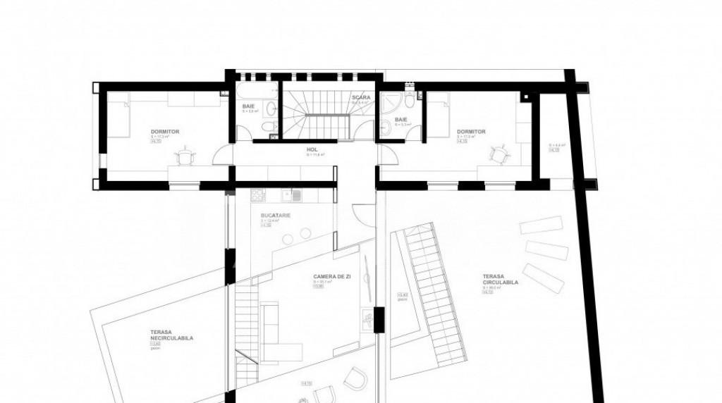
Iti doresti o casa individuala generoasa intr-o zona buna a orasului Aceasta casa de vanzare este situata in zona centrala a orasului Sibiu o zona linistita si cu acces facil catre toate punctele centrale si de interes public ale orasului Terenul are o suprafata totala de 320 mp nbsp din care 160 mp teren liber iar casa este compartimentata astfel - La subsol se afla 2 camere de depozitare a cate 10 mp fiecare si o crama de 17 mp - Parterul este compus dintr-o camera spatioasa cu suprafata de 53 mp fiind pretabila pentru spatiu de birou camera de zi sau living o camera de birou de 17 mp o baie un hol mare de 20 mp debara toaleta de serviciu si terasa - Etajul 1 va ofera accesul catre cele 2 dormitoare decomandate in suprafata de 17 mp fiecare un living generos de 33 mp bucatarie 2 bai si o terasa spatioasa in suprafata de 58 mp - Etajul al 2-lea confera accesul catre dormitorul matrimonial in suprafata de 26 mp dressing baie de 7 mp terasa Predarea se va face la stadiul de semifinisat in exterior cu parterul finalizat la etajul 1 partea de dormitoare si bai sunt functionale iar la etajul 2 finisajele interioare nu au fost finalizate lasand la alegerea viitorului beneficiar modul in care se va amenaja Casa dispune de urmatoarele imbunatatiri precum parchet gresie faianta ferestre din PVC-termopan usi celulare centrala termica proprie si calorifere Casa mai dispunde si de o curte privata cu acces auto carport unde se poate parca masina iar curtea dispune de o suprafata libera de 160 mp Casa poate fi recompartimentata in functie de gusturile fiecaruia in functie de necesitati Imobilul este situat pe o strada iluminata avand 2 fronturi la strazi diferite iar in apropiere se afla mijloace de transport in comun parcuri restaurante scoli spatii verzi spatii comerciale Pret 494 900EUR Cod oferta / ID P15105 Suna-ne acum la 0369 822 820 si afla detalii despre aceasta proprietate de vanzare din Sibiu dar si despre alte proprietati potrivite pentru tine Informatii speciale 1 Descarca aplicatia pe mobilul tau TABOO Imobiliare din Apple Store Google Play sau Huawei AppGallery pentru a afla instantaneu noile proprietati care intra pe piata 2 Daca ai o proprietate pe care vrei sa o vinzi sau sa o inchiriezi suntem aici pentru tine Contacteaza-ne pentru o evaluare gratuita fara obligatii si vei descoperi avantajele de a lucra cu o echipa dedicata si experimentata 3 Daca vrei sa incepi o cariera de agent imobiliar suna la 0369 822 820 si programeaza o intalnire pentru a afla toate beneficiile si avantajele Intra pe TABOO ro si descopera cele mai recente oferte actualizate zilnic Anunt actualizat in 27 ianuarie 2026 Id intern P15105
⚠ AtenÈ›ie !
Nu plăti niciodată în avans într-un cont bancar până când nu l-ai întâlnit pe vânzător și ați semnat un acord.
Nu furniza informații confidențiale în discuții pe WhatsApp/Telegram sau alte aplicații de mesagerie unde utilizatorii își ascund ușor identitatea, deoarece te poți expune la fraude sau înșelăciuni.
Nu furniza niciodată detaliile cardului tău bancar (număr, data expirării, CVV). Te expune direct la fraude bancare.
Primirea unui mesaj pe WhatsApp/Telegram cu un ID scanat nu înseamnă că ai identificat cumpărătorul. Acest lucru se face pe loc, când semnați un acord de cumpărare.
Când comanzi online, alege livrarea cu verificare. Pentru un cost relativ mic, te protejezi de eventuale neplăceri.
Cauti o casa tip duplex cu curte gata amenajata unde sa te poti relaxa impreuna cu familia TABOO Imobiliare iti propune aceasta casa de vanzare cu 3 camere in zona Turnisor Sibiu Casa de vanzare din zona Turnisor Sibiu a fost construita in anul 2016 are suprafata construita de 100 mp cu un regim de inaltime Parter 1 etaj Casa este compartimentata astfel Parter hol living baie bucatarie Etaj hol 2 dormitoare baie balcon nbsp Terenul casei are o suprafata totala de 220 mp iar suprafata utila a casei este de 80 mp Structura cladirii este din caramida si are sistem de incalzire cu centrala proprie cu calorifere Aceasta se vinde utilata si mobilata Casa are o curte libera cu 1 loc de parcare si suficient loc pentru zona de joaca a copiilor loc de relaxare bucatarie incalzita si spatiu de depozitare nbsp nbsp Finisajele interioare sunt moderne Usa intrare pvc Usi interioare lemn Tamplarie ferestre pvc termopan Podele parchet ...
Casa cu istorie de aproximativ 100 de ani locuita la inceputuri de o familie de sasi nobili este pe piata la vanzare Aceasta casa a fost in totalitate restaurata modernizata si infrumusetata cu avizul celor de la Ministerul Culturii Proprietarul restaurand aceasta vila a incercat sa pastreze cat mai mult din autenticitatea cladirii Parchetul a fost scos bucata cu bucata si a fost reconditionat iar acum arata deosebit avand in vedere vechimea lui In interiorul vilei pe o parte din peretii unor camere s-a pastrat zugraveala veche transformand peretele intr-un decor autentic istoric Casa este intr-o zona centrala a Sibiului inconjurata de alte case istorice si este amplasata pe o suprafata de 950 m de teren Casa are un nivel de inaltime D P 1E M si are o suprafata utila totala de 600 mp impartiti astfel - Demisolul unde se poate deschide un restaurant are o suprafata utila de 204 mp iar parterul are o suprafata utila de 150 mp si are 4 camere generoase o bucat...
Casa insufletita de zona istorica a Sibiului Desi se afla intr-o zona cu case istorice acest imobil este relativ nou si a fost construit in anul 1950 si renovat in anul 2022 Business la cheie cu istoric Pozele si detalii puteti primi in privat nbsp Cand a fost ultima data cand ati gasit 1000 mp de teren de vanzare in Centrul Sibiului Imobil de vanzare in zona Orasul de Jos format din 4 case separate si teren Intregul imobil este pretabil pentru investitie tinand cont de zona excelenta in care se afla Se preteaza pentru pensiune hotel clinica sau alte domenii asemanatoare Primul corp de cladire este format din 6 camere si bai pentru fiecare camera lobby si loc de luat masa bucatarie Aceasta casa este singura finisata Corpurile de cladire 2 si 3 sunt finisate Corpul de cladire 4 este ridicat urmand a i se aduce modificari si inaltarea cu un etaj Datorita pozitionarii imobilului in apropierea Centrului Istoric acesta este pretabil pentru toate tipurile de famil...
Casa si curte pretabila pentru ce iti doresti Pensiune Azil Gradinita Casa de locuit Restaurant si altele Casa de vanzare amplasata pe o strada principala in zona istorica a orasului Cisnadie Casa are foarte mult potential pentru a fi transformata intr-o afacere in regim hotelier pentru ca atat curtea compartimentarea casei si zona istorica sunt un avantaj Proprietatea este generoasa cu 2 curti si poate fi privita si ca locuinta pentru 2 familii care doresc sa locuiasca impreuna Casa a fost construita pe structura de caramida in anul 1940 are o arhitectura saseasca in exterior iar in interior poate fi asemuita cu o casa stil boieresc Camerele sunt foarte spatioase ferestrele sunt mari iar usile camerelor sunt de dimensiuni mari si din lemn Toata proprietatea este delimitata cu zid ceea ce o face intima si sigura Toata proprietatea are o suprafata de teren de 980 mp in care gasim corpul de casa principal cu o suprafata de 169 mp utili compus din 5 camere...
Iti doresti o vila exclusivista ce iti ofera tot confortul si utilitatile de care ai nevoie Aceasta vila de vanzare cu 4 camere in zona Selimbar Sibiu este cea mai buna alegere Vila deosebita de vanzare din Selimbar a fost construita in anul 2017 Terenul are o suprafata totala de 308 mp iar suprafata utila a vilei este de 130 mp cu un regim de inaltime Parter 1 etaj Structura cladirii este din caramida are sistem de incalzire cu centrala proprie calorifere semineu si sistem de climatizare aer conditionat Casa este compartimentata astfel Parter hol living spatios cu semineu baie dormitor bucatarie terasa inchisa cu geamuri de sticla cu vedere spre gradina casei tale Etaj hol casa scarii 2 dormitoare baie Casa are o curte libera de 230 mp loc pentru zona de joaca a copiilor o terasa de relaxare si gradina nbsp Accesul la etajul vilei se face prin scara interioara cu balustrada de fier Este situata intr-o zona linistita iar strada este privata...
PROPRIETAR - VAND VILA UNICA IN PARADISUL VERDE CORBEANCA OPORTUNITATE INVESTITIE extrem de usor de inchiriat pe termen lung cerere foarte mare cu un pret foarte bun CEL MAI BUN PRET LA MP 0 Comision pentru cumparator Va prezint o vila spectaculoasa situata pe Strada Artelor nr 10 in complexul rezidential Paradisul Verde una dintre cele mai exclusiviste zone din apropierea Bucurestiului Cu un design organic arhitectura scandinava si finisaje premium aceasta proprietate este ideala pentru cei care cauta un stil de viata rafinat liniste si confort DETALII TEHNICE Suprafata construita 302 mp Amprenta la sol 138 mp Suprafata totala 276mp Suprafata utila fara terase 225 mp Teren 572 mp imprejmuit cu gard de beton 2 40 m inaltime Regim de inaltime P 1E Terase 2 32 mp la parter una generoasa la etaj plus balcoane pentru fiecare dormitor COMPARTIMENTARE Parter Garaj cu usa actionata electric Spatiu tehnic Hol de acces Baie Living generos cu zona de dini...
Comision cumparator 0 ASCENDENT IMOBILIARE COVASNA va ofera spre vanzare in reprezentare exclusiva o vila situata la intrarea in localitatea Valcele construita in anul 2005 langa Panorama Boutique Hotel Comuna Valcele este cunoscuta ca o statiune balneoclimaterica ce dispune de o varietate de izvoare de ape minerale cu efect curativ fiind recunoscute de romani drept CASTRUM AQUA VIVARUM Apele minerale pot fi utilizate atat pentru cura interna cat si pentru cea externa fiind indicate in tratamentul afectiunilor aparatului cardio-vascular ale sistemului nervos periferic ale tubului digestiv precum si in afectiuni renale Va invitam sa experimentati o prima vizionare a locatiei prin accesarea turului virtual si a filmului de prezentare Tur virtual https //my matterport com/show/ m mV6vyxGhKgi Film prezentare https //www youtube com/watch v mnv9s8bl4Jc Imobilul dispune de un living spatios 4 dormitoare bucatarie cu camara 2 bai 2 balcoane s...
Va propun spre vanzare o casa deosebita S P E situata la 10 min de metrou Jiului Casa e compartimenta astfel Subsol garaj camera tehnica Parterul este compus din living bucatraie grup sanitar hol Etaj 2 dormitoare 1 grup sanitar 1 balcon Ca si finisaje casa in interior este la gri aveti astfel posibilitate sa o amenajati dupa bunul plac Toate actele sunt pregatite pentru vanzare predarea se poate face la data semnarii ctr de vanzare-cumparare Comisionul agentiei este de 2 Avem cheile proprietatii va stam la dispozitie pentru vizionare
Brancoveanu-Alunisului - Casa 5 camere metrou parc Scoala 111 De vanzare casa D P E M finalizata in 2011 suprafata totala desfasurata 239 5 mp din care 175 6 mp utili dispusa astfel -Demisol spatiu tehnic/de depozitare -Parter inalt living open space hol bucatarie inchisa grup sanitar wc de serviciu -Etaj 2 camere baie spatioasa cu cada cabina de dus si geam mare dressing 2 balcoane -Mansarda 2 camere baie cu geam 2 terase generoase Casa este construita pe cadre de beton armat zidaria este realizata din caramida porotherm de 30cm Acoperisul este de tigla metalica acoperita cu roca naturala Gerard Diamant Incalzirea este asigurata de centrala termica pe gaz 30kw conectata la boiler extern de 150l care asigura apa calda la temperatura constanta Parterul si etajul au fost locuite necesita lavabila mici finisaje Mansarda nu a fost locuita nefiind complet finisata Situata pe un teren cu suprafata 166mp amprenta casei este de 72 mp ramanand 94mp ...
Blitz va propune spre achizitionare o casa in Podari pe strada asfaltata constructie veche dar in care se poate locui cu o mica investitie Casa este construita pe fundatie de beton cu pereti din caramida si acoperita cu tigla Peretii nu prezinta fisuri Suprafata construita este de 94 mp iar terenul are 1050 mp din acte si 1150 din masuratori Casa este o gospodarie in toata regula aici regasim magazie de cereale magazie pentru lemne si unelte beci suprateran zona de gratar si relaxare vie pomi fructiferi gradina de legume Ca si utilitati imobilul beneficiaza de curent apa si canalizare put forat iar gazele sunt la poarta Cod oferta / ID BLITZ P140876 Id intern P140876
Dolj - 8 Iulie 2025
89.000 €
Atenție
Din motive de securitate și pentru protecția utilizatorilor, această funcționalitate nu este disponibilă pentru locația ta.