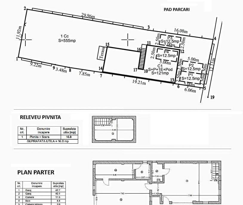
Va prezentam o casa deosebita cu peste 300mp utili teren 550mp situata in sector 4 la cateva minute de Strada Luica de Soseaua Giurgiului de Piata Resita O casa superba prin design si compartimentare prin calitatea constructiei si nu in ultimul rand prin curte si gradina In acest moment la pretul cerut este una dintre cele mai bune oferte pentru un potential cumparator Este o casa perfecta pentru una sau chiar 2 familii Este o casa perfecta pentru utilizare in scop comercial gradinita sediu firma spatiu servicii- service auto Spatiul util poate fi marit usor prin recompartimentarea celor 2 garaje de la parter sau prin marirea spatiului locuibil de la mansarda Curtea libera de 430mp permite si planuri pentru alte constructii Zona frumoasa de case zone linistita vecini ok proprietarul actual va poate prezenta toti vecinii locuieste aici de la constructia casei Nu ratati ocazia de a cumpara acesta casa intr-o zona deosebita cu toate facilitatile la indemana Comision standard Pentru detalii suplimentare va rugam sa contactati Agentul Cristian - 0761 173 617
⚠ AtenÈ›ie !
Nu plăti niciodată în avans într-un cont bancar până când nu l-ai întâlnit pe vânzător și ați semnat un acord.
Nu furniza informații confidențiale în discuții pe WhatsApp/Telegram sau alte aplicații de mesagerie unde utilizatorii își ascund ușor identitatea, deoarece te poți expune la fraude sau înșelăciuni.
Nu furniza niciodată detaliile cardului tău bancar (număr, data expirării, CVV). Te expune direct la fraude bancare.
Primirea unui mesaj pe WhatsApp/Telegram cu un ID scanat nu înseamnă că ai identificat cumpărătorul. Acest lucru se face pe loc, când semnați un acord de cumpărare.
Când comanzi online, alege livrarea cu verificare. Pentru un cost relativ mic, te protejezi de eventuale neplăceri.
Va oferim spre vanzare un apartament de 2 camere situat la etajul 1 din 4 intr-un bloc solid construit in 1985 intr-o zona linistita si verde pe Soseaua Oltenitei aproape de Piata Sudului si Rezervatia Naturala Parc Vacaresti Apartamentul dispune de urmatoarele caracteristici -suprafata totala de aproximativ 67 mp -balcon la sufragerie si balcon la dormitor -bucatarie spatioasa si luminoasa cu vedere catre gradina blocului -baie spatioasa aerisita natural -boxa la subsol de 4 mp -mobilat si utilat precum in poze -posibilitate preluare loc de parcare-mai sunt 6 locuri libere -pozitionare excelenta intr-o zona superba aproape de statiile STB scoli gradinite Locatie excelenta Piata Sudului 10 minute de mers Magazine LIDL la 4 minute Mega Image la 5 minute Mall Sun Plaza la 10 minute Scoli si gradinite in apropiere Nu ratati ocazia de a cumpara acest apartament spatios situat intr-o zona centrala cu toate facilitatile la indeman...
Va oferim spre inchiriere un apartamemt cu 2 camere intr-o vila cu doar 2 etaje amplasat pe o strada cu sens unic unde se regasesc doar case/vile Parter/2 Centrala proprie Curte proprie Mobilat si utilat cu absolut tot ce aveti nevoie pentru un trai de zi cu zi Pret 420 de euro 420 de euro garantia Comision standard Pentru detalii si vizionari va puteti adresa agentului Cristian la numarul 0761 173 617
Ramiro Imob va propunem spre vanzare un apartament de 3 camere semidecomandat cu suprafata de 65 mp situat la etajul 4 din 5 al unui bloc construit in 1970 in zona Timpuri Noi Etajul 5 reprezentand mansarda unde sunt cele doua dormitoare aceasta a fost construita in 2011 13 min de mers pe jos pana la gura de metrou TIMPURI NOI 12 min de mers pe jos pana la gura de metrou MIHAI BRAVU 8 minute de mers pe jos pana la Mall Vitan Apartamentul dispune de centrala proprie si se vinde complet mobilat si utilat Pret 84 500 euro Agent Cristian - 0761 173 617 Avem comision standard Pentru detalii si programarea unei vizionari nu ezitati sa ne contactati
Ramiro Imob va propunem spre vanzare un apartament de 3 camere semidecomandat cu suprafata de 65 mp situat la etajul 4 din 5 al unui bloc construit in 1970 in zona Timpuri Noi Etajul 5 reprezentand mansarda unde sunt cele doua dormitoare aceasta a fost construita in 2011 13 min de mers pe jos pana la gura de metrou TIMPURI NOI 12 min de mers pe jos pana la gura de metrou MIHAI BRAVU 8 minute de mers pe jos pana la Mall Vitan Apartamentul dispune de centrala proprie si se vinde complet mobilat si utilat Pret 84 500 euro Agent Cristian - 0761 173 617 Avem comision standard Pentru detalii si programarea unei vizionari nu ezitati sa ne contactati
Va prezentam o casa deosebita cu peste 300mp utili teren 550mp situata in sector 4 la cateva minute de Strada Luica de Soseaua Giurgiului de Piata Resita In acest moment la pretul cerut este una dintre cele mai bune oferte pentru un potential cumparator Este o casa perfecta pentru una sau chiar 2 familii Este o casa perfecta pentru utilizare in scop comercial gradinita sediu firma spatiu servicii- service auto Curtea libera de 430mp permite si planuri pentru alte constructii Zona frumoasa de case zone linistita vecini ok proprietarul actual va poate prezenta toti vecinii locuieste aici de la constructia casei Nu ratati ocazia de a inchiria acesta casa intr-o zona deosebita cu toate facilitatile la indemana Comision standard Pentru detalii suplimentare va rugam sa contactati Agentul Cristian - 0761 173 617
APOSTU ESTATE va propune spre vanzare o casa individuala cu acces auto situata in zona Plopi Constructia este solida realizata din caramida finalizata in anul 2024 Planseele dintre etaje si pod sunt din beton duble Confortul termic se realizeaza prin intermediul pompelor de caldura cu panouri fotovoltaice Instalatia de incalzire este prin pardoseala cu termostat in fiecare incapere Beneficiaza de sistem de supraveghere video si alarma Cu o suprafata utila de 135mp este compartimentata astfel Parter - hol acces - bucatarie mare inchisa - living cu zona de luat masa cu acces catre terasa inchisa in geamuri termopan - baie cu dus - camera tehnica Etaj - 3 dormitoare decomandate - baie mare cu cada - dressing Proprietatea se vinde complet mobilata si utilata cum se vede in imagini mai putin televizioarele Beneficiaza de toata utilitatile inclusiv curent trifazic Va asteptam cu drag la o vizionare
Vila individuala situata in Otopeni la doar cateva minute de zona de Nord Bucuresti la numai 10 minute de statia de metrou de la aeroport si de mijloace de transport in comun Este o zona cu acces usor catre aeroport si oras prin cai principale DN1 si A0 fiind aproape de centre comerciale importante Baneasa Shopping City IKEA Mall Corbeanca etc gradinite scoli private si de stat zone de distractie si agrement Therme Gradina Zoologica bransata la toate utilitatile si finisata cu materiale de foarte buna calitate Imobilul situat in zona Otopeni-Ferme P 1 131mp utili are 4 camere 3 dormitoare 3 grupuri sanitare cu geam la baie 2 balcoane 1 terasa dormitor matrimonial cu baie proprie constructie din caramida si stalpi din beton casa se preda finisata la cheie finisajele interioare se vor alege de catre cumparator Teren 350mp din care amprenta casei este de 67mp din care teren liber in suprafata de 208mp spatiu pentru parcare - 2 auto curte amena...
Nu rata sansa de a-ti gasi linistea intr-un nou camin Va propunem o locuinta structurata pe parter situata intr-un nou Ansamblu Rezidential localizat in Comuna Balotesti jud Ilfov PRETUL INCLUDE TVA Zone de interes - DN1 Value Center 12 minute - Aeroportul Otopeni 15 minute - Soseaua de Centura 18 minute - Baneasa Shopping City 20 minute
ID EXP434 Compania imobiliara eXp va ofera spre de vanzare un loc pe care icirc l poti numi cu adevarat acasa ndash o proprietate remarcabila situata icirc ntr-o zona verde linistita si exclusivista chiar la marginea padurii din Balotesti Este alegerea ideala pentru o familie care icirc si doreste un stil de viata echilibrat icirc n mijlocul naturii fara a face compromisuri la capitolul confort Caracteristici generale Suprafata utila 180 mp Suprafata teren 413 mp amenajat cu gazon pomi foisor si zona de gratar Regim de icirc naltime Parter Mansarda Numar camere 5 Numar bai 3 Garaj cu acces direct din casa Structura din caramida acoperis din tabla Compartimentare Parter Living generos cu zona de dining Bucatarie complet mobilata si utilata Camera ce poate fi utilizata ca birou sau dormitor Baie Acces direct icirc n garaj Terasa acoperita Etaj Dormitor matrimonial cu baie proprie dressing si balcon Doua dormitoare secundare i...
Real Home Investment va ofera spre vanzare Vila cu regim de Parter 1 E curte individuala de 307 mp suprafata utila de 90 mp COMISION 0 PENTRU CUMPARATOR Locuinta este compartimentata astfel PARTER - Hol - Living - Bucatarie - Grup sanitar ETAJ - Dormitor - Dormitor - Birou - Grup sanitar TERASA BECI INCALZIRE IN PARDOSEALA IZOLATIE POLISTIREN 20 CM ALEI PAVATE TAMPLARIE TRIPAN Imobilul se vinde la cheie cu finisaje complete faianta gresie parchet usi interioare si obiecte sanitare Acesta se preda cu utilitatile zonei curent electric gaz fosa put cu hidrofor sau pompa submersibila Imobilul poate fi achizitionata atat din surse proprii cat si prin credit bancar Consultanta financiara gratuita Asteptam sa ne sunati pentru a afla multe alte detalii despre aceasta proprietate ce poate fi casa familiei dvs astfel ca va invit sa ne contactati pentru a stabili o vizionare Numar de contact 0757 411 949 Lucia
București - 12 Iunie 2025
134.990 €
Atenție
Din motive de securitate și pentru protecția utilizatorilor, această funcționalitate nu este disponibilă pentru locația ta.