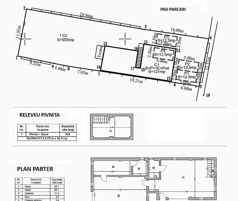
Va prezentam o casa deosebita cu peste 300mp utili teren 550mp situata in sector 4 la cateva minute de Strada Luica de Soseaua Giurgiului de Piata Resita O casa superba prin design si compartimentare prin calitatea constructiei si nu in ultimul rand prin curte si gradina In acest moment la pretul cerut este una dintre cele mai bune oferte pentru un potential cumparator Este o casa perfecta pentru una sau chiar 2 familii Este o casa perfecta pentru utilizare in scop comercial gradinita sediu firma spatiu servicii- service auto Spatiul util poate fi marit usor prin recompartimentarea celor 2 garaje de la parter sau prin marirea spatiului locuibil de la mansarda Curtea libera de 430mp permite si planuri pentru alte constructii Zona frumoasa de case zone linistita vecini ok proprietarul actual va poate prezenta toti vecinii locuieste aici de la constructia casei Nu ratati ocazia de a cumpara acesta casa intr-o zona deosebita cu toate facilitatile la indemana Pentru mai multe detalii Agentia Imobiliara - Ramiro Imob - 0770 280 100 - Cornel Ion
⚠ AtenÈ›ie !
Nu plăti niciodată în avans într-un cont bancar până când nu l-ai întâlnit pe vânzător și ați semnat un acord.
Nu furniza informații confidențiale în discuții pe WhatsApp/Telegram sau alte aplicații de mesagerie unde utilizatorii își ascund ușor identitatea, deoarece te poți expune la fraude sau înșelăciuni.
Nu furniza niciodată detaliile cardului tău bancar (număr, data expirării, CVV). Te expune direct la fraude bancare.
Primirea unui mesaj pe WhatsApp/Telegram cu un ID scanat nu înseamnă că ai identificat cumpărătorul. Acest lucru se face pe loc, când semnați un acord de cumpărare.
Când comanzi online, alege livrarea cu verificare. Pentru un cost relativ mic, te protejezi de eventuale neplăceri.
Apartament cu 2 camere decomandat cu o suprafata de 51 mp situat la etajul 2/4 intr-un bloc nou cu lift Blocul este situat pe Drumul Jilavei - sector 4 in cartier nou de blocuri zona linistita in apropiere de intersectia cu Bd Metalurgiei la 10 minute de mers de Statia de metrou Dimitrie Leonida Se vinde mobilat si utilat gata pentru viitorul cumparator sa se mute rapid Detalii partament - 51 mp - Etaj 2 / 4 - Lift - Decomandat - 2 balcoane - Mobilat si utilat - Aer conditionat - Centrala termica - Bloc nou - Loc de parcare disponibil pentru inchiriere 150-180 lei Nu ratati ocazia de a cumpara acest apartament spatios situat intr-o zona centrala cu toate facilitatile la indemana Pentru mai multe detalii Agentia Imobiliara - Ramiro Imob - 0770 280 100 - Cornel Ion Comision Standard
Va propunem spre vanzare un apartament renovat de 3 camere 72 mp la doar 10 minute de mers pe jos de metrou Aparatorii Patriei Situat la etajul 4/4 acest apartament este luminos si are o compartimentare ideala Este potrivit atat pentru locuit cat si pentru investitie chiriile in zona metroului sunt mari Renovari recente o instalatii sanitare noi o parchet si gresie schimbate o pereti si tavane refacute o balcon inchis Baia este nefinisata -- un plus pentru cine vrea sa-si aleaga singur finisajele Locatie excelenta langa de statia de metrou Aparatorii Patriei aproape de STB magazine Mega scoli gradinite parcuri si toate facilitatile zonei Nu ratati ocazia de a cumpara acest apartament spatios situat intr-o zona centrala cu toate facilitatile la indemana Pentru mai multe detalii Agentia Imobiliara - Ramiro Imob - 0770 280 100 - Cornel Ion Comision Standard
Va prezentam un apartament cu 2 camere situat la etajul 1 in zona Timpuri Noi in apropiere de Palatul Copiilor si intrarea in Parcul Tineretului pe Calea Vacaresti decomandat foarte frumos compartimentat la interior Bucatarie mare inchisa Blocul are scara de bloc curata vecini linistiti civilizati In apropiere Palatul Copiilor Timpuri Noi Parcul Tineretului Calea Vacaresti Parcul Vacaresti Sos Mihai Bravu Splaiul Unirii Detalii apartament o Suprafata 55 mp decomandat o Camere 2 camere o Etaj 1/4 bloc solid din beton construit 1986 Vecinatati o Parcuri si zone verzi pentru relaxare in apropiere o Acces rapid la centre comerciale Locatia centrala il face potrivit si pentru uz comercial spatiu birouri sediu firma inchiriere in regim hotelier Nu ratati ocazia de a locui intr-o zona centrala cu toate facilitatile la indemana Pentru mai multe detalii Agentia Imobiliara - Ramiro Imob - 0770280100 - Cornel Ion Comision Standard
Va prezentam un apartament cu 3 camere situat la Parter bloc nou 2008 langa metrou Straulesti 800 metri 10 minute de mers pe jos sau 2 statii Stb Bine compartimentat apartamentul este in stare foarte buna la interior Blocul are scara de bloc curata vecini linistiti civilizati Acces rapid la Cartierele Baneasa Pipera Soseaua de centura Chitila Otopeni Detalii apartament o Suprafata 115 mp utili o Camere 3 camere 2 bai o Etaj p/4 bloc solid din beton construit 2008 Vecinatati o Parcuri si zone verzi pentru relaxare in apropiere o Acces rapid la scoli gradinite centre comerciale Statie Stb in fata blocului 304 436 Nu ratati ocazia de a locui intr-o zona centrala cu toate facilitatile la indemana Pentru mai multe detalii Agentia Imobiliara - Ramiro Imob - 0770280100 - Cornel Ion Comision Standard
Va prezentam o casa deosebita super finisata si utilata cu peste 150mp utili teren 500mp situata in Frumusani zona superba langa Lac O casa care impresioneaza prin design si compartimentare prin calitatea constructiei prin detaliile finisajelor interioare si exterioare si nu in ultimul rand prin curte si gradina In acest moment la pretul cerut este una dintre cele mai bune oferte pentru un potential cumparator Constructia casei a fost facuta respectand toate procedurile necesare si prin utilizarea celor mai bune materiale A fost construita pentru folosinta pe termen lung dar din motive personale proprietarul trebuie sa se mute in partea de Nord a Bucurestiului Amenajarea interioara si fatada cladirii au fost personalizate de catre proprietar la un nivel inalt din punct de vedere al calitatii investitia in finisaje si dotarile interioare se pot vedea in detaliu la vizionare Iluminat controlat prin telefon sau telecomanda rulouri exterioare cu...
Va prezentam o casa batraneasca de aproximativ 100 mp din caramida din anul 1977 care necesita renovare dar este intr-o zona linistita cu vecini de calitate Proprietatea este situata pe un lot drept de 840 mp care ofera posibilitati de a mai construi o locuinta daca se doreste Casa are gaz la poarta si este ideala pentru cineva caruia ii place sa renoveze Pentru vizionari si detalii va rugam sa sunati la 0722 660 100 Id intern P160154
vila boiereasca parcul Cismigiu str Popa Tatu 22 Proprietate cu suprafete generoase 382 56 mp construiti si 590 mp teren este o investitie excelenta oferind posibilitatea de a fi utilizata ata in scop rezidential cat si comercial restaurant clinica office reprezentanta etc Proprietatea este pozitionata in plan secund fiind ferita de zgomotul orasului beneficiand de o curte compacta in suprafata de 362mp Imobilul necesita renovare completa
Daca esti in cautarea unei locuinte bine compartimentate intr-o zona linistita si aproape de oras aceasta casa este alegerea potrivita Suprafata utila 74 mp Curte libera 40 mp - spatiu ideal pentru relaxare Compartimentare eficienta Parter -Hol de acces -Baie de serviciu -Bucatarie inchisa - ideala pentru gatit -Living luminos cu spatiu pentru dining Etaj -2 dormitoare fiecare cu acces la balcon -Baie spatioasa -Acces in podul mansardabil - perfect pentru depozitare sau amenajare ulterioara Pret 154 000 EUR Ideala pentru o familie sau un cuplu care isi doreste confort intimitate si o curte proprie Contact Vestemean Florin - 0740 597 647
Casa tip duplex P 1 reprezinta alegerea ideala pentru o familie care isi doreste confort intimitate si un spatiu generos bine compartimentat Proprietatea este amplasata pe un teren de 300 mp si este complet finalizata si intabulata astfel incat va puteti muta imediat fara alte costuri ascunse Constructia este realizata din caramida cu fundatie solida si armatura din fier iar izolatia exterioara este realizata cu polistiren de 10 cm asigurand eficienta energetica ridicata Casa dispune de trei dormitoare spatioase la etaj doua bai moderne una la parter si una la etaj un living generos cu zona de dining si bucatarie open-space In spatele casei se afla o terasa perfecta pentru momentele de relaxare in aer liber iar accesul auto in curte este facil Placa de beton dintre etaje si gardul frumos amenajat contribuie la confort si siguranta Este o casa luminoasa intr-un cartier linistit cu vecini multumiti Va asteptam la vizionare Important toate utilitatiile inclusiv cana...
Casa noua moderna cu 4 in Astoria Estate One Sabareni Astoria Estate One este locul perfect pentru tine daca iti doresti sa iti gasesti caminul ideal intr-un complex rezidential modern si exclusivist Ansamblul este conceput pentru a oferi un standard de viata occidental cu accent pus pe confort siguranta si apartenenta la o comunitate selecta Aici vei gasi case spatioase si bine structurate cu curti generoase si finisaje de inalta calitate totul inconjurate de un peisaj natural deosebit unde poti respira aer curat si te poti bucura de un mediu linistit si relaxant Cu acces controlat si iluminat cartierul este sigur pentru copii si pentru intreaga familie iar intrarea in complexul rezidential se poate face cu ajutorul unei porti cu telecomanda pe un drum privat de 7 metri latime Pentru a-ti asigura confortul si starea de bine am prevazut zone speciale pentru activitati sociale si tehnologii smart Pretul nu contine TVA
Giurgiu - 14 Aprilie 2025
99.950 €
Atenție
Din motive de securitate și pentru protecția utilizatorilor, această funcționalitate nu este disponibilă pentru locația ta.