Apartament 3 camere de vanzare decomandat 67 mp zona Doamna Stanca Sibiu nbsp Apartament luminos si spatios modern amenajat nbsp Zona in care este amplasat acest apartament este una foarte bine cotata pe piata imobiliara oferind locatarilor numeroase beneficii si acces facil catre numeroase obiective de interes public precum magazine restaurante institutii bancare si numeroase locuri de munca din zona Shopping City Avantaje majore ale acestui apartament bull Un loc de parcare inclus in pret bull Pretabil investitie sigura - bloc cu lift bull Orientare spre Soare nbsp bull Locatie ferita de aglomeratie - bloc retras de la strada principala TABOO Imobiliare propune un apartament de vanzare cu 3 camere decomandat situat in localitatea Sibiu zona Doamna Stanca aflat la etajul 5 intr -un imobil tip bloc cu regim de inaltime pe Parter 5 Etaje anul constructiei 2015 structura caramida Suprafata utila de 67 mp balcon deschis de 12 mp Apartamentul este structurat astfel bull Hol bull Bucatarie bull Baie bull Living cu balcon bull Dormitor cu balcon bull Dormitor bull Hol intermediar Finisajele interioare sunt moderne bull Usa intrare metal bull Usi interioare celulare bull Tamplarie ferestre pvc termopan bull Pereti vopsea lavabila faianta tapet bull Podele parchet gresie Utilitati si dotari bull Bucatarie mobilata utilata bull Mobilat complet bull Utilitati curent electric apa canalizare gaz catv telefon acces internet fibra optica bull Izolatii exterior bloc izolat termic bull Contorizare apometre contor gaz contor curent electric contorizare separata bull Caracteristici bloc interfon lift acoperis Apartamentul se vinde mobilat si utilat cu plita pe gaz cuptor hota masina de spalat rufe uscator rufe masina de spalat vase frigider cu congelator Incalzirea se realizeaza prin centrala proprie calorifere si dispune de sistem de climatizare A C Se accepta ca si modalitate de plata surse proprii sau credit bancar Pret 129 990EUR Cod oferta / ID P25261 Suna-ne acum la 0369 822 820 si afla detalii despre aceasta proprietate de vanzare din Sibiu dar si despre alte proprietati potrivite pentru tine Informatii speciale 1 Descarca aplicatia pe mobilul tau TABOO Imobiliare din Apple Store Google Play sau Huawei AppGallery pentru a afla instantaneu noile proprietati care intra pe piata 2 Daca ai o proprietate pe care vrei sa o vinzi sau sa o inchiriezi suntem aici pentru tine Contacteaza-ne pentru o evaluare gratuita fara obligatii si vei descoperi avantajele de a lucra cu o echipa dedicata si experimentata 3 Daca vrei sa incepi o cariera de agent imobiliar suna la 0369 822 820 si programeaza o intalnire pentru a afla toate beneficiile si avantajele Intra pe TABOO ro si descopera cele mai recente oferte actualizate zilnic Anunt actualizat in 20 octombrie 2025 Id intern P25261
⚠ AtenÈ›ie !
Nu plăti niciodată în avans într-un cont bancar până când nu l-ai întâlnit pe vânzător și ați semnat un acord.
Nu furniza informații confidențiale în discuții pe WhatsApp/Telegram sau alte aplicații de mesagerie unde utilizatorii își ascund ușor identitatea, deoarece te poți expune la fraude sau înșelăciuni.
Nu furniza niciodată detaliile cardului tău bancar (număr, data expirării, CVV). Te expune direct la fraude bancare.
Primirea unui mesaj pe WhatsApp/Telegram cu un ID scanat nu înseamnă că ai identificat cumpărătorul. Acest lucru se face pe loc, când semnați un acord de cumpărare.
Când comanzi online, alege livrarea cu verificare. Pentru un cost relativ mic, te protejezi de eventuale neplăceri.
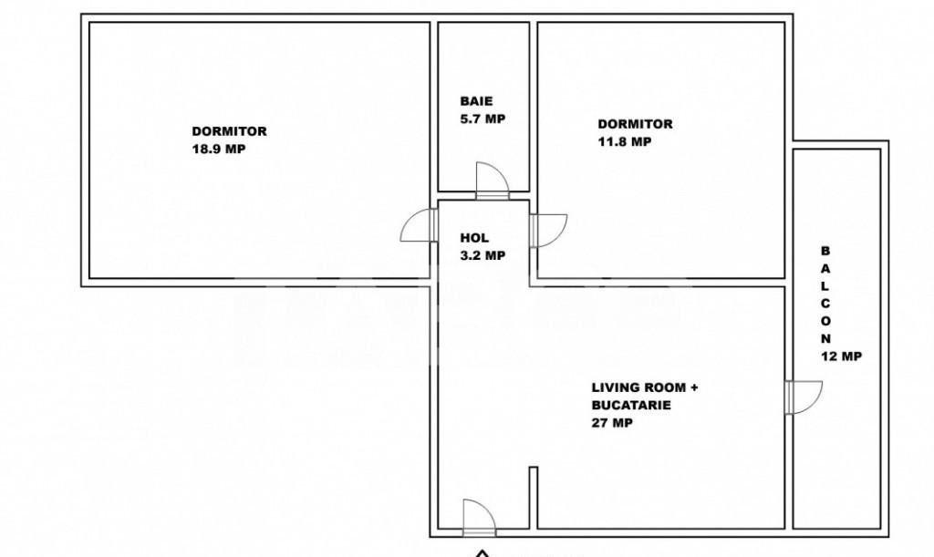
Apartament nbsp 2 camere de vanzare decomandat 76 mp zona Tiglari Sibiu nbsp nbsp Avantaje majore ale acestui apartament nbsp bull Pretabil investitie sigura bull Parcare extra pentru vizitatori bull Locatie ferita de aglomeratie TABOO Imobiliare propune mansarda de vanzare cu 2 camere decomandata situat in localitatea Sibiu zona Tiglari aflat la Mansarda intr -un imobil tip bloc cu regim de inaltime pe Parter 4 Etaje Mansarda anul constructiei 2008 structura bca Suprafata utila de 76 mp Apartamentul este structurat astfel bull Hol bull Bucatarie bull Baie bull Dormitor nbsp bull La etaj mai nbsp este un dormitor si un spatiu de depozitare Finisajele interioare sunt clasice nbsp bull Usa intrare metal bull Usi interioare celulare bull Tamplarie ferestre pvc termopan nbsp bull Pereti vopsea lavabila faianta bull Podele parchet gresie Utilitati si dotari bull Bucatarie mobilata...
Cauti o casa tip duplex cu curte gata amenajata unde sa te poti relaxa impreuna cu familia TABOO Imobiliare iti propune aceasta casa de vanzare cu 3 camere in zona Turnisor Sibiu Casa de vanzare din zona Turnisor Sibiu a fost construita in anul 2016 are suprafata construita de 100 mp cu un regim de inaltime Parter 1 etaj Casa este compartimentata astfel Parter hol living baie bucatarie Etaj hol 2 dormitoare baie balcon nbsp Terenul casei are o suprafata totala de 220 mp iar suprafata utila a casei este de 80 mp Structura cladirii este din caramida si are sistem de incalzire cu centrala proprie cu calorifere Aceasta se vinde utilata si mobilata Casa are o curte libera cu 1 loc de parcare si suficient loc pentru zona de joaca a copiilor loc de relaxare bucatarie incalzita si spatiu de depozitare nbsp nbsp Finisajele interioare sunt moderne Usa intrare pvc Usi interioare lemn Tamplarie ferestre pvc termopan Podele parchet ...
Casa cu istorie de aproximativ 100 de ani locuita la inceputuri de o familie de sasi nobili este pe piata la vanzare Aceasta casa a fost in totalitate restaurata modernizata si infrumusetata cu avizul celor de la Ministerul Culturii Proprietarul restaurand aceasta vila a incercat sa pastreze cat mai mult din autenticitatea cladirii Parchetul a fost scos bucata cu bucata si a fost reconditionat iar acum arata deosebit avand in vedere vechimea lui In interiorul vilei pe o parte din peretii unor camere s-a pastrat zugraveala veche transformand peretele intr-un decor autentic istoric Casa este intr-o zona centrala a Sibiului inconjurata de alte case istorice si este amplasata pe o suprafata de 950 m de teren Casa are un nivel de inaltime D P 1E M si are o suprafata utila totala de 600 mp impartiti astfel - Demisolul unde se poate deschide un restaurant are o suprafata utila de 204 mp iar parterul are o suprafata utila de 150 mp si are 4 camere generoase o bucat...
Iti doresti o casa individuala generoasa intr-o zona buna a orasului Aceasta casa de vanzare este situata in zona centrala a orasului Sibiu o zona linistita si cu acces facil catre toate punctele centrale si de interes public ale orasului Terenul are o suprafata totala de 320 mp nbsp din care 160 mp teren liber iar casa este compartimentata astfel - La subsol se afla 2 camere de depozitare a cate 10 mp fiecare si o crama de 17 mp - Parterul este compus dintr-o camera spatioasa cu suprafata de 53 mp fiind pretabila pentru spatiu de birou camera de zi sau living o camera de birou de 17 mp o baie un hol mare de 20 mp debara toaleta de serviciu si terasa - Etajul 1 va ofera accesul catre cele 2 dormitoare decomandate in suprafata de 17 mp fiecare un living generos de 33 mp bucatarie 2 bai si o terasa spatioasa in suprafata de 58 mp - Etajul al 2-lea confera accesul catre dormitorul matrimonial in suprafata de 26 mp dressing baie de 7 mp terasa Predarea se va f...
Casa insufletita de zona istorica a Sibiului Desi se afla intr-o zona cu case istorice acest imobil este relativ nou si a fost construit in anul 1950 si renovat in anul 2022 Business la cheie cu istoric Pozele si detalii puteti primi in privat nbsp Cand a fost ultima data cand ati gasit 1000 mp de teren de vanzare in Centrul Sibiului Imobil de vanzare in zona Orasul de Jos format din 4 case separate si teren Intregul imobil este pretabil pentru investitie tinand cont de zona excelenta in care se afla Se preteaza pentru pensiune hotel clinica sau alte domenii asemanatoare Primul corp de cladire este format din 6 camere si bai pentru fiecare camera lobby si loc de luat masa bucatarie Aceasta casa este singura finisata Corpurile de cladire 2 si 3 sunt finisate Corpul de cladire 4 este ridicat urmand a i se aduce modificari si inaltarea cu un etaj Datorita pozitionarii imobilului in apropierea Centrului Istoric acesta este pretabil pentru toate tipurile de famil...
Blitz va prezinta un apartament de 3 camere intr-un bloc de 6 etaje finalizat Apartamentul se preda la stadiul de cheie cu materiale de calitate TVA-ul de 9 si locul de parcare suprateran este inclus in pretul apartamentului Se pot achizitiona suplimentar boxe la subsolul blocului Apartamentul este situat la un parter inalt la demisolul blocului fiind amenajata parcarea interioara Compartimentarea Camera de zi cu bucatarie si loc de luat masa 26 55 m2 Dormitor 1 12 00 m2 Dormitor 2 14 75 m2 Baia mare 6 80 m2 Balcon 1 6 75 m2 Balcon 2 2 45 m2 Apartamentul beneficiaza de Loc de parcare Usa metalica de acces Usi interioare Gresie si faianta Parchet Obiecte sanitare Prize si intrerupatoare PVC Salamander cu geam termopan Low-E cu 3 foi de sticla si 5 camere Glafuri interior-exterior Centrala proprie in condensare Saunier Duval senzor de gaz Distribuitor pentru instalatia de incalzire Incalzire in pardosea Pereti tencuiti gletuiti si zugraviti in la...
Blitz va propune spre vanzare un apartamtent cu 3 camere de 74 75 mp pe care il regasim la etajul 2 si la etajul 1 3 si 4 intr-o cladiere noua in constructie cu finalizare in a 2a parte a anului 2026 Apartamentele se predau semifinisate cu Instalatiile termice electrice si sanitare trase pe pozitie Sistem de incalzire in pardoseala REHAU Pereti cu un strat de glet aplicat Sapa Tamplarie PVC REHAU Usa metalica Videointerfon Balcoane si Terase finisate Fatada placata cu caramida aparenta si Termosistem cu grad ridicat de fono si termoizolare Locuri de parcare pentru biciclete amenajate in parkingul subteran Parking subteran cu acces securizat Lifturi silentioase Supraveghere video Spatiu verde amenajat Apartamentul prezentat este compartimentant astfel 1 Living cu Bucatarie 2 Dormitoare 2 Baii si un Balcon de 5 10 mp Dispune si de loc de parcare in subteran la 12000 EURO TVA Avans minim 30 se accepta plata prin Credit Bancar LA PRETURILE AFISATE SE ADAUGA ...
Familia ta s-a marit si simti ca a venit vremea sa te muti intr-o locuinta mai spatioasa Ce parere ai de acest apartament cu trei camere amplasat in zona de vest a Capitalei in ansamblul rezidential EnVogue Residence - Iuliu Maniu Locuintele noastre au suprafete generoase semnificativ peste media practicata in piata pe categorii de apartamente iar proprietatea pe care ti-o propunem aici spre vanzare are o suprafata utila de 90 metri patrati Programand o vizionare vei descoperi ca locuinta despre care iti vorbim se distinge prin caracteristicile devenite deja obisnuinta pentru clientii EnVogue Residence anume calitatea si siguranta constructiei alaturi de finisajele din categoria premium La suprafata generoasa a acestui tip de apartament se adauga un alt avantaj pentru potentialii cumparatori anume compartimentarea sa inteligenta respectiv faptul ca este o unitate locativa decomandata - ceea ce credem ca va contribui mult la sporirea confortului tau PLUS-VALOARE N...
Vectorial Broker va prezinta un apartament de 3 camere in Tei reper Petre Antonescu confort 1 decomandat avand suprafata de 69 mp cu 2 bai si 1 balcoane Locuinta este situata la etajul 8 intr-un imobil tip bloc de 8 etaje construit in anul 1981 avand 6 apartamente pe palier Apartamentul este fara imbunatatiri are urmatoarele finisaje ferestre pvc incalzire termoficare pereti faianta lavabil podele linoleum usa intrare lemn si este pretabil pentru locuinta Recomandam aceasta proprietate persoanelor active pentru care o locuinta in apropiere de mijloacele de transport in comun statie de metrou centre comerciale supermarketuri piete agroalimentare si parcuri reprezinta un factor de decizie Pretul este usor negociabil si se accepta orice fel de creditare ID intern VB1925728
Ramiro Imob va propune spre vanzare un apartament spatios cu 3 camere situat intr-un bloc nou recent finalizat la etajul 3 din 9 Cu o suprafata totala de 80 mp locuinta este decomandata si ofera un confort optim prin compartimentarea sa inteligenta Apartamentul dispune de un living generos doua dormitoare luminoase o baie si un WC de serviciu precum si doua balcoane ce completeaza spatiul locativ oferind zone suplimentare pentru relaxare sau depozitare Finisajele sunt moderne iar constructia respecta cele mai noi standarde de siguranta si eficienta energetica Apartamentul se vinde complet mobilat si utilat Locatia este un avantaj major apartamentul aflandu-se in zona Metalurgiei in imediata apropiere a centrelor comerciale Auchan si Metro dar si a Parcului Tudor Arghezi ideal pentru petrecerea timpului liber Accesul rapid la mijloacele de transport in comun asigura o conexiune facila cu restul orasului ceea ce face ca aceasta proprietate sa fie potrivi...
București - 24 Iunie 2025
119.800 €
Atenție
Din motive de securitate și pentru protecția utilizatorilor, această funcționalitate nu este disponibilă pentru locația ta.