Vand vila construita in regie proprie individuala dispusa pe parter etaj si pod mansardat situata la 5-7min de mers pe jos pana la statia de metrou Ap Patriei avand dubla deschidere cu posibilitatea parcarii a 5 masini 2 in curte si 3 pe zona de proprietate
Se vinde fie mobilata si utilata cel putin cum se vede in fotografii fie goala dupa cum se doreste
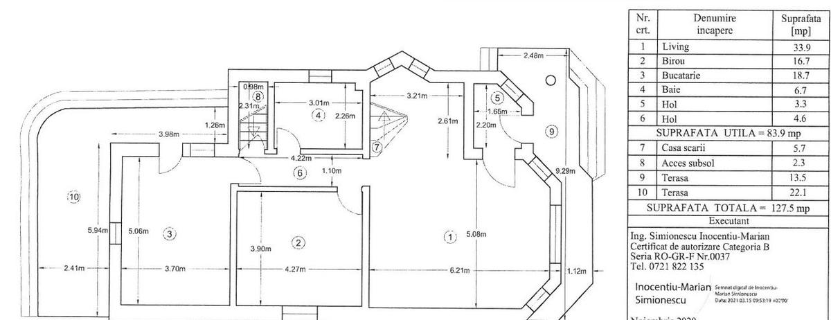
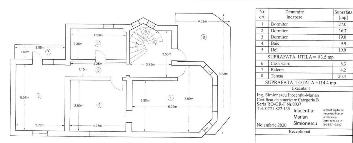
Arata exact ca in fotografii este certificata energetic casa A
Va rog sa regasiti in informatiile atasate fotografiile si releveul corespunzator pe fiecare nivel in parte
Mai multe detalii pentru potentialii clienti interesati de achizitie in mod real la tel 0720002332
Toate actele sunt pregatite pentru vanzare
Dispune atat de loc de joaca amenajat deasupra piscinei exterioare pentru copii cat si de piscina
Beneficiaza atat de toate utilitatile publice apa energie electrica gaz internet-cablu TV cat si de put propriu cu hidrofor pentru alimentarea cu apa a piscinei si intretinerea spatiului verde
⚠ AtenÈ›ie !
Nu plăti niciodată în avans într-un cont bancar până când nu l-ai întâlnit pe vânzător și ați semnat un acord.
Nu furniza informații confidențiale în discuții pe WhatsApp/Telegram sau alte aplicații de mesagerie unde utilizatorii își ascund ușor identitatea, deoarece te poți expune la fraude sau înșelăciuni.
Nu furniza niciodată detaliile cardului tău bancar (număr, data expirării, CVV). Te expune direct la fraude bancare.
Primirea unui mesaj pe WhatsApp/Telegram cu un ID scanat nu înseamnă că ai identificat cumpărătorul. Acest lucru se face pe loc, când semnați un acord de cumpărare.
Când comanzi online, alege livrarea cu verificare. Pentru un cost relativ mic, te protejezi de eventuale neplăceri.
Dezvoltator/Comision 0 Achizitie cash/credit Info/vizionari - tel 0720002332 Pretul afisat este valabil pentru plata integrala 99 la antecontract si include TVA de 9 Pentru plata a 50 din pret la antecontract pretul apartamentului este de 139900euro Amplasarea proiectului este pe Bvd N Grigorescu in apropierea statiei de autobuz 243 cam la jumatatea distantei dintre metroul N Grigorescu drumul european E81 si Splaiul Unirii raul Dambovita Fiecare apartament dispune de centrala termica proprie pe gaz Ariston incalzire in pardoseala si tamplarie termopan cu geam tripan Apartament compus din 2 camere si dependinte tip studio living deschis cu bucataria daca se doreste se poate inchide oferind spatii generoase pe fiecare zona ce defineste compartimentarea acestuia Orientarea apartamentului este pe S-E Balconul este mai mult decat generos si permite accesul din fiecare camera in parte Proiect cu regim mic de inaltime P 4 cu lift situat in zona ...
Direct dezvoltator Comision 0 Consultanta si asistenta pe toata durata procesului de achizitie fara costuri Pentru vizionari si detalii 0720002332 Important 1 Fotografiile sunt doar de prezentare dintr-un alt ansamblu finalizat de dezvoltator si vandut integral situat in aceeasi zona si nu corespund compartimentarilor prezentate in schite proiectele in sine fiind diferite 2 Pretul afisat este pentru plata cash 95 la antecontract si include TVA-ul de 21 3 Pretul pentru credit este de 118580euro TVA 21 inclus 4 Amplasarea ansamblului ofera toate facilitatile zonei din proximitatea Mall Grand Arena Apartament compus din 2 camere si dependinte generos decomandat cu predare la cheie g f p obiecte sanitare centrala termica proprie incalzire prin pardoseala contorizare individuala pentru utilitati apa energie electrica gaze internet fibra optica si cabluTV Pretul locurilor de parcare este 8 000 euro TVA loc parcare exterior / 10 000 ...
Direct dezvoltator Comision 0 Consultanta si asistenta pe toata durata procesului de achizitie fara costuri Pentru vizionari si detalii 0720002332 Important 1 Fotografiile sunt doar de prezentare dintr-un alt ansamblu finalizat de dezvoltator si vandut integral situat in aceeasi zona si nu corespund compartimentarilor prezentate in schite proiectele in sine fiind diferite 2 Pretul afisat este pentru plata cash 95 la antecontract si include TVA-ul de 21 3 Pretul pentru credit este de 121605euro TVA 21 inclus 5 Amplasarea ansamblului ofera toate facilitatile zonei din proximitatea Mall Grand Arena Apartament compus din 3 camere si dependinte decomandat cu predare la cheie g f p obiecte sanitare centrala termica proprie incalzire prin pardoseala contorizare individuala pentru utilitati apa energie electrica gaze internet fibra optica si cabluTV Pretul locurilor de parcare este 8 000 euro TVA loc parcare exterior / 10 000 euro ...
Direct dezvoltator Comision 0 Consultanta si asistenta pe toata durata procesului de achizitie fara costuri Pentru vizionari si detalii 0720002332 Important 1 Fotografiile sunt doar de prezentare dintr-un alt ansamblu finalizat de dezvoltator si vandut integral situat in aceeasi zona si nu corespund compartimentarilor prezentate in schite proiectele in sine fiind diferite 2 Pretul afisat este pentru plata cash 95 la antecontract si include TVA-ul de 21 3 Pretul pentru credit este de 116765euro TVA 21 inclus 4 Amplasarea ansamblului ofera toate facilitatile zonei din proximitatea Mall Grand Arena Apartament compus din 2 camere si dependinte generos decomandat cu predare la cheie g f p obiecte sanitare centrala termica proprie incalzire prin pardoseala contorizare individuala pentru utilitati apa energie electrica gaze internet fibra optica si cabluTV Pretul locurilor de parcare este 8 000 euro TVA loc parcare exterior / 10 000 e...
Direct dezvoltator Comision 0 Consultanta si asistenta pe toata durata procesului de achizitie fara costuri Pentru vizionari si detalii 0720002332 Important 1 Cele 5 tipuri de schite doua dintre ele sunt identice - dar in oglinda corespund acelorasi preturi de vanzare mentionate in acest anunt de promovare apartamentele corespunzatoare avand suprafete utile cuprinse intre 50 5 - 53 5 mp la care se adauga balcoane avand suprafete cuprinse intre 4 2 - 7 mp ajungand la o suprafata totala cuprinsa intre 56 5 - 57 7 mp 2 Fotografiile sunt doar de prezentare dintr-un alt ansamblu finalizat de dezvoltator si vandut integral situat in aceeasi zona si nu corespund compartimentarilor prezentate in schite proiectele in sine fiind diferite 3 Pretul afisat este pentru plata cash 95 la antecontract si include TVA-ul de 21 4 Pretul pentru credit este de 99825euro TVA 21 inclus 5 Amplasarea ansamblului ofera toate facilitatile zonei din proximitatea ...
Blitz va propune spre vanzare in exclusivitate o casa deosebita cu 4 camere situata in localitatea Mintiu la doar 15-20 de minute de Bistrita Proprietatea imbina perfect confortul modern cu spatiul generos al unei curti de 30 de ari oferind liniste si intimitate Casa este complet finisata cu finisaje moderne si iluminare eleganta fiind gata de mutat Dispune de 4 anexe functionale compuse din Bucatarie de vara garaj sura si grajd curte pavata aferenta casei iar intreg terenul este imprejmuit si beneficiaza de front stradal foarte mare Proprietatea are acoperis schimbat in 2022 iar centrala si boilerul sunt noi ceea ce garanteaza confort si eficienta energetica Avantaje cheie 4 camere spatioase si luminoase Curte generoasa de 30 ari pavata in zona casei 4 anexe utile Acoperis nou 2022 Centrala si boiler noi Finisaje moderne design ingrijit Front stradal mare teren imprejmuit Gata de mutat Exclusivitate Blitz O proprietate ...
Blitz va propune o casa spatiosa cu 10 camere cu suprafata totala de 428 mp situata in zona de nord Dormitoare foarte spatioase luminoase cu balcon spatios garaj inchis cu acces in camera tehnica si intrarea de serviciu in casa curte cu spatiu de relaxare si parcare autoturism De asemenea casa detine sistem supraveghere video si alarma Se vinde mobilata si utilata modernizata Imobilul se preteaza pentru o familie numeroasa Cod oferta / ID BLITZ P14056 Id intern P14056
Top Home Advisors va propune spre vanzare o casa de vacanta in Cheia- Prahova teren 843 mp P M 4 camere grup sanitar bucatarie terasa garaj fundatie din beton si piatra constructie lemn proiect canadian mobilata si utilata complet rustic centrala proprie cu butan toate utilitatile apa canal lumina masina de taiat iarba masina de dezapezit Pentru mai multe detalii si pentru a stabili o vizionare va rugam sa ne contactati telefonic Comision cumparator standard Vizionarea se face doar in baza semnarii unui acord de vizionare conform codului civil art 2 096-2 102 Va multumim pentru intelegere
Comision cumparator 2 TVA din valoarea de tranzactionare ASCENDENT IMOBILIARE este onorata sa va propuna spre vanzare doua casute tip A Frame amplasate excelent intr un cartier linistit de vile la 20 minute de Brasov in localitatea dezvoltata extraordinar Ghimbav Pe un teren de 300 mp sunt situate 2 casute individuale fiecare dintre acestea cu urmatoarae configuratie - camera bucatarie separata hol la intrare baie cu aerisire naturala debara pod cu acces din hol Fiecare dintre casute are structura din caramida si acoperis nou din tabla Lindab Terenul este imprejmuit in spaterle celei de a dua caute este o zona verde de gradina de aproximativ 100 mp Prima casuta are toate utilitatile gaz curent tras apa este locuita la cealalta gazul se poate racorda de la aceasta La intrare proprietatea ne intampina cu o gradina amenajata frumos cu brad argintiu si copaci Recomand proprietatea unei familii micute unui cuplu tanar sau la a doua t...
Va prezentam spre vanzare un proiect nou ce face parte dintr-un complex de 8 unitati amplasat la soseaua principala PRETURI INCEPAND CU 112 000 EURO TVA INCLUS COMISION 0 PENTRU CUMPARATOR Casa dispune de un teren individual in suprafata de 330 mp regim de inaltime P Mansarda si o suprafata interioara utila de 110 mp si poate fi compartimentata astfel 3/4/5 CAMERE si 1/2/3 BAI in functie de necesitatile fiecarui cumparator Acest proiect dispune de multiple imbunatatiri acestea fiind TERASA CAMERA TEHNICA CURENT TRIFAZIC PANOURI SOLARE CU CERTIFICAT DE PROSUMATOR POMPA DE CALDURA MONOBLOC ARISTON INCALZIRE IN PARDOSEALA PLACA PESTE PARTER IZOLATIE SPUMA POLIURETANICA-15 CM IZOLATIE CU POLISTIREN GRAFITAT -15 CM GEAMURI TRIPANE SALAMANDER BLUE EVOLUTION BETON AMPRENTAT SISTEM SUPRAVEGHERE VIDEO DRUM PRIVAT DE 7 M CU BARIERA ILUMINAT STRADAL Imobilul se vinde la cheie cu finisaje complete faianta gresie parchet usi interioare si ob...
București - 15 Iunie 2025
111.990 €
Atenție
Din motive de securitate și pentru protecția utilizatorilor, această funcționalitate nu este disponibilă pentru locația ta.