Va prezentam un apartament cu 2 camere cu o suprafata utila de aproximativ 54mp spatios si bine compartimentat bucatarie mare inchisa balcon spatios baie cu geam Apartamentul este la etajul 4 din 9 si are vedere pe spatele blocului ferit de zgomotul stradal Interiorul acestui apartament a fost renovat recent cu materiale de foarte buna calitate Se vinde mobilat si utilat gata pentru mutare Proprietarul isi opreste lucrurile personale si din electronice De cand intri in acest apartament se vede ca proprietarul nu a facut compromisuri la materialele folosite la renovare Totul arata ok te simti bine in acest apartament Termopanele sunt de calitate Mobila este ok Blocul este pe Strada Straduintei langa Bd Alexandru Obregia in fata Pietei Straduintei Blocul a fost finalizat intre anii 1965-1969 scara de bloc curata supraveghere video vecini linistiti civilizati fara datorii A fost reabiliat termic acoperisul si subsolul renovate Nu sunt probleme cu umezeala infiltratiile Sunt 2 statii de STB pana la Statia de metrou Piata Sudului In apropiere sunt Kaufland Emil Racovita Piata Straduintei Mall Sun Plaza Detalii apartament o Suprafata 54mp 2 camere baie cu geam o Etaj 4/9 bloc anvelopat o Bucatarie spatioasa inchisa Vecinatati o Scoala Gradinita Parcuri si zone verzi pentru relaxare in imediata apropiere o Acces rapid la centre comerciale Acest apartament prezinta un spatiu confortabil intr-una dintre cele mai frumoase zone din sectorul 4 aproape de Statia de metrou Piata Sudului Nu ratati ocazia de a locui intr-o zona centrala cu toate facilitatile la indemana Pentru mai multe detalii Agentia Imobiliara - Ramiro Imob - 0770 280 100 - Cornel Ion Comision Standard
⚠ AtenÈ›ie !
Nu plăti niciodată în avans într-un cont bancar până când nu l-ai întâlnit pe vânzător și ați semnat un acord.
Nu furniza informații confidențiale în discuții pe WhatsApp/Telegram sau alte aplicații de mesagerie unde utilizatorii își ascund ușor identitatea, deoarece te poți expune la fraude sau înșelăciuni.
Nu furniza niciodată detaliile cardului tău bancar (număr, data expirării, CVV). Te expune direct la fraude bancare.
Primirea unui mesaj pe WhatsApp/Telegram cu un ID scanat nu înseamnă că ai identificat cumpărătorul. Acest lucru se face pe loc, când semnați un acord de cumpărare.
Când comanzi online, alege livrarea cu verificare. Pentru un cost relativ mic, te protejezi de eventuale neplăceri.
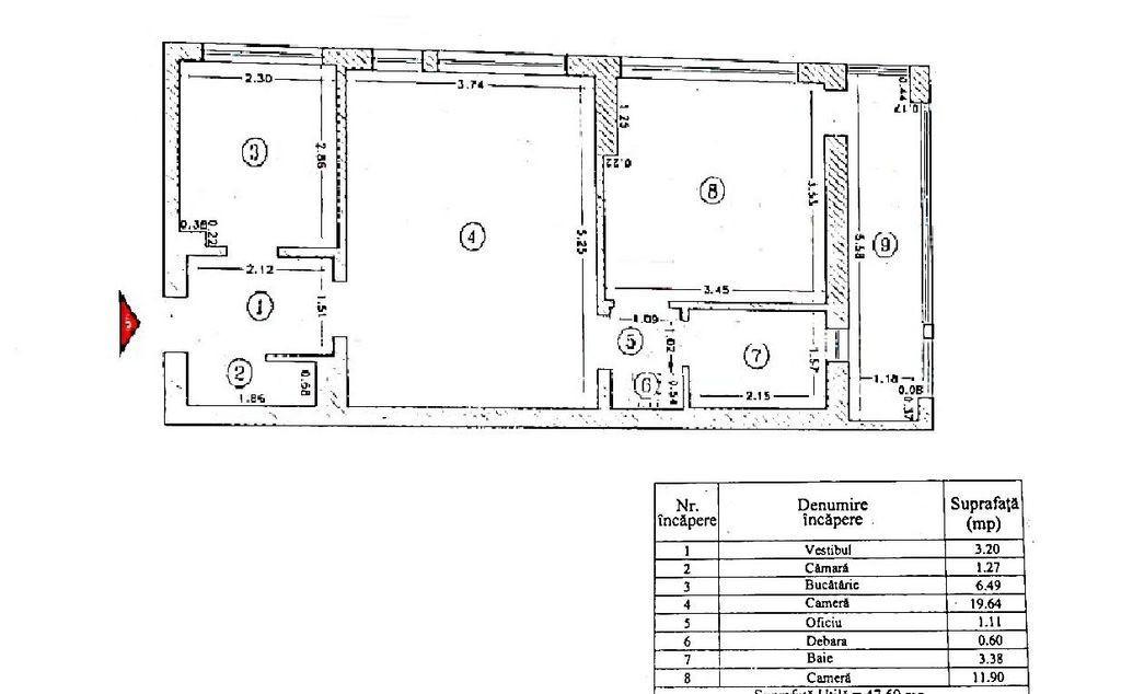
Va prezentam un apartament cu 3 camere decomandat 70mp utili spatios si bine compartimentat Balconul se intinde pe toata lungimea apartamentului Blocul pe strada Prelungirea Ferentari in apropiere de intersectia cu strada Toporasi se ajunge usor la Piata Progresul -Soseaua Giurgiului si la Statia de Metrou Eroii Revolutiei Zona este curata linistita civilizata si bine organizata la parterul blocului gasiti Oficiul Postal Farmacii si Mega Image langa bloc este deschis Lidl si Profi In fata blocului sunt statii de tramvai si STB - 11 23 139 141 220 323 N118 Apartamentul se afla la etajul 2 are vedere pe spatele blocului zgomotul stradal este redus A mai fost renovat in trecut dar nu a mai fost locuit de cativa ani Beneficiaza de centrala apartament cu calorifere Scara de bloc este ingrijita si curata vecini sunt civilizati fara datorii Blocul a fost finalizat intre anii 1976-1977 si este reabiliat termic Acest apartament p...
3C005 Va prezentam un apartament decomandat cu 3 camere spatios si bine compartimentat balcon inchis Blocul este situat in Sector 4 pe strada Alunisului in spatele Piatei Progresul langa Soseaua Giurgiului Sunt 2 statii de STB sau de Tramvai pana la Statia de metrou Eroii Revolutiei 15 min mers pe jos pana la Oraselul Copiilor -Brancoveanu Apartamentul se afla la etajul 10 deasupra etaj tehnic zona este retrasa fata de strazile cu trafic intens zgomotul stradal este redus A mai fost renovat in trecut dar nu a mai fost locuit de cativa ani De cand intri in acest apartament te surprinde vederea deschisa a orasului de la ferestre si de la balcon Blocul a fost finalizat intre anii 1976-1979 scara de bloc este curata supraveghere video vecini linistiti civilizati fara datorii Urmeaza sa fie reabiliat termic acoperisul si subsolul vor fi din nou renovate Acest apartament prezinta un spatiu confortabil in Sector 4 iar locati...
Va prezentam o casa renovata modern cu o curte spatioasa si foarte frumoasa cu foisor si o casa din lemn cu etaj care poate fi amenajata pentru locuit Suprafata utila a casei este de aproximativ 120mp 4 camere 2 bai bucatarie terasa Zona este linistita ferita de zgomotul stradal cu acces rapid la Strada Luica 400 metri si la Soseaua Giurgiului 600 metri In 10 minute de mers pe jos se ajunge la Piata Resita distanta 700metri In 7 minute de mers 400metri Statia de Stb pe strada Luica masini 102-116-220 381-N112-76 Casa a fost construita in 1970 a fost renovata acum arata foarte bine atat la interior cat si la exterior Nu sunt probleme cu umezeala infiltratiile A fost obtinuta o autorizatie de construire ptr o casa noua dar autorizatia a expirat Detalii casa o Suprafata utila 120 mp total teren 420m Vecinatati o Scoala Gradinita Parcuri si zone verzi pentru relaxare in imediata apropiere o Acces rapid la centre come...
Va oferim spre vanzare o garsonierat dubla cu o suprafata totala utila de 30mp situata intr-un bloc langa Auchan Titan Blocul este situat in apropiere de intersectia Bd 1 Decembrie cu Str Liviu Rebreanu la 15 minute de mers de la bloc la intrarea in statia de metrou Titan Garsoiera dispune de urmatoarele caracteristici - bloc finalizat in 1976 anvelopat - suprafata utila garsoniera 30mp 2 camere - renovat in 2017 necesita o noua vopsea lavabila la interior mobilat si utilat - posibilitate parcare de la primarie in fata blocului parcarea nu este niciodata plina Avantaje zona - o zona moderna bine dezvoltata Parcul Titan si Parcul Teilor in apropiere - magazine scoli gradinite in imediata apropiere Nu ratati ocazia de a cumpara acesta garsoniera dubla situat intr-o zona centrala cu toate facilitatile la indemana Pentru mai multe detalii Agentia Imobiliara - Ramiro Imob - 0770 280 100 - Cornel Ion Comision Standard
Apartament 2 camere 53mp etajul 3 centrala balcon inchis Blocul este in apropiere de intersectia Drumul Cretestilor cu Bd Metalurgiei De la bloc mers pe jos 12 minute pana la statia de metrou Dimitrie Leonida -1000m Apartamentul este luminos blocul a fost finalizat in 2012 In prezent este renovat - proaspat zugravit usa metalica la intrare gresie si faianta la baie termopane aer conditionat si centrala termica proprie exista geam la baie -- parchetul 2 usi interioare si cada nu sunt montate Loc de parcare in fata blocului Parcarea cu porti cu telecomanda Nu ratati ocazia de a cumpara acest apartament intr-un ansamblu rezidential modern cu toate facilitatile la indemana Pentru mai multe detalii Agentia Imobiliara - Ramiro Imob - 0770 280 100 - Cornel Ion Comision Standard
Doar in luna AUGUST beneficiezi de un DISCOUNT DE 10 din valoarea avansului Pretul prezentat este pentru avans de 50 din valoarea apartamentului Va prezint un apartament cu doua camere decomandat bine compartimentat cu suprafata de 65 mp cu logie de 10 mp bucatarie inchisa cu suprafata de 10 5 mp situat la etajul 3 intr-un bloc cu 10 etaje Apartamentul se preda finisat la cheie cu baie complet dotata cu obiecte sanitare montate si bransat la toate utilitatile Finisajele sunt de buna calitate executate cu atentie la detalii iar in unele situatii chiar vi le puteti alege in anumite conditii Termenul de finalizare al constructiei este luna Septembrie 2025 Pana la aceasta data cladirea va fi racordata la toate utilitatile apartamentul va fi complet finisat si dotat si puteti chiar incepe mobilarea Zona in care se afla imobilul este una foarte usor accesibila cu acces rapid catre mijloace de transport in comun metrou autobuz troleibuz tramvai ...
Direct proprietar vand apartament renovat total in luna mai 2025 Usa metalica usile de interior gresia si faianta parchetul de 10 mm termopan si obeiectele sanitare sunt noi Finisajele sunt de calitate Instalatie sanitara si electrica noua Blocul este reabilitat termic clasa energetica A pozitionat la o distanta de doar 7 minute pana la metrou Scara blocului este curata si ingrijita Pretul este negociabil Accept credit Cadastru si intabulare
Blitz ofera spre vanzare un apartamente intr-un bloc nou cu regim de inaltime optim situat in zona Petrom - Calea Baciului o zona aflata in plina dezvoltare cu acces rapid catre oras si toate facilitatile necesare in apropiere Caracteristici generale Constructie noua finalizata Izolatie exterioara premium de 15 cm pentru eficienta termica ridicata Apartamente semifinisate pereti gletuiti instalatii trase pe pozitii sapa turnata Centrala termica proprie Incalzire in pardoseala Termopane de calitate superioara usa metalica la intrare Facilitati si avantaje Parcari exterioare disponibile Spatii comerciale magazine carmangerie in imediata apropiere Statie de autobuz langa bloc Acces facil catre oras intr-o zona linistita ideala pentru rezidenta sau investitie Preturile sunt TVA 21 Lista actualizata cu apartamentele disponibile este disponibila la cerere Pentru mai multe detalii sau pentru a programa o vizionare te rugam sa ne contactezi Cod oferta /...
Apartament deosebit decomandat 62 mp situat la etajul 4/6 al unui bloc solid construit in 2009 Facilitati interioare si exterioare Imbunatatiri si finisaje moderne Lift si interfon pentru siguranta si confort Bloc reabilitat termic structura din beton si caramida Complet utilat si mobilat modern Aveti nevoie sa obtineti un credit va putem ajuta cu broker gratuit Pentru mai multe detalii vizionari sau oferte similare in zona contactati-ma 0749 080 500 Stefan
REA1021347 SVN Floreasca va propune spre vanzare un apartament cu 2 camere situat intr-un imobil edificat in anul 1959 in zona Spliul Independentei vizavi de Parcul Izvor si foarte aproape de Parcul Cismigiu Apartamentul se afla la etajul 5/7 este semidecomandat si are o suprafata utila de 45 mp la care se adauga un balcon de 3 mp Proprietatea este compusa din 2 camere spatioase si luminoase si beneficiaza de o vedere panoramica catre cladirile interbelice din zona catre Parcul Izvor si Raul Dambovita Blocul este dotat cu centrala termica proprie Imobilul este situat in zona ultracentrala a Bucurestiului beneficiind de acces facil catre principalele atractii si facilitati ale orasului In imediata apiere gasim magazine institutii bancare gradinite scoli licee farmacii restaurante Proprietatea a fost exertizata si nu prezinta risc seismic Pentru mai multe informatii sau pentru stabilirea unei vizionari nu ezitati sa ne contactati
București - 12 Iunie 2025
97.900 €
Atenție
Din motive de securitate și pentru protecția utilizatorilor, această funcționalitate nu este disponibilă pentru locația ta.