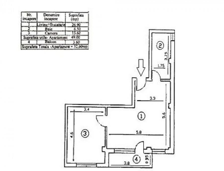
Apartament 2 camere 53mp etajul 3 centrala balcon inchis Blocul este in apropiere de intersectia Drumul Cretestilor cu Bd Metalurgiei De la bloc mers pe jos 12 minute pana la statia de metrou Dimitrie Leonida -1000m Apartamentul este luminos blocul a fost finalizat in 2012 In prezent este renovat - proaspat zugravit usa metalica la intrare gresie si faianta la baie termopane aer conditionat si centrala termica proprie exista geam la baie -- parchetul 2 usi interioare si cada nu sunt montate Loc de parcare in fata blocului Parcarea cu porti cu telecomanda Nu ratati ocazia de a cumpara acest apartament intr-un ansamblu rezidential modern cu toate facilitatile la indemana Pentru mai multe detalii Agentia Imobiliara - Ramiro Imob - 0770 280 100 - Cornel Ion Comision Standard
⚠ AtenÈ›ie !
Nu plăti niciodată în avans într-un cont bancar până când nu l-ai întâlnit pe vânzător și ați semnat un acord.
Nu furniza informații confidențiale în discuții pe WhatsApp/Telegram sau alte aplicații de mesagerie unde utilizatorii își ascund ușor identitatea, deoarece te poți expune la fraude sau înșelăciuni.
Nu furniza niciodată detaliile cardului tău bancar (număr, data expirării, CVV). Te expune direct la fraude bancare.
Primirea unui mesaj pe WhatsApp/Telegram cu un ID scanat nu înseamnă că ai identificat cumpărătorul. Acest lucru se face pe loc, când semnați un acord de cumpărare.
Când comanzi online, alege livrarea cu verificare. Pentru un cost relativ mic, te protejezi de eventuale neplăceri.
Apartament 2 camere 53mp etajul 3 centrala balcon inchis Blocul este in apropiere de intersectia Drumul Cretestilor cu Bd Metalurgiei De la bloc mers pe jos 12 minute pana la statia de metrou Dimitrie Leonida -1000m Apartamentul este luminos blocul a fost finalizat in 2012 In prezent este renovat partial - parchetul 2 usi interioare si cada nu sunt montate Nu ratati ocazia de a cumpara acest apartament intr-un ansamblu rezidential modern cu toate facilitatile la indemana Pentru mai multe detalii Agentia Imobiliara - Ramiro Imob - 0770 280 100 - Cornel Ion Comision Standard
Va oferim spre vanzare o garsonierat dubla cu o suprafata totala utila de 30mp situata intr-un bloc langa Auchan Titan Blocul este situat in apropiere de intersectia Bd 1 Decembrie cu Str Liviu Rebreanu la 15 minute de mers de la bloc la intrarea in statia de metrou Titan Garsoiera dispune de urmatoarele caracteristici - bloc finalizat in 1976 anvelopat - suprafata utila garsoniera 30mp 2 camere - renovat in 2017 necesita o noua vopsea lavabila la interior mobilat si utilat - posibilitate parcare de la primarie in fata blocului parcarea nu este niciodata plina Avantaje zona - o zona moderna bine dezvoltata Parcul Titan si Parcul Teilor in apropiere - magazine scoli gradinite in imediata apropiere Nu ratati ocazia de a cumpara acesta garsoniera dubla situat intr-o zona centrala cu toate facilitatile la indemana Pentru mai multe detalii Agentia Imobiliara - Ramiro Imob - 0770 280 100 - Cornel Ion Comision Standard
Va propunem spre vanzare un apartament de 2 camere decomandat cu o suprafata totala de aproximativ 52 mp Este situat la etajul 4 al unui bloc finalizat in 1973 -1975 langa Scoala Gimnaziala Emil Racovita si Gradinita Strop de Roua Apartamentul necesita renovare insa are urmatoarele avantaje - este decomandat si compartimentat eficient beneficiaza de un balcon spatios este un apartament luminos Este recomandat pentru cine doreste sa cumpere un apartament in zona de metrou M2 - Aparatorii Patriei -Bucuresti - Sector 4 si Popesti Leordeni si vrea sa ii personalizeze interiorul Nu ratati ocazia de a locui intr-o zona centrala cu toate facilitatile la indemana Pentru mai multe detalii Agentia Imobiliara - Ramiro Imob - 0770 280 100 - Cornel Ion Comision Standard
Va prezentam o casa renovata modern cu o curte spatioasa si foarte frumoasa cu foisor si o casa din lemn cu etaj care poate fi amenajata pentru locuit Suprafata utila a casei este de aproximativ 120mp 4 camere 2 bai bucatarie terasa Zona este linistita ferita de zgomotul stradal cu acces rapid la Strada Luica 400 metri si la Soseaua Giurgiului 600 metri In 10 minute de mers pe jos se ajunge la Piata Resita distanta 700metri In 7 minute de mers 400metri Statia de Stb pe strada Luica masini 102-116-220 381-N112-76 Casa a fost construita in 1970 a fost renovata acum arata foarte bine atat la interior cat si la exterior Nu sunt probleme cu umezeala infiltratiile A fost obtinuta o autorizatie de construire ptr o casa noua dar autorizatia a expirat Detalii casa o Suprafata utila 120 mp total teren 420m Vecinatati o Scoala Gradinita Parcuri si zone verzi pentru relaxare in imediata apropiere o Acces rapid la centre com...
Va prezentam o casa deosebita super finisata si utilata cu peste 150mp utili teren 1000mp situata in Frumusani zona superba langa Lac Primaria Frumusani este la cateva sute de metri O casa care impresioneaza prin design si compartimentare prin calitatea constructiei prin detaliile finisajelor interioare si exterioare si nu in ultimul rand prin curte si gradina Curtea are la pretul afisat 500mp si poate fi marita la 1000mp Proprietarul detine un teren de 500mp lipit de curtea actuala care poate fi cumparat la pretul zonei In acest moment la pretul cerut este una dintre cele mai bune oferte pentru un potential cumparator Constructia casei a fost facuta respectand toate procedurile necesare si prin utilizarea celor mai bune materiale A fost construita pentru folosinta pe termen lung dar din motive personale proprietarul trebuie sa se mute in partea de Nord a Bucurestiului Amenajarea interioara si fatada cladirii au fost personalizate de catre ...
Apartament cu doua camere decomandat renovat etaj intermediat in bloc anvelopat situat stradal la inbtersectia strazilor Turnu Magurele cu Bd Alexandru Obregia langa Carrefour Grand Arena Zona este superba in plina dezvoltare langa Pasajul Europa Unita zona foarte bine conectata la reteaua de transport in comun cu statie STB in fata blocului - linie directa catre metrou Aparatorii Patriei sau Piata Sudului Ideal pentru locuinta proprie sau pentru investitie pregatit pentru vanzare si mutare imediata 0773 747 898 Mircea pentru detalii si vizionari
Ramiro Imob va propune spre achizitie un apartament cu 2 camere semidecomandat situat pe Bulevardul Basarabia NR62 cu acces facil la mijloacele de transport in comun si toate facilitatile urbane din zona Locuinta este amplasata stradal la etajul 4 din 10 intr-un bloc dotat cu lift si reabilitat termic ceea ce asigura un plus de confort termic si eficienta energetica Cu o suprafata de 50 mp apartamentul ofera un spatiu generos si bine compartimentat ideal pentru a fi transformat intr-un camin modern si functional Proprietatea necesita renovare completa ceea ce ofera viitorului proprietar libertatea de a-l amenaja exact asa cum isi doreste adaptat propriului stil si nevoi Este o oportunitate excelenta atat pentru locuire cat si ca investitie avand in vedere locatia sa excelenta intr-o zona activa si bine cotata a Capitalei Comisionul este standard iar pretul de vanzare este de 69 000 euro Pentru detalii si vizionari va rugam sa o contactati pe Adrian 0730...
Va propunem spre vanzare un apartament deosebit cu 2 camere semi-decomandat avand o suprafata totala de 8 mp situat in Cartier Florilor cu acces rapid catre multe puncte de interes Imobilul se afla la etajul 4 din 4 intr-un bloc solid construit in anul 1968 Bloc reabilitat/anvelopat incalzire prin panouri radiante Zona este linistita si bine conectata la mijloacele de transport in comun iar in apropiere se regasesc magazine restaurante terase si parcuri ceea ce asigura un stil de viata modern si confortabil Daca apreciati aceasta oferta sau pentru alte informatii sunati la numarul de contact din anunt Ne dorim sa iti oferim cea mai placuta experienta pentru descoperirea proprietatii ideale Clarificari aditionale Informatiile tehnice au caracter orientativ ele fiind preluate de la proprietari Id intern P214889
ID intern 28925 Echipa Motuma Regal va propune spre vanzare un apartament cu 2 camere din anul 1963 cu suprafata de 55 mp pozitionat in zona Drumul Taberei Imobilul se afla la etajul 3/10 o baie un balcon incalzirea se realizeaza prin termoficare se vinde mobilat si utilat contor de gaz separat Tranzactionarea cu noi iti aduce urmatoarele beneficii - Consultanta pe parcursul colaborarii - Modificare rol fiscal la circa financiara in baza procurii - Modificare contract utilitati gaz
Vectorial Broker va prezinta un apartament de 2 camere decomandat situat la etajul 9 din 10 intr-un bloc reabilitat termic construit in anul 1978 in zona Vitan
București - 24 August 2025
97.900 €
Atenție
Din motive de securitate și pentru protecția utilizatorilor, această funcționalitate nu este disponibilă pentru locația ta.