Apartament 3 camere de vanzare decomandat 67 mp zona Mihai Viteazul Sibiu Avantaje majore ale acestui apartament bull Decomandare cu bucatarie separata bull Orientare spre curte interioara ndash liniste lumina naturala pe tot parcursul zilei bull Zona retrasa de la zgomotul bulevardului bull Zona excelenta aproape de magazine scoli gradinite statii de autobuz farmacii piata agroalimentara bull Locatie ferita de aglomeratie TABOO Imobiliare propune un apartament de vanzare cu 3 camere decomandat situat in localitatea Sibiu zona Mihai Viteazul aflat la etajul 4 intr -un imobil tip nbsp bloc cu regim de inaltime pe Parter 10 Etaje anul constructiei 1970 structura beton Suprafata utila de 67 mp balcon deschis de 4 mp Apartamentul este structurat astfel bull Hol de compartimentare bull Bucatarie separata cu camara bull Baie de serviciu grup sanitar bull Baie cu cada bull Living cu balcon bull Dormitor bull Dormitor Finisajele interioare sunt moderne bull Usa intrare metal bull Usi interioare celulare lemn bull Tamplarie ferestre pvc termopan bull Pereti vopsea lavabila faianta bull Podele parchet gresie Utilitati si dotari bull Bucatarie mobilata utilata bull Mobilat complet bull Utilitati curent electric apa canalizare gaz catv telefon acces internet fibra optica bull Izolatii exterior bloc izolat termic bull Contorizare apometre contor gaz contor curent electric contorizare separata bull Caracteristici casa/vila interfon lift acoperis Apartamentul se vinde mobilat si utilat cu aragaz cuptor hota masina de spalat rufe frigider cu congelator Incalzirea se realizeaza prin centrala proprie calorifere Se accepta ca si modalitate de plata surse proprii sau credit bancar Pret 129 950EUR Cod oferta / ID P24906 Suna-ne acum la 0369 822 820 si afla detalii despre aceasta proprietate de vanzare din Sibiu dar si despre alte proprietati potrivite pentru tine Informatii speciale 1 Descarca aplicatia pe mobilul tau TABOO Imobiliare din Apple Store Google Play sau Huawei AppGallery pentru a afla instantaneu noile proprietati care intra pe piata 2 Daca ai o proprietate pe care vrei sa o vinzi sau sa o inchiriezi suntem aici pentru tine Contacteaza-ne pentru o evaluare gratuita fara obligatii si vei descoperi avantajele de a lucra cu o echipa dedicata si experimentata 3 Daca vrei sa incepi o cariera de agent imobiliar suna la 0369 822 820 si programeaza o intalnire pentru a afla toate beneficiile si avantajele Intra pe TABOO ro si descopera cele mai recente oferte actualizate zilnic Anunt actualizat in 1 octombrie 2025 Id intern P24906
⚠ AtenÈ›ie !
Nu plăti niciodată în avans într-un cont bancar până când nu l-ai întâlnit pe vânzător și ați semnat un acord.
Nu furniza informații confidențiale în discuții pe WhatsApp/Telegram sau alte aplicații de mesagerie unde utilizatorii își ascund ușor identitatea, deoarece te poți expune la fraude sau înșelăciuni.
Nu furniza niciodată detaliile cardului tău bancar (număr, data expirării, CVV). Te expune direct la fraude bancare.
Primirea unui mesaj pe WhatsApp/Telegram cu un ID scanat nu înseamnă că ai identificat cumpărătorul. Acest lucru se face pe loc, când semnați un acord de cumpărare.
Când comanzi online, alege livrarea cu verificare. Pentru un cost relativ mic, te protejezi de eventuale neplăceri.
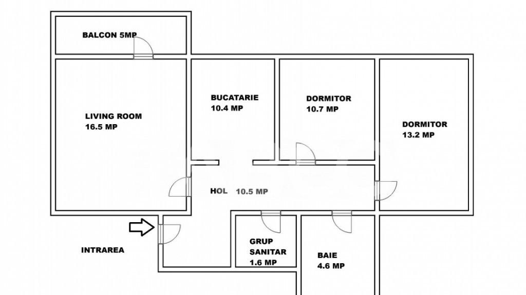
Apartament 3 camere de vanzare nedecomandat 51 mp zona Centrul Istoric Sibiu Exclusivitate Comision 0 nbsp Avantaje majore ale acestui apartament bull 2 bai bull Locatie bull Poate fi folosit ca 2 unitati pentru regim hotelier TABOO Imobiliare propune un apartament de vanzare cu 3 camere nedecomandat situat in localitatea Sibiu zona Centrul Istoric aflat la etajul P intr -un imobil tip casa/vila cu regim de inaltime pe Parter 1 Etaje anul constructiei 1795 structura caramida Suprafata utila de 51 mp terasa de 10 mp Apartamentul este structurat astfel bull Hol bull Bucatarie bull 2 bai bull Living bull 2 dormitore bull Camara Finisajele interioare sunt moderne bull Usa intrare metal bull Usi interioare lemn bull Tamplarie ferestre pvc termopan bull Pereti vopsea lavabila faianta bull Podele parchet gresie Utilitati si dotari bull Bucatarie mobilata utilata bull...
Comision 0-Exclusivitate Apartament nbsp de vanzare nbsp cu 2 camere semidecomandate si pivinita la subsol 40 mp pe strada Plugarilor din zona Mihai Viteazul Sibiu nbsp TABOO Imobiliare propune un apartament de vanzare cu 2 camere semidecomandat si pivnita la subsol situat in localitatea Sibiu pe strada Plugarilor din zona nbsp Mihai Viteazul aflat la etajul 3 intr -un imobil tip bloc cu regim de inaltime pe Parter 4 Etaje anul constructiei 1980 structura beton Suprafata utila de 40 mp balcon de 3 mp Apartamentul este structurat astfel bull Hol bull Bucatarie bull Baie bull Living cu balcon bull Dormitor bull Hol intermediar Finisajele interioare sunt clasice nbsp bull Usa intrare Stejar bull Usi interioare celulare bull Tamplarie ferestre pvc bull Pereti vopsea lavabila faianta bull Podele parchet gresie Utilitati si dotari bull Bucatarie mobilata utilata bull Mobilat complet ...
Apartament 2 camere de vanzare decomandat 54 mp zona Strand Sibiu Apartament 2 camere decomandat complet renovat situat in zona Strand Gata de mutat cu finisaje moderne si camere luminoase Ideal pentru locuit sau investitie Acces facil la magazine scoli si transport TABOO Imobiliare propune un apartament de vanzare cu 2 camere decomandat situat in localitatea Sibiu zona Strand aflat la etajul 2 intr -un imobil tip bloc cu regim de inaltime pe Parter 4 Etaje anul constructiei 1990 structura caramida Suprafata utila de 54 mp balcon de 6 mp Apartamentul este structurat astfel bull Hol bull Bucatarie bull Living cu balcon bull Dormitor bull Baie Finisajele interioare sunt moderne bull Usa intrare metal bull Usi interioare celulare nbsp nbsp nbsp nbsp nbsp nbsp nbsp bull Tamplarie ferestre pvc termopan nbsp nbsp nbsp bull Pereti vopsea lavabila faianta bull Podele parchet gresie ...
Apartament 2 camere de vanzare decomandat 48 mp zona Doamna Stanca Sibiu Avantaje majore ale acestui apartament bull nbsp Un loc de parcare inclus in pret bull Constructie noua bull Pretabil investitie sigura bull Parcare extra pentru vizitatori bull nbsp Locatie ferita de aglomeratie TABOO Imobiliare propune un apartament de vanzare cu 2 camere decomandat situat in localitatea Sibiu zona Doamna Stanca aflat la etajul intermediar 2 intr-un imobil tip bloc cu regimul de inaltime parter 3 etaje anul constructiei 2025 pe structura din caramida Suprafata utila de 48 mp balcon de 4 mp Apartamentul este structurat astfel bull Hol bull Living bull Bucatarie cu iesire in balcon bull Baie bull Dormitor Finisajele interioare sunt nbsp moderne bull Usa intrare metal bull Usi interioare lemn Porta Doors bull Tamplarie ferestre pvc termopan bull Pereti vopsea lavabila faianta bull Podele parchet...
Casa individuala de vanzare teren 198 mp 4 camere bucatarie 2 bai pivnita filigorie 101 mp utili zona Orasul de Jos Sibiu Avantaje majore ale acestei case bull Zona-la 2 minute de Centrul Istoric bull Curte individuala bull Pretabil spatiu comercial TABOO Imobiliare va propune o casa de vanzare cu 4 camere situata in localitatea Sibiu zona Orasul de Jos avand regimul de inaltime parter etaj pod pe structura din caramida Casa dispune de o suprafata utila de 101 mp pivnita de 8 mp terasa cu filigorie de 15 mp o anexa de 25 mp pentru depozitare si o curte libera de 100 mp perfecta pentru relaxare si timp de calitate petrecut in familie Casa este compartimentata astfel La parter se afla bucataria o camera mare si o baie cu geam de aerisire La etaj accesul se face pe o scara exterioara si avem un hol mare la intrare o debara baie cu geam de aerisire de unde se face si accesul in pod si 3 camere Casa se vinde mobilata si utilata cu aragaz nb...
Apartartament decomandat structura mare etaj intermediar zona Astra- Liceul de Informatica Compus din 3 camere bucatarie 2 bai hol balcon Detine centrala termica proprie si geamuri termopan Id intern RTI6557
Apartament 3 camere de vanzare decomandat 70 mp zona Calea Cisnadiei - Arhitectilor Sibiu Lumina naturala si liniste deplina perfecte pentru un stil de viata echilibrat Locul ideal unde fiecare zi incepe cu calm si se incheie cu zambet Un camin care inspira tihna si armonie Avantaje majore ale acestui apartament bull Pod generos cu acces din locuinta bull Locatie ferita de aglomeratie TABOO Imobiliare propune un apartament de vanzare cu 3 camere decomandat situat in localitatea Sibiu zona Calea Cisnadiei - Arhitectilor aflat la etajul 2 intr -un imobil tip casa/vila cu regim de inaltime pe Parter 2 Etaje anul constructiei 2018 structura caramida Suprafata utila de 70 mp balcon de 4 mp Apartamentul este structurat astfel bull Bucatarie openspace bull Baie bull Living cu balcon bull Dormitor cu balcon bull nbsp Dormitor bull Hol intermediar Finisajele interioare sunt clasice bull Usa intrare metal bull U...
ID intern 28892 Va propunem spre vanzare un apartament format din 3 camere compartimentarea fiind decomadata situat la etajul 3 din 4 cu o suprafata utila de 68 mp confortul termic este realizat prin termoficare an constructie 1980 se vinde doar cu mobila de bcatarie si electrocasnice in proximitate se regasesc urmatoarele puncte farmaceutice medicale comerciale educationale bancare parcuri metrou piete
semistradal Poiana cu Aluni P/8 cf 1 dec 80 mp 2 bai cu geam de aerisire 2 balcoane centrala termica proprie mobilat modern si utilat complet ideal investitie bucatarie mare patrata gresie faianta parchet termopan calorifere noi liber zona linistita cu verdeata acte o k accept credit negociabil Ideal pentru o investitie potential bun la inchiriere - la 550-600 euro/luna Acces rapid la mijloacele de transport in comun Pozitie buna Apropiere de Mc Donalds Mega Image Parcul si Lacul Plumbuita Posta Scoala Generala nr 39 Scoala Araba Liceul Informatic str Maior Vasile Bacila blocurile ANL Raul Colentina str Rascoala 1907 Piata Colentina str Cremenita sos Fundeni Parcul Motodrom locuri de joaca pentru copii fast food-uri banci farmacii pizzerii restaurante supermarketuri magazine diverse etc
Va propun un apartament intr-o vila interbelica contruita in 1934 cu un regim de inaltime S P 1 M Aflat la etajul 1 apartamentul este o oportunitate atat pentru locuire cat si pentru investitie Locuinta izolata termic prin interior este compusa din 3 camere decomandate spatioase luminoase o baie cu aerisire proprie cu geam o bucatarie mare o camara si un vestibul spatios Suprafata utila este de 62 mp la care se adauga un balcon si o terasa rezultand o suprafata urila totala de 69 14 mp Suplimentar proprietatea include o cota de 35 din subsolul cladirii precum si din terenul curtii In timp proprietatea a fost renovata fiind schimbate instalatiile sanitare si electrice Incalzirea se realizeaza cu ajutorul aparatelor de aer conditionat si al convectoarelor Teava de gaz este pe palier Nu se asigura loc de parcare dar se poate parca pe strada In plus statia de metrou Tineretului este la 3-4 minute pe jos Apartamentul se poate achizitiona liber sau...
București - 23 Iulie 2025
169.850 €
Atenție
Din motive de securitate și pentru protecția utilizatorilor, această funcționalitate nu este disponibilă pentru locația ta.