Exclusivitate PASCU Imobiliare Blocul este situat adiacent din bulevardul Theodor Pallady pe drumul Gura Solcii are un regim de inaltime S P 7 finalizat in anul 2020 structura din beton armat compartimentari perimetrale din caramida Porotherm izolat exterior cu polistiren 10cm dotat cu camere de supraveghere si interfon Cea mai apropiata statie de metrou este Anghel Saligny iar in aproximativ 18 minute de mers pe jos se afla un complex comercial format din Ikea Lidl Metro Auchan Jumbo Dechatlon Apartamentul este proaspat igienizat se afla la etajul 4 are o suprafata utila de 71 metri patrati bucatarie 2 balcoane unul cu acces din living si celalalt din dormitor 2 bai mobilate-utilate ambele avand cada Apartamentul este finisat complet dotat cu usa metalica anti-efractie usi interioare celulare geamuri termopan cu tamplarie PVC 6 camere parchet laminat gresie si faianta import Spania in hol baie si bucatarie Apartamentul dispune de centrala termica proprie in condensare pe gaz calorifere din panouri te otel aparat de aer conditionat Inverter iar bucataria este mobilata la comanda si complet utilata combina frigorifica cuptor aragaz hota telescopica Imobilul este liber disponibil imediat Apartamentul este liber disponibil imediat Carte Funciara libera de sarcini si litigii Pentru mai multe detalii si stabilirea unei vizionari accesati pascuimobiliare ro
⚠ AtenÈ›ie !
Nu plăti niciodată în avans într-un cont bancar până când nu l-ai întâlnit pe vânzător și ați semnat un acord.
Nu furniza informații confidențiale în discuții pe WhatsApp/Telegram sau alte aplicații de mesagerie unde utilizatorii își ascund ușor identitatea, deoarece te poți expune la fraude sau înșelăciuni.
Nu furniza niciodată detaliile cardului tău bancar (număr, data expirării, CVV). Te expune direct la fraude bancare.
Primirea unui mesaj pe WhatsApp/Telegram cu un ID scanat nu înseamnă că ai identificat cumpărătorul. Acest lucru se face pe loc, când semnați un acord de cumpărare.
Când comanzi online, alege livrarea cu verificare. Pentru un cost relativ mic, te protejezi de eventuale neplăceri.
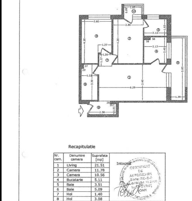
Exclusivitate PASCU Imobiliare Comision zero Blocul este situat pe strada Vigoniei adiacent din soseaua Giurgiului la doar 15 minute de statia de metrou Eroii Revolutiei folosind mijloacele de transport in comun In imediata apropiere se gasesc gradinite crese si scoli plus liceul Energetic centre comerciale iar in fata parcului este amenajat un parculet de joaca pentru copii Blocul are un regim de inaltime S P 7 structura de rezistenta pe cadre si plansee din beton armat inchideri perimetrale si compartimentari interioare din caramida si a fost finalizat in 1968 Apartamentul este confort I decomandat are o suprafata utila de 50 metri patrati ce include si balconul inchis cu acces din living beneficiaza de multiple spatii de depozitare si baie dotata cu geam si cada Se bucura de expunere pe Vest catre spatii verzi si vedere neobturata Apartamentul se vinde cu loc de parcare mobilat si utilat exact ca in poze bucatarie mobilata la co...
Exclusivitate PASCU Imobiliare Ideal pentru locuit sediu firma sau gazduire salariati Vila are o pozitie excelenta aflandu-se in Otopeni langa Aeroportul International Henri Coanda fiind singurul complex de case/vile Proprietatea are un regim de inaltime P 2 cu o suprafata utila totala de 190 metri patrati utili si teren in suprafata de 300 metri patrati Vila a fost construita in anul 2021 are o structura de rezistenta pe fundatii cadre si plansee din beton armat compartimentarea fiind din caramida izolatie termica exterioara cu polistiren 10 cm geamuri termopan Low-E tamplarie PVC 5 camere Sistem de incalzire asigurat de centrala termica proprie in condensare alimentata cu gaz natural calorifere din panouri de otel instalatii de apa si caldura integral din PPR Parterul cuprinde un living generos de 25 metri patrati utili cu iesire pe terasa si curtea posterioara cu multiple suprafete vitrate o bucatarie inchisa in suprafat...
Exclusivitate PASCU Imobiliare Apartamentul face parte din ansamblul New Point situat pe bulevardul Pipera nr 168 finalizat in anul 2019 ce cuprinde 6 blocuri cu regim de inaltime P 9 ansamblu premium cu o pozitie ideala ce se bucura de spatii verzi zone de recreere acces securizat paza umana 24/24 si supraveghere video Apartamentul este situat la etajul 6/9 este semi-decomandat cu o suprafata de 50 metri patrati utili balcon cu acces din living bucatarie open-space si se inchiriaza mobilat si utilat complet premium conform pozelor Impreuna cu apartamentul se inchiriaza si locul de parcare privat vizibil din apartament Imobilul este dotat cu usa metalica anti-efractie videointerfon centrala termica proprie in condensatie geamuri tripan cu tamplarie PVC parchet laminat 12 mm import Austria gresie si faianta import Itaia aparat de aer conditionat Inverter televizor smart Samsung QLED Bucataria este mobilata la comanda si utilata...
Exclusivitate PASCU Imobiliare Apartamentul face parte din ansamblul New Point situat pe bulevardul Pipera nr 168 finalizat in anul 2019 ce cuprinde 6 blocuri cu regim de inaltime P 9 ansamblu premium cu o pozitie ideala ce se bucura de spatii verzi zone de recreere acces securizat paza umana 24/24 si supraveghere video Apartamentul este situat la etajul 6/9 este semi-decomandat cu o suprafata de 50 metri patrati utili balcon cu acces din living bucatarie open-space si se inchiriaza mobilat si utilat complet premium conform pozelor Impreuna cu apartamentul se inchiriaza si locul de parcare privat vizibil din apartament Imobilul este dotat cu usa metalica anti-efractie videointerfon centrala termica proprie in condensatie geamuri tripan cu tamplarie PVC parchet laminat 12 mm import Austria gresie si faianta import Itaia aparat de aer conditionat Inverter televizor smart Samsung QLED Bucataria este mobilata la comanda si utilata...
Exclusivitate PASCU Imobiliare Blocul este situat stradal pe strada Alunisului cu acces din bulevardul Constantin Brancoveanu sau soseaua Giurgiului este finalizat in anul 2015 are un regim de inaltime P 3 structura de rezistenta pe cadre si plansee din beton armat compartimentare cu caramida Porotherm izolatie termica cu polistiren expandat 10 cm EPS 80 Garsoniera se afla la parter are expunere stradala si curte proprie in suprafata de 16 metri patrati cu acces direct din strada facand-o ideala atat pentru locuit dar mai ales pentru desfasurarea unei activitati comerciale sau spatii birouri Garsoniera dispune de imbunatatiri premium centrala termica proprie incalzire prin pardoseala aparat de aer conditionat LG ArtCool Gallery sistem de alarma si supraveghere video Bucataria este mobilata la comanda dotata cu plita electrica si hota frigider si multiple spatii de depozitare Baia dispune de geam mare pentru aerisire cabina de dus cu paravan din stic...
Descopera viata langa Parcul Tei Vanzare apartament spatios de 3 camere situat la etajul 3 dintr-un bloc de 10 etaje intr-o zona foarte bine cotata la doar cativa pa
Tip tranzactie Vanzare Zona Neptun Str Gala Galaction nr 70 Complex Oxygen Jud Constanta Pret vanzare 110 000 -EUR Etaj 3/11 Lift Numar camere 3 Bai 1 Compartimentare decomandat Suprafata desfasurata cu balcoane 65 13 mp Balcoane 2 Anul constructiei 2012 Incalzire electrica in pardoseala Racire 3 aparate de aer conditionat Comision 0 cumparator Visezi la un apartament modern nelocuit si intr-o locatie excelenta de pe litoral Acest apartament cu 3 camere situat pe Strada Gala Galaction nr 70 in statiunea Neptun este alegerea perfecta Construit in anul 2012 si situat la doar 750 m de plaja acest imobil este ideal pentru investitie dar si pentru vacantele tale de vara in mijlocul naturii Complexul Oxygen este amplasat langa celebrul restaurant Calul Balan Sergiana restaurant construit in anul 1968 la ordinul lui Nicolae Causescu pentru ca voia un loc unde sa-si invite oaspetii atunci cand ajungea la Neptun Apartamentul aflat la etajul 3 ...
Va propunem spre vanzare in Otopeni pe strada Mihai Viteazul acest apartament cu 3 camere situat la etajul 2/2 ce reprezinta o optiune generoasa si bine compartimentata pentru cei care isi doresc confort si spatiu intr-o zona linistita cu acces facil catre Bucuresti Cu o suprafata utila totala de 128 4 mp apartamentul este compus dintr-un hol doua dormitoare - dintre care unul matrimonial cu baie proprie si dressing - un living spatios cu bucatarie open space doua bai si doua balcoane ce insumeaza 17 mp Configuratia este functionala cu zone bine delimitate pentru activitatile de zi si cele de seara oferind intimitate si confort Proprietatea se vinde finisata asa cum este prezentata in fotografii parchet usi interioare obiecte sanitare moderne si centrala termica proprie sunt deja incluse eliminand astfel efortul unor amenajari suplimentare In pretul afisat este inclus si un loc de parcare Pretul este negociabil Pentru mai multe informatii sau pentru ...
Va propunem spre vanzare un apartament spatios de 3 camere situat la parterul unui bloc cu 4 etaje din zona Popa Sapca o locatie linistita si bine conectata la punctele de interes ale orasului Cu o suprafata totala de 62 mp apartamentul dispune de o compartimentare practica oferind multiple posibilitati de amenajare in functie de preferintele si stilul dumneavoastra Proprietatea necesita renovare completa ceea ce o transforma intr-o oportunitate excelenta pentru cei care isi doresc sa isi creeze propria locuinta moderna Avantaje ale zonei -Acces facil catre centrul orasului -Apropiere de mijloace de transport in comun magazine si scoli -Cartier linistit cu vecini civilizati
Apartament 3 Camere Piata Amzei Homnest Imobiliare va propune spre vanzare un apartament semidecomandat de 3 camere situat pe Strada Piata Amzei nr 10-22 Sectorul 1 Bucurestia Apartamentul se afla la etajul 4 din 4 al unui imobil construit in anul 1960 cladirea este rabilitata termic si anveloparea acoperisului refacuta Apartamentul se vinde nemobilat si cu doua aparate de Aer conditionat montate Apartamentul are o suprafata utila de 49 47mp balcon 3 36mp astfel are o suprafata de 52 83mp Apartamentul are si o filmare care poate fi accesata prin link-ul de mai jos https //youtube com/shorts/o6ilvN4FlXk Homnest Imobiliare offers for sale a semi-detached 3-room apartment located on 10-22 Piata Amzei Street Sector 1 Bucharest The apartment is located on the 4th floor of a building built in 1960 the building is thermally renovated and the roof covering has been restored The apartment is sold unfurnished and with two air conditioners installed The apartment has ...
București - 24 Martie 2025
148.000 €
Atenție
Din motive de securitate și pentru protecția utilizatorilor, această funcționalitate nu este disponibilă pentru locația ta.