Nu plăti niciodată în avans într-un cont bancar până când nu l-ai întâlnit pe vânzător și ați semnat un acord.
Nu furniza informații confidențiale în discuții pe WhatsApp/Telegram sau alte aplicații de mesagerie unde utilizatorii își ascund ușor identitatea, deoarece te poți expune la fraude sau înșelăciuni.
Nu furniza niciodată detaliile cardului tău bancar (număr, data expirării, CVV). Te expune direct la fraude bancare.
Primirea unui mesaj pe WhatsApp/Telegram cu un ID scanat nu înseamnă că ai identificat cumpărătorul. Acest lucru se face pe loc, când semnați un acord de cumpărare.
Când comanzi online, alege livrarea cu verificare. Pentru un cost relativ mic, te protejezi de eventuale neplăceri.
Exclusivitate Studio Spatios in Popesti-Leordeni - 44 mp - Mobilat si Utilat - Comision 0 Premier Imobiliare va ofera in exclusivitate un studio modern si bine compartimentat situat intr-un imobil recent din Popesti-Leordeni - ideal pentru locuinta proprie sau investitie Detalii Proprietate Suprafata utila totala 44 11 mp Balcon 3 mp perfect pentru un spatiu de relaxare Etaj Situat intr-un bloc P 3 M dotat cu lift An constructie 2011 dat in folosinta in 2012 Se vinde complet mobilat si utilat exact ca in poze Parcare Fara loc de parcare propriu dar posibilitate de parcare in strada Avantaje Exclusivitate - disponibil doar prin Premier Imobiliare Comision 0 - fara taxe suplimentare pentru cumparator Bloc modern bine intretinut cu lift Zona linistita dar bine conectata la oras Potrivit pentru locuit sau inchiriere imediata Pentru mai multe informatii si vizionari Vlad - Premier Imobiliare 0727 736 313 Nu rata oc...
Nou pe piata Apartament cu 2 camere etaj 1/3 partial mobilat si impreuna cu 1 loc de parcare in proprietate Comision 0 pentru cumparator Va prezint spre vanzare un apartament cu 2 camere situat in zona Drumul Taberei- Prelungirea Ghencea str Drumul Ghindari intr-un imobil construit in anul 2013 Imobilul este dispus pe P 2 Mansarda este termoizolat la exterior are structura din beton armat si pereti din caramida atat la exterior cat si la interior Imobilul are regim mic de inaltime si nu are lift Imobilul este amplasat pe Drumul Ghindar nr 58 pe o straduta cu mai multe imobile cu regim mic de inaltime atat blocuri cat si case-vile Strada este asfaltata iluminata public iar imobilul este racordat la toate utilitatile orasului Accesul se poate face atat din Prelungirea Ghencea prin strada Bulgarus- Drumul Ghindari cat si pe strata Ghidigeni intrare dinspre Prelungirea Ghencea - Raul Doamnei In zona sunt mijloace de transport in comun cu statii STB atat ...
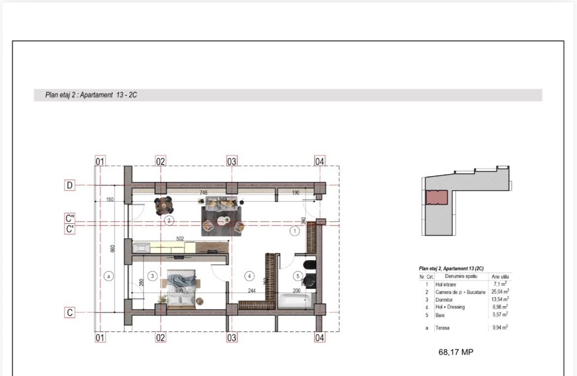
Doar in luna APRILIE beneficiezi de un DISCOUNT DE 10 din valoarea avansului Pretul prezentat este pentru avans de 40 din valoarea apartamentului Va prezint un apartament cu doua camere decomandat bine compartimentat cu suprafata de 66 5 mp cu logie de calitate 12 mp bucatarie inchisa cu suprafata de 7 mp situat la etajul 3 intr-un bloc cu 10 etaje Apartamentul se preda finisat la cheie cu baie complet dotata cu obiecte sanitare montate si bransat la toate utilitatile Finisajele sunt de buna calitate executate cu atentie la detalii iar in unele situatii chiar vi le puteti alege in anumite conditii Termenul de finalizare al constructiei este luna Septembrie 2025 Pana la aceasta data cladirea va fi racordata la toate utilitatile apartamentul va fi complet finisat si dotat si puteti chiar incepe mobilarea Zona in care se afla imobilul este una foarte usor accesibila cu acces rapid catre mijloace de transport in comun metrou autobuz troleibuz...
București - 23 Aprilie 2025
124.478 €
Atenție
Din motive de securitate și pentru protecția utilizatorilor, această funcționalitate nu este disponibilă pentru locația ta.