Nu plăti niciodată în avans într-un cont bancar până când nu l-ai întâlnit pe vânzător și ați semnat un acord.
Nu furniza informații confidențiale în discuții pe WhatsApp/Telegram sau alte aplicații de mesagerie unde utilizatorii își ascund ușor identitatea, deoarece te poți expune la fraude sau înșelăciuni.
Nu furniza niciodată detaliile cardului tău bancar (număr, data expirării, CVV). Te expune direct la fraude bancare.
Primirea unui mesaj pe WhatsApp/Telegram cu un ID scanat nu înseamnă că ai identificat cumpărătorul. Acest lucru se face pe loc, când semnați un acord de cumpărare.
Când comanzi online, alege livrarea cu verificare. Pentru un cost relativ mic, te protejezi de eventuale neplăceri.
Apartament cochet cu 2 camere - Ferdinand / Iancului Etaj 4 Sud Reabilitat Termic Va propun spre vanzare un apartament luminos si primitor format din 2 camere situat la etajul 4/4 al unui imobil solid complet reabilitat termic aflat chiar pe Bulevardul Ferdinand I intr-o zona excelent conectata la mijloace de transport si puncte de interes urban Detalii esentiale Locatie Bulevardul Ferdinand la doar cateva minute de mers pe jos de statia de metrou Iancului Etaj 4 din 4 cu acoperis refacut fara probleme de infiltratii Orientare sudica - apartamentul este scaldat in lumina naturala pe tot parcursul zilei Imobil reabilitat termic eficienta energetica crescuta Apartament amenajat si curat pregatit pentru mutare sau inchiriere imediata Avantaje Liniste si intimitate la ultimul etaj fara vecini deasupra Ideal pentru o persoana activa un cuplu tanar sau pentru investitie inchiriere rapida zona solicitata Aproape de tot ce con...
ImoPuls va propune o Constructie Noua - 2025 in zona Unitatii Militare cu o arhitectura deosebita moderna cu apartamente de 1 2 si 3 camere compartimentate excelent Locuintele sunt racordate la toate utilitatile publice se predau la quot cheie quot care beneficiaza si de locuri de parcare incluse in pret Tipuri apartamente 2 camere - 2 camere 41 91 mp utili balcon 7 59 mp disponibil la Et 1 Et 2 si Et 3 Pret 76 600 Eur - 2 camere 46 23mp utili balcon 8 14 mp disponibil la Et 1 Et 2 si Et 3 Pret 80 900 Eur - 2 camere 51 35 mp utili balcon 7 59 mp decomandat disponibil Et 1 Et 2 si Et 3 Pret 87 300 Eur Fiecare apartament beneficiaza de - loc de parcare privat in curtea interioara a imobilului - incalzire in pardoseala cu centrala proprie in condesatie - ferestre cu tamplarii PVC si geamuri tripan - usa metalica la intrare - Interfon - usi interioare Porta Doors - gresie faianta si parchet de calita...
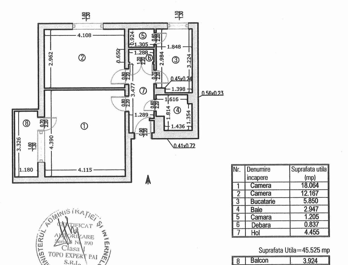
Blitz va propune spre vanzare apartament cu 2 camere bloc nou cu finalizare pana la finalul anului in zona strazii Fabricii Se afla la etajul 3 al unui imobil de 6 etaje compartimentat astfel 1 dormitor 1 living bucatarie baie balcon Suprafata utila a apartamentului este de 42 mp la care se adauga balconul de 7 3 mp Apartamentul se preda la stadiu de semifinisat Optional se poate achizitiona si loc de parcare subteran la 13000 euro Pozitia imobilului este foarte avantajoasa fiind localizat intr-o zona in plina dezvoltare aproape de viitorul Rivus Mall Apartamentul este disponibil imediat Cod oferta / ID BLITZ P147169 Id intern P147169
LOCALIZARE Acest imobil este situat la intrare in Statiunea Poiana Brasov in imediata apropiere a parcarii publice supraetajate COMPARTIMENTARE - Zona de zi care are o suprafata generoasa si care are deschidere la terasa - Bucataria de tip open space fiind mobilata si dotata - Dormitorul cu o suprafata vitrata mare - Baia fiind dotata cu dus si aerisire naturala DOTARI - sistemul Smart Control pentru temperatura ambientala robinet general apa alarma senzor miscare - incalzire in pardoseala - centrala termica electrica pe inductie - tamplarie PVC cu geam termopan tripan - izolatie exterioara cu vata bazaltica de 15 cm - usa metalica Tranzactionarea proprietatii se va face in varianta nemobilata conform prezentei ofertari Acest imobil detine o arhitectura aparte specifica zonelor montane de ski din Europa fiind conceputa in armonie perfecta cu natura spectaculoasa si oferind o perspectiva aparte catre munti si padure La pretul...
R E A Imobiliare va ofera spre vanzare un apartament cu 2 camere situat in Drumul Taberei pe Bld Timisoara in Complexul Rezidential Timisoara 58 Apartments Imobilul se afla intr-un bloc de apartamente construit in anul 2016 la etajul 1/6 Detine o suprafata totala de 53mp din care suprafata utila este de 47mp plus balcon cu o suprafeta de 6mp Proprietarul detine si boxa cu suprafata de 3 5mp Apartamentul este alcatuit din living cu bucatarie open space dormitor baie si balcon Apartamentul se vinde mobilat si utilat Confortul termic este realizat cu ajutorul centralei proprii pe gaz dar si cu ajutorul aparatelor de aer conditionat In imediata apropiere se intalnesc puncte comerciale bancare farmaceutice medicale educationale si de divertisment Acces facil la mijloacele de transport in comun 2 minute pana la statia Stb si 6 min pana la metrou Informatiile tehnice au caracter orientativ acestea fiind preluate de la proprietar Pentru mai multe detalii si vizionari ...
București - 2 Iulie 2025
133.000 €
Atenție
Din motive de securitate și pentru protecția utilizatorilor, această funcționalitate nu este disponibilă pentru locația ta.