Situat in complexul rezidential Tepes Voda Residence Sector 2 acest apartament elegant ofera confort finisaje moderne si o locatie excelenta Amplasat la etajul 2 se preda la cheie fiind pregatit pentru mutare imediata
Initial proiectat ca apartament cu 3 camere a fost transformat intr-un generos apartament cu 2 camere pentru a oferi mai mult spatiu in zona de living - insa poate fi reconvertit cu usurinta la compartimentarea initiala daca se doreste
Loc parcare disponibil - subsol - contracost
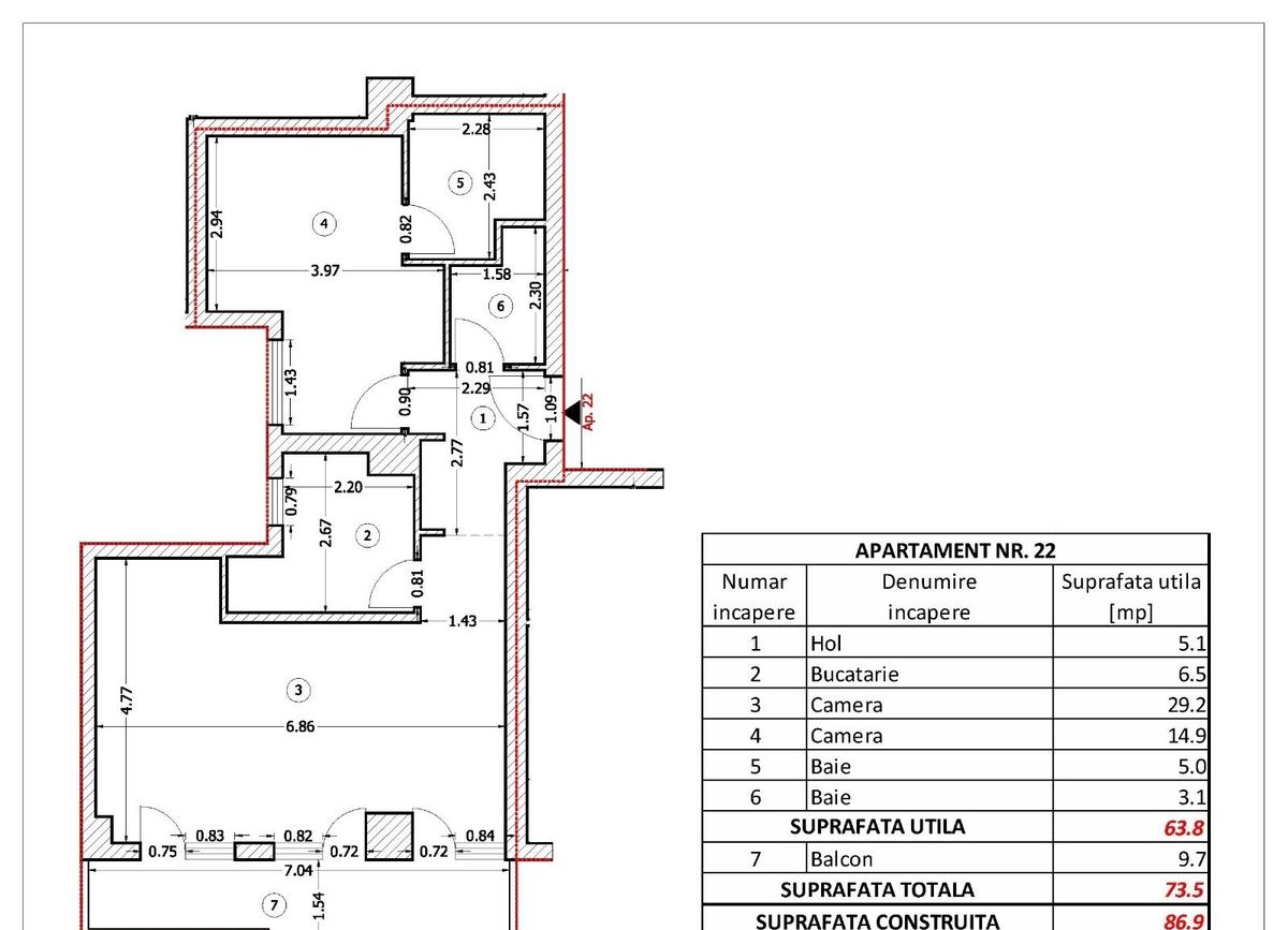
Detalii apartament Suprafata utila 63 8 mp Suprafata totala 73 5 mp inclusiv terasa Terasa 9 7 mp - ideala pentru momente de relaxare in aer liber Etaj 2 Incalzire in pardoseala Centrala termica proprie - autonomie si costuri reduse Bai 2 5 mp si 3 1 mp Compartimentare Hol - 5 1 mp Bucatarie - 6 5 mp Living - 29 2 mp Dormitor - 14 9 mp Baie - 5 mp Baie secundara - 3 1 mp Despre cladire si zona Tepes Voda Residence este un complex rezidential modern construit la standarde inalte de calitate oferind siguranta confort si liniste Zona beneficiaza de acces rapid la mijloace de transport in comun magazine scoli si spatii verzi fiind ideala atat pentru locuire cat si pentru investitie
⚠ AtenÈ›ie !
Nu plăti niciodată în avans într-un cont bancar până când nu l-ai întâlnit pe vânzător și ați semnat un acord.
Nu furniza informații confidențiale în discuții pe WhatsApp/Telegram sau alte aplicații de mesagerie unde utilizatorii își ascund ușor identitatea, deoarece te poți expune la fraude sau înșelăciuni.
Nu furniza niciodată detaliile cardului tău bancar (număr, data expirării, CVV). Te expune direct la fraude bancare.
Primirea unui mesaj pe WhatsApp/Telegram cu un ID scanat nu înseamnă că ai identificat cumpărătorul. Acest lucru se face pe loc, când semnați un acord de cumpărare.
Când comanzi online, alege livrarea cu verificare. Pentru un cost relativ mic, te protejezi de eventuale neplăceri.
Apartament cu 2 camere situat la parterul unui imobil boutique nou P 1 cu doar 6 apartamente aflat pe Strada Avrig nr 29 - o zona linistita si plina de verdeata ideala pentru un stil de viata echilibrat Suprafata utila 33 mp Compartimentare eficienta living cu bucatarie open-space dormitor separat baie Complet mobilat si utilat gata pentru mutare Acces direct la o curte comuna amenajata cu pomi flori si o atmosfera de comunitate placuta Cladire noua finalizata recent finisaje moderne Zona excelenta - conectare rapida cu restul orasului Transport in comun La doar 5 minute de mers pe jos de statia de metrou Obor De asemenea aproape de statia de metrou Iancului Tramvaie si autobuze pe Soseaua Mihai Bravu si Bd Ferdinand Spatii verzi si recreere Parcul Obor si Parcul Iulia Hasdeu ideale pentru plimbari si relaxare Piete supermarketuri cafenele si restaurante in apropiere Facilitati din zona Gradinite scoli si centre education...
Situat in complexul rezidential Tepes Voda Residence Sector 2 acest apartament elegant ofera confort finisaje moderne si o locatie excelenta Amplasat la etajul 2 se preda la cheie fiind pregatit pentru mutare imediata Initial proiectat ca apartament cu 3 camere a fost transformat intr-un generos apartament cu 2 camere pentru a oferi mai mult spatiu in zona de living - insa poate fi reconvertit cu usurinta la compartimentarea initiala daca se doreste Loc parcare disponibil - subsol - contracost Detalii apartament Suprafata utila 63 8 mp Suprafata totala 73 5 mp inclusiv terasa Terasa 9 7 mp - ideala pentru momente de relaxare in aer liber Etaj 2 Incalzire in pardoseala Centrala termica proprie - autonomie si costuri reduse Bai 2 5 mp si 3 1 mp Compartimentare Hol - 5 1 mp Bucatarie - 6 5 mp Living - 29 2 mp Dormitor - 14 9 mp Baie - 5 mp Baie secundara - 3 1 mp Despre cladire si zona Tepes Voda Residence este un complex rezidential modern...
Apartament cu 2 camere situat la parterul unui imobil boutique nou P 1 cu doar 6 apartamente aflat pe Strada Avrig nr 29 - o zona linistita si plina de verdeata ideala pentru un stil de viata echilibrat Suprafata utila 33 mp Compartimentare eficienta living cu bucatarie open-space dormitor separat baie Complet mobilat si utilat gata pentru mutare Acces direct la o curte comuna amenajata cu pomi flori si o atmosfera de comunitate placuta Cladire noua finalizata recent finisaje moderne Zona excelenta - conectare rapida cu restul orasului Transport in comun La doar 5 minute de mers pe jos de statia de metrou Obor De asemenea aproape de statia de metrou Iancului Tramvaie si autobuze pe Soseaua Mihai Bravu si Bd Ferdinand Spatii verzi si recreere Parcul Obor si Parcul Iulia Hasdeu ideale pentru plimbari si relaxare Piete supermarketuri cafenele si restaurante in apropiere Facilitati din zona Gradinite scoli si centre education...
Vila cu 4 camere de vanzare in Liziera de Lac - comunitate moderna aproape de natura Vila tip Cuib 3 situata in ansamblul rezidential Liziera de Lac in sud-estul Bucurestiului la 20 de minute de statia de metrou Anghel Saligny si zona comerciala Pallady - IKEA intr-un cadru natural inconjurat de lac padure si spatii verzi Comunitatea include deja facilitati functionale precum piscina gradinita loc de joaca cafenea si spatiu de lucru Sunt disponibile doua case in oglinda una langa cealalta ambele pozitionate central in cartier chiar langa zona comuna Sunt case deja construite parte din prima faza a proiectului faza locuita 100 in timp ce dezvoltatorul ofera acum acelasi model de vila doar in faza a doua programata sa inceapa in 2025 Pretul este identic cu cel al dezvoltatorului pentru viitoarele vile 190 000 euro TVA vanzare pe firma Informatii generale Suprafata construita 143 mp Teren cu gradina proprie Compartimentare living bucatarie ...
Agentia Imobiliara New Concept Living ofera spre vanzare un apartament spatios cu 2 camere practic compartimentat situat in ansamblul rezidential Neppendorf din zona Turnisor Apartamentul este situat la parter intr-un imobil nou cu 4 etaje si are o suprafata utila de 58 69 mp Separat de acest spatiu apartamentul dispune de o logie cu suprafata de 5 95 mp Apartamentul este alcatuit dintr-un hol de acces 2 camere o bucatarie deschisa un grup sanitar si o logie de 5 95 mp Avantaje - clasa energetica A poate fi achizitionat prin intermediul programului bancar Casa Verde dobanzi bancare mai mici si costuri reduse la utilitati - ansamblu rezidential nou blocuri cu lift boxe si garaj - numeroase spatii verzi in zona - locuri de joaca pentru copii - apartamente izolate termic si fonic cu materiale specifice - incalzire in pardoseala - locatie buna aproape de zona de Vest a orasului si de Aeroportul Sibiu - priveliste panoramica asupra orasului - adapost A L A ...
Apartament 2 camere Ultracentral - Str Aviatorilor Blitz va propune spre vanzare un apartament luminos si bine compartimentat 46 mp situat la etajul 3 al unui bloc din caramida izolat termic recent cu materiale de calitate Living spatios dormitor bucatarie separata baie balcon inchis 3mp Centrala proprie ferestre termopan parchet gresie usa metalica Locatie ultracentrala aproape de transport scoli supermarketuri Ideal pentru locuinta sau investitie in prezent este inchiriat catre chiriasi seriosi si se pot prelua Zona sigura si linistita cu acces rapid la principalele artere ale orasului Cod oferta / ID BLITZ P152922 Id intern P152922
suprafata de 40 mp utili si balcon de 2 5 mp et 3/7 vedere spre spatele blocului liniste neg Apartament situat ultracentral in vecinatatea Parcurilor Cismigiu Izvor si Operei intre cartierele Cotroceni si Centrul Vechi in suprafata de 40 mp utili si balcon de 2 5 mp compartimentare semidecomandata et 3/7 imobil construit in preajma anilor 60 acces la metrou Eroilor Izvor si Universitate si la multiple linii de transport public ideal de asemenea pt investitie se inchiriaza usor atat pe termen lung cat si pe termen scurt fiind in proximitatea Universitatii Bucuresti Facultatii de Drept Medicina sau Stomatologie cat si in apropierea diverselor obiective culturale turistice ce se gasesc in zona centrala a capitalei
Comision 0 Vanzare apartament cu doua camere zona Straulesti in complexul Triumf construit in anul 2006 pe Soseaua Bucuresti - Targoviste 22B la etajul 3/4 M cu lift de 6 persoane confort 1 decomandat 60 mp Un loc de parcare in complex e alocat pentru acest apartament Accesul se face cu portar Interiorul se afla in conditii bune iar apartamentul se vinde mobilat si utilat complet functional cu plita cuptor frigider masina de spalat rufe Incalzirea se face cu centrala termica pe gaz dispune si de un aparat de aer conditionat Balconul a fost inchis cu termopan Complexul e inchis cu o curte privata cu acces controlat iar blocul in care se afla apartamentul e in spate ferit de zgomotul cauzat de trafic in incinta complexului sunt locuri de joaca spatiu de ralaxare cu leagan si banci teren de sport Complexul Triumf se afla in sectorul 1 la 15 minute de gura de metrou Straulesti foarte aproape de fostul restaurant 2 Cocosi supermarketuri Kauflan...
Blitz propune spre vanzare un apartament decomandat situat in zona M11 la etajul 2 al unui imobil bine intretinut Locuinta dispune de o suprafata utila de 52 mp si se remarca prin compartimentarea eficienta si luminozitatea spatiilor Apartamentul este complet mobilat si utilat oferind viitorului proprietar posibilitatea de a se muta imediat fara investitii suplimentare Printre avantajele imobilului se numara centrala termica proprie care asigura un control optim al consumului precum si sistemul de aer conditionat ideal pentru confort pe tot parcursul anului Proprietatea este potrivita atat pentru locuire cat si pentru investitie zona fiind cunoscuta pentru accesul facil catre punctele de interes mijloace de transport magazine si spatii verzi Pret de vanzare 59 500 euro Pentru informatii suplimentare sau pentru programarea unei vizionari nu ezitati sa solicitati detalii Cod oferta / ID BLITZ P159041 Id intern P159041
Dâmboviţa - 17 Decembrie 2025
58.500 €
Atenție
Din motive de securitate și pentru protecția utilizatorilor, această funcționalitate nu este disponibilă pentru locația ta.