Va invit sa vizionati un apartament cu 2 camere spatios cu o suprafata utila de 71 mp situat intr-un bloc nou finalizat in 2023 Pozitionat pe colt apartamentul beneficiaza de vedere panoramica si este foarte luminos pe tot parcursul zilei - Suprafata utila 71 mp - 2 balcoane generoase - Etaj 8 / 9 - Bloc nou 2023 - Finisaje moderne de calitate - Vedere panoramica - Se accepta credit - Supraveghere video - Kaufland la 5 minute Grand Arena la 10 minute Contact 0733 240 997 - George Druga
⚠ AtenÈ›ie !
Nu plăti niciodată în avans într-un cont bancar până când nu l-ai întâlnit pe vânzător și ați semnat un acord.
Nu furniza informații confidențiale în discuții pe WhatsApp/Telegram sau alte aplicații de mesagerie unde utilizatorii își ascund ușor identitatea, deoarece te poți expune la fraude sau înșelăciuni.
Nu furniza niciodată detaliile cardului tău bancar (număr, data expirării, CVV). Te expune direct la fraude bancare.
Primirea unui mesaj pe WhatsApp/Telegram cu un ID scanat nu înseamnă că ai identificat cumpărătorul. Acest lucru se face pe loc, când semnați un acord de cumpărare.
Când comanzi online, alege livrarea cu verificare. Pentru un cost relativ mic, te protejezi de eventuale neplăceri.
Apartament cu 2 camere decomandat cu o suprafata de 51 mp situat la etajul 2/4 intr-un bloc nou cu lift Locuinta se vinde mobilata si utilata fiind gata de mutat - 51 mp - Etaj 2 / 4 cu lift - Decomandat - 2 balcoane - Mobilat si utilat - Aer conditionat - Centrala termica - Bloc nou 2020 Pentru detalii si vizionari 0733 240 997 - George Druga
Apartament cu 3 camere decomandat avand 90 mp suprafata totala situat la etajul 1 din 2 intr-un imobil construit in 2019 la 6 minute de metrou Dimitrie Leonida Apartamentul se vinde complet mobilat si utilat - Suprafata totala 90 mp - Etaj 1/2 - 3 camere 2 bai - 2 dressing-uri - 2 balcoane inchise - Centrala proprie aer conditionat - Finisaje moderne geamuri termopan usa metalica - Complet mobilat si utilat - Loc de parcare inclus cota indiviza inscris in CF Imobil - An constructie 2019 - Structura beton - caramida - Izolatie exterioara Pentru detalii si vizionari 0733 240 997 - George Druga
Apartament cu 2 camere decomandat cu o suprafata de 51 mp situat la etajul 2/4 intr-un bloc nou cu lift Locuinta se vinde mobilata si utilata fiind gata de mutat - 51 mp - Etaj 2 / 4 - Decomandat - 2 balcoane - Mobilat si utilat - Aer conditionat - Centrala termica - Bloc nou 2020 - Lift Pentru detalii si vizionari 0733 240 997 - George Druga
Apartament cu 2 camere decomandat cu o suprafata de 51 mp situat la etajul 2/4 intr-un bloc nou cu lift Locuinta se vinde mobilata si utilata fiind gata de mutat - 51 mp - Etaj 2 / 4 - Decomandat - 2 balcoane - Mobilat si utilat - Aer conditionat - Centrala termica - Bloc nou 2020 - Lift Pentru detalii si vizionari 0733 240 997 - George Druga
Apartament cu 2 camere decomandat avand 45 mp utili situat la etajul 3 din 4 pe Drumul Binelui intr-un bloc construit in 2015 Locuinta este complet renovata mobilata si utilata dispune de centrala proprie si un balcon spatios orientat sud-est In pret este inclus si locul de parcare - Suprafata utila 45 mp - Etaj 3/4 - Bloc constructie 2015 - Decomandat - Mobilat si utilat - Centrala proprie - Balcon spatios orientare sud-est - Loc de parcare inclus Avantaje zona - 10 minute de metrou Aparatorii Patriei STB 241 - Aproape de Grand Arena - Zona linistita aerisita - Acces rapid la transport si magazine Pentru detalii si vizionari 0733 240 997 - George Druga
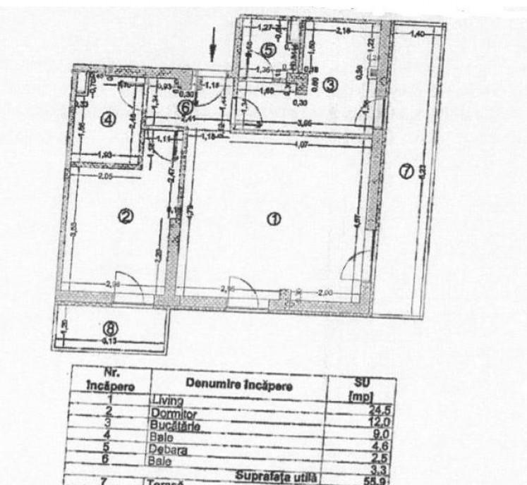
Doar in luna iunie beneficiezi de un discount de 10 din valoarea avansului Pretul prezentat este pentru avans de 30 din valoarea apartamentului Va prezint un apartament cu doua camere decomandat bine compartimentat cu suprafata de 58 mp cu logie de 5 mp bucatarie inchisa cu suprafata de 7 mp situat la etajul 3 intr-un bloc cu 10 etaje Apartamentul se preda finisat la cheie cu baie complet dotata cu obiecte sanitare montate si bransat la toate utilitatile Finisajele sunt de buna calitate executate cu atentie la detalii iar in unele situatii chiar vi le puteti alege in anumite conditii Termenul de finalizare al constructiei este luna Septembrie 2025 Pana la aceasta data cladirea va fi racordata la toate utilitatile apartamentul va fi complet finisat si dotat si puteti chiar incepe mobilarea Zona in care se afla imobilul este una foarte usor accesibila cu acces rapid catre mijloace de transport in comun metrou autobuz troleibuz tramvai dar...
APARTAMENT 2 CAMERE COMISION 0 ANSAMBLUL NOU RAHOVA DOTARI PREMIUM Esti in cautarea unui apartament spatios elegant cu o priveliste frumoasa si cu o arhitectura moderna Atunci Tower Residence este ceea ce ai nevoie Iti punem la dispozitie apartamente de top ideale pentru tine si familia ta pe care le poti amenaja exact asa cum iti doresti Gaseste locuinta ideala pentru tine si pentru familia ta careia sa ii puteti spune acasa Tower Residence este unul dintre cele mai ambitioase proiecte imobiliare din Zona de Sud a Bucurestiului Ansamblul nostru este construit pe Soeaua Salaj nr 315 - 323 Sector 5 Am adus impreuna cu un design deosebit elemente de confort precum incalzirea in pardoseala suprafata vitrata care pleaca de la baza pardoselii pana in plafon Suprafetele vitrate mari faciliteaza o luminozitate aparte locuintei indiferent de momentul zilei sau de anotimp Acestea au fost adaugate pentru a clasifica locuintele noastre in zon...
De vanzare apartament cu 2 camere 47 3 mp utili disponibil la etajele 1 2 si 3 intr-un bloc construit in anul 2025 cu regim de inaltime P 3E Pod cu placa de beton Apartamentul se preda finisat la cheie cu centrala termica pe gaz calorifere finisajele interioare sunt la alegerea cumparatorului si racordat la toate utilitatile canalizare apa curenta gaze electricitate Blocul are o pozitie foarte buna situat chiar pe Sos Alexandriei la cateva minute de mijloacele de transport in comun si multiple spatii comerciale Pentru mai multe detalii si vizionari va rog sa ma contactati la numarul de telefon 0736564292
Blitz va propune spre vanzare un apartament de 2 camere aflat intr-un ansamblu rezidential din Floresti Apartamentul este situat la paterul unui imobilului de 4 etaje dotat cu lift avand o suprafata de 56 63 mp si terasa de 21mp Apartamentul este realizat folosind materiale de calitate Caramida Cemacon Polistiren grosime grosime 15cm tamplarie PVC de 7 cm cu 3 straturi de sticla lift cu un design deosebit iar spatiile verzi sunt pe suprafata de 40 gandit dupa un concept nou modern Acces facil si aproape de punctele de interes pe o raza de 1km avem statii de bus Carrefour Penny Profi Unicarm Panemar Ansamblul mai beneficiaza de instalatie rezerva apa pentru asigurarea presiunii in permanenta instalatie automatizata antiincendiu adapost protectie-civila spatiu alocat pentru biciclete infrastructura pentru curentii slabi interfon acces -control TV internet Acesta este compartimentat astfel 1 living spatios open space cu bucataria in care puteti ...
PYF018B9885 Imagineaza-ti locuinta perfecta care sa reflecte personalitatea ta si sa satisfaca toate nevoile tale Echipa noastra dedicata te va ajuta in cautarea locuintei ideale Portofoliul nostru include exact ceea ce iti doresti tu si familia ta Alege PYF REAL ESTATE pentru a transforma visul tau in realitate PYF REAL ESTATE va propune prin agentul zonal Robert T spre vanzare un apartament mai exact pe Calea Vacaresti in imediata apropiere a metroului autobuzului zonelor comerciale restaurantelor centrului universitar situat la 10 minute de statia de metrou Timpuri Noi si metrou Tineretului intr-un imobil construit in anul 1986 finalizat avand structura de monolit si compartimentari de caramida Imobilul are izolatie exterioara si interioara apartamentul compus din doua camere avand 1 dormitor si 1 living o baie si o bucatarie este situat la etajul 8 8 si are destinatie rezidentiala Avand o suprafata 55mp dar si o compartimentare decomandata apartame...
București - 4 Martie 2025
145.500 €
Atenție
Din motive de securitate și pentru protecția utilizatorilor, această funcționalitate nu este disponibilă pentru locația ta.