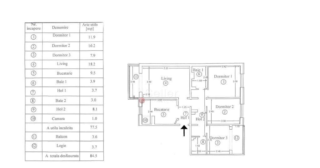
LOCALIZARE Acest imobil este situat in Tractorul pe Str Independetei Nr 80 in imediata apropiere a Scolii Gimnaziale nr 30 Pietei Tractorul precum si a supermarket-urilor Penny Lidl Kaufland COMPARTIMENTARE - Holul de acces - Zona de zi care este aerisita detine o suprafata vitrata mare si deschidere la balconul inchis - Bucataria deschisa mobilata si dotata integral - Dormitorul 1 acesta fiind cel matrimonial si care beneficiaza de o suprafata generoasa - Dormitorul 2 ce este spatios si luminos acesta putand primi destinatia de spatiu office - Dormitorul 3 in suprafata caruia este integrat un logie a fost destinat camerei copiilor - Baile ambele cu aerisire ventilata una dintre ele fiind dotata cu cada iar cealalta cu dus DOTARI - centrala termica - tamplarie PVC cu geam termopan - usa metalica - izolatie interioara si exterioara - izolatie pardoseala - beci in suprafata de 9mp - doua locuri de parcare Tranzactionarea proprietatii se va face cu mobilierul aferent prezentei ofertari IMPREJURIMI Imobilul este situat intr-o zona de blocuri accesul auto pana in zona de centru a orasului facandu-se in cca 7 minute iar pana la Mall Coresi in cca 3 min ATRACTII ZONA Magazine restaurante parcuri scoli spitale ACCESIBILITATE Transport public in apropiere FORMA ACHIZITIONARE Se accepta plata prin accesare credit Comision 2 TVA din pretul de tranzactionare NOTA Informatiile prezentate reflecta situatia reala a proprietatii fara a constitui o oferta contractuala Aceste date au fost obtinute verbal de la titularul de drept al imobilului Structura acestei prezentari nu poate fi reprodusa fara acordul scris al The Seller and Partners
⚠ AtenÈ›ie !
Nu plăti niciodată în avans într-un cont bancar până când nu l-ai întâlnit pe vânzător și ați semnat un acord.
Nu furniza informații confidențiale în discuții pe WhatsApp/Telegram sau alte aplicații de mesagerie unde utilizatorii își ascund ușor identitatea, deoarece te poți expune la fraude sau înșelăciuni.
Nu furniza niciodată detaliile cardului tău bancar (număr, data expirării, CVV). Te expune direct la fraude bancare.
Primirea unui mesaj pe WhatsApp/Telegram cu un ID scanat nu înseamnă că ai identificat cumpărătorul. Acest lucru se face pe loc, când semnați un acord de cumpărare.
Când comanzi online, alege livrarea cu verificare. Pentru un cost relativ mic, te protejezi de eventuale neplăceri.
LOCALIZARE Acest imobil este situat in proiectul Cosmopolit Zenit un ansamblu rezidential modern construit cu atentie la detalii si finisaje de inalta calitate unde design-ul elegant si arhitectura contemporana se imbina perfect Proiectul se afla la intrare in Racadau in imediata apropiere a Centrului Comercial Magnolia COMPARTIMENTARE - Hol de acces care face legatura intre toate incaperile - Living-ul cu suprafete vitrate mari si acces catre primul balcon - Bucataria care este inchisa - Cele doua dormitoare spatioase si luminoase ambele beneficiind de acces catre cel de al doilea balcon - Baile una dotata cu dus cealalta cu cada ambele cu aerisire ventilata - Doua balcoane de tip logie fiecare avand o suprafata de aproximativ 7 mp DOTARI - centrala termica pe intregul bloc - tamplarie PVC ferestre cu vitraj termoizolant alcatuite din 3 foi de sticla - termoizolatie exterioara cu vata bazaltica de 15 cm - usa de intrare ...
LOCALIZARE Acest imobil este situat in zona Tractorul in imediata apropiere a Coresi Shopping Resort COMPARTIMENTARE - Holul de acces - Zona de zi care destine spatii vitrate mari si acces catre balcon - Bucataria inchisa aceasta fiind mobilata si dotata - Dormitorul ce beneficiaza de o suprafata generoasa si multa lumina naturala - Baia dotata cu aerisire ventilata cabina de dus si bideu DOTARI - centrala termica - tamplarie PVC cu geam termopan - usa metalica - aer conditionat - loc de parcare Inchirierea proprietatii se va face cu mobilierul aferent prezentei ofertari Imobilul este situat intr-o zona de blocuri accesul auto pana in zona de centru a orasului facandu-se in cca 8 minute ATRACTII ZONA Magazine restaurante parcuri scoli spitale ACCESIBILITATE Transport public in apropiere NOTA Perioada Minima Inchiriere Acceptata 12 luni Locatorul nu accepta animale de companie Informatiile prezentate reflec...
LOCALIZARE Acest imobil este situat in localitatea Bod intr-o zona linistita de case la doar 20 min distanta de Brasov COMPARTIMENTARE Cu regim de inaltime P 1E vila este dispusa astfel PARTER - Holul de acces care face legatura intre toate incaperile - Living de tip open-space in care poate fi inclusa o zona de dining cu spatii vitrate mari si acces direct catre terasa - Bucataria care este deschisa aceasta fiind inclusa in zona de zi - Baia dotata cu aerisire naturala ETAJUL Alocat zonei de noapte acesta detine - Primul dormitor in suprafata de 16 40 mp ce beneficiaza de multa lumina naturala datorita suprafetelor vitrate generoase si acces la balcon - Celelalte doua dormitoare fiecare avand o suprafata de 10 mp si acces direct la balconul comun - Baia dotata cu aerisire naturala - Doua terase una comuna pentru cele trei dormitoare iar cealalta separata cu acces din hol DOTARI - incalzire prin pardoseala ...
LOCALIZARE Acest imobil este situat in proiectul Cosmopolit Zenit un ansamblu rezidential modern construit cu atentie la detalii si finisaje de inalta calitate unde design-ul elegant si arhitectura contemporana se imbina perfect Proiectul se afla la intrare in Racadau in imediata apropiere a Centrului Comercial Magnolia COMPARTIMENTARE - Hol de acces care face legatura intre toate incaperile - Zona de zi in care este inclusa bucataria deschisa si o zona de dining cu spatii vitrate mari si acces catre terasa - Bucataria de tip open-space - Dormitorul cu dressing si acces la terasa - Baie cu aerisire ventilata - Terasa ce ofera o priveliste panoramica in suprafata de 25 mp DOTARI - centrala termica pe intregul bloc - tamplarie PVC ferestre cu vitraj termoizolant alcatuite din 3 foi de sticla - termoizolatie exterioara cu vata bazaltica de 15 cm - usa de intrare metalica - incalzire prin pardoseala - parchet stratif...
LOCALIZARE Acest imobil este situat in proiectul Cosmopolit Zenit un ansamblu rezidential modern construit cu atentie la detalii si finisaje de inalta calitate unde design-ul elegant si arhitectura contemporana se imbina perfect Proiectul se afla la intrare in Racadau in imediata apropiere a Centrului Comercial Magnolia COMPARTIMENTARE - Hol de acces care face legatura intre toate incaperile - Zona de zi ce detine o suprafata generoasa de 24 mp si acces catre primul balcon - Bucataria care este inchisa beneficiind de acces catre balconul comun cu zona de zi - Dormitor luminos si spatios avand totodata acees catre cel de al doilea balcon - Baie cu aerisire ventilata - Doua balcoane de tip logie cu o suprafata de 11 10 mp respectiv 4 78 mp DOTARI - centrala termica pe intregul bloc - tamplarie PVC ferestre cu vitraj termoizolant alcatuite din 3 foi de sticla - termoizolatie exterioara cu vata bazaltica de 15 cm - usa de int...
REA1024318 SVN Residentialist are placerea sa va prezinte un apartament nou cu 4 camere situat intr-unul dintre cele mai moderne si bine pozitionate proiecte rezidentiale din Bucuresti - One Cotroceni Park Aceasta locuinta spatioasa se afla la etajul 10 al unui imobil cu 11 niveluri si dispune de o suprafata utila de 109 mp completata de o terasa de 12 mp perfecta pentru a va bucura de momente de liniste si aer curat deasupra orasului Apartamentul este situat in corpul CT4 si face parte dintr-o colectie variata de unitati locative de la 2 pana la 4 camere disponibile in cadrul acestui ansamblu exclusivist One Cotroceni Park se bucura de o amplasare strategica in zona centrala-vestica a capitalei cu acces direct la statia de metrou Academia Militara si la alte cinci statii de metrou aflate la scurta distanta In plus zona este deservita de numeroase linii de autobuz si tramvai facilitand conexiunea rapida cu toate punctele de interes din oras In apropiere se afla Grad...
apartament 4 camere decomandat situat in zona Pietei Minis pe strada Barajul Bistritei Se afla la 3 minute de mers pe jos de Piata Minis si Liceul Cuza si la 10 minute de Liceul Nichita Stanescu Scoala Mexic este amplasata in coltul blocului iar Scoala nr 21 se afla la trei blocuri distanta Gradinta 159 este la 4 minute de mers pe jos iar Gradinita 216 la 5 minute Statiile STB pentru autobuze si tramvaie sunt situate la 300 de metri de bloc Centrul comercial Iris Titan cu Auchan cinematograf magazine loc de joaca farmacii si restaurante se afla la 10 minute de mers pe jos Farmacia BebeTei se afla la o statie de tramvai distanta Magazinele Lidl si Penny sunt situate la 7-8 minute de mers pe jos sau la 3 minute cu masina Apartamentul se afla la 3 statii de tramvai de Parcul IOR si Metrou Titan si la 15 minute de mers pe jos de Metrou Costin Georgian Blocul este reabilitat termic foarte curat si bine administrat cu scara renovata si usi schimbate In jurul...
Vectorial Broker va prezinta un apartament de 4 camere in Colentina reper Radovanu confort 1 semidecomandat avand suprafata de 82 mp cu 2 bai si 2 balcoane Locuinta este situata la etajul 6 intr-un imobil tip bloc de 8 etaje construit in anul 1986 avand 4 apartamente pe palier Apartamentul este imbunatatit are urmatoarele finisaje ferestre pvc incalzire termoficare pereti faianta lavabil podele parchet gresie usa intrare metal si este pretabil pentru locuinta Recomandam aceasta proprietate persoanelor active pentru care o locuinta in apropiere de mijloacele de transport in comun statie de metrou centre comerciale supermarketuri piete agroalimentare si parcuri reprezinta un factor de decizie Pretul este usor negociabil si se accepta orice fel de creditare ID intern VB1925310
Comision 0 - Direct dezvoltator Bloc finalizat - Mutare imediata Complexul rezidential a fost creat pentru cei care isi doresc o investitie inteligenta in aceasta noua comunitate veti gasi valoare in fiecare aspect al vietii de zi cu zi Situat in nordul capitalei aproape de centrul de bussines Pipera Nord View Apartments reuneste toate facilitatile intr-un loc si este imbinarea perfecta intre calitate randament si confort Blocul este compus din 2 scari ce cuprind apartamente de tip studio apartamente de 2 3 sau 4 camere cu suprafete cuprinse intre 48 mp si 150 mp Apartamentele beneficiaza de balcoane sau curtii ce confera o imbinare perfecta intre spatiile in-door si cele out-door Complexul rezidential detine la parter un spatiu multifunctional ce are peste 3000 de metri patrati dedicati facilitatilor comerciale Aici rezidentii se pot bucura de un acces usor la o gama variata de servicii care cresc semificativ calitatea vietii Incepand cu super-market ATM lo...
Blitz va ofera spre vanzare apartament de 4 camere semidecomandat in zona centrala in apropierea Liceului Samoil Isopescu Apartamentul se afla localizat intr-o zona linistita in apropierea magazinelor scolilor universitatii parcurilor si mijloacelor de transport in comun Suprafata apartamentului este de 78 mp si este compus din 3 dormitoare living bucatarie generoasa cu spatiu de luat masa 2 bai si hol Datorita amplasarii la parter exista posibilitatea construirii unei cai secundare de acces catre exterior daca exista aceasta preferinta Pentru mai multe detalii sau o vizionare va rugam sa ne contactati Cod oferta / ID BLITZ P12283 Id intern P12283
Suceava - 5 Iunie 2025
130.000 €
Atenție
Din motive de securitate și pentru protecția utilizatorilor, această funcționalitate nu este disponibilă pentru locația ta.