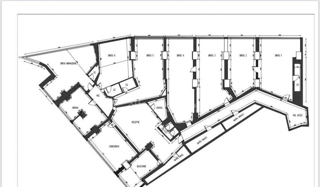
Activ Imob va prezinta la vanzare intr o pozitie excelenta Calea Vitan intersectie Dudesti cu Octavian Goga spatiu birouri situat la etajul 2 practic un etaj intreg cu o suprafata utila 680 mp cu finisaje de buna calitate si o pozitie dar si vizibilitate excelenta Imobil construit in anul 2012 Mentionez ca spatiul este frumos compartimentat pentru o desfasurare cat mai optima a activitatii unde gasim sala de conferinta spatioasa plus grupuri sanitare atat in camerele de birouri dar si pe holul de intrare catre receptia frumos amenjata Merita vazut Liber la vanzare Pret negociabil
⚠ AtenÈ›ie !
Nu plăti niciodată în avans într-un cont bancar până când nu l-ai întâlnit pe vânzător și ați semnat un acord.
Nu furniza informații confidențiale în discuții pe WhatsApp/Telegram sau alte aplicații de mesagerie unde utilizatorii își ascund ușor identitatea, deoarece te poți expune la fraude sau înșelăciuni.
Nu furniza niciodată detaliile cardului tău bancar (număr, data expirării, CVV). Te expune direct la fraude bancare.
Primirea unui mesaj pe WhatsApp/Telegram cu un ID scanat nu înseamnă că ai identificat cumpărătorul. Acest lucru se face pe loc, când semnați un acord de cumpărare.
Când comanzi online, alege livrarea cu verificare. Pentru un cost relativ mic, te protejezi de eventuale neplăceri.
BENEFICII PENTRU CLIENTII ACESTEI OFERTE 1 Beneficii oferite de zona - La 5 minute metrou Piata Unirii - La 8 minute Piata Universitatii - La 6 minute Centrul Istoric - La 7 minute Palatul Parlamentului 2 Beneficii tehnice ale ofertei - Garsoniera spatioasa si luminoasa - Moblata si utilata modern - Suprafata utila 38 mp - Etaj intermediar - Compartimentare de tip decomandat - Balcon generos 3 Situatia juridica - Cadastru - Intabulare ID ACTIV IMOB 228007 CASA te bucuri
Pozitie excelenta Calea Vitan intersectie Dudesti cu Octavian Goga va prezint la vanzare spatiu birouri situat la etajul 2 practic un etaj intreg cu o suprafata utila 680 mp cu finisaje de buna calitate si o pozitie dar si vizibilitate excelenta Imobil construit in anul 2012 Mentionez ca spatiul este frumos compartimentat pentru o desfasurare cat mai optima a activitatii unde gasim sala de conferinta spatioasa plus grupuri sanitare atat in camerele de birouri dar si pe holul de intrare catre receptia frumos amenjata Merita vazut Liber la vanzare Pret negociabil
Pozitie excelenta Calea Vitan intersectie Dudesti cu Octavian Goga va prezint la vanzare spatiu birouri situat la etajul 2 practic un etaj intreg cu o suprafata utila 680 mp cu finisaje de buna calitate si o pozitie dar si vizibilitate excelenta Imobil construit in anul 2012 Mentionez ca spatiul este frumos compartimentat pentru o desfasurare cat mai optima a activitatii unde gasim sala de conferinta spatioasa plus grupuri sanitare atat in camerele de birouri dar si pe holul de intrare catre receptia frumos amenjata Merita vazut Liber la vanzare Pret negociabil Zero comision
Pozitie excelenta Calea Vitan intersectie Dudesti cu Octavian Goga va prezint la vanzare spatiu birouri situat la etajul 2 practic un etaj intreg cu o suprafata utila 680 mp cu finisaje de buna calitate si o pozitie dar si vizibilitate excelenta Imobil construit in anul 2012 Mentionez ca spatiul este frumos compartimentat pentru o desfasurare cat mai optima a activitatii unde gasim sala de conferinta spatioasa plus grupuri sanitare atat in camerele de birouri dar si pe holul de intrare catre receptia frumos amenjata Merita vazut Liber la vanzare Pret negociabil Zero comision
Bulevardul Unirii Calea Vitan intersectie Dudesti cu Octavian Goga va prezint la vanzare spatiu birouri situat la etajul 2 practic un etaj intreg cu o suprafata utila 680 mp cu finisaje de buna calitate si o pozitie dar si vizibilitate excelenta Imobil construit in anul 2012 Mentionez ca spatiul este frumos compartimentat pentru o desfasurare cat mai optima a activitatii unde gasim sala de conferinta spatioasa plus grupuri sanitare atat in camerele de birouri dar si pe holul de intrare catre receptia frumos amenjata Merita vazut Liber la vanzare Pret negociabil Zero comision
EUROPA IMOBILIARE ofera spre vanzare un spatiu situat in zona ultracentrala a municipiului Tulcea o locatie premium ideala atat pentru desfasurarea activitatilor comerciale cat si pentru conversia in apartamente de lux - Suprafata generoasa 434 m p din care terasa 114 m p ce permite recompartimentarea in functie de necesitati - Pozitie strategica intr-o zona cu trafic intens si acces facil - Potrivit pentru diverse utilizari - birouri showroom clinici spatii comerciale sau locuinte exclusiviste Spatiul ofera flexibilitate maxima pentru orice tip de proiect imobiliar beneficiind de vizibilitate excelenta si acces la toate utilitatile necesare Intrarea in imobil se face din strada Babadag prin 2 scari in ambele laturi care sunt cu acces exclusiv la acest imobil facilitand varianta de a transforma spatiul in doua apartemente generoase fiecare cu intrare separata in centrul orasului la etajul 1 si cu terasa catre strada Babadag Pretul de vanzare este 50...
Spatiul comercial pe care il oferim spre vanzare se afla in cartierul Berceni stradal cu expunere catre bd Metalurgiei situat vis a vis de Lidl si Kaufland Spatiul are suprafata totala utila de 75 mp este pozitionat stradal fiind situat in imediata apropiere de trecerea de pietoni si statia STB Spatiul este open space singura compartimentare fiind zona grupului sanitar Dispune de toate utilitatile incalzire cu centrala proprie si contorizare separata De retinut faptul ca respecta normele de stingere a incendiului in vigoare ISU fiind dotat inclusiv cu sistem de stingere a incendiului Pardoseala este acoperita cu granit de foarte buna calitate dispune de aparat de aer conditionat curent trifazic iluminat lampi cu led Spatiul in acest moment este inchiriat Pretul de vanzare este de 255 000 de euro Comisionul agentiei este de 2 5 TVA Detalii zona Zona in plina expansiune cu vad comercial Detalii compartimentare spatiu Spatiul comercial pe care il oferim spr...
RECO Imobiliare propune spre vanzare OO51 Spatiu de birouri de vanzare constructie P 2E M cu o suprafata utila de 998 mp situat pe un teren generos de 2010 mp Proprietatea este compartimentata astfel Parter garaj centrala termica vestiar hol-depozit casa scarii Etaj 1 5 birouri sala de sedinte secretariat grup sanitar femei grup sanitar barbati oficiu casa scarii balcoane Etaj 2 5 birouri secretariat grup sanitar oficiu balcoane Mansarda birouri 2 secretariate grup sanitar balcoane In curte se regasesc anexe functionale utile pentru depozitare sau activitati auxiliare Imobilul este ideal pentru sediu de firma centru de afaceri sau activitati de tip servicii Pret 825 000 euro negociabil Pentru mai multe detalii sau vizionare va rugam sa ne contactati Telefon 0376 443 700
vanzare complex blocuri proiect rezidential suprafata construita 48 000 mp Particular fara comision https //nistour ro/ Avem firma de constructii din Turcia care finlizeaza lucrarile la chie cu 500 euro mp
DESTINE IMOBILIARE va prezinta o oportunitate unica pentru investitie Cladire de birouri Clasa B - Palas Campus PRET 1 499 000 EUR 1 LOCATIE SI VECINATATI Adresa Situata strategic pe Sf Andrei Vecinatati La doi pasi de PALAS CAMPUS si la 2 minute de mers pe jos pana la PALATUL CULTURII Avantaj Pozitionare PREMIUM care asigura vizibilitate excelenta si acces facil la toate facilitatile urbane necesare 2 DATE TEHNICE GENERALE An Constructie 2007 Clasificare Cladire de birouri Clasa B Suprafata Utila TOTALA 570 mp Suprafata Teren 352 mp Regim de Inaltime D P 1 2 TERASA 3 COMPARTIMENTARE DETALIATA PE NIVELE DEMISOL Spatiu generos zona de relaxare sala conferinte sau depozitare 78 83 mp 3 incaperi versatile birouri individuale sau sali de sedinte 13 15 mp 12 49 mp 11 39 mp PARTER Camera principala 59 75 mp Bucatarie 20 92 mp Camera tehnica 7 55 mp Incapere suplimentara 5 98 mp 2 Grupuri Sanitare 2 20 mp si 2 14 mp Ho...
IaÅŸi - 23 Octombrie 2025
1.499.000 €
Atenție
Din motive de securitate și pentru protecția utilizatorilor, această funcționalitate nu este disponibilă pentru locația ta.