ILFOV IMOBILIAR - O mutare isteata SORESCU RESIDENCE OTOPENI - APARTAMENTE CU 2 SI 3 CAMERE PRET DE LA 93 500 EURO TVA 9 Te invitam sa faci parte dintr-un proiect nou in Otopeni un bloc modern unde fiecare detaliu este gandit pentru a-ti oferi un trai confortabil si placut Alege sa locuiesti intr-un loc ce promite sa fie un punct de referinta in zona combinand stilul cu functionalitatea Amplasare foarte buna pe str Marin Sorescu la 2 min de Parcul 1Mai din Otopeni si 10 min de viitoarea gura de metrou Bruxelles in proximitatea Aeroportului International Otopeni Baneasa Shopping City Therme Bucuresti Padurea Baneasa In zona se gasesc scoli gradinite publice si magazine de consum Lidl Mega Image Penny etc Ansamblul beneficiaza de o legatura facila cu acces imediat in Dn1 si Centura Bucuresti iar ca mijloace de transport in comun avem statia Primaria Otopeni si Amco cat si linia de autobuz 100 cu acces catre centrul Bucurestiului Pentru accesul rapid catre centru Otopeni si liceul Ioan Petrus exista autobuzul intern Linia Albastra Cladirea este realizata din caramida si beton armat termoizolatie polistiren 10cm acoperis invelit cu tabla faltuita tamplarie tripan gri Salamander incalzire in pardoseala lift hidraulic Proiectul va avea un total de 24 de apartamente si garsoniere in configuratii diferite cu optiuni ce includ balcoane sau terase Locurile de parcare se pot achizitiona impreuna cu apartamentul sau separat la pretul de 4000Eur Tva Oferim cele mai bune solutii de creditare prin colaborarea cu brokerul din cadrul agentie noastre Daca doriti o colaborare cu agentia noastra ne puteti scrie pe adresa de email sau va asteptam la sediul situat in Otopeni str 23August nr 152A Ilfov Va asteptam la vizionare Contact email 160 protected 0733 041 859 - Costin Stefan Broker/Owner Id intern P234
⚠ AtenÈ›ie !
Nu plăti niciodată în avans într-un cont bancar până când nu l-ai întâlnit pe vânzător și ați semnat un acord.
Nu furniza informații confidențiale în discuții pe WhatsApp/Telegram sau alte aplicații de mesagerie unde utilizatorii își ascund ușor identitatea, deoarece te poți expune la fraude sau înșelăciuni.
Nu furniza niciodată detaliile cardului tău bancar (număr, data expirării, CVV). Te expune direct la fraude bancare.
Primirea unui mesaj pe WhatsApp/Telegram cu un ID scanat nu înseamnă că ai identificat cumpărătorul. Acest lucru se face pe loc, când semnați un acord de cumpărare.
Când comanzi online, alege livrarea cu verificare. Pentru un cost relativ mic, te protejezi de eventuale neplăceri.
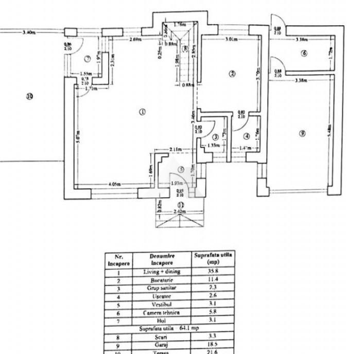
ILFOV IMOBILIAR - O mutare isteata WESTSIDE RESIDENCE OTOPENI - Vila Urbana 140mp complet finisata fatada cu clinker stil britanic curte si 2 locuri de parcare PRET DE LA 170 000 EURO TVA casa de showroom Asa cum v-am obisnuit COMISION 0 Daca doresti sa te muti la casa iti propunem unul din cele mai frumoase si aerisite ansambluri rezidentiale din Otopeni Westside Residence Dezvoltator cu un portofoliu impecabil avand mai multe proiecte vandute integral in zona Otopeni Aviator Residence 1 Aviator Residence 2 Violetelor Residence si Craitelor Boutique Otopeni Revenind la noul proiect precizam ca ansamblul contine 5 cladiri a cate 4 Vile Urbane tip quadruplex finalizate din care 3 sunt deja antecontractate si 3 blocuri de mici dimensiuni formate din apartamente de 2 si 3 camere cladiri cu finalizare martie 2026 unde deasemenea am dat startul vanzarilor cu preturi promotionale Toate constructiile sunt realizate integral din bca cu beto...
ILFOV IMOBILIAR - O mutare isteata WESTSIDE RESIDENCE OTOPENI - Apartament 3 camere constructie solida predare la cheie aproape de viitoarea statie de metrou I C Bratianu PRET 120 000 EURO 21 TVA Asa cum v-am obisnuit COMISION 0 Daca doresti sa te muti la casa iti propunem unul din cele mai frumoase si aerisite ansambluri rezidentiale din Otopeni Westside Residence Dezvoltator cu un portofoliu impecabil avand mai multe proiecte vandute integral in zona Otopeni Aviator Residence 1 Aviator Residence 2 Violetelor Residence si Craitelor Boutique Otopeni Revenind la noul proiect precizam ca ansamblul va contine 5 cladiri a cate 4 Vile Urbane tip quadruplex 90 finalizate din care 2 sunt deja antecontractate si 3 blocuri de mici dimensiuni formate din apartamente de 2 si 3 camere cladiri incepute recent unde deasemenea am dat startul vanzarilor cu preturi promotionale Toate constructiile sunt realizate integral din caramida cu beton armat ava...
ILFOV IMOBILIAR - O mutare isteata CHIRIE OTOPENI - STR 23AUGUST - Apartament 2 camere 60mp terasa 25mp utilat si mobilat 2 loc parcare lift PRET - 550 EURO/LUNA contract inregistrat Asa cum v-am obisnuit COMISION 0 Iti oferim spre inchiriere un apartament cochet si modern in Otopeni pe strada 23August in complexul Grand Or aproape de toate punctele de interes magazine de consum parc si primarie Suprafata apartamentului este de 60mp dispune de o terasa spatioasa de 10mp si un spatiu pentru depozitare de 3mp etaj 3/3 Chirie 550Euro/luna Contract prin Persoana Juridica Conditii 1 luna garantie 1 luna avans Pentru mai multe detalii sau o vizionare nu ezita sa ne contactezi Daca doriti o colaborare cu agentie noastra ne puteti scrie pe adresa de e-mail sau va asteptam la sediul din in Otopeni str 23August nr 152A ilfov Contact 0733 041 859 Costin Stefan email 160 protected Id intern P293
ILFOV IMOBILIAR - O MUTARE ISTEATA OTOPENI - CASA SINGLE 248 45 MP LOT TEREN 464 MP DESIGN CU INFLUENTE NEOROMANESTI O CASA CUM RAR GASESTI POZITIONATA EXCELENT PRET 429 000 EURO Asa cum v-am obisnuit COMISION 0 Harmony Residence Marasti - Otopeni este un proiect boutique dezvoltat in inima zonei vechi din Otopeni pe strada Marasti una dintre cele mai apreciate locatii pentru familiile care isi doresc sa traiasca aproape de tot ce conteaza Scoli gradinite primarie piata magazine si viitoarea statie de metrou Ion I C Bratianu aflata la numai 300 de metri fac ca acest ansamblu sa ofere un confort urban complet dar intr-un cadru linistit si elegant Proiectul este realizat de un dezvoltator cu renume in Otopeni care a construit deja cu succes pe strada Oituz si pe strada Ferme G Fiecare dintre proiectele sale s-a remarcat prin unicitate design atent ales si o executie apreciata de clienti ceea ce adauga un plus de siguranta si valoare investitiei in Harm...
ILFOV IMOBILIAR - O mutare isteata OTOPENI - SPATIU COMERCIAL 110 MP CU VAD AUTO SI PIETONAL EXCELENT COMPLET RENOVAT IDEAL PENTRU ORICE TIP DE AFACERE SAU INVESTITIE INTELIGENTA PRET 249 000 EURO NU SE PERCEPE TVA Asa cum v-am obisnuit COMISION 0 Localizare premium spatiul este situat chiar la DN1 in centrul orasului Otopeni la doar 40 de metri de statiile de autobuz ambele sensuri pasarela pietonala si viitoarea statie de metrou Otopeni In imediata vecinatate se afla banca BCR BRD si clinica SINEVO Poate fi achizitionat pentru investitie sau pentru dezvoltarea propriei afaceri avand posibilitati multiple de profil Spatiul este complet renovat dotat cu AC centrala termica proprie Vaillant si incalzire in pardoseala sistem de alarma si camere video Instalatiile electrica si sanitara au fost complet schimbate iar baia dispune de toaleta si cabina dus Se vinde impreuna cu mobilierul din interior Suprafata construita 110 mp Suprafata u...
Va prezentam un apartament de 2 camere situat in Dristor la 5 minute metrou mall Park Lake parc IOR pe Eufrosina Popescu Apartamentul este decomandat intr-un bloc reabilitat cu un parter inalt are gresie faianta parchet termopane usa metalica este liber si are toate actele la zi
Comision cumparator 0 ASCENDENT IMOBILIARE Va propune spre vanzare un apartament decomandat cu o suprafata utila de 55 mp situat la parterul unei cladiri elegante intr-o zona centrala linistita Situat pe apreciata strada Matei Basarab in imediata vecinatate a Centrului Istoric si a Centrului Civic acest amplasament ofera acces rapid la cele mai importante puncte de interes ale orasului combinand farmecul istoric cu dinamismul urban Va invitam sa experimentati o vizionare initiala din locatia unde va aflati chiar acum prin accesarea turului virtual Tur virtual tridimensional https //my matterport com/show/ m YaSDtNhvRGq Compartimentarea este practica si aerisita living spatios si luminos ndash 22 mp bucatarie mobilata camera tip birou ndash 8 mp baie cu dus camara hol generos Un mare plus il reprezinta cota parte din gradina cladirii un colt verde ideal pentru relaxare lucru in aer liber sa...
Pyf003B6672 Vanzare 2 camere Zona Rahova Bucuresti Pret 80000 Euro ID oferta Pyf003B6672 Acasa incepe cu un sentiment Poate fi o lumina calda intr-o dupa-amiaza linistita un balcon cu vedere sau o bucatarie unde iti savurezi cafeaua de dimineata Imagineaza-ti locuinta perfecta care reflecta personalitatea ta si raspunde nevoilor tale zilnice Echipa PYF REAL ESTATE te ajuta sa gasesti acel loc special pe care il poti numi acasa Portofoliul nostru cuprinde proprietati atent selectate ideale pentru tine si familia ta Localizare Rahova - Parcul Sebastian una dintre cele mai cautate zone din Bucuresti cu acces rapid la mijloace de transport in comun scoala/gradinita restaurant/pub parc intersectie circulata trafic pietonal fastfood supermarket zona comerciala autobuz scoli magazine parcuri si centre comerciale Detalii proprietate Tip locuinta Apartamente Tip operatiune vanzare Numar camere 2 camere 1 dormitoare Suprafata utila 52 mp S...
PYF016B10819 Imagineaza-ti locuinta perfecta care sa reflecte personalitatea ta si sa satisfaca toate nevoile tale Echipa noastra dedicata te va ajuta in cautarea locuintei ideale Portofoliul nostru include exact ceea ce iti doresti tu si familia ta Alege PYF REAL ESTATE pentru a transforma visul tau in realitate PYF REAL ESTATE va propune prin agentul de zona Cristina C spre vanzare un apartament situat in zona Veteranilor mai exact pe strada Dreptatii in imediata apropiere a metroului autobuzului zonelor comerciale restaurantelor situat la 10 minute de statia de metrou Lujerului intr-un imobil construit in anul 1981 finalizat avand structura de monolit si compartimentari de caramida Imobilul are izolatie exterioara si interioara apartamentul compus din doua camere avand un dormitor o baie si o bucatarie este situat la etajul 8/8 si are destinatie rezidentiala Avand o suprafata 51mp dar si o compartimentare decomandata apartamentul a fost recen...
Blitz va propune spre vanzare un apartament cu 2 camere complet decomandat situat intr-o zona ultracentrala ideala pentru cei care isi doresc acces rapid la toate facilitatile urbane Proprietatea se afla la etajul 2 dintr-un bloc solid o pozitie extrem de cautata pentru confortul cotidian Locatia este una dintre cele mai apreciate din Targoviste cu acces imediat la institutii publice magazine restaurante transport in comun unitati de invatamant si zone de interes major Caracteristici principale Compartimentare complet decomandata cu spatii bine delimitate Etaj 2/4 - pozitie excelenta usor accesibila Lumina naturala pe tot parcursul zilei Ideal pentru locuit dar si pentru birou sau investitie in inchiriere Avantaje zona Pozitie ultracentrala - la cativa pasi de Piata Tricolorului Primarie Tribunal In apropiere scoli gradinite supermarketuri restaurante banci Acces rapid la mijloace de transport in comun Cartier civilizat blocur...
Dâmboviţa - 5 Septembrie 2025
95.000 €
Atenție
Din motive de securitate și pentru protecția utilizatorilor, această funcționalitate nu este disponibilă pentru locația ta.