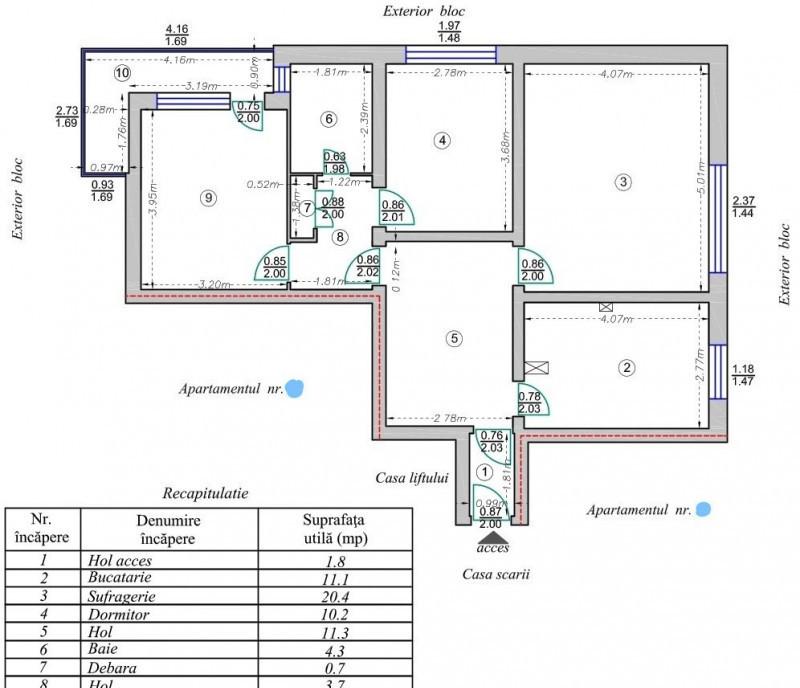
Proprietar vand apartament 3 camere modelul mare 81 6 mp situat in zona Orizont - Piata Sud pe str Castanilor nr 4 Este o locuinta curata luminoasa si spatioasa ideala pentru o familie care doreste sa se mute intr-una dintre cele mai solide constructii din Bacau COMPARTIMENTARE DEOSEBITA 81 6 mp conform RELEVEU atasat in galeria foto o Suprafata totala inclusiv balcon 81 6 mp o Suprafata utila 76 1 mp o Suprafata construita 110 68 mp o Bucatarie mare 11 1 mp Spatioasa loc de luat masa pentru toata familia o Hol patrat imens 11 3 mp O adevarata camera in sine ofera o senzatie de spatiu imediat ce intri in casa Poate fi amenajat ca zona de zi/birou o Spatii depozitare include debara o Balcon generos 5 5 mp Modelul lung in forma de L Este inchis oferind protectie impotriva intemperiilor LOCATIE EXCELENTA o Blocul este situat pe str Castanilor nr 4 intre Mega Image Curcanul de Aur si biserica Sf Gheorghe o 2 min de mers pe jos Piata Sud Mega Image statie autobuz o La doi pasi de unele dintre cele mai bune scoli din Bacau Scoala gimnaziala nr 10 Gradinita cu program prelungit nr 28 si Scoala gimnaziala nr 27 George Bacovia o 10 min de mers pe jos de Universitatea Vasile Alecsandri Spitalul Judetean si Parc o Locuinta este ideala pentru familii fiind situata intr-o zona linistita verde si extrem de civilizata RENOVARE SI DOTARI 2025 Investitiile grele sunt gata o Pereti si tavane Decopertati pana la placa si refacuti complet tencuiala glet 3 straturi lavabila alba o Tamplarie premium Termopane noi 2025 Salamander 6 camere cu 3 garnituri si 3 foi de sticla tripan Pervaze interior si exterior o Baie Renovata integral in 2025 instalatii gresie faianta si mobilier noi ARE FEREASTRA o Centrala termica proprie instalatie realizata din tevi groase de cupru o Usa metalica la intrare o In camere a fost pastrat parchetul original din lemn masiv ideal pentru reconditionare Acesta este intr-o stare buna si reprezinta o baza excelenta pentru reabilitare o Apartamentul reprezinta o panza alba fiind pregatit pentru ultimele finisaje parchet si usi interioare scutindu-va de partea grea a renovarii DETALII BLOC o Structura MONOLIT 1970 Beton armat turnat integral direct in cofraj nu din prefabricate rezistenta seismica exceptionala si izolare fonica superioara panourilor prefabricate si multor blocuri noi unde se face adesea economie la materiale o Expertiza tehnica Blocul a fost expertizat in anul 2011 si incadrat in clasa RS3 risc seismic redus Aceasta certificare oficiala confirma stabilitatea imobilului si permite obtinerea oricarui tip de credit bancar ipotecar sau Noua Casa o Utilitati din constructie Blocul este prevazut din proiectare cu hidrofor si bazin de apa propriu asigurand presiune maxima la apa in permanenta indiferent de consumul din oras o Etaj intermediar 7 din 10 oferind o vedere panoramica superba pe ambele fete ale blocului o Lift nou 2022 Marca OTIS modern si rapid o Scara curata si civilizata cu vecini linistiti multi profesori medici ingineri DETALII VANZARE o Pret 79 000 EUR o Toate actele sunt la zi o Se accepta credit ipotecar sau programul Noua Casa o Comision 0 vanzare directa de la proprietar o Exclus contactarea de catre agentii imobiliare o Va rog sunati pentru alte detalii si vizionare intre orele 08 00 - 20 00
⚠ AtenÈ›ie !
Nu plăti niciodată în avans într-un cont bancar până când nu l-ai întâlnit pe vânzător și ați semnat un acord.
Nu furniza informații confidențiale în discuții pe WhatsApp/Telegram sau alte aplicații de mesagerie unde utilizatorii își ascund ușor identitatea, deoarece te poți expune la fraude sau înșelăciuni.
Nu furniza niciodată detaliile cardului tău bancar (număr, data expirării, CVV). Te expune direct la fraude bancare.
Primirea unui mesaj pe WhatsApp/Telegram cu un ID scanat nu înseamnă că ai identificat cumpărătorul. Acest lucru se face pe loc, când semnați un acord de cumpărare.
Când comanzi online, alege livrarea cu verificare. Pentru un cost relativ mic, te protejezi de eventuale neplăceri.
PYF003B9249 Imagineaza-ti locuinta perfecta care sa reflecte personalitatea ta si sa satisfaca toate nevoile tale Echipa noastra dedicata te va ajuta in cautarea locuintei ideale Portofoliul nostru include exact ceea ce iti doresti tu si familia ta Alege PYF REAL ESTATE pentru a transforma visul tau in realitate PYF REAL ESTATE va propune prin agentul zonei Madalina L spre vanzare un apartament situat in zona Giurgiului pe strada Tatulesti in imediata apropiere a metroului autobuzului zonelor comerciale restaurantelor centrului universitar situat la 10 minute cu transportul in comun de statia de metrou Eroii Revolutiei intr-un imobil construit in anul 1975 finalizat avand structura de monolit si compartimentari de caramida Imobilul are izolatie exterioara si interioara apartamentul compus din trei camere avand doua dormitoare doua bai si o bucatarie este situat la etajul 3/4 si are destinatie rezidentiala Avand o suprafata 65mp dar si o compartim...
Apartament nbsp cu 3 camere de vanzare in Sibiu zona Calea Surii Mici amplasat intr-un ansamblu modern construit in anul 2025 si amenajat cu nbsp alei si trotuare pavate spatii verzi de relaxare si zone de joaca pentru copii iluminat stradal strazi asfaltate Ansamblul este situat aproape de centrul orasului si autostrada dispune de cai de acces pentru persoanele cu dizabilitati si lifturi Acest apartament nbsp este amplasat la etajul intermediar nbsp 1 blocul avand regimul de inaltime D P 5E 1ER Apartamentul nbsp este compartimentat complet decomandat are suprafata construita de 96 mp si suprafata utila de 69 mp impartita in living spatios doua dormitoare o bucatarie inchisa doua bai spatioase si un hol din care se intra in fiecare camera Apartamentul beneficiaza si de doua balcoane cu suprafata totala de 13 mp Apartamentul se preda la stadiul de nbsp alb nbsp avand urmatoarele beneficii - Loc de parcare - Pereti vopsea lavabila - Usa metalica antiefract...
Agentia imobiliara camera9 cauta noi proprietari pentru acest apartament cu 3 camere cu balcon de 13mp situat pe str Serdarului in zona Kiseleff Mihalache - Clucerului Zona este rezidentiala sigura si linistita cu acces usor catre mijloace de transport in comun licee scoli sau gradinite restaurante Parcul Kiseleff 5 minute de mers pe jos Parcul Herastrau etc Imobilul este in plan secund a fost construit in anul 1979 si este reabilitat termic Apartamentul este situat la etajul 7/8 dar pe suprafata apartamentului este terasa ceea ce ii ofera multa lumina naturala liniste nu sunt vecini deasupra care sa deranjeze priveliste faina asupra orasului intimitate si un aer un pic mai curat Cu terasa nu au fost probleme niciodata Este un apartament spatios cu o compartimentare tipic comunista dar bine gandita dispune de hol la intrare o debara mare bucatarie inchisa si generoasa o baie cu geam camere patrate spatii de depozitare etc Apartamentul a...
ImoPuls va propune o Constructie Noua - 2025 in zona Girocului - Esso cu apartamente de 2 3 camere sau Penthouse compartimentate excelent Locuintele sunt racordate la toate utilitatile publice se predau la quot cheie quot cu finisaje alese pe gustul clientilor care beneficiaza si de loc de parcare inclus in pret Modele apartamente 2 camere 55 46 mp utili 14 48 mp tersa disponibil la Et 1 si Et 2 - 114 450 Euro 2 camere 56 25 mp utili 14 46 mp tersa 2 bai disponibil la Et 1 si Et 3 - 114 450 Euro 3 camere 70 71 mp utili 16 88 mp tersa 2 bai disponibil la Et 1 Et 2 si Et 3 - 129 700 Euro 3 camere 70 87 mp utili 16 92 mp tersa 2 bai disponibil la Et 1 si Et 2 - 129 700 Euro 4 camere 111 12 mp utili 31 62 mp terse 2 bai disponibil la Et 3 - 253 890 Euro 4 camere 116 35 mp utili 48 91 mp tersa 2 bai disponibil la Et 3 - 281 610 Euro SAD-uri la parter care se pot compartimenta dupa nevoile fiecaruia 2 200 Euro/mp pentru ac...
Va propunem spre vanzare un apartament cu 3 camere tip decomandat situat in Drumul Taberei-metrou Romancierilor Apartamentul are o suprafata de 69 mp situat la etajul 10/10 2 balcoane anul constructiei fiind 1977 In imediata proximitate aveti acces rapid la multiple mijloace de transport in comun supermarketuri farmacii Mall Plaza Necesita renovare
București - 3 Iunie 2025
75.000 €
Atenție
Din motive de securitate și pentru protecția utilizatorilor, această funcționalitate nu este disponibilă pentru locația ta.