Mutare imediata comision 0 direct dezvoltator Vizionare si servicii complete la 0749122233 Foto de prezentare din portofoliul dezvoltatorului
Garsoniera decomandata foarte spatioasa cu 30 mp terasa in bloc finalizat mutare rapida adiacent Soseaua Oltenitei/str Leordeni la 2 minute de statia STB Se accepta atat plata prin credit bancar cat si plata cash
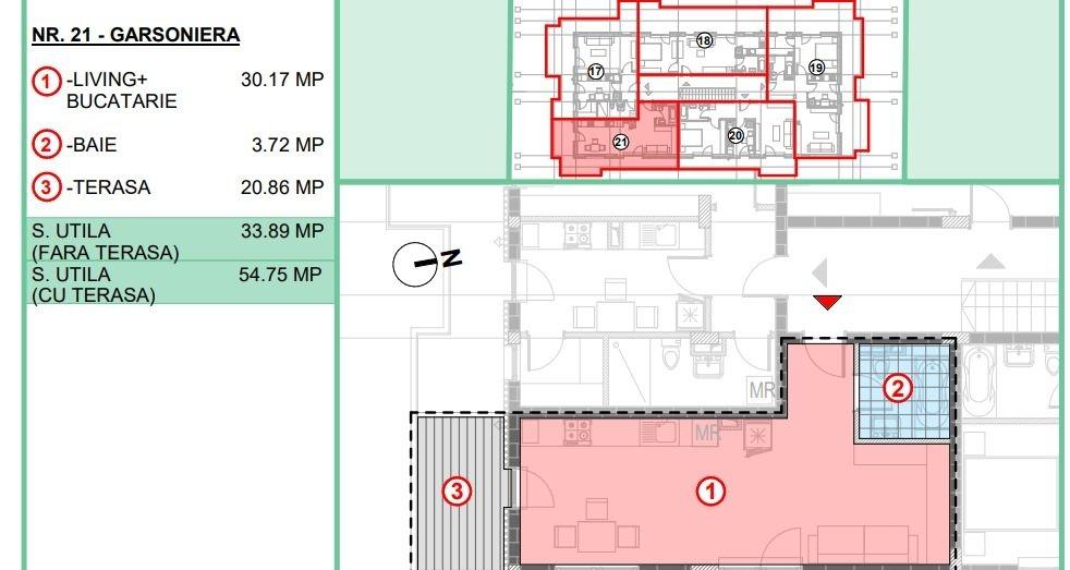
Finisaje la alegere in buget la dispozitie Pret parcare acoperita 9000euro - TVA inclus
⚠ AtenÈ›ie !
Nu plăti niciodată în avans într-un cont bancar până când nu l-ai întâlnit pe vânzător și ați semnat un acord.
Nu furniza informații confidențiale în discuții pe WhatsApp/Telegram sau alte aplicații de mesagerie unde utilizatorii își ascund ușor identitatea, deoarece te poți expune la fraude sau înșelăciuni.
Nu furniza niciodată detaliile cardului tău bancar (număr, data expirării, CVV). Te expune direct la fraude bancare.
Primirea unui mesaj pe WhatsApp/Telegram cu un ID scanat nu înseamnă că ai identificat cumpărătorul. Acest lucru se face pe loc, când semnați un acord de cumpărare.
Când comanzi online, alege livrarea cu verificare. Pentru un cost relativ mic, te protejezi de eventuale neplăceri.
Proprietar prin agentie vand apartament total decomandat compus din 3 camere si dependinte doua balcoane unul comun celor doua dormitoare si unul comun livingului si bucatariei modern mobilat si utilat complet asa cum se vede in fotografii situat pe etajul 5 placa de beton si pod peste placa de la ultimul etaj bloc cu lift loc de parcare contracost 50euro/ luna daca se doreste doar inchiriere pentru vanzare pretul este de 5000euro TVA inclus avand numar cadastral propriu Se poate oferi si un al doilea loc de parcare daca se doreste contra cost Blocul nu este stradal este situat in planul al doilea pe strada Drumul Fermei la jumatatea distantei dintre statiile de metrou Leonida si Berceni in apropierea supermarketului Penny si a Parcului intr-o zona linistita foarte buna in care nu se mai poate construi Comision pentru cumparator 1500euro Se accepta doar plata cash Se intra in posesia apartamentului imediat dupa vanzare
Apartament decomandat foarte spatios bine compartimentat foarte aproape de pasarela pietonala Popesti Vest Se preda la cheie cu gresie faianta parchet usi de interior obiecte sanitare incalzire in pardoseala cu centrala proprie de apartament Poze cu caracter informativ Comision 0 Ansamblul rezidential ofera locuinte decomandate - garsoniere - studiouri - apartamente cu 2 si 3 camere Structura de beton zidaria izolatia termica tencuielile si finisajele se fac in conformitate cu standardele de siguranta si calitate in vigoare iar angajatii nostri lucreaza cu multa grija si atentie Preocuparea noastra principala este sa va oferim o locuinta buna si de calitate Cu siguranta amprenta lucrului bine facut in Young City Residence-Metrou Berceni va creste in timp valoarea locuintei dumneavoastra Parcarile sunt disponibile contra cost pentru fiecare apartament Acestea sunt atat in exterior cat si la demisol Avantajul parcarilor de la demisol consta in protec...
proprietar apartament compus din 2 camere si depedinte total decomandat mobilat si utilat complet exact ca in fotografii incluzand si un loc de parcare exterior avand numar cadastral propriu si acces imediat in cadrul ansamblului la loc de joaca si parc foarte frumos amenajat pentru copii dar si pentru parinti Daca se doresc electrocasnicele existente pretul de vanzare al apartamentului este de 87 000 Euro Este situat pe etaj intermediar in bloc cu lift si facand parte dintr-o comunitate deosebita ce pune accent pe bun simt si respect reciproc Locatia este centrala dar intr-o zona linistita/retrasa pe str Popesti-Romani foarte aproape de intersectia cu str Paraul Rece avand acces in 5-7min de mers pe jos la statia STB ajungand la metrou Pta Sudului in aproximativ 10min in functie de trrafic Zona ofera faciilitati multiple farmacia Tei STB 7min LIDL Mega Image scoli gradinite after school campus gimnazial parc/loc de joaca etc Comi...
garsoniera este amplasata in cadrul unui ansamblu rezidential noua a Popestiului pe parter si este decomandata Ansamblul dispune de acces facil la mijloacele de transport in comun STB tramvai metrou precum si de marile centre comerciale prezente Carrefour Metro Auchan Leroy Merlin Lidl etc are o compartimentare moderna tinereasca foarte bine luminat iar finisajele sunt de cea mai buna calitate
direct dezvoltator comision 0 Fotografii de prezentare din portofoliul dezvoltatorului dintr-un bloc identic finalizat anul trecut Pentru detalii si vizionari telefon contact 0749122233 Ansamblul rezidential situat in sector 4 Dealul Cucului/Turnu Magurele - Mall Grand Arena/CET Progresu/Parc T Arghezi se afla localizat intr-o zona ideala cu acces direct catre STB cu STB 241 pana la metrou Ap Patriei in 10min intr-o locatie privilegiata a orasului in proximitatea Mall Grand Arena si marile centre comerciale ale sectorului 4 Regim de inaltime de 8 etaje finalizat Toate apartamentele vor fi finisate complet si se vor preda la cheie Complexul beneficiaza de parcari exterioare pret parcare 5950euro TVA inclus de 19 spatiu verde loc de joaca gradini acces securizat Parcarea nu este inclusa in pretul apartamentului se achizitioneaza separat in functie de necesitate pretul acesteia fiind de 7000euro TVA 19 adica 8330euro Modalitatea de...
Se ofera spre vanzare un apartament cu 1 camera decomandat situat in cartierul Micro 20 la etajul 4 din 10 Detalii proprietate Suprafata utila aprox 33 Etaj 4/10 Compartimentare decomandata Se vinde complet mobilat si utilat Dotari centrala termica proprie aer conditionat Imobilul este ideal atat pentru locuit cat si pentru investitie inchiriere imediata Situat intr-o zona accesibila cu multiple facilitati in apropiere transport public magazine scoli farmacii Pret de vanzare 44 500 euro Contact Ene Eduard - 0786 840 840 Mag Invest Imobiliare
Va oferim spre vanzare o garsoniera bloc nou finalizat 2019 Garsoniera este ideala pentru o persoana sau un cuplu avand un design modern si functional Ca si compartimentare si spatiu interior cred ca este una dintre cele mai frumoase garsoniere aflate acum la vanzare - bucataria mare unde ai loc suficient sa iei masa - balconul de 5m lungime care poate fi folosit ca si un mini living sau o parte pentru depozitare - camera principala ok dimensionata care a permis si un dresing incapator fara sa compromita spatiul util - holul de intrare foarte util intr-o garsoniera - aspectul foarte ok la interior fiind si un apartament relativ nou si mobilierul ok - centrala proprie Zona este linistita si accesibila are iesire rapida 10 minute de mers pe jos pana la intersectia Bd C-tin Brancoveanu cu Strada Turnu Magurele la cateva minute de Mall Grand Arena Kaufland Aurel Persu Selgros Hornbach Statii Stb - la 10 min de mers pe jos 102 220 141 116 216 ...
> Vrei o locuinta cu vedere superba aproape de campus si toate facilitatile din oras Aceasta garsoniera de 32 mp este alegerea perfecta pentru tine sau pentru o investitie sigura si profitabila Localizare excelenta la doar 3 minute de mers pe jos pana la Campusul Universitar Ovidius - zona ideala pentru studenti cadre didactice sau tineri profesionisti Vedere panoramica la lac - te bucuri in fiecare zi de liniste si peisaje relaxante Suprafata utila 32 mp - compartimentare practica spatiu luminos si eficient Stare excelenta - se vinde complet mobilata si utilata gata de mutat sau inchiriat Posibilitate parcare in zona acces rapid la transport public magazine farmacii cafenele Investitie ideala se poate inchiria imediat cu 350-400 EUR/luna cerere mare tot timpul anului Id intern P3357
Constanţa - 29 August 2025
82.000 €
Atenție
Din motive de securitate și pentru protecția utilizatorilor, această funcționalitate nu este disponibilă pentru locația ta.