Mutare imediata comision 0 direct dezvoltator Vizionare si servicii complete la 0720002332 Foto de prezentare din portofoliul dezvoltatorului
Pretul nu include TVA -ul de 9
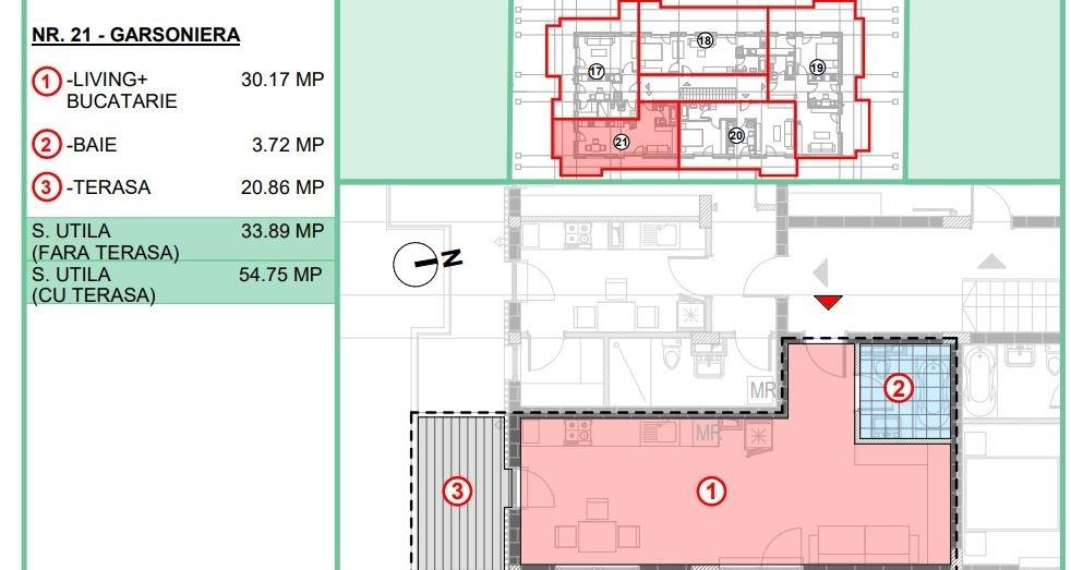
Garsoniera decomandata foarte spatioasa cu 30 mp terasa in bloc finalizat mutare rapida adiacent Soseaua Oltenitei/ str Leordeni la 2 minute de statia STB Se accepta atat plata prin credit bancar cat si plata cash
Finisaje la alegere in buget la dispozitie Pret parcare acoperita 7500euro - TVA inclus
⚠ AtenÈ›ie !
Nu plăti niciodată în avans într-un cont bancar până când nu l-ai întâlnit pe vânzător și ați semnat un acord.
Nu furniza informații confidențiale în discuții pe WhatsApp/Telegram sau alte aplicații de mesagerie unde utilizatorii își ascund ușor identitatea, deoarece te poți expune la fraude sau înșelăciuni.
Nu furniza niciodată detaliile cardului tău bancar (număr, data expirării, CVV). Te expune direct la fraude bancare.
Primirea unui mesaj pe WhatsApp/Telegram cu un ID scanat nu înseamnă că ai identificat cumpărătorul. Acest lucru se face pe loc, când semnați un acord de cumpărare.
Când comanzi online, alege livrarea cu verificare. Pentru un cost relativ mic, te protejezi de eventuale neplăceri.
Dezvoltator/Comision 0 Achizitie cash/credit Info/vizionari - tel 0720002332 Pretul afisat este valabil pentru plata integrala 99 la antecontract si include TVA de 9 Pentru plata a 50 din pret la antecontract pretul apartamentului este de 139900euro Amplasarea proiectului este pe Bvd N Grigorescu in apropierea statiei de autobuz 243 cam la jumatatea distantei dintre metroul N Grigorescu drumul european E81 si Splaiul Unirii raul Dambovita Fiecare apartament dispune de centrala termica proprie pe gaz Ariston incalzire in pardoseala si tamplarie termopan cu geam tripan Apartament compus din 2 camere si dependinte tip studio living deschis cu bucataria daca se doreste se poate inchide oferind spatii generoase pe fiecare zona ce defineste compartimentarea acestuia Orientarea apartamentului este pe S-E Balconul este mai mult decat generos si permite accesul din fiecare camera in parte Proiect cu regim mic de inaltime P 4 cu lift situat in zona ...
Direct dezvoltator Comision 0 Consultanta si asistenta pe toata durata procesului de achizitie fara costuri Pentru vizionari si detalii 0720002332 Important 1 Fotografiile sunt doar de prezentare dintr-un alt ansamblu finalizat de dezvoltator si vandut integral situat in aceeasi zona si nu corespund compartimentarilor prezentate in schite proiectele in sine fiind diferite 2 Pretul afisat este pentru plata cash 95 la antecontract si include TVA-ul de 21 3 Pretul pentru credit este de 118580euro TVA 21 inclus 4 Amplasarea ansamblului ofera toate facilitatile zonei din proximitatea Mall Grand Arena Apartament compus din 2 camere si dependinte generos decomandat cu predare la cheie g f p obiecte sanitare centrala termica proprie incalzire prin pardoseala contorizare individuala pentru utilitati apa energie electrica gaze internet fibra optica si cabluTV Pretul locurilor de parcare este 8 000 euro TVA loc parcare exterior / 10 000 ...
Direct dezvoltator Comision 0 Consultanta si asistenta pe toata durata procesului de achizitie fara costuri Pentru vizionari si detalii 0720002332 Important 1 Fotografiile sunt doar de prezentare dintr-un alt ansamblu finalizat de dezvoltator si vandut integral situat in aceeasi zona si nu corespund compartimentarilor prezentate in schite proiectele in sine fiind diferite 2 Pretul afisat este pentru plata cash 95 la antecontract si include TVA-ul de 21 3 Pretul pentru credit este de 121605euro TVA 21 inclus 5 Amplasarea ansamblului ofera toate facilitatile zonei din proximitatea Mall Grand Arena Apartament compus din 3 camere si dependinte decomandat cu predare la cheie g f p obiecte sanitare centrala termica proprie incalzire prin pardoseala contorizare individuala pentru utilitati apa energie electrica gaze internet fibra optica si cabluTV Pretul locurilor de parcare este 8 000 euro TVA loc parcare exterior / 10 000 euro ...
Direct dezvoltator Comision 0 Consultanta si asistenta pe toata durata procesului de achizitie fara costuri Pentru vizionari si detalii 0720002332 Important 1 Fotografiile sunt doar de prezentare dintr-un alt ansamblu finalizat de dezvoltator si vandut integral situat in aceeasi zona si nu corespund compartimentarilor prezentate in schite proiectele in sine fiind diferite 2 Pretul afisat este pentru plata cash 95 la antecontract si include TVA-ul de 21 3 Pretul pentru credit este de 116765euro TVA 21 inclus 4 Amplasarea ansamblului ofera toate facilitatile zonei din proximitatea Mall Grand Arena Apartament compus din 2 camere si dependinte generos decomandat cu predare la cheie g f p obiecte sanitare centrala termica proprie incalzire prin pardoseala contorizare individuala pentru utilitati apa energie electrica gaze internet fibra optica si cabluTV Pretul locurilor de parcare este 8 000 euro TVA loc parcare exterior / 10 000 e...
Direct dezvoltator Comision 0 Consultanta si asistenta pe toata durata procesului de achizitie fara costuri Pentru vizionari si detalii 0720002332 Important 1 Cele 5 tipuri de schite doua dintre ele sunt identice - dar in oglinda corespund acelorasi preturi de vanzare mentionate in acest anunt de promovare apartamentele corespunzatoare avand suprafete utile cuprinse intre 50 5 - 53 5 mp la care se adauga balcoane avand suprafete cuprinse intre 4 2 - 7 mp ajungand la o suprafata totala cuprinsa intre 56 5 - 57 7 mp 2 Fotografiile sunt doar de prezentare dintr-un alt ansamblu finalizat de dezvoltator si vandut integral situat in aceeasi zona si nu corespund compartimentarilor prezentate in schite proiectele in sine fiind diferite 3 Pretul afisat este pentru plata cash 95 la antecontract si include TVA-ul de 21 4 Pretul pentru credit este de 99825euro TVA 21 inclus 5 Amplasarea ansamblului ofera toate facilitatile zonei din proximitatea ...
Garsoniera in bloc stradal pe Sos Pantelimon vedere pe spate zona linistita cu multa verdeata cu acces rapid la punctele de interes la 2 minute de LIDL si magazinele Marius la 7 minute pe jos de Mega Mall 10 minute de metrou 10 minute de piata Obor 10 minute de Gara de Est in fata blocului statie STB - masina 101 si statie tramvai liniile 36 si 14 in zona scoala gradinite parculete locuri de joaca pentru copii vecini foarte linistiti zona foarte linistita Garsoniera este zugravita fara imbunatatiri are termopane inclusiv usile de interior luminoasa datorita fatadei de termopan nu este pe colt are parchet usa metalica Maco balcon logie suprafata 30mp bucatarie inchisa dresing la intrare Are toate actele pregatite pentru vanzare se elibereaza in 15 maxim 30 de zile de la semnarea contractului Fara agentii fara credit
Ivory Residence face un pas important in dezvoltarea sa cu FAZA II adaugand blocurile 7 - 12 si oferind cel mai aerisit si primitor complex rezidential din zona Situat pe o suprafata generoasa de 6 hectare ansamblul se distinge prin spatii verzi ample inclusiv un parculet si o livada de pomi fructiferi Rezidentii pot beneficia de facilitati de recreere si sport precum teren multisport pista de alergare si locuri de joaca exclusive intr-un cadru ideal pentru un stil de viata activ Apartament cu 1 camera Finalizat de Vanzare in Blocurile 7-12 - 36 mp Suprafata utila 36 mp Living generos si bucatarie deschisa Spatiu luminos perfect pentru relaxare si socializare Baie moderna si hol generos Confortul zilnic este garantat Oferta doar pana la finalul lunii iulie apartamentele din Ivory Residence Pipera beneficiaza de TVA redus 9 si boxa inclusa in pret Ofertele sunt limitate iar disponibilitatea scade rapid Nu rata ocazia de a achizitiona un apartament ...
Iti propun spre vanzare o garsoniera decomandata luminoasa si primitoare cu o suprafata generoasa de aproximativ 34 mp atent amenajata pentru a-ti oferi confortul si functionalitatea de care ai nevoie zi de zi mobilata utilata Localizata excelent aproape de statiile STB aceasta proprietate iti permite sa ajungi rapid oriunde ai nevoie in oras economisindu-ti timp pretios Fie ca iti doresti un camin cozy in care sa te retragi dupa o zi agitata fie cauti o investitie sigura -- garsoniera aceasta este alegerea ideala Zona este foarte cautata pentru inchiriere asa ca poti transforma usor achizitia intr-o afacere profitabila Pret 59 000 euro Suna-ma la 0763 026 362 pentru mai multe detalii sau pentru a programa o vizionare Te asteapta un loc care abia asteapta sa-i spui acasa
Va propunem pentru vanzare o garsoniera situata la etajul 2 din 5 Scara de bloc este foarte curata blocul este anvelopat Blocul din 1976 este situat langa Lidl/ Kaufland Fizicienilor Apartamentul a fost renovat se vinde mobilat si utilat cum apare in poze In apartament este instalat boiler ptr apa calda si aer conditionat Totul este electric Teava de gaze este la usa se poate monta centrala daca se doreste Pana la metrou Nicolae Grigorescu 2 statii cu Stb 102 Aceasta garsoniera prezinta un spatiu confortabil si bine pozitionat in Bucuresti Nu ratati ocazia de a locui intr-o zona centrala cu toate facilitatile la indemana Pentru mai multe detalii Agentia Imobiliara - Ramiro Imob - 0770 280 100 - Cornel Ion Comision Standard - Nu asteptati sa cumparati acest apartament Cumparati apartamentul si asteptati
Va prezentam o garsoniera pe strada Dristorului intr-un bloc reabilitat partial mobilata si utilata cu gresie faianta parchet termopane usa metalica masina spalat Blocul are 2 lifturi si scara este foarte curata Garsoniera este libera ideala pentru inchiriat si are toate actele
București - 25 Martie 2025
63.000 €
Atenție
Din motive de securitate și pentru protecția utilizatorilor, această funcționalitate nu este disponibilă pentru locația ta.