Mutare imediata comision 0 direct dezvoltator Vizionare si servicii complete la 0720002332 Foto de prezentare din portofoliul dezvoltatorului
Garsoniera decomandata foarte spatioasa cu 30 mp terasa in bloc finalizat mutare rapida adiacent Soseaua Oltenitei/str Leordeni la 2 minute de statia STB Se accepta atat plata prin credit bancar cat si plata cash
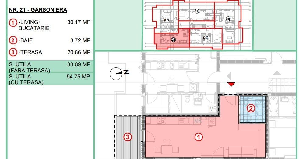
Finisaje la alegere in buget la dispozitie Pret parcare acoperita 9000euro - TVA inclus
⚠ AtenÈ›ie !
Nu plăti niciodată în avans într-un cont bancar până când nu l-ai întâlnit pe vânzător și ați semnat un acord.
Nu furniza informații confidențiale în discuții pe WhatsApp/Telegram sau alte aplicații de mesagerie unde utilizatorii își ascund ușor identitatea, deoarece te poți expune la fraude sau înșelăciuni.
Nu furniza niciodată detaliile cardului tău bancar (număr, data expirării, CVV). Te expune direct la fraude bancare.
Primirea unui mesaj pe WhatsApp/Telegram cu un ID scanat nu înseamnă că ai identificat cumpărătorul. Acest lucru se face pe loc, când semnați un acord de cumpărare.
Când comanzi online, alege livrarea cu verificare. Pentru un cost relativ mic, te protejezi de eventuale neplăceri.
Dezvoltator/Comision 0 Achizitie cash/credit Info/vizionari - tel 0720002332 Pretul afisat este valabil pentru plata integrala 99 la antecontract si include TVA de 9 Pentru plata a 50 din pret la antecontract pretul apartamentului este de 139900euro Amplasarea proiectului este pe Bvd N Grigorescu in apropierea statiei de autobuz 243 cam la jumatatea distantei dintre metroul N Grigorescu drumul european E81 si Splaiul Unirii raul Dambovita Fiecare apartament dispune de centrala termica proprie pe gaz Ariston incalzire in pardoseala si tamplarie termopan cu geam tripan Apartament compus din 2 camere si dependinte tip studio living deschis cu bucataria daca se doreste se poate inchide oferind spatii generoase pe fiecare zona ce defineste compartimentarea acestuia Orientarea apartamentului este pe S-E Balconul este mai mult decat generos si permite accesul din fiecare camera in parte Proiect cu regim mic de inaltime P 4 cu lift situat in zona ...
Direct dezvoltator Comision 0 Consultanta si asistenta pe toata durata procesului de achizitie fara costuri Pentru vizionari si detalii 0720002332 Important 1 Fotografiile sunt doar de prezentare dintr-un alt ansamblu finalizat de dezvoltator si vandut integral situat in aceeasi zona si nu corespund compartimentarilor prezentate in schite proiectele in sine fiind diferite 2 Pretul afisat este pentru plata cash 95 la antecontract si include TVA-ul de 21 3 Pretul pentru credit este de 118580euro TVA 21 inclus 4 Amplasarea ansamblului ofera toate facilitatile zonei din proximitatea Mall Grand Arena Apartament compus din 2 camere si dependinte generos decomandat cu predare la cheie g f p obiecte sanitare centrala termica proprie incalzire prin pardoseala contorizare individuala pentru utilitati apa energie electrica gaze internet fibra optica si cabluTV Pretul locurilor de parcare este 8 000 euro TVA loc parcare exterior / 10 000 ...
Direct dezvoltator Comision 0 Consultanta si asistenta pe toata durata procesului de achizitie fara costuri Pentru vizionari si detalii 0720002332 Important 1 Fotografiile sunt doar de prezentare dintr-un alt ansamblu finalizat de dezvoltator si vandut integral situat in aceeasi zona si nu corespund compartimentarilor prezentate in schite proiectele in sine fiind diferite 2 Pretul afisat este pentru plata cash 95 la antecontract si include TVA-ul de 21 3 Pretul pentru credit este de 121605euro TVA 21 inclus 5 Amplasarea ansamblului ofera toate facilitatile zonei din proximitatea Mall Grand Arena Apartament compus din 3 camere si dependinte decomandat cu predare la cheie g f p obiecte sanitare centrala termica proprie incalzire prin pardoseala contorizare individuala pentru utilitati apa energie electrica gaze internet fibra optica si cabluTV Pretul locurilor de parcare este 8 000 euro TVA loc parcare exterior / 10 000 euro ...
Direct dezvoltator Comision 0 Consultanta si asistenta pe toata durata procesului de achizitie fara costuri Pentru vizionari si detalii 0720002332 Important 1 Fotografiile sunt doar de prezentare dintr-un alt ansamblu finalizat de dezvoltator si vandut integral situat in aceeasi zona si nu corespund compartimentarilor prezentate in schite proiectele in sine fiind diferite 2 Pretul afisat este pentru plata cash 95 la antecontract si include TVA-ul de 21 3 Pretul pentru credit este de 116765euro TVA 21 inclus 4 Amplasarea ansamblului ofera toate facilitatile zonei din proximitatea Mall Grand Arena Apartament compus din 2 camere si dependinte generos decomandat cu predare la cheie g f p obiecte sanitare centrala termica proprie incalzire prin pardoseala contorizare individuala pentru utilitati apa energie electrica gaze internet fibra optica si cabluTV Pretul locurilor de parcare este 8 000 euro TVA loc parcare exterior / 10 000 e...
Direct dezvoltator Comision 0 Consultanta si asistenta pe toata durata procesului de achizitie fara costuri Pentru vizionari si detalii 0720002332 Important 1 Cele 5 tipuri de schite doua dintre ele sunt identice - dar in oglinda corespund acelorasi preturi de vanzare mentionate in acest anunt de promovare apartamentele corespunzatoare avand suprafete utile cuprinse intre 50 5 - 53 5 mp la care se adauga balcoane avand suprafete cuprinse intre 4 2 - 7 mp ajungand la o suprafata totala cuprinsa intre 56 5 - 57 7 mp 2 Fotografiile sunt doar de prezentare dintr-un alt ansamblu finalizat de dezvoltator si vandut integral situat in aceeasi zona si nu corespund compartimentarilor prezentate in schite proiectele in sine fiind diferite 3 Pretul afisat este pentru plata cash 95 la antecontract si include TVA-ul de 21 4 Pretul pentru credit este de 99825euro TVA 21 inclus 5 Amplasarea ansamblului ofera toate facilitatile zonei din proximitatea ...
Oportunitate rara Garsoniera situata intr-o zona ultracentrala ideala pentru cei care cauta acces rapid la toate punctele de interes ale orasului transport public magazine cafenele parcuri si alte facilitati Suprafata utila este de 34mp situata la etajul 6/7 cu vedere in curtea interioara a blocului Garsoniera se vinde mobilata utilata Imobilul este incadrat in clasa I de risc seismic iar acest aspect se reflecta intr-un pret corect este ideal ca si investitie Proprietatea are potential ridicat mai ales pentru cei interesati de zona ultra-central
Vectorial Broker va prezinta o garsoniera in Tei reper Facultatea de Constructii confort 1 decomandat avand suprafata de 40 mp cu 1 balcon Locuinta este situata la etajul 4 intr-un imobil tip bloc garsoniere de 10 etaje construit in anul 1987 Blocul este reabilitat si anvelopat scara dispune de doua lifturi Garsoniera se vinde mobilata si utilata daca se doreste Pretul este usor negociabil si se accepta orice fel de creditare ID intern VB1925808
ID intern 5256 REGIS Imobiliare va propune spre vanzare un studio modern in zona Bartolomeu Avantgarden Studioul este situat la etajul 4 / 6 detine boxa si un loc de parcare pe CF se afla in modernul complex rezidential Avantgarden cu toate facilitatile necesare unui trai decent in apropiere supermarket farmacii banci parcuri de agrement si locuri de joaca statii de autobuz si mall Imobilul este compus din hol de intrare cu spatiu de depozitare si dressing incorporat dormitor spatios bucatarie dotata cu usa glisanta ce poate fi coborata pentru delimitarea spatiului baie spatioasa cu cada si un balcon deschis de 10 50 mp Proprietatea se vinde complet mobilata cu gust si utilata cu electrcasnice de calitate Mobila este in garantie 10 ani si electrocasnicele in garantie 2 ani Pretul este usor negociabil in functie de modalitatea de plata si se accepta credit imobiliar COMISION STANDARD Bine Ati Venit Acasa
Ivory Residence Pipera - Acasa acolo unde spatiul linistea si confortul se intalnesc La doar cativa pasi de Rondul OMV Pipera intr-o zona exclusivista din nordul Bucurestiului Ivory Residence iti ofera mai mult decat un simplu apartament - iti ofera un stil de viata complet intr-un ansamblu modern verde si perfect organizat Oferta Apartamentul de 2 camere din Ivory Residence Pipera ofera nu doar un spatiu generos si bine compartimentat ci si o boxa de depozitare inclusa in pret pentru un plus de confort si organizare Acest spatiu suplimentar va permite sa pastrati locuinta ordonata oferindu-va libertatea de a va bucura pe deplin de fiecare coltisor al apartamentului Pe o suprafata generoasa de aproape 6 hectare acest proiect complet finalizat cuprinde 1 200 de apartamente spatioase cu finisaje de calitate si compartimentari gandite pentru viata ta de zi cu zi 1 De ce Ivory Residence -Spatiu si intimitate Blocuri aerisite cu distante intre 35 si 65 de metri int...
Descoperiti studiourile cu 1 camera tip 4 din cadrul Ivory Residence locuinte ideale pentru tineri profesionisti sau cupluri in cautarea unui spatiu modern si elegant Cu un design contemporan si facilitati premium acest complex ofera un stil de viata sofisticat si confortabil Caracteristici de Top Localizare Excelenta Situat in proximitatea zonelor de birouri importante precum Pipera Plaza Cubic Center Global Plaza si Swan Office Park Ivory Residence iti ofera acces rapid la principalele puncte de interes Transportul in comun este facil cu statii de autobuz 343 416 449 450 488 si doua statii de metrou Aurel Vlaicu si Pipera in apropiere De asemenea ai acces rapid la soseaua de centura autostrada A3 si Aeroportul International Baneasa Aurel Vlaicu perfect pentru calatoriile in afara orasului Constructie Solida Blocurile din Ivory Residence sunt construite in sistem monolit cu pereti turnati din beton armat Aceasta tehnologie moderna asigura o re...
București - 15 Martie 2025
79.570 €
Atenție
Din motive de securitate și pentru protecția utilizatorilor, această funcționalitate nu este disponibilă pentru locația ta.