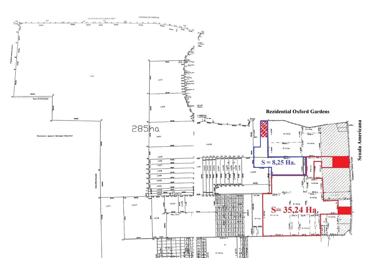
padurea Baneasa vanzare teren forestier padure in suprafata de 35 24 Ha cu 2 deschideri generoase la Sos Pipera - Tunari din care suprafata de 1 83 Ha este situat in intravilanul localitatii Voluntari Regimul economic functiunea zonei V5 - pentru suprafata de 33 41 Ha - paduri de agrement si plantatii forestiere este situata in extravilanul Localitatii Voluntari Categoria de folosinta intravilan construibil pentru portiunea de teren 1 83 Ha cuprinsa in intravilanul Localitatii Voluntari ce beneficiaza de indicatori urbanistici pentru U T R M3 - P O T max 50 C U T max 2 2 pentru parcelele mai mari de 700 mp conf Certificat de Urbanism C U T -ul poate fi de 2 7
Localizare terenul este situat vav de American International School of Bucharest in Cartierul Pipera langa Rezidential Oxford Gardens Utilitati canalizare gaze energie electrica si apa Facilitati acces direct la strada betonata - Sos Pipera - Tunari
⚠ AtenÈ›ie !
Nu plăti niciodată în avans într-un cont bancar până când nu l-ai întâlnit pe vânzător și ați semnat un acord.
Nu furniza informații confidențiale în discuții pe WhatsApp/Telegram sau alte aplicații de mesagerie unde utilizatorii își ascund ușor identitatea, deoarece te poți expune la fraude sau înșelăciuni.
Nu furniza niciodată detaliile cardului tău bancar (număr, data expirării, CVV). Te expune direct la fraude bancare.
Primirea unui mesaj pe WhatsApp/Telegram cu un ID scanat nu înseamnă că ai identificat cumpărătorul. Acest lucru se face pe loc, când semnați un acord de cumpărare.
Când comanzi online, alege livrarea cu verificare. Pentru un cost relativ mic, te protejezi de eventuale neplăceri.
in apropiere de Domeniul - Palatul Stirbey Piata centrala Buftea Primarie lacul Buftea si DN 1A vanzare imobil teren in suprafata totala de 290 mp plus vila D P M la gri constructie 2012 in suprafata totala utila de 217 mp suprafata construita de 296 mp compusa din 4 camere 2 bai 2 bucatarii 1 terasa 1 balcon plus pivnita ideala crama de aprox 35 mp Constructia este din beton caramida si acoperita cu tabla Tip Lindab Dotari instalatiile electrice trase in interior tamplarie din PVC cu geam termopan si 3 ferestre la mansarda Tip - VELUX Utilitati canalizare gaze apa curenta energie electrica si put forat la 38 m adancime Se preteaza ideal pentru resedinta chiar 2 familii cu intrari separate firma cabinet gradinita after school etc
Vei achizitiona un teren de 16 46x25 51 metri ideal pentru constructie Are electricitate si gaz disponibile facilitand dezvoltarea proiectului tau Terenul este bine pozitionat intr-o zona linistita aproape de facilitati Locatia se afla in apropierea unor puncte importante Scoli si gradinite inclusiv Scoala nr 2 Berceni si Gradinita nr 2 Berceni Magazine precum La Doi Pasi si Shop amp Go pentru cumparaturi rapide Statii de autobuz inclusiv Boadei si Nu ma uita pentru transport facil Aceasta locatie ofera acces rapid la puncte cheie din zona fiind perfecta pentru familie sau investitie Vezi potentialul terenului si planifica-ti viitorul acum Nu rata aceasta oportunitate contacteaza-ma pentru detalii suplimentare si vizionare
Vand teren situat pe raza orasului Fundulea judetul Calarasi tarlaua 46/1 parcelele 20 21 compus din teren extravilan arabil in suprafata de 28 600 mp cu numarul cadastral 31960
Teren Rezidential Iasi zona Hlincea Manta Rosie DEDEMAN Accesul se face pe strada de la fostul DEDEMAN Localizat in zona de case la intrarea in Hlincea linga Scoala si Gradinita Avantaje utilitati linga teren Apa curenta gaz canalizare energie electrica Statie mijloc transort in comun Distanta pina la fostul DEDEMAN este de 1 6 km Pretabil pentru rezidential AVANTAJE la achizitie Propunem si oferim seriozitate Vinzare direct proprietar Tel 0721263734 Pret 17 Euro/ mp