Nu plăti niciodată în avans într-un cont bancar până când nu l-ai întâlnit pe vânzător și ați semnat un acord.
Nu furniza informații confidențiale în discuții pe WhatsApp/Telegram sau alte aplicații de mesagerie unde utilizatorii își ascund ușor identitatea, deoarece te poți expune la fraude sau înșelăciuni.
Nu furniza niciodată detaliile cardului tău bancar (număr, data expirării, CVV). Te expune direct la fraude bancare.
Primirea unui mesaj pe WhatsApp/Telegram cu un ID scanat nu înseamnă că ai identificat cumpărătorul. Acest lucru se face pe loc, când semnați un acord de cumpărare.
Când comanzi online, alege livrarea cu verificare. Pentru un cost relativ mic, te protejezi de eventuale neplăceri.
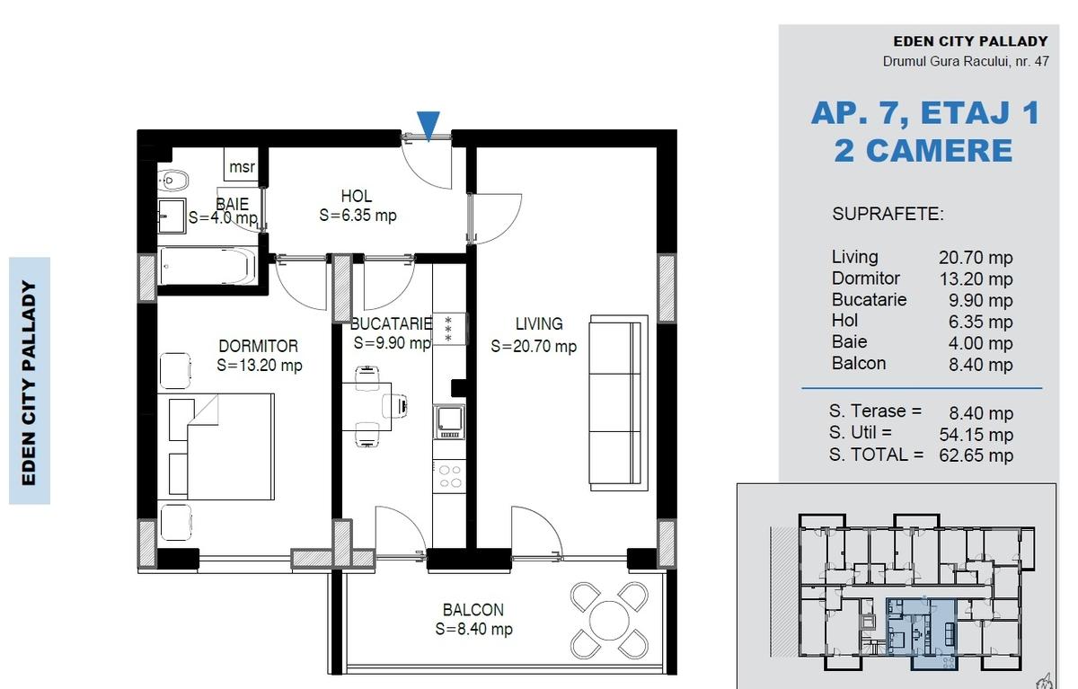
o GARSONIERA SI APARTAMENTE DOUA CAMERE o Dobroesti Fundeni ilfov Str Trifoiului nr 45 o COMISION 0 o Suprafata mpu de la 28mp la 56 mp Pretul include apartamentul o la cheie Apartamentul se da complet finisat o si cuprinde gresie faianta incalzire in pardoseala obiecte sanitare usi in o interior usa metalica la exterior o tamplarie pvc cu geam tripan Izolat la exterior cu polistiren de 10 o cm centrala proprie bransament la toate o utilitatile apa gaz canalizare curent electric contorizat individual cablu de internet fibra optica cablu tv Toate materialele folosite sunt de o calitate superioara Intreaga lucrare s-a executat cu o o echipa specializata in constructii colective Diriginte de santier o Inginer RTE Scoala particulara o Mijloacele de transport din zona Autobuz 455 - Legatura cu Metrou statiile Costin Georgian si Pantelimon o o accepta plata cash credit ipotecar o Apartament nr o Pret in functie de modalitatea de plata ...