Cu un regim de inaltime P 3 si o suprafata utila aprox de 57 mp apartamentul se preda la stadiul de finisat cu baia utilata Include terasa 15 mp Blocul dispune de structura de rezistenta din beton si caramida cu finisaje de o calitate superioara incalzirea spatiului se realizeaza prin pardoseala cu centrala proprie geamuri tripan cu spatii vitrate mari pentru a beneficia de cat mai multa lumina naturala
Zona este foarte linistita de case si vile blocuri cu regim mic de inaltime ceea ce o face ideala proprietatea pentru locuinta dar si investitional
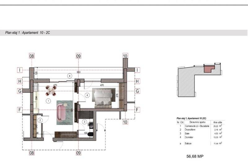
Avans 20 gt 50 123 562 euro cu tva inclus Avans 50 -80 116 760 euro cu tva inclus
Nu plăti niciodată în avans într-un cont bancar până când nu l-ai întâlnit pe vânzător și ați semnat un acord.
Nu furniza informații confidențiale în discuții pe WhatsApp/Telegram sau alte aplicații de mesagerie unde utilizatorii își ascund ușor identitatea, deoarece te poți expune la fraude sau înșelăciuni.
Nu furniza niciodată detaliile cardului tău bancar (număr, data expirării, CVV). Te expune direct la fraude bancare.
Primirea unui mesaj pe WhatsApp/Telegram cu un ID scanat nu înseamnă că ai identificat cumpărătorul. Acest lucru se face pe loc, când semnați un acord de cumpărare.
Când comanzi online, alege livrarea cu verificare. Pentru un cost relativ mic, te protejezi de eventuale neplăceri.
cu un regim de inaltime P 3 si o suprafata utila aprox de 70 mp apartamentul se preda la stadiul de finisat cu baia utilata Blocul dispune de structura de rezistenta din beton si caramida cu finisaje de o calitate superioara bai utilate incalzirea spatiului se realizeaza prin pardoseala cu centrala proprie geamuri tripan cu spatii vitrate mari pentru a beneficia de cat mai multa lumina naturala Zona este foarte linistita de case si vile blocuri cu regim mic de inaltime ceea ce o face ideala proprietatea pentru locuinta dar si investitional Avans 20 gt 50 151 837 euro cu tva inclus Avans 60-80 143 479 euro cu tva inclus Parcare supraterana 6000 eur fara tva Parcare subteran 9000 eur fara tva Termen finalizare iunie- septembrie 2026 Comision 0 pentru cumparator
Cu un regim de inaltime P 3 si o suprafata utila aprox de 47 mp apartamentul se preda la stadiul de finisat cu baia utilata Blocul dispune de structura de rezistenta din beton si caramida cu finisaje de o calitate superioara incalzirea spatiului se realizeaza prin pardoseala cu centrala proprie geamuri tripan cu spatii vitrate mari pentru a beneficia de cat mai multa lumina naturala Zona este foarte linistita de case si vile blocuri cu regim mic de inaltime ceea ce o face ideala proprietatea pentru locuinta dar si investitional Avans 20 gt 50 101 261 euro cu tva inclus Avans 50-80 95 687 euro cu tva inclus Parcare supraterana 6000 eur excl tva Parcare subteran 9000 eur excl tva Termen finalizare iunie-septembrie 2026 Comision 0 pentru cumparator
bloc nou cu un regim de inaltime P 3 si o suprafata utila aprox de 51 mp apartamentul se preda la stadiul de finisat cu baia utilata Include balcon 8 mp Blocul dispune de structura de rezistenta din beton si caramida cu finisaje de o calitate superioara incalzirea spatiului se realizeaza prin pardoseala cu centrala proprie geamuri tripan cu spatii vitrate mari pentru a beneficia de cat mai multa lumina naturala Zona este foarte linistita de case si vile blocuri cu regim mic de inaltime ceea ce o face ideala proprietatea pentru locuinta dar si investitional Avans 20 gt 50 110 896 euro cu tva inclus Avans 50-80 104 792 euro cu tva inclus Parcare supraterana 6000 eur excl tva Parcare subteran 9000 eur excl tva Termen finalizare iunie-septembrie 2026 Comision 0 pentru cumparator
apartamente 2 si 3 camere direct dezvoltator Pret fara TVA garantie imobil mentenanta produsului vandut incluse comision 0 cumaparator va rugam pt oferta completa cu toate variantele apartamentelor puteti obtine pe mail sau wathapp PDF cu randari 3D Proiect nou ce se construieste in zona Blv Nicolae Grigorescu Sector 3 Bucuresti pe strada Drm Malu Spart 50-52 cu intrare din Strada Marului Disponibile 24 apartamente pt alte variante de apartament va rog contact telefonic Pt detalii apartamente contact whatsapp
apartamente 2 si 3 camere direct dezvoltator Pret fara TVA garantie imobil mentenanta produsului vandut incluse comision 0 cumaparator va rugam ptr oferta completa cu toate variantele apartamnetelor puteti obtine pe mail sau wathapp PDF cu randari 3D Proiect Nou ce se construieste in zona Blv Nicolae Grigorescu Sector 3 Bucuresti pe strada Drm Malu Spart 54 cu intrare din Strada Marului Disponibile 24 Apartamente ptr alte variante de apartament va rog contact telefonic ptr detalii 3 d apartamente contact whatapp
Numai acum puteti beneficia de o oferta exceptionala Va propunem spre vanzare un apartament modern cu 2 camere situat la parterul unui imobil nou din Floresti zona Cetatii in ansamblul rezidential New City Apartamentul are o suprafata utila de 52 mp si dispune de o gradina privata de 34 mp Compartimentarea este semidecomandata si include un hol o camera de zi cu bucatarie open-space un dormitor matrimonial o baie si acces direct catre gradina Proprietatea beneficiaza de un garaj de tip parcare subterana si se vinde complet mobilata si utilata Bucataria este mobilata si dotata cu electrocasnice moderne iar apartamentul dispune de frigider aragaz masina de spalat televizor si interfon Gradina ofera un spatiu intim si placut pentru relaxare Imobilul face parte dintr-o constructie noua situata intr-o zona linistita cu acces facil la mijloace de transport magazine si alte puncte de interes Achizitia se realizeaza cu comision 0 la cumparare Pentru mai mult...
va propunem spre cumparare/ achizitie un apartament compus din 2 camere confort 1 total decomandat etaj intermediar -7 clasic fara imbunatatiri imobil civilizat scara curata amplasare deosebita intr-o zona linistita la cateva minute de statia de metrou parc magazine banci piata scoli licee etc Zona sector 4 cartier Tineretului In proximitate Piata Norilor parc Tineretului Ocazie Oferta reala
PYF020B11162 Vanzare 2 camere Pret 93 000 Euro Zona Drumul Taberei Bucuresti Strada Drumul Taberei ID oferta PYF020B11162 Acasa incepe cu un sentiment Poate fi o lumina calda intr-o dupa-amiaza linistita un balcon cu vedere sau o bucatarie unde iti savurezi cafeaua de dimineata Imagineaza-ti locuinta perfecta care reflecta personalitatea ta si raspunde nevoilor tale zilnice Echipa PYF REAL ESTATE te ajuta sa gasesti acel loc special pe care il poti numi acasa Portofoliul nostru cuprinde proprietati atent selectate ideale pentru tine si familia ta Localizare Drumul Taberei - Parcul Drumul Taberei una dintre cele mai cautate zone din Bucuresti cu acces rapid la mijloace de transport in comun metrou autobuz zona comerciala banca supermarket fastfood benzinarie piata parc restaurant/pub scoli magazine parcuri si centre comerciale Detalii proprietate Tip locuinta Apartamente Tip operatiune vanzare Numar camere 2 camere 1 dormitoare Supr...
Blitz ofera spre vanzare un apartament semidecomandat boxa si loc de parcare Apartamentul este amplasat la etajul 1 al unui bloc construit din caramida si izolat termic la exterior Dispune de centrala termica proprie tamplarie PVC cu geam termopan usa metalica la intrare si este compus din living open space cu bucataria dormitor baie si balcon Locul de parcare si boxa sunt optionale si se poat achizitiona la pretul de 15 000 euro Pentru mai multe detalii nu ezitati sa ne contactati Cod oferta / ID BLITZ P159973 Id intern P159973
APARTAMENT 2 CAMERE - ZONA AVANTAJOASA - METROU PACII - AUTOGARA MILITARI Oferim spre vanzare un apartament cu 2 camere deosebit cu o suprafata generoasa de 57 mp si un teren de 150 mp amplasat intr-un imobil nou cu 6 etaje situat la parter cu orientarea ferestrelor catre Sud - Vest Acest proiect cuprinde diverse tipologii de locuinte de la apartamente cu o camera pana la cele cu patru camere oferind o varietate de optiuni pentru diferite nevoi Locuinta se va preda finisata la cheie beneficiind de bai complet utilate obiecte sanitare montate si conectate la toate utilitatile Finisajele sunt de inalta calitate executate cu atentie la detalii iar posibilitatea alegerii in anumite conditii a finisajelor va permite personalizarea spatiului Imobilul se afla intr-o zona avantajoasa cu acces rapid la mijloacele de transport in comun metrou Pacii autobuz tramvai si la principalele artere ale orasului In proximitate la doar cateva minute veti gasi numeroase faci...
București - 17 Iunie 2025
150.000 €
Atenție
Din motive de securitate și pentru protecția utilizatorilor, această funcționalitate nu este disponibilă pentru locația ta.