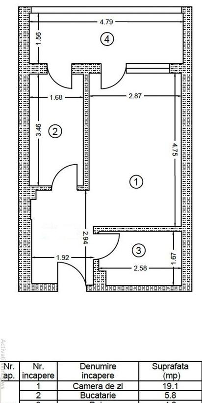
Acte gata -Mutare imediata Imobilul este situat pe str Biruintei Proprietar vand garsoniera mutare si disponibilitate imediat dupa vanzare total decomandata cu iesire in acelasi balcon daca se doreste se poate inchide cu tamplarie cu geam termopan generos tip logie atat din bucatarie cat si din camera de zi noua nemobilata si neutilata situata pe et 3 din 6 avand orientarea spre S-V oferind o lumina naturala foarte buna pe tot parcursul zilei in primul bloc din ansamblul situat in str Biruintei nr 7 care pune la dispozitie atat spatii comerciale dar si loc de joaca si spatii de relaxare fiind un ansamblu aerisit ce are in proximitate Penny Mega Image Auchan parcul Dr Fermei de langa Penny str Dr Fermei viitorul campus scolar gimnazial
Pentru cine doreste poate achizitiona contra-cost si un loc de parcare exterior cu numar cadastral propriu direct de la dezvoltatorul ansamblului pret 7000euro TVA 19
Pentru vizionari si detalii suplimentare tel 0770 151 530 Achizitia se poate face cash/ credit iar pretul nu este negociabil
⚠ AtenÈ›ie !
Nu plăti niciodată în avans într-un cont bancar până când nu l-ai întâlnit pe vânzător și ați semnat un acord.
Nu furniza informații confidențiale în discuții pe WhatsApp/Telegram sau alte aplicații de mesagerie unde utilizatorii își ascund ușor identitatea, deoarece te poți expune la fraude sau înșelăciuni.
Nu furniza niciodată detaliile cardului tău bancar (număr, data expirării, CVV). Te expune direct la fraude bancare.
Primirea unui mesaj pe WhatsApp/Telegram cu un ID scanat nu înseamnă că ai identificat cumpărătorul. Acest lucru se face pe loc, când semnați un acord de cumpărare.
Când comanzi online, alege livrarea cu verificare. Pentru un cost relativ mic, te protejezi de eventuale neplăceri.
profita de ultimele zile cu TVA de 9 Mutare imediata comision 0 direct dezvoltator Vizionare si servicii complete la 0770530151 Foto de prezentare din portofoliul dezvoltatorului Apartament 2 camere si dependinte 61 23 mp complet decomandat camere generoase mari luminoase bine compartimentat aflat la etajul 1 intr-un bloc P 3 foarte aproape de statia STB 15min cu autobuzul pana la metrou Pta Sudului Bloc finalizat mutare rapida - finisaje la alegerea cumparatorului Se accepta credit bancar sau cash
Profita de ultima saptamana cu TVA de 9 Mutare imediata comision 0 direct dezvoltator Vizionare si servicii complete la Foto de prezentare din portofoliul dezvoltatorului Apartament 2 camere si dependinte 64 43 mp complet decomandat camere generoase mari luminoase bine compartimentat aflat la etajul 1 intr-un bloc P 3 foarte aproape de statia STB 15min cu autobuzul pana la metrou Pta Sudului Bloc finalizat mutare rapida - finisaje la alegerea cumparatorului Se accepta credit bancar sau cash
Proprietar Apartament compus din 2 camere si depedinte total decomandat mobilat si utilat complet exact ca in fotografii incluzand si un loc de parcare exterior avand numar cadastral propriu si acces imediat in cadrul ansamblului la loc de joaca si parc foarte frumos amenajat pentru copii dar si pentru parinti Daca se doresc electrocasnicele existente pretul de vanzare al apartamentului este de 87 000 Euro Este situat pe etaj intermediar in bloc cu lift si facand parte dintr-o comunitate deosebita ce pune accent pe bun simt si respect reciproc Locatia este centrala dar intr-o zona linistita/retrasa pe str Popesti-Romani foarte aproape de intersectia cu str Paraul Rece avand acces in 5-7min de mers pe jos la statia STB ajungand la metrou Pta Sudului in aproximativ 10min in functie de trrafic Zona ofera faciilitati multiple farmacia Tei STB 7min LIDL Mega Image scoli gradinite after school campus gimnazial parc/loc de joaca etc Comi...
Mutare imediata comision 0 direct dezvoltator Vizionare si servicii complete la 0770530151 Foto de prezentare din portofoliul dezvoltatorului Apartament 2 camere si dependinte 64 43 mp complet decomandat camere generoase mari luminoase bine compartimentat aflat la etajul 1 intr-un bloc P 3 foarte aproape de statia STB 15min cu autobuzul pana la metrou Pta Sudului Bloc finalizat mutare rapida - finisaje la alegerea cumparatorului Se accepta credit bancar sau cash
Mutare imediata comision 0 direct dezvoltator Vizionare si servicii complete la 0770530151 Foto de prezentare din portofoliul dezvoltatorului Apartament 2 camere si dependinte 64 43 mp complet decomandat camere generoase mari luminoase bine compartimentat aflat la etajul 1 intr-un bloc P 3 foarte aproape de statia STB 15min cu autobuzul pana la metrou Pta Sudului Bloc finalizat mutare rapida - finisaje la alegerea cumparatorului Se accepta credit bancar sau cash
REF01B2346 Garsoniera de vanzare situata in zona 13 Septembrie - Marriott Garsoniera este pozitionata pe Strada Mihail Cioranu la aproximativ 4 minute de supermarketul Mega Image si la aproximativ 20 minute de mers pe jos pana la Vulcan Vaule Centre fiind o zona linistita cu acces facil catre principalele puncte de interes Aceasta este situata la etajul 7 intr-un imobil de 8 etaje este decomandat constructie din 1991 cu o suprafata de aproximativ 33 mp In apropiata vecinatate a proprietatii regasim Mijloace de transport in comun STB Tranvai Autobuz gradinite scoli liceu restaurante farmacii si centre comerciale piata etc
15 minute Parcul Circului aproape metrou Stefan cel Mare etaj 2/10 cf 1 sporit dec 42mp sufragerie 20mp bucatarie 6mp bloc 1987 reabilitat termic baie cu fereastra orientare sud imb g f p termopan um mobilata utilata cadastru intabulare
PYF018B9549 Imagineaza-ti locuinta perfecta care sa reflecte personalitatea ta si sa satisfaca toate nevoile tale Echipa noastra dedicata te va ajuta in cautarea locuintei ideale Portofoliul nostru include exact ceea ce iti doresti tu si familia ta Alege PYF REAL ESTATE pentru a transforma visul tau in realitate PYF REAL ESTATE va propune prin agentul zonal Robert T spre vanzare oferim o garsoniera semidecomandata amplasata in Vitan pe strada Calea Vitan intr-un imobil construit in anul 1979 Aceasta garsoniera este situata la etajul 1 dintr-un total de 10 etaje oferind accesibilitate si confort Cu o suprafata utila de 30 mp aceasta garsoniera reprezinta o oportunitate excelenta de investitie Fiecare detaliu a fost conceput pentru a maximiza confortul avand o baie si beneficiind de o bucatarie spatioasa perfecta pentru un stil de viata activ Proprietatea include un balcon cu o suprafata totala de 4 mp ideala pentru momentele de relaxare Se afla in Bucuresti aproape d...
Agentia Imobiliara Ganim 98 va propune spre vanzare o garsoniera decomandata confort 1 situat in zona Scoala nr 7 disponibila la etajul 3 din 4 cu o suprafata de 32 mp izolat 259 termic exterior termopan foarte economic 259 din punct de vedere al consumurilor imbunatatita mobilata partial libera Imobilul este situat in zona Garii icirc ntr-un cartier cu mult 259 vegeta 539 ie parcuri pentru copii 537 coal 259 sal 259 de sport sta 539 ii de autobuz In imediata apropiere se afl 259 magazine centrul comercial Lidl 537 i la doar 10 min de centrul ora 537 ului ID intern 813 Agentia Imobiliara Ganim 98 va ofera apartamente de vanzare si inchiriere in toate zonele orasului Focsani In cazul in care oferta noastra v-a captat atentia si doriti sa deveniti un fericit cumparator/chirias va asteptam la o vizionare apartamentul putand fi vazut in orice zi sau cu programare anterioara atunci cand este cazul Pentru a va oferi mai multe detalii si informatii va ...
Imobiliare Solutions Group va ofera spre vanzare o garsoniera decomandata cu o suprafata utilata de 32 mp situata la etajul 2/9 intr-un imobil construit in anul 2019 Garsoniera dispune de finisaje de calitate precum gresie faianta parchet termopan centrala termica proprie aer conditionat Aceasta se vinde mobilata si utilata complet Posibilitate cumparare loc parcare
București - 6 Iunie 2025
80.000 €
Atenție
Din motive de securitate și pentru protecția utilizatorilor, această funcționalitate nu este disponibilă pentru locația ta.