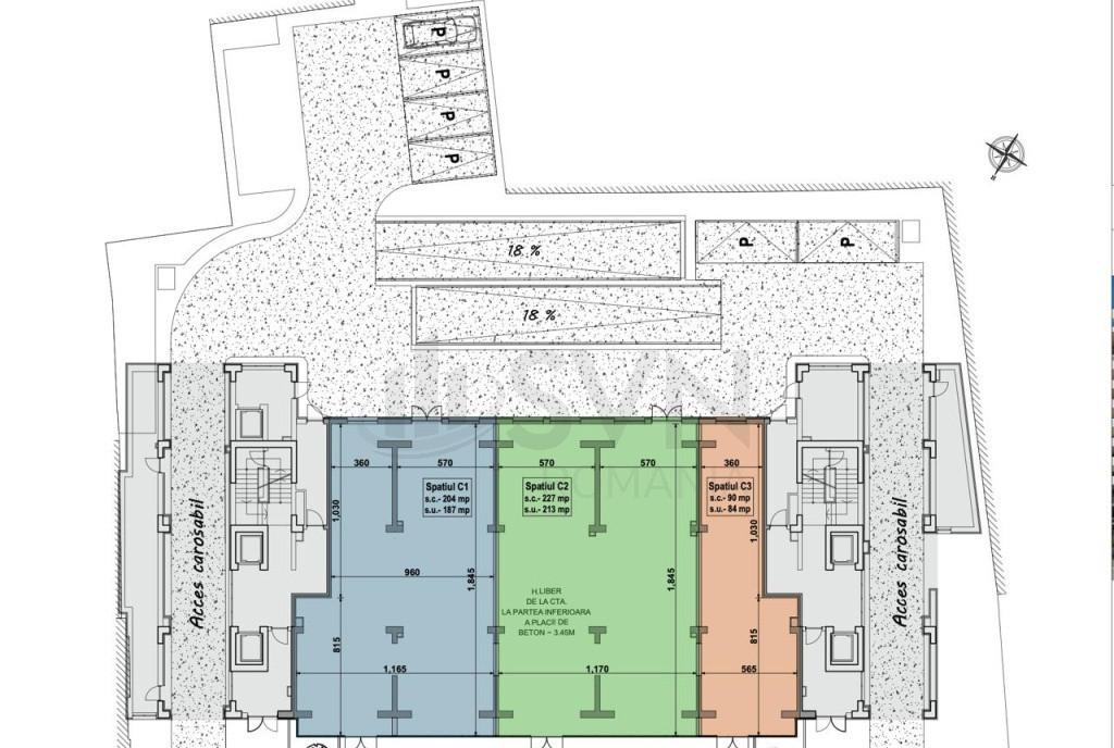
REC3001372 Oportunitate unica de vanzare pentru un spatiu comercial open space situat la parterul Avrig Residence avand o suprafata de 213 mp utili Aceasta proprietate se afla intr-o zona vibranta la doar cativa pasi de Piata Obor si de gura de metrou beneficiind astfel de o expunere excelenta si un acces facil pentru clienti
⚠ AtenÈ›ie !
Nu plăti niciodată în avans într-un cont bancar până când nu l-ai întâlnit pe vânzător și ați semnat un acord.
Nu furniza informații confidențiale în discuții pe WhatsApp/Telegram sau alte aplicații de mesagerie unde utilizatorii își ascund ușor identitatea, deoarece te poți expune la fraude sau înșelăciuni.
Nu furniza niciodată detaliile cardului tău bancar (număr, data expirării, CVV). Te expune direct la fraude bancare.
Primirea unui mesaj pe WhatsApp/Telegram cu un ID scanat nu înseamnă că ai identificat cumpărătorul. Acest lucru se face pe loc, când semnați un acord de cumpărare.
Când comanzi online, alege livrarea cu verificare. Pentru un cost relativ mic, te protejezi de eventuale neplăceri.
REA1024817 SVN Rezidentialist Floreasca va propune spre vanzare un apartament cu 2 camere situat in proiectul premium BHB Avenue la etajul 9 cu o suprafata construita de 73 04 mp si vedere spectaculoasa catre Lacul Tei Apartamentul dispune de o compartimentare eficienta ferestre mari ce ofera lumina naturala pe tot parcursul zilei si finisaje moderne de inalta calitate In pretul apartamentului este inclus si un loc de parcare situat in parcarea subterana a imobilului Proiectul BHB Avenue ofera multiple facilitati premium pentru un stil de viata activ si relaxant sala de fitnes complet echipata piscina jacuzzi sauna paza si supraveghere video 24/7 precum si un lobby elegant cu receptie O alegere ideala pentru un stil de viata confortabil intr-o zona exclusivista cu acces facil la parc lac restaurante scoli si centre comerciale Va astept la vizionare Zona Barbu Vacarescu - Floreasca este una dintre cele mai dinamice si bine cotate zone din nordul Capitale...
REV2005235 SVN Romania va propune spre vanzare Casa in zona Drumul Taberei - Militari construita in anul 2001 cu o structura solida din beton si placa de beton intre parter si mansarda Proprietatea are o suprafata totala de 210 mp si este ideala pentru o familie care isi doreste spatiu confort si functionalitate intr-o zona linistita si bine conectata la oras Parterul este generos si bine compartimentat fiind format din hol de acces trei dormitoare luminoase o baie spatioasa cu cada living si zona de dining in plan deschis precum si o bucatarie complet functionala Atmosfera este calda si primitoare iar spatiile sunt bine proportionate oferind un nivel ridicat de confort Mansarda este conceputa pentru intimitate si relaxare fiind compusa din doua dormitoare doua bai moderne un dressing spatios si o zona destinata biroului sau activitatilor personale Constructia este realizata pe o structura de rezistenta din beton armat cu pereti grosi si finisaje durabile ...
REA1025893 SVN Romania va propune spre achizitie un apartament cu 3 camere situat intr-o zona usor accesibila din Sectorul 2 pe Strada Teiul Doamnei In apropiere se regasesc scoli gradinite magazine farmacii spatii verzi si mijloace de transport in comun oferind acces facil catre principalele puncte de interes ale orasului Apartamentul este semidecomandat are o suprafata utila de 64 mp si este situat la etajul 8 din 8 al unui imobil curat si bine intretinut Locuinta beneficiaza de o compartimentare echilibrata ideala pentru o familie care isi doreste confort si liniste dar si pentru investitori care cauta o proprietate cu randament bun in zona Teiul Doamnei Pretul de vanzare este de 130 000 EUR Pentru mai multe informatii si pentru programarea unei vizionari va stam cu drag la dispozitie
REA1026051 SVN Romania va propune spre vanzare un apartament luxos de 3 camere situat in una dintre cele mai exclusiviste zone rezidentiale ale Capitalei in Cartierul Francez - Herastrau Locuinta se afla la parterul unui bloc boutique compus din 2 etaje construit in anul 2000 semidecomandat cu o suprafata utila de 118 mp si doua terase cu o suprafata de aprox 69 mp Apartamentul se vinde complet mobilat si utilat fiind amenajat cu finisaje de inalta calitate mobilier din lemn masiv si parchet din lemn natural iar cele doua bai sunt placate integral cu granit Imobilul dispune de climatizare zonala in fiecare incapere si centrala de bloc cu repartitoare Locuinta dispune de o compartimentare functionala camere luminoase si o atmosfera primitoare potrivita atat pentru locuinta proprie cat si pentru desfasurarea unor activitati profesionale precum cabinet de estetica stomatologie sau birou Apartamentul beneficiaza de acces facil catre principalele artere ale or...
REA1025949 SVN Residentialist Floreasca va propune spre inchiriere un apartament cu doua camere din complexul The Park Apartments este un spatiu modern primitor si bine compartimentat perfect pentru o persoana activa sau un cuplu tanar Cu o suprafata de 50 de metri patrati locuinta imbina armonios confortul si functionalitatea oferind tot ce este necesar pentru un stil de viata echilibrat Livingul spatios si luminos este inima casei locul ideal pentru relaxare dupa o zi incarcata sau pentru petrecerea timpului alaturi de prieteni Bucataria moderna si complet utilata este deschisa spre zona de zi oferind un spatiu aerisit si usor de organizat Dormitorul este cochet si linistit gandit pentru odihna si confort iar baia amenajata cu finisaje de calitate completeaza perfect atmosfera eleganta a apartamentului Complexul The Park Apartments ofera un cadru placut si sigur inconjurat de spatii verzi si dotari moderne Locuitorii se pot bucura de o priveliste frumoasa d...
Spatiu comercial de vanzare cu randament in Piata 16 Februarie Bucurestii Noi intr-o zona cu un trafic pietonal foarte intens Zona de la parter are 3 incinte primele doua cu suprafata de 202 mp cu vitrina stradala de 11 68 m impartite in doua parti egale a treia cu destinatie de spatiu de depozitare de 80 mp Aditional unu dintre spatii are un demisol de 77 mp Proprietatea genereaza chirii totale in valoare de 5900 euro/luna Chiria incasata permite o amortizare a investitiei de mai putin de 11 ani generand un randament de peste 9 Este conectat la curent electric trifazat si putere instalata de 35 kW
Oportunitate unica de investitie intr-o zona premium Spatiu Comercial de Vanzare - 180 mp - Zona Centrala Descriere generala Se ofera spre vanzare un spatiu comercial cu potential excelent situat intr-o zona ultracentrala intr-o cladire moderna de birouri chiar langa principalele facultati din oras - o locatie ideala pentru afaceri care isi doresc vizibilitate accesibilitate si un flux constant de persoane Spatiul este dispus pe doua niveluri demisol si parter cu o suprafata totala de 180 mp si beneficiaza de un design care permite o varietate larga de utilizari retail servicii sediu de firma agentie clinica co-working sau altele Caracteristici principale Suprafata totala 180 mp Niveluri Demisol Parter Acces direct din strada Vitrina generoasa - vizibilitate excelenta Inaltime interioara optima ideala pentru amenajare comerciala Sistem de ventilatie si climatizare existent Instalatii moderne retele electrice si de date pregatite Structura ...
ID - 5377 Spatiu Comercial 88 mp de Vanzare in Centrul Vechi Brasov 15 Noiembrie ndash Vad Stradal Excelent Regis Imobiliare va propune spre vanzare un spatiu comercial generos luminos si bine pozitionat cu vad comercial stradal situat la parterul unei vile renovate in Centrul Vechi al Brasovului Caracteristici principale - Suprafata 88 mp open space - Acces Dublu ndash stradal si secundar prin curte pentru personal/aprovizionare - Dotari Centrala proprie incalzire prin calorifere - Compartimentare Posibilitate de amenajare a trei birouri individuale pentru activitati ce necesita confidentialitate - Facilitati Zona de cafea socializare doua grupuri sanitare - Depozit si curte comuna supravegheata video 24/24 - Renovare interioara 2012 - Aspect exterior Pastreaza farmecul arhitectural al anilor 1900 Avantaje si amplasare - Vad comercial intens ndash trafic auto si pietonal - Pozitie centrala excelenta ndash in apropierea Teatr...
Comision cumparator 2 TVA din valoarea de tranzactionare ASCENDENT IMOBILIARE propune spre vanzare o proprietate segmentul business particularizata prin apreciabila pozitionare a unui spatiu comercial de 200 mp utili situat in cartierul Astra Brasov Potentialul imobilului este dat de un randament ascendent prin particularitate si pozitionare intr-o zona pietonala ideala pentru supermarket laborator birou productie si alte activitati comerciale Propunem spatiul celor ce isi doresc o investitie direct productiva cu un randament foarte bun cu preluarea chiriasilor Desigur ca particularitatea ofertei invita la cunoasterea in detaliu Se ofera flexibilitate Suport Foto Consilier dedicat acestei oferte domnul Florin Tonu 0721 218 273 Detalii fotografii suplimentare si alte variante similare exclusive www ascendentimobiliare ro
REGIS IMOBILIARE propune spre vanzare un Spatiu Comercial Ultracentral langa Teatrul Maria Filotti de 150 mp perfect pentru orice fel de activitate De la birouri clinica restaurant/pub la magazine de prezentare sau supermarket Se poate recompartimenta la interior dupa necesitatea fiecaruia Este dotat cu Centrala termica de 35kw si Aer Conditionat de 38biti gresie pe toata suprafata utila tavan fals de aluminiu cu vata bazaltica de 10cm pentru etansare sonora 2 intrari si 18 m liniari de vitrina stradala si 2 intrari pentru aprovizionare prin curtea anterioara E prevazut cu o baie si un depozit cu iesire directa in curte de 14mp utili Autorizat ISU si prevazut cu Hidrant la interior Daca v-am atras atentia nu ezitati sa ne contactati pentru detalii Comision agentie 2 TVA
Brăila - 10 Iunie 2025
138.000 €
Atenție
Din motive de securitate și pentru protecția utilizatorilor, această funcționalitate nu este disponibilă pentru locația ta.