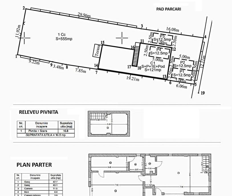
Va prezentam o casa deosebita cu peste 300mp utili teren 550mp situata in sector 4 la cateva minute de Strada Luica de Soseaua Giurgiului de Piata Resita In acest moment la pretul cerut este una dintre cele mai bune oferte pentru un potential cumparator Este o casa perfecta pentru una sau chiar 2 familii Este o casa perfecta pentru utilizare in scop comercial gradinita sediu firma spatiu servicii- service auto Curtea libera de 430mp permite si planuri pentru alte constructii Zona frumoasa de case zone linistita vecini ok proprietarul actual va poate prezenta toti vecinii locuieste aici de la constructia casei Nu ratati ocazia de a inchiria acesta casa intr-o zona deosebita cu toate facilitatile la indemana Comision standard Pentru detalii suplimentare va rugam sa contactati Agentul Cristian - 0761 173 617
⚠ AtenÈ›ie !
Nu plăti niciodată în avans într-un cont bancar până când nu l-ai întâlnit pe vânzător și ați semnat un acord.
Nu furniza informații confidențiale în discuții pe WhatsApp/Telegram sau alte aplicații de mesagerie unde utilizatorii își ascund ușor identitatea, deoarece te poți expune la fraude sau înșelăciuni.
Nu furniza niciodată detaliile cardului tău bancar (număr, data expirării, CVV). Te expune direct la fraude bancare.
Primirea unui mesaj pe WhatsApp/Telegram cu un ID scanat nu înseamnă că ai identificat cumpărătorul. Acest lucru se face pe loc, când semnați un acord de cumpărare.
Când comanzi online, alege livrarea cu verificare. Pentru un cost relativ mic, te protejezi de eventuale neplăceri.
Ramiro Imob va propunem spre vanzare un apartament de 2 camere decomandat situat la etajul 10 din 10 in zona Brancoveanu - Lamotesti Locuinta are o suprafata utila de 41 mp si ofera un spatiu practic ideal pentru locuit sau investitie Pret 65 900 euro Agent Cristian - 0761 173 617 Comision standard Pentru detalii si vizionari va asteptam cu drag
Va oferim spre vanzare un apartament de 2 camere situat la etajul 1 din 4 intr-un bloc solid construit in 1985 intr-o zona linistita si verde pe Soseaua Oltenitei aproape de Piata Sudului si Rezervatia Naturala Parc Vacaresti Apartamentul dispune de urmatoarele caracteristici -suprafata totala de aproximativ 67 mp -balcon la sufragerie si balcon la dormitor -bucatarie spatioasa si luminoasa cu vedere catre gradina blocului -baie spatioasa aerisita natural -boxa la subsol de 4 mp -mobilat si utilat precum in poze -posibilitate preluare loc de parcare-mai sunt 6 locuri libere -pozitionare excelenta intr-o zona superba aproape de statiile STB scoli gradinite Locatie excelenta Piata Sudului 10 minute de mers Magazine LIDL la 4 minute Mega Image la 5 minute Mall Sun Plaza la 10 minute Scoli si gradinite in apropiere Nu ratati ocazia de a cumpara acest apartament spatios situat intr-o zona centrala cu toate facilitatile la indeman...
Va oferim spre inchiriere un apartamemt cu 2 camere intr-o vila cu doar 2 etaje amplasat pe o strada cu sens unic unde se regasesc doar case/vile Parter/2 Centrala proprie Curte proprie Mobilat si utilat cu absolut tot ce aveti nevoie pentru un trai de zi cu zi Pret 420 de euro 420 de euro garantia Comision standard Pentru detalii si vizionari va puteti adresa agentului Cristian la numarul 0761 173 617
Ramiro Imob va propunem spre vanzare un apartament de 3 camere semidecomandat cu suprafata de 65 mp situat la etajul 4 din 5 al unui bloc construit in 1970 in zona Timpuri Noi Etajul 5 reprezentand mansarda unde sunt cele doua dormitoare aceasta a fost construita in 2011 13 min de mers pe jos pana la gura de metrou TIMPURI NOI 12 min de mers pe jos pana la gura de metrou MIHAI BRAVU 8 minute de mers pe jos pana la Mall Vitan Apartamentul dispune de centrala proprie si se vinde complet mobilat si utilat Pret 84 500 euro Agent Cristian - 0761 173 617 Avem comision standard Pentru detalii si programarea unei vizionari nu ezitati sa ne contactati
Ramiro Imob va propunem spre vanzare un apartament de 3 camere semidecomandat cu suprafata de 65 mp situat la etajul 4 din 5 al unui bloc construit in 1970 in zona Timpuri Noi Etajul 5 reprezentand mansarda unde sunt cele doua dormitoare aceasta a fost construita in 2011 13 min de mers pe jos pana la gura de metrou TIMPURI NOI 12 min de mers pe jos pana la gura de metrou MIHAI BRAVU 8 minute de mers pe jos pana la Mall Vitan Apartamentul dispune de centrala proprie si se vinde complet mobilat si utilat Pret 84 500 euro Agent Cristian - 0761 173 617 Avem comision standard Pentru detalii si programarea unei vizionari nu ezitati sa ne contactati
Un nou sediu pentru afacerea dumneavoastra Imobil cu multiple destinatii Imobil constructie 2001 situat in cartierul Damaroaia in apropiere de statia de metrou Jiului Este dispus pe subsol parter si 2 etaje La parter are o hala inalta cu o suprafata de 113mp Curtea este foarte mare si se pot parca in jur de 25 de masini sau mai multe Impartirea aproximativa este conform descrierii de mai jos chiriasul actual a mai facut unele modificari de compartimentare fata de planul cadastral Subsol camera 49 67mp spatiu depozitare 3 03mp suprafata utila 52 7mp casa scarii 10 67mp total 63 37mp Parter hol 27 73mp grup sanitar 2 76mp centrala termica 7 02mp camera 16 94mp hala 113 59mp magazie 5 01mp suprafata utila 173 05mp casa scarii 15 07mp total 188 12mp Etaj 1 birou 18 63mp birou 16 18mp birou 11 47mp hol 7 60mp birou 13 64mp camera 65 65mp grup sanitar 3 35mp grup sanitar 2 59mp suprafata utila 139mp casa scarii 12 60mp logie 8 21mp logie 9 05mp ...
ID 6198 REGIS Imobiliare va propune spre inchiriere o vila individuala de 6 camere in zona Sanpetru Vila este situata in zona noua de case a Sanpetrului o zona aerisita linistita dispune de o curte individuala de 700 mp dotata cu foisor si gratar cat si locuri de parcare in curte si in fata casei Proprietatea este impartita in parter cu bucataria complet utilata living room spatios dormitor baie si terasa etajul intai dispune de baie 4 dormitoare si balcon iar mansarda este spatiul generos deschis de relaxare cu balcon Se doreste inchirierea pe termen lung proprietatea este pet friendly COMISION 50 din prima chirie Bine Ati Venit Acasa
Hello I am Florina I 039 ve been working on the real estate market in Bucharest for 25 years and residential rentals were my first professional love Over the years I have had the joy of seeing many families expats or Romanians happy in their new home For your family 039 s residence I warmly recommend this villa completely renovated with 4-5 bedrooms located on a closed very quiet street in Iancu Nicolae near Jolie Ville Mall and Cambridge School The villa is divided as follows Ground floor entrance hall storage room technical room bathroom living-dining room closed kitchen with separate dining area pantry hall covered terrace 1st floor 4 bedrooms 4 bathrooms Attic open space bathroom can be arranged as a 5th bedroom or as a relaxation or play space The land is 1000 square meters the footprint around 250 square meters the free yard including the swimming pool about 750 square meters The garage allows the parking of 2 cars and 3-6 more cars c...
Va prezentam o vila de exceptie disponibila pentru inchiriere in Ploiesti in zona 8 Martie Aceasta proprietate impresionanta este situata pe un teren generos de 500 de metri patrati si ofera un spatiu util de 220 de metri patrati Vila este complet mobilata si utilata gata sa va intampine cu trei dormitoare confortabile un spatiu dedicat pentru dining un living spatios ideal pentru a petrece timpul cu familia si prietenii Mansarda casei a fost transformata intr-un loc perfect pentru relaxare si studiu un sanctuar personal pentru momentele de liniste Exteriorul vilei este la fel de impresionant cu o curte ingrijita acoperita de gazon verde si frumos care invita la momente de relaxare in aer liber De asemenea vila dispune de usi automate pentru un plus de confort si securitate Proprietatea include o locuinta de serviciu sau de protocol oferind flexibilitate in utilizare Aceasta vila reprezinta o oportunitate rara de a locui intr-un spatiu de lux cu toate comoditatil...
Va prezentam o casa individuala frumoasa cocheta renovata integral situata aproape de intersectia dintre Soseaua Progresului si Calea Rahovei In spate este o curte proprie de aproximativ 150 mp unde se poate servi cafeaua sau se pot organiza mici evenimente In apropiere sunt Jumbo-Liberty Mall si McDonald s Cu o suprafata desfasurata de aproximativ 210mp dispusa pe subsol pe parter si mansarda casa este pretabila atat ca locuinta cat si pentru activitate economica Se inchiriaza nemobilata pe termen lung Va stam cu drag la dispozitie pentru informatii si vizionari
București - 6 Aprilie 2025
1.600 €
Atenție
Din motive de securitate și pentru protecția utilizatorilor, această funcționalitate nu este disponibilă pentru locația ta.