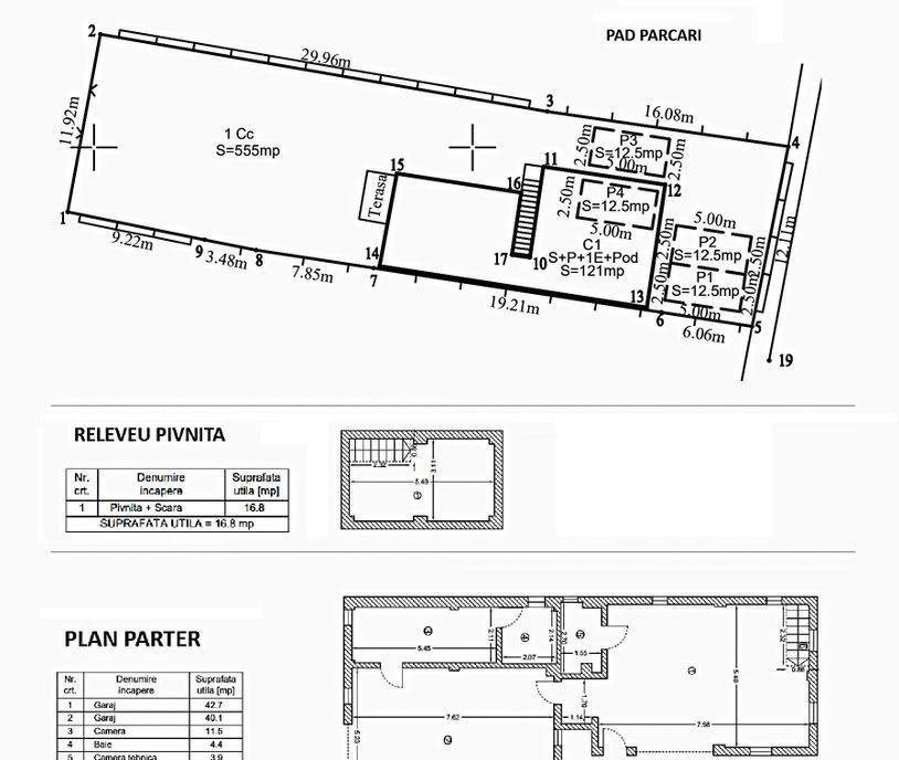
Va prezentam o casa deosebita cu peste 300mp utili teren 550mp situata in sector 4 la cateva minute de Strada Luica de Soseaua Giurgiului de Piata Resita In acest moment la pretul cerut este una dintre cele mai bune oferte pentru un potential cumparator Este o casa perfecta pentru una sau chiar 2 familii Este o casa perfecta pentru utilizare in scop comercial gradinita sediu firma spatiu servicii- service auto Curtea libera de 430mp permite si planuri pentru alte constructii Zona frumoasa de case zone linistita vecini ok proprietarul actual va poate prezenta toti vecinii locuieste aici de la constructia casei Nu ratati ocazia de a inchiria acesta casa intr-o zona deosebita cu toate facilitatile la indemana Comision standard Pentru detalii suplimentare va rugam sa contactati Agentul Cristian - 0761 173 617
⚠ AtenÈ›ie !
Nu plăti niciodată în avans într-un cont bancar până când nu l-ai întâlnit pe vânzător și ați semnat un acord.
Nu furniza informații confidențiale în discuții pe WhatsApp/Telegram sau alte aplicații de mesagerie unde utilizatorii își ascund ușor identitatea, deoarece te poți expune la fraude sau înșelăciuni.
Nu furniza niciodată detaliile cardului tău bancar (număr, data expirării, CVV). Te expune direct la fraude bancare.
Primirea unui mesaj pe WhatsApp/Telegram cu un ID scanat nu înseamnă că ai identificat cumpărătorul. Acest lucru se face pe loc, când semnați un acord de cumpărare.
Când comanzi online, alege livrarea cu verificare. Pentru un cost relativ mic, te protejezi de eventuale neplăceri.
Ramiro Imob va propunem spre vanzare un apartament de 3 camere semidecomandat cu suprafata de 65 mp situat la etajul 4 din 5 al unui bloc construit in 1970 in zona Timpuri Noi Etajul 5 reprezentand mansarda unde sunt cele doua dormitoare aceasta a fost construita in 2011 13 min de mers pe jos pana la gura de metrou TIMPURI NOI 12 min de mers pe jos pana la gura de metrou MIHAI BRAVU 8 minute de mers pe jos pana la Mall Vitan Apartamentul dispune de centrala proprie si se vinde complet mobilat si utilat Pret 84 500 euro Agent Cristian - 0761 173 617 Avem comision standard Pentru detalii si programarea unei vizionari nu ezitati sa ne contactati
Va propunem spre vanzare un apartament cu 2 camere situat la etajul 2/4 Apartamentul are ca si imbunatatiri instalatia electrica si cea sanitara schimbata Apartamentul este finisat modern se vinde mobilat si utilat fiind gata de mutat in el Zona este foarte linistita si inverzita insa accesibila fiind aproape de statia STB Lidl scoli gradinite Scara este curata si linistita Actele sunt pregatite de vanzare Cristian 0761 173 617 Comision standard
Va propunem spre vanzare un apartament cu 2 camere decomandat situat la etajul 5 al unui bloc de 10 etaje Imobilul a fost construit in 1976 si a beneficiat in 2024 de anvelopare termica completa ceea ce ofera un plus de eficienta energetica si confort Blocul dispune de lift nou iar la subsol se afla un adapost antiatomic o dotare rar intalnita si foarte valoroasa Apartamentul necesita renovare oferind viitorului proprietar libertatea de a-si personaliza locuinta dupa propriile preferinte Exista si posibilitatea instalarii unei centrale termice proprii in completarea incalzirii centralizate existente Accesul la mijloacele de transport este excelent statia STB Straja se afla la cateva minute de mers pe jos iar statia de metrou Piata Sudului poate fi ajunsa rapid in doar patru statii de autobuz sau tramvai Zona ofera conexiuni rapide catre puncte importante din oras si faciliteaza deplasarile zilnice Acest apartament reprezinta o oportunitate foarte buna pentru cei ca...
Va propunem spre vanzare un apartament cu 2 camere decomandat 51mp p/10 mobila si utilat partial situat intr-un bloc anvelopat construit in anul 1978 situat la 3 minute de mers pe jos pana la statia de metrou 1 dec 1918 In imediata apropiere sunt scoli gradinite magazine mijloace de transport in comun stb piata agro-alimentara Comision standard Pret 78 000 euro Pentru alte detalii va rog sa contactati agentul Cristian - 0761 173 617
Va oferim spre inchiriere o garsoniera aproape de statia de metrou Aparatorii Patriei Etaj 10/10 2 Lifturi 15 min de mers pe jos pana la statia de metrou Piata Sudului 15 min de mers pe jos pana la statia de metrou Constantin Brancoveanu Pret 350euro 350euro garantia Comision standard Pentru detalii si vizionari va puteti adresa agentului Cristian la numarul 0761 173 617
Va propunem spre inchiriere o vila moderna noua amplasata pe un teren de aproximativ 500mp 370mp curte libera situata intr-un ansamblu rezidential de case din zona Tunari-Otopeni Aceasta proprietate este ideala pentru familii si ofera un confort deosebit fiind aproape de toate facilitatile necesare Vila se preda spre inchiriere complet mobilata si echipata Dispune de 4 camere spatioase 3 bai dintre care 3 dormitoare inclusiv un dormitor matrimonial cu baie proprie si balcon iar unul dintre dormitoare este nemobilat ramanand la alegerea viitorilor chiriasi de a amenaja in functie de propriile preferinte birou dressing camera pentru copil etc Cele 3 bai sunt bine echipate si asigura intimitate si confort pentru toti membrii familiei Parterul este compus dintr-un hol la intrare o bucatarie inchisa complet mobilata si echipata cu electrocasnice de foarte una calitate un living generos cu iesire in terasa si o baie cu cabina de dus Etajul acomodeaza 3 dormitoare ...
REV2004033 Eleganta si rafinament se impletesc armonios in aceasta superba casa situata in zona privilegiata Erou Iancu Nicolae Cu o suprafata utila de 573 mp aceasta locuinta impresioneaza prin designul sau sofisticat si spatiile bine gandite La parter oaspetii sunt intampinati de un living luminos de 91 mp impreuna cu zona de dinning de 17 6 mp doua spatii de depozitare baie dar si o camera in suprafata de 22 5 mp ce se poate amenaja dupa necesitatile fiecarei familii Bucataria moderna este echilibrata intre functionalitate si estetica oferind o experienta placuta pentru pasionatii de gatit Etajul surprinde cu o distributie ingenioasa a spatiului cu doua dormitoare ce dispun de bai si dressinguri private oferind un sanctuar de relaxare si intimitate Restul de 2 dormitoare deservite de o baie completeaza perfect acest etaj spatios Terasa are vedere catre curtea interioara oferind o priveliste deosebita catre vegetatia matura Mansarda reprezinta o adevarata ...
Hello I am Florina Mantescu and I recommend for your family residence this beautiful villa situated in a very quiet place close to Jolie Ville Mall in Iancu Nicolae area The villa has rapid access to the main international schools of Bucharest British School Lycee Francais Anna de Noilles American International School Mark Twain School Olga Gudyn School etc Also it is close to leisure and shopping areas Baneasa Forest Baneasa Zoo Stejarii Club Atlantis Club World Class Aero Squash Jolie Ville Mall Lidl Mega Image Baneasa Shopping City Ikea CArrefour Feeria Decathlon Brico Depot Grand Cinema The partition of the house is the following Ground floor living and dining room bedroom/office bathroom closed fully equipped kitchen direct acces to storage and garage 1st floor living room 4 bedrooms 2 bathrooms walk-in closet Attic open space 100sqm generous storage space Your pets are welcome with the required guarantees The living furniture in th...
Va propunem spre inchiriere un spatiu situat in una dintre cele mai apreciate si linistite zone din Bucuresti - Floreasca - Suprafata utila 78 mp - Curte 160 mp - Suprafata totala 238 mp Compartimentare o 3 camere luminoase o bucatarie o baie o beci o pod Spatiul se inchiriaza neutilat oferind libertatea de a fi personalizat in functie de nevoile si stilul viitorului chirias Pozitionarea si compartimentarea il fac potrivit atat pentru rezidential cat si pentru activitati comerciale birou cabinet studio creativ sau showroom -Localizare excelenta aproape de zone verzi restaurante cafenele si alte facilitati de interes 1 600EUR negociabil Comision 50 din prima chirie Va asteptam la vizionare Cod oferta 2739963
Gala Imob va propune spre inchiriere o vila deosebita singur curte situata pe o strada linistita din apropiere de Stefan cel Mare- Parcul Circului/ Tei adiacent Proprietatea beneficiaza de o amplasare excelenta parcare stradala in fata casei 5 locuri sau in curte fiind ideala atat pentru locuire cat si pentru activitati comerciale Descrierea proprietatii Aceasta casa bine compartimentata are un regim de inaltime D P E M si o suprafata utila de 260mp garaj de 36 mp fiind potrivita pentru diverse nevoi rezidentiale sau comerciale Parter 73mp 1 camera bucatarie hol receptie baie camera server Etaj1 65mp 3 camere decomandate hol baie Mansarda 62mp 2 camere hol baie Demisol 62 mp 4 spatii de depozitare si auxiliare bucatarie Un punct forte al acestui imobil il reprezinta curtea libera de 250 mp ideala pentru activitati in aer liber precum si un garaj/spatiu 36 mp incalzit Pe scurt spatiul este pregatit sa gazduiasca orice fel de activit...
București - 5 Iunie 2025
2.200 €
Atenție
Din motive de securitate și pentru protecția utilizatorilor, această funcționalitate nu este disponibilă pentru locația ta.