Excelenta prin experienta Va prezentam o noua oportunitate de investitie intr-o hala industriala Terenul pe care este amplasata hala are suprafata de 1000 mp 9 locuri de parcare Teren individual 1000 mp Constructie hala 412 mp Parter 352 mp Etaj 60 mp Utilitati curent apa gaz canalizare Orasul Popesti-Leordeni din judetul Ilfov este situat in imediata apropiere a Capitalei in partea de sud-est pe Soseaua Oltenitei Cartierul Danubiana este un proiect pentru care administratia din Popesti-Leordeni a depus eforturi considerabile Cel mai important pas a fost achizitionarea de catre autoritate de la SC Danubiana SA a terenului cu o suprafata de aproximativ 2 ha care include cartierul Danubiana si care reprezinta de fapt caile de acces spatii verzi curti constructii si instalatii de apa si canalizare scoli gradinite restaurante si mijloace de transport in comun menite sa contribuie la imbunatatirea vietii cetatenilor din zona
⚠ AtenÈ›ie !
Nu plăti niciodată în avans într-un cont bancar până când nu l-ai întâlnit pe vânzător și ați semnat un acord.
Nu furniza informații confidențiale în discuții pe WhatsApp/Telegram sau alte aplicații de mesagerie unde utilizatorii își ascund ușor identitatea, deoarece te poți expune la fraude sau înșelăciuni.
Nu furniza niciodată detaliile cardului tău bancar (număr, data expirării, CVV). Te expune direct la fraude bancare.
Primirea unui mesaj pe WhatsApp/Telegram cu un ID scanat nu înseamnă că ai identificat cumpărătorul. Acest lucru se face pe loc, când semnați un acord de cumpărare.
Când comanzi online, alege livrarea cu verificare. Pentru un cost relativ mic, te protejezi de eventuale neplăceri.
Excelenta prin experineta Va prezentam spre inchiriere o garsoniera deosebita / apartament cu 1 camera si bacon intr-un imobil nou parte a ansamblului ISG II in imediata vecinatate a Parcului Carol pe o staduta linistita cu acces rapid catre zona centrala Apartamentul este compus din 1 camera care a fost intelept impartita intre zona de odihna si zona de zi / birou 1 baie 1 bucatarie 1 balcon plus holul de intrare Suprafata utila a apartamentului este de 38 36 mp suprafata totala de 44 53 confort 1 Compartimentarea interioara este de tip decomandat Apartamentul este situat la etajul 8 din 9 bloc modern cu lift si vecini politicosi si linistiti Este foarte bine compartimentat luminos si spatios iar designul interior il face deosebit de practic apartamentul fiind mobilat si utilat cu bun gust si avand ca dotari electrocasnice de cea mai buna calitate apartinand brandurilor acreditate Anul de constructie al imobilului este 2016 finisajele fiind efe...
Excelenta prin experienta Apartament 2 camere pozitionat pe o strada ferita de zgomotul bulevardelor mai exact pe strada Nicolae Balcescu Compartimentarea interioara este de tip semidecomandat Apartamentul este la etajul 1 si are intrare separata direct din strada principala Imobilul in care este amplasat apartamentul este o vila P 1 M Suprafata utila este de 58 mp Apartamentul are o 2 camere spatioase una bucatarie deschisa baie casa scarii Utilitati curent apa gaz calorifere centrala termica Finisaje interioare - lux Apartamentul a fost construita in anul 1960 si renovat in anul 2024 Apartamentul se vinde mobilat si utilat complet Toate piesele de mobilier si electrocasnicele sunt noi Mentionez ca apartamentul este echipat pentru spatiu birouri
Excelenta prin experienta Noi nu vindem francize noi vindem proprietati si o facem pe 5 continente Noi nu vindem francize noi vindem proprietati si o facem pe 5 continente Va prezentam o casa moderna situata intr-o zona linistita din Darvari conceputa pentru confort eficienta si eleganta Proprietatea are o suprafata utila de 112 mp si este amplasata pe un teren de 303 mp oferind spatiu generos si dotari de inalta calitate Locuinta este structurata pe parter si etaj avand o compartimentare practica si spatii luminoase Incalzirea in pardoseala este prezenta pe toata suprafata casei iar temperatura poate fi controlata independent in fiecare camera asigurand un nivel ridicat de confort si eficienta energetica Feroneria de calitate superioara si tamplaria PVC cu geam tripan contribuie la o izolatie termica si fonica excelenta Finisajele moderne si materialele alese cu atentie pun in valoare designul contemporan al casei Curtea este complet ...
Excelenta prin experienta Va propunem spre vanzare un apartament generos de 4 camere spatios si luminos situat in zona Calea Mosilor cu acces rapid spre centrul orasului si deopotriva alte puncte de interes cotidian Zona este foarte bine conectata din perspectiva mijloacelor de transport cat si a fluiditatii traficului se bucura totodata de o infrastructura sociala foarte buna - scoli gradinite magazine farmacii lacase de cult restaurante si cafenele cladiri de birouri piata si toate cele necesare traiului modern Apartamentul este compus din 4 camere 2 bai 1 bucatarie 1 balcon 1 hol de intrare si trecere Are o structura semidecomandata cu o suprafata utila de 75 mpu si una totala de 78 mp Anul de constructie al imobilului este 1984 blocul este curat si linistit a fost anvelopat la exterior in anii precedenti Apartamentul este spatios si luminos fiind orientat spre sud toate camerele au vedere spre spate plan 2 fata de bulevard c...
Excelenta prin experienta Noi nu vindem francize noi vindem proprietati si o facem pe 5 continente Va propunem spre vanzare o casa cocheta cu 4 camere compusa din living 3 dormitoare 2 bai 2 bucatarii si 1223mp teren gradina livada cu toate utilitatile in localitatea Baicoi judetul Prahova situata intr-o zona superba ferita de praf si zgomotul urban avand numeroase facilitati in imediata apropiere si acces foarte rapid in DN 1 Casa este construita din cadre de beton si caramida in anul 1998 renovata in 2008 Suprafata totala construita este de 110mp suprafata utila 100mp Utilitati apa gaze curent electric canalizare CATV Vila se vinde asa cum arata in poze pentru pretul de 120000 EURO nu se adauga TVA Actele sunt pregatite pentru vanzare cu predarea cheilor la notariat Oferim consultanta gratuita si facilitarea obtinerii rapide a creditului ipotecar cu dobanda foarte buna si rate fixe pentru 5 ani fara costuri ascunse Benefici...
Va prezentam o oportunitate excelenta de achizitie a unui spatiu ideal pentru productie sau depozitare situat in Brasov cartierul Stupini pe strada Baciului Proprietatea este compusa din trei hale cu o suprafata utila totala de 750 mp si dispune de un teren generos de 6 737 mp avand o deschidere de 33 m la o strada asfaltata ceea ce asigura un acces facil pentru vehicule si transport de marfa Hala 1 are o suprafata de 300 mp fiind construita in 2005 Structura este realizata pe cadre din beton armat cu pereti din caramida iar inaltimea de 4 9 m permite diverse utilizari Incalzirea este asigurata prin soba pe lemne iar spatiul include si un birou de 40 mp Hala 2 are o suprafata de 300 mp fiind construita pe cadru din ferme metalice cu pereti din panouri sandwich Inaltimea este de 4 5 m iar hala este dotata cu doua toalete si un vestiar Incalzirea este realizata de asemenea prin soba pe lemne Aceasta hala este alipita de Hala 1 avand un perete comun pe lung...
Oportunitate de Investitie - Spatiu Industrial de Vanzare la DN 71 Comuna Aninoasa Dambovita Blitz va prezinta o oportunitate excelenta de achizitie a unui spatiu industrial amplasat intr-o locatie strategica pe DN 71 in Comuna Aninoasa judetul Dambovita Proprietatea este perfecta pentru dezvoltarea oricarei afaceri de productie depozitare sau logistica si ofera o serie de facilitati care o fac extrem de atractiva Suprafata totala teren 3064 mp amplasat pe un teren cu acces direct la DN 71 Doua hale industriale Hala principala de 490 mp cu structura metalica din profile rectangulare si panouri sandwich dotata cu 120 mp de birouri grupuri sanitare chicineta si un apartament de 120 mp In aceasta hala se regaseste si sistem de incalzire electrica 380V si supraveghere video pentru un mediu de lucru sigur si eficient Doua birouri ideale pentru gestionarea activitatilor administrative si un loc spatios Apartament de aproximativ 120 mp la etaj perfect pent...
Propun spre vanzare un spatiu industrial destinat productiei sau depozitarii situat intr-o zona industriala de top in Brasov cu acces rapid la centura orasului si la transportul public Spatiul de 170 5 mp este compartimentat eficient in open-space si grup sanitar avand o inaltime interioara de 3 7 m ideal pentru depozitare optima Constructia din beton asigura durabilitate si siguranta pe termen lung iar accesul se face printr-o usa sectionala 3 2 m x 2 6 m pentru livrari si o usa pietonala pentru personal Beneficiaza de lumina naturala datorita ferestrelor mari orientate spre parcare creand un mediu de lucru propice Utilitatile sunt adaptate cerintelor industriale cu curent electric de 380V putere instalata de 32 kW incalzire prin calorifere conectate la centrala cladirii apa si canalizare De asemenea dispune de doua locuri de parcare dedicate oferind aproximativ 50 mp de teren ceea ce contribuie la confortul zilnic La un pret de 215000 EUR TVA acest spa...
Proprietate piscicola si turistica unica in Transilvania Cartisoara judetul Sibiu La doar 45 km de Sibiu si 35 km de Balea Lac Proprietate cu un teren de 9 hectare este situata intr-una dintre cele mai spectaculoase si accesibile zone montane din Romania - la poalele Muntilor Fagaras cu acces direct din DN1 si DN 7C intre Brasov Sibiu si Transfagarasan Accesibilitate excelenta 45 km pana in Sibiu - oras cu Aeroport International si acces la viitoarea autostrada A1 100 km pana in Brasov si 30 km pana la Fagaras Locatie turistica activa intre Transilvania istorica si zona alpina Potrivita pentru turism de lux ecoturism activitate piscicola glamping sau investitie agricola integrata UNITATI DE CAZARE FUNCTIONALE 1 Hotel unitate principala la DN1 12 camere complet mobilate Restaurant 80 locuri terasa exterioara 60 locuri Foisoare loc de joaca gradina de legume livada Suprafata desfasurata 900 mp Regim S P E1 E2 M Teren aferent ...
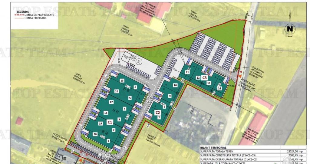
Daca esti in cautarea unei investitii sigure care sa iti ofere atat stabilitate financiara cat si potential de dezvoltare acest complex industrial din Brasov este alegerea ideala Locatie strategica ansamblul beneficiaza de acces facil pentru orice tip de autovehicul avand conexiune rapida cu ocolitoarea Brasovului si principalele artere nationale Cele doua cai de acces asfaltate asigura un flux eficient al activitatilor industriale si logistice Cat si acces la serviciile de transport in comun Structura ansamblului -6 unitati individuale destinate activitatilor industriale -Cladire de birouri P E M ideala pentru activitati administrative si operationale -Depozitare si spatii industriale 1 114 mp -Suprafata teren 3 300 mp -Curte libera 2 000 mp - perfecta pentru manevre si depozitare suplimentara Facilitati si utilitati complete -Acces la gaz apa canalizare electricitate -Curent trifazic esential pentru activitati industriale -Zona se...
BraÅŸov - 15 Iulie 2025
889.900 €
Atenție
Din motive de securitate și pentru protecția utilizatorilor, această funcționalitate nu este disponibilă pentru locația ta.