Ramiro Imob va propunem spre vanzare o garsoniera decomandata 23 mp situata la etajul 7 din 10 pe Bulevardul Brancoveanu Apartamentul dispune de loc de parcare obtinut de la primarie ce poate fi preluat de viitorul proprietar Pret 52 000 euro Agent Daniel - 0786660295 Comision standard Pentru detalii si vizionari va stam la dispozitie
⚠ AtenÈ›ie !
Nu plăti niciodată în avans într-un cont bancar până când nu l-ai întâlnit pe vânzător și ați semnat un acord.
Nu furniza informații confidențiale în discuții pe WhatsApp/Telegram sau alte aplicații de mesagerie unde utilizatorii își ascund ușor identitatea, deoarece te poți expune la fraude sau înșelăciuni.
Nu furniza niciodată detaliile cardului tău bancar (număr, data expirării, CVV). Te expune direct la fraude bancare.
Primirea unui mesaj pe WhatsApp/Telegram cu un ID scanat nu înseamnă că ai identificat cumpărătorul. Acest lucru se face pe loc, când semnați un acord de cumpărare.
Când comanzi online, alege livrarea cu verificare. Pentru un cost relativ mic, te protejezi de eventuale neplăceri.
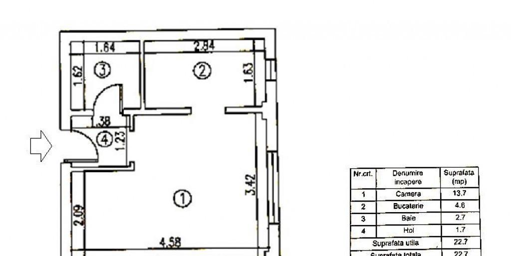
VA PROPUNEM SPRE VANZARE UN APARTAMENT CU 2 CAMERE SPATIOS 64MP ETAJ 5/6 CENTRALA PROPRIE UTILAT SI MOBILAT INTR-UN BLOC CONSOLIDAT SI ANVELOPAT IN 2014 SE VINDE UTILAT SI MOBILAT CONFORM POZELOR PROPRIETARUL ARE LOC DE PARCARE IN FATA BLOCULUI APARTAMENTUL SE AFLA PE B-DUL BRANCOVEANU CU VEDERE LA BULEVARD PRET - 94990 EUR NEGOCIABIL PENTRU DETALII CONTACTATI AGENTUL IMOBILIAR - DANIEL - 0786660295
ATENTIE COMISION O CUMPARATOR Va propunem spre vanzare o vila cu 5 camere regim de inaltime parter mansarda construita in 2005 suprafata amprenta sol 99 mp suprafata totala utila 191 mp constructie foarte solida stalpi rezistenta grinzi plansee din fier-beton pereti din caramida si BCA acoperis tabla suprafata totala teren 150mp situata in zona Brancoveanu la 10 minute de Statia de metrou Constantin Brancoveanu Imobilul are la parter un hol acces in care se afla centrala si boilerul doua dormitoare un living spatios cu bucatarie o baie iar la mansarda are doua dormitoare o baie mica si terasa Dispune de toate utilitatile necesare apa canalizare curent gaz centrala proprie Din bucatarie se face accesul spre o pivnita incapatoare cu pereti din beton si usi de acces metalice groase de 5 cm perfecta pentru depozitare de produse alimentare Exista un loc de parcare inchiriat de la primarie Proprietatea nu este locuita necesita igie...
VA PROPUNEM SPRE VANZARE UN APARTAMENT DE 2 CAMERE SUPRAFATA 48 MP ETAJ 1/3 UTILAT-MOBILAT FINISAJE PREMIUM CENTRALA PROPRIE BALCON INCHIS CU GEAMURI CULISANTE LOC PARCARE SITUAT INTR-UN IMOBIL FINALIZAT IN 2014 AFLAT PE STR AMURGULUI 7 MINUTE DE METROU APARTAMENTUL A FOST ZUGRAVIT VOPLEA LAVABILA IN NOIEMBRIE 2025 PRET - 108 995 EUR NEGOCIABIL TELEFON CONTACT - 0786660295 - DANIEL COMISION STANDARD
Va propunem spre vanzare o garsoniera decomandata cu suprafata utila de 42 mp aflata la etajul 4/10 intr-un bloc finalizat in anul 1980 reabilitat termic recent situata pe strada Buhusi in Sectorul 3 AVANTAJE - ZONA BUNA APROAPE DE MAGAZINE PIATA SCOLI - GARSONIERA CONFORT 1 SUPRAFATA MARE - ETAJ INTERMEDIAR - BLOC ANVELOPAT CONFORT TEHNIC - ACCES MIJLOACE S T B SI METROU 1 DECEMBRIE - MOBILATA-UTILATA RENOVATA PRET - 59450 EUR NEGOCIABIL TEL CONTACT - 0786 660 295 DANIEL Comision standard
VA PROPUNEM SPRE VANZARE UN APARTAMENT CU 3 CAMERE FOARTE SPATIOS SI LUMINOS ETAJ 3/3 CU ACOPERIS LINDAB SI POD RENOVAT 2020 MOBILAT PARTIAL BUCATARIE MOBILA COMANDA SI APARATURA ELECTROCASNICA DE CALITATE BALCON 8MP INCHIS CU GEAM TERMOPAN SITUAT INTR-UN IMOBIL CONSTRUIT IN ANUL 2013 EXISTA LOC DE PARCARE PROPRIETATE PERSONALA IN PRETUL APARTAMENTULUI BLOCUL ESTE CURAT EXISTA ALEE ACCES CURTE INTERIOARA ZONA LINISTITA IMOBILUL SE AFLA PE STR DRUMUL FERMEI IN APROPIERE DE MAGAZINUL PENNY DISTANTA PANA LA STATIA DE METROU LEONIDA ESTE DE 13 MINUTE DE MERS PE JOS IN ZONA SUNT MAGAZINE RESTAURANTE SCOLI SI GRADINITE PRET - 139990 EUR DISCUTABIL PENTRU DETALII SUPLIMENTARE - AGENT IMOBILIAR - DANIEL - 0786660295
Va prezint o garsoniera in zona Tineretului in imediata apropiere a parcului Tineretului si la 8 minute de mers pe jos pana la statia de metrou Tineretului Aflat la etaj intermediar 4/8 apartamentul a fost renovat integral fiind schimbate instalatiile sanitare si electrice parchetul usile Usa de intrare este metalica Suprafata utila totala este 35 18 mp care include si suprafata balconului de 3 mp In plus se asigura o boxa de 2 65 mp Blocul nu este izolat termic si nu este inclus in vreo clasa de risc sau de urgenta Locuinta se vinde mobilata si utilata Nu se asigura loc de parcare dar exista locuri libere in zona Se accepta credit Pentru informatii si vizionari nu ezitati sa ma contactati
Mutare imediata comision 0 direct dezvoltator Vizionare si servicii complete la 0720002332 Foto de prezentare din portofoliul dezvoltatorului Pretul nu include TVA-ul de 9 Garsoniera decomandata foarte spatioasa cu 30 mp terasa in bloc finalizat mutare rapida adiacent Soseaua Oltenitei/str Leordeni la 2 minute de statia STB Se accepta atat plata prin credit bancar cat si plata cash Finisaje la alegere in buget la dispozitie Pret parcare acoperita 7500euro - TVA inclus
Garsoniera 28 mp parter bloc consolidat Ideal pentru Airbnb sau studenti la Conservator Blocul are centrala proprie Apartamentul are aer conditionat spatiu de gatit si spatii de depozitare pe hol si in camera Tel 0790609849
București - 11 August 2025
75.000 €
Atenție
Din motive de securitate și pentru protecția utilizatorilor, această funcționalitate nu este disponibilă pentru locația ta.