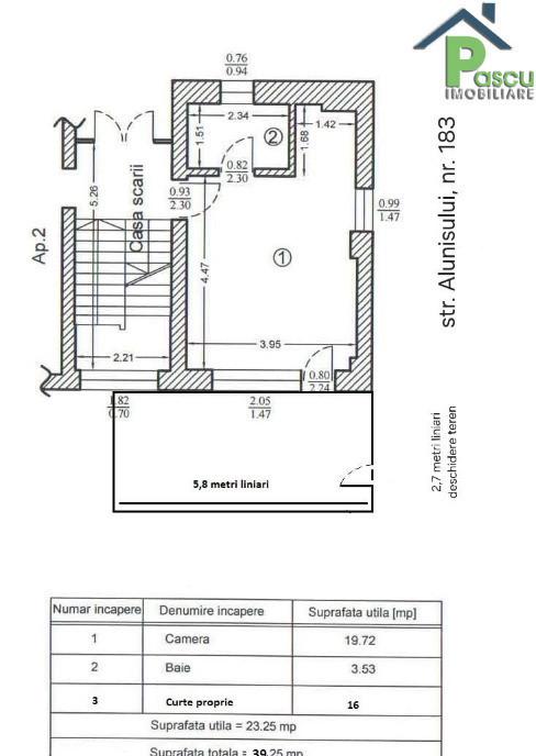
Exclusivitate PASCU Imobiliare Blocul este situat stradal pe strada Alunisului cu acces din bulevardul Constantin Brancoveanu sau soseaua Giurgiului este finalizat in anul 2015 are un regim de inaltime P 3 structura de rezistenta pe cadre si plansee din beton armat compartimentare cu caramida Porotherm izolatie termica cu polistiren expandat 10 cm EPS 80 Garsoniera se afla la parter are expunere stradala si curte proprie in suprafata de 16 metri patrati cu acces direct din strada facand-o ideala atat pentru locuit dar mai ales pentru desfasurarea unei activitati comerciale sau spatii birouri Garsoniera dispune de imbunatatiri premium centrala termica proprie incalzire prin pardoseala aparat de aer conditionat LG ArtCool Gallery sistem de alarma si supraveghere video Bucataria este mobilata la comanda dotata cu plita electrica si hota frigider si multiple spatii de depozitare Baia dispune de geam mare pentru aerisire cabina de dus cu paravan din sticla baterii Kludi vas de WC si rezervor incastrat Grohe Usa metalica la intrare anti efractie gresie portelanata import Italia usi interioare premium Garsoniera este proaspat igienizata si zugravita libera disponibila imediat
⚠ AtenÈ›ie !
Nu plăti niciodată în avans într-un cont bancar până când nu l-ai întâlnit pe vânzător și ați semnat un acord.
Nu furniza informații confidențiale în discuții pe WhatsApp/Telegram sau alte aplicații de mesagerie unde utilizatorii își ascund ușor identitatea, deoarece te poți expune la fraude sau înșelăciuni.
Nu furniza niciodată detaliile cardului tău bancar (număr, data expirării, CVV). Te expune direct la fraude bancare.
Primirea unui mesaj pe WhatsApp/Telegram cu un ID scanat nu înseamnă că ai identificat cumpărătorul. Acest lucru se face pe loc, când semnați un acord de cumpărare.
Când comanzi online, alege livrarea cu verificare. Pentru un cost relativ mic, te protejezi de eventuale neplăceri.
Exclusivitate PASCU Imobiliare Comision zero Blocul este situat pe strada Vigoniei adiacent din soseaua Giurgiului la doar 15 minute de statia de metrou Eroii Revolutiei folosind mijloacele de transport in comun In imediata apropiere se gasesc gradinite crese si scoli plus liceul Energetic centre comerciale iar in fata parcului este amenajat un parculet de joaca pentru copii Blocul are un regim de inaltime S P 7 structura de rezistenta pe cadre si plansee din beton armat inchideri perimetrale si compartimentari interioare din caramida si a fost finalizat in 1968 Apartamentul este confort I decomandat are o suprafata utila de 50 metri patrati ce include si balconul inchis cu acces din living beneficiaza de multiple spatii de depozitare si baie dotata cu geam si cada Se bucura de expunere pe Vest catre spatii verzi si vedere neobturata Apartamentul se vinde cu loc de parcare mobilat si utilat exact ca in poze bucatarie mobilata la co...
Exclusivitate PASCU Imobiliare Ideal pentru locuit sediu firma sau gazduire salariati Vila are o pozitie excelenta aflandu-se in Otopeni langa Aeroportul International Henri Coanda fiind singurul complex de case/vile Proprietatea are un regim de inaltime P 2 cu o suprafata utila totala de 190 metri patrati utili si teren in suprafata de 300 metri patrati Vila a fost construita in anul 2021 are o structura de rezistenta pe fundatii cadre si plansee din beton armat compartimentarea fiind din caramida izolatie termica exterioara cu polistiren 10 cm geamuri termopan Low-E tamplarie PVC 5 camere Sistem de incalzire asigurat de centrala termica proprie in condensare alimentata cu gaz natural calorifere din panouri de otel instalatii de apa si caldura integral din PPR Parterul cuprinde un living generos de 25 metri patrati utili cu iesire pe terasa si curtea posterioara cu multiple suprafete vitrate o bucatarie inchisa in suprafat...
Exclusivitate PASCU Imobiliare Apartamentul face parte din ansamblul New Point situat pe bulevardul Pipera nr 168 finalizat in anul 2019 ce cuprinde 6 blocuri cu regim de inaltime P 9 ansamblu premium cu o pozitie ideala ce se bucura de spatii verzi zone de recreere acces securizat paza umana 24/24 si supraveghere video Apartamentul este situat la etajul 6/9 este semi-decomandat cu o suprafata de 50 metri patrati utili balcon cu acces din living bucatarie open-space si se inchiriaza mobilat si utilat complet premium conform pozelor Impreuna cu apartamentul se inchiriaza si locul de parcare privat vizibil din apartament Imobilul este dotat cu usa metalica anti-efractie videointerfon centrala termica proprie in condensatie geamuri tripan cu tamplarie PVC parchet laminat 12 mm import Austria gresie si faianta import Itaia aparat de aer conditionat Inverter televizor smart Samsung QLED Bucataria este mobilata la comanda si utilata...
Exclusivitate PASCU Imobiliare Apartamentul face parte din ansamblul New Point situat pe bulevardul Pipera nr 168 finalizat in anul 2019 ce cuprinde 6 blocuri cu regim de inaltime P 9 ansamblu premium cu o pozitie ideala ce se bucura de spatii verzi zone de recreere acces securizat paza umana 24/24 si supraveghere video Apartamentul este situat la etajul 6/9 este semi-decomandat cu o suprafata de 50 metri patrati utili balcon cu acces din living bucatarie open-space si se inchiriaza mobilat si utilat complet premium conform pozelor Impreuna cu apartamentul se inchiriaza si locul de parcare privat vizibil din apartament Imobilul este dotat cu usa metalica anti-efractie videointerfon centrala termica proprie in condensatie geamuri tripan cu tamplarie PVC parchet laminat 12 mm import Austria gresie si faianta import Itaia aparat de aer conditionat Inverter televizor smart Samsung QLED Bucataria este mobilata la comanda si utilata...
Exclusivitate PASCU Imobiliare Spatiul este situat in apropierea statiei de metrou Timpuri Noi pe Splaiul Unirii stradal la etajul 1 intr-o cladire cu regim de inaltime P 2 finalizata in anul 2008 Spatiul comercial are o suprafata utila de 97 metri patrati compus din o camera de 40 metri patrati utili 2 camere a cate 23 metri patrati utili un grup sanitar cu cabina de dus cu posibilitatea crearii celui de-al doilea grup sanitar chicineta si hol intrare Imobilul dispune de 2 intrari iar toate utilitatile sunt contorizate separat apa energie electrica gaz natural incalzirea si apa calda fiind asigurata de o centrala termica proprie Viessmann pe gaz si calorifere din panouri de otel Deasemenea spatiul beneficiaza de 3 aparate de aer conditionat Inverter sistem de alarma instalatii electrice prin fire de cupru protejate de canal Copex si aparataje electrice modulare Termosistemul este compus din polistiren de 15 cm EPS 80 si geamuri termo...
Blitz ofera spre vanzare acest spatiu comercial in Radauti cu o suprafata de 50 mp ce ofera oportunitati remarcabile pentru diverse tipuri de afaceri Acest spatiu comercial beneficiaza de o locatie foarte bine contata fiind situat intr-o zona cu trafic intens ceea ce il face extrem de vizibil si usor accesibil pentru clienti Accesul facil si proximitatea fata de zone rezidentiale sunt avantaje importante Cu o suprafata de 50 mp acest spatiu ofera suficient spatiu pentru o varietate de afaceri inclusiv magazine de retail cafenele birouri sau servicii profesionale Este suficient de spatios pentru a permite o amenajare flexibila inclusiv pentru vitrine atractive si zone de expozitie O amenajare moderna si confortabila poate face diferenta Spatiul este finisat si proiectat astfel incat sa ofere o atmosfera placuta si primitoare pentru clienti Accentele de design si iluminarea sunt optimizate pentru a crea o experienta placuta pentru vizitatori Spatiul sa fie dotat ...
Va prezentam un spatiu comercial generos cu o suprafata totala de 495 mp din care 95 mp reprezinta suprafata terasei Aceasta proprietate open space ofera flexibilitate in compartimentare permitandu-va sa alegeti suprafata pe care doriti sa o inchiriati si sa o adaptati nevoilor si activitatii dumneavoastra Cu o fatada stradala impresionanta de 35 ml spatiul beneficiaza de o expunere excelenta si vizibilitate ridicata Situat pe Valea Cascadelor intr-o zona de mare interes comercial se afla in proximitatea magazinelor Lidl si Kaufland garantand un trafic constant si o expunere sporita a afacerii dumneavoastra De asemene locatia beneficiaza de acces usor la mijloacele de transport in comun fiind amplasata in apropierea statiei de metrou Pacii si a Autogarii Militari Acest aspect faciliteaza atat sosirea si plecarea clientilor cat si a angajatilor In ceea ce priveste costurile de inchiriere sau achizitionare va oferim urmatoarele optiuni PRET INCHIRIERE 25...
Va propunem spre vanzare o cladire P 2 suprafata utila 250mp amprenta la sol 74mp terasa mansardabila finisaje de calitate 4 gr sanitare gresie faianta parchet termopan la parter se preteaza service vulcanizare Cladirea poate avea regim mixt oficce si service auto cu acces facil Cadastru si intabulare Pentru ai multe detalii va stam la dispozitie la nr de telefon afisat
Spatiu comercial 175 mp vizibilitate excelenta Dorobanti-Floreasca Str Putul lui Zamfir Disponibil spre vanzare un spatiu comercial premium situat in zona Dorobanti-Floreasca pe strada Putul lui Zamfir una dintre cele mai dinamice si exclusiviste artere comerciale din Bucuresti Proprietatea beneficiaza de 2 intrari vitrina ampla de 17 metri liniari oferind vizibilitate maxima si expunere ideala pentru orice brand Cu o suprafata de aproximativ 175 mp spatiul este inchiriat existand posibilitatea preluarii chiriasilor ceea ce il transforma intr-o investitie sigura cu venit stabil inca din prima zi Proprietatea ofera un randament investitional de aproximativ 7 5 un indicator foarte competitiv pentru aceasta zona premium Datorita amplasarii sale strategice spatiul este potrivit pentru o gama larga de activitati comerciale showroom-uri reprezentante sau concepte retail care necesita expunere si vizibilitate intr-o locatie centrala de top Id intern P...
Excelenta prin experienta Va propunem la vanzare o proprietate deosebita in Bragadiru o vila conceputa special ca spatiu comercial cu un magazin/pizzerie la parter si o sala mare open-space la etaj pretabila pentru organizare evenimente zile festive conferinte botez etc Proprietatea are un teren de 562mp cu amprenta casei si beneficiaza de 2 terase mari de 70mp in total au fost lasate mustatile pentru a le putea inchide sau a ridica alte incaperi Compartimentare La parter avem un magazin bai bucatarie inchisa cu 2 cuptoare pizza scara de acces La etaj avem o sala mare open-space grup sanitar si 2 terase Suprafata utila 150mp suprafata totala 250mp 5 locuri de parcare cadastrate separat in fata proprietatii si posibilitate de a mai parca alte masini in curte Pe teren exista si o cutie Easy Box - venit 600 lei/luna se poate preda contractul Vila se vinde pentru pretul de 215 000 EURO nu se adauga TVA Oferim consultanta gratuita pentru obtin...
București - 24 August 2025
215.000 €
Atenție
Din motive de securitate și pentru protecția utilizatorilor, această funcționalitate nu este disponibilă pentru locația ta.