Va propunem spre vanzare un apartament cu 3 camere situat pe Calea Vitan chiar langa Auchan Vitan Locuinta are o suprafata totala de 72 mp este semidecomandata si se afla intr-un bloc construit in 1985 recent anvelopat termic Apartamentul este compartimentat eficient fiind ideal pentru o familie dispune de 3 camere luminoase 2 bai si un balcon generos cu vedere directa catre Delta Vacaresti Bucataria este complet mobilata si utilata iar locuinta beneficiaza de geamuri termopan si aer conditionat Zona este excelent deservita de mijloace de transport in comun metrou si STB scoli gradinite si numeroase centre comerciale inclusiv Mall Vitan Vederea catre Rezervatia Delta Vacaresti ofera un plus de liniste si un cadru natural aparte Datorita pozitiei foarte bune si avantajelor zonei apartamentul este potrivit atat pentru locuinta proprie cat si ca investitie Pentru detalii si vizonari 0723 457 657 Cosmin
⚠ AtenÈ›ie !
Nu plăti niciodată în avans într-un cont bancar până când nu l-ai întâlnit pe vânzător și ați semnat un acord.
Nu furniza informații confidențiale în discuții pe WhatsApp/Telegram sau alte aplicații de mesagerie unde utilizatorii își ascund ușor identitatea, deoarece te poți expune la fraude sau înșelăciuni.
Nu furniza niciodată detaliile cardului tău bancar (număr, data expirării, CVV). Te expune direct la fraude bancare.
Primirea unui mesaj pe WhatsApp/Telegram cu un ID scanat nu înseamnă că ai identificat cumpărătorul. Acest lucru se face pe loc, când semnați un acord de cumpărare.
Când comanzi online, alege livrarea cu verificare. Pentru un cost relativ mic, te protejezi de eventuale neplăceri.
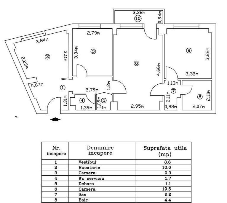
Va propunem spre vanzare un apartament spatios cu 3 camere situat ultracentral la doar 5 minute de mers pe jos de statia de metrou Universitate Locuinta are o suprafata de 66 mp si este situata la etajul 1 al unui imobil cu regim P 2 mansarda construit in anul 1910 Apartamentul dispune de centrala proprie balcon si baie cu geam - un avantaj rar intalnit in zona centrala Spatiile sunt luminoase bine compartimentate si permit diverse optiuni de amenajare in functie de stilul si nevoile viitorului proprietar Imobilul urmeaza sa fie consolidat aspect care ii va creste semnificativ nivelul de siguranta si valoarea in timp Datorita pozitiei excelente si accesului direct catre transport public restaurante cafenele teatre si cele mai importante puncte de interes ale capitalei apartamentul reprezinta o optiune ideala atat pentru locuire cat si pentru investitie Pentru detalii si vizionari 0723 457 657 - Cosmin
Se ofera spre vanzare un apartament cu 3 camere avand o suprafata utila de 69 mp situat pe Bulevardul Liviu Rebreanu la doar cateva minute de mers pe jos de statia de metrou Titan si de parcul IOR Locuinta este pozitionata la etajul 9 al unui bloc de 10 niveluri bine intretinut beneficiind de o priveliste ampla si de lumina naturala pe tot parcursul zilei Apartamentul a fost renovat recent si se afla intr-o stare impecabila fiind pregatit pentru mutare imediata Camerele sunt luminoase si aerisite iar baia dispune de geam un avantaj important pentru ventilatia naturala Imobilul este amplasat intr-o zona foarte buna si linistita cu acces rapid la metrou mijloace de transport in comun magazine scoli si la parcul IOR - perfect pentru momente de relaxare in aer liber Datorita pozitiei excelente si a starii deosebite in care se afla apartamentul reprezinta o optiune ideala atat pentru locuit cat si pentru investitie Pentru detalii si vizionari 0723 457 657 - Cosmi...
Va propunem spre vanzare un apartament spatios cu 2 camere decomandat cu o suprafata generoasa de 78 m2 la care se adauga o camera suplimentara de 15 m2 aflata la demisol perfecta pentru depozitare ajungand la un total de 93 m2 utili Locuinta se preda mobilata si utilata fiind echipata cu o centrala proprie noua Situat intr-un bloc intim cu doar doua etaje apartamentul se afla pe Soseaua Giurgiului langa Cimitirul Evreiesc Camerele mari de 16 si 17 m2 sunt luminoase si ofera un plus de confort si intimitate Inaltimea de 3 metri confera intregului spatiu o atmosfera aerisita iar holul generos include zone bine gandite pentru depozitare Bucataria are acces direct la o terasa de 8 m2 - un loc linistit ideal pentru un mic dejun in aer liber sau pentru momente de relaxare Datorita compartimentarii eficiente apartamentul poate fi transformat cu usurinta intr-o locuinta cu 3 camere Un avantaj major este amplasarea chiar in fata imobilului va fi construita noua statie...
Garsoniera conf 1 etaj 10 bloc anvelopat cu terasa hidroizolata doua lifturi vis-a-vis de metrou si in apropiere de Parcul IOR si centrul comercial ParkLake Pretabila pentru regim hotelier sau investitie Pentru detalii si vizionari 0723 457 657 - Cosmin
Va propunem spre vanzare un apartament de 2 camere decomandat cu o suprafata totala de 54 mp Este situat pe Drumul Jilavei la etajul 3 din 5 intr-un bloc construit in anul 2016 dotat cu lift Locuinta dispune de aer conditionat si beneficiaza de un loc de parcare cadastrat Exista posibilitatea de a fi vandut atat partial mobilat cat si complet mobilat si utilat Pretul pentru varianta partial mobilata este de 99 990 Euro Pentru varianta complet mobilata si utilata pretul este de 105 990 Euro pachet ce include masina de spalat uscator cu pompa de caldura aproape nou combina frigorifica trei televizoare masina de spalat vase plita si cuptor Zona ofera multiple avantaje apartamentul se afla foarte aproape de statia de metrou Aparatorii Patriei si are acces rapid la magazine precum Lidl Kaufland si Mega Image precum si la mall-ul Grand Arena De asemenea este in proximitatea mijloacelor de transport STB si a altor facilitati urbane Pentru detalii si vizionari...
Ramiro Imob va propune spre vanzare un apartament cu 3 camere decomandat cu o suprafata de 67 mp situat pe Soseaua Giurgiului in apropiere de strada Luica Imobilul se afla la etajul 3 din 8 intr-un bloc reabilitat termic si beneficiaza de loc de parcare de la primarie Pentru detalii si vizionari contactati agentul Antonia 0758880813 Pret 95 000 euro Comision standard
Un apartament nu e doar un spatiu ci locul unde incepe acasa Acest apartament transformat cu grija din 4 camere in 3 ofera un living generos luminozitate pe ambele parti ale blocului si un sentiment de liniste si confort pe care il simti de la prima vizita Str Traian Galati - aproape de scoli magazine piata transport in comun 99 9 m2 Etaj 5/8 Bloc cu lift Dotari moderne Centrala proprie Aer conditionat Geamuri termopan Parchet gresie faianta Un loc perfect pentru o familie care cauta spatiu lumina si caldura unui adevarat camin Silvia - 0741 182 377 Disponibil pentru vizionare
REA1024080 SVN Romania va propune spre vanzare un apartament de 3 camere in zona Lacul Tei cu deschidere directa catre Parcul Circului Apartamentul este situat la etajul 4/6 intr-un bloc construit in 1965 semidecomandat cu o suprafata utila de 58 mp si 2 balcoane cu o suprafata totala de 11 mp Este pozitionat perfect intr-o zona linistita cu deschidere directa catre Parcul Circului Apartamentul necesita renovare completa Blocul este anvelopat in urma cu cativa ani se prezinta foarte bine Statia de metrou Stefan cel Mare se afla la o distanta pietonala de doar 10 minute Pentru mai multe informatii sau pentru programarea vizionarilor contactul meu va sta la dispozitie
Comision 0 - Direct Dezvoltator Preturi Promotionale - Imobil Nou DESCRIERE Modern si avangardist Ansamblul Rezidential reprezinta o oportunitate premium in zona de Sud a Bucurestiului Situat in apropierea de Metrou Titan si Metrou 1 Decembrie 1918 pe raza sectorului 3 la doar 7 minute de parcurs cu masina In proximitate mijloace de transport centre comerciale scoli gradinite centre medicale precum si spatii de recreere Acest imobil este imbinarea ideala dintre calitatea si durabilitatea constructiei Design arhitectural modern finisajele si dotari premium Materiale de inalta calitate compartimentare practica cu spatii indoor si outdoor generoase si usor de amenajat toate acestea pentru a va asigura un confort maximilizat ARHITECTURA Arhitectura deosebita pune la dispozitie un modul inconjurat de spatii verzi alegerea ideala pentru cei in cautare de apartamente moderne si accesibile cu gradini si terase spatioase variind de la 1 la 4 camere Ansambl...
REF01B3129 Va prezentam spre vanzare un apartament decomandat cu 3 camere situat la etajul 2 din 10 intr-un bloc construit in anul 1986 Locuinta are o suprafata utila de 60 mp si se vinde complet mobilata si utilata inclusiv cu centrala termica proprie Apartamentul dispune de loc de parcare si boxa pentru depozitare Este bine intretinut si pregatit pentru mutare imediata fiind ideal atat pentru locuit cat si pentru investitie Toate actele sunt in regula intabulare si cadastru actualizate Zona este una excelenta cu acces rapid la mijloace de transport in comun tramvaie autobuze si statii STB la doar cateva minute de mers pe jos In imediata apropiere se afla Parcul Sebastian perfect pentru recreere si activitati in aer liber precum si centre comerciale Vulcan Value Centre Carrefour Lidl scoli gradinite clinici medicale farmacii banci si restaurante Cartierul este civilizat bine conectat si ofera toate facilitatile necesare pentru un stil de viata urban conf...
București - 12 August 2025
110.000 €
Atenție
Din motive de securitate și pentru protecția utilizatorilor, această funcționalitate nu este disponibilă pentru locația ta.