Direct proprietar inchiriez o garsoniera spatioasa complet mobilata situata intr-o zona linistita aflata in apropierea a 2 parcuri Carol si Tineretului cu acces la mijloace de transport magazine si zona de birouri Garsoniera se afla la etajul 2 al unui bloc modern si are o suprafata totala de 44 mp din care 38 mp suprafata utila si 6 mp balconul
⚠ AtenÈ›ie !
Nu plăti niciodată în avans într-un cont bancar până când nu l-ai întâlnit pe vânzător și ați semnat un acord.
Nu furniza informații confidențiale în discuții pe WhatsApp/Telegram sau alte aplicații de mesagerie unde utilizatorii își ascund ușor identitatea, deoarece te poți expune la fraude sau înșelăciuni.
Nu furniza niciodată detaliile cardului tău bancar (număr, data expirării, CVV). Te expune direct la fraude bancare.
Primirea unui mesaj pe WhatsApp/Telegram cu un ID scanat nu înseamnă că ai identificat cumpărătorul. Acest lucru se face pe loc, când semnați un acord de cumpărare.
Când comanzi online, alege livrarea cu verificare. Pentru un cost relativ mic, te protejezi de eventuale neplăceri.
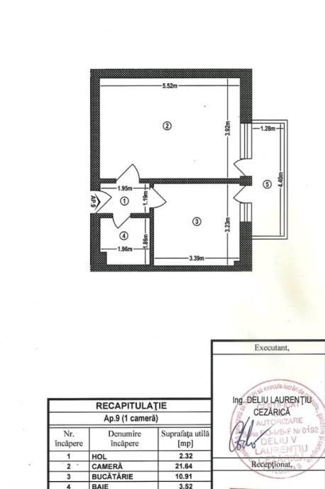
Berceni Str Straja bloc nou Garsoniera decomandata complet mobilata si utilata 35 mp bucatarie inchisa et 4/5 balcon A/C Centrala proprie Sunt 3 buc - 1 la part 360EUR 1 la et 2 380EUR si 1 la et 4 380EUR
De inchiriat apartament 1 camera - River s Towers langa Iulius Mall Se ofera spre inchiriere un apartament cu 1 camera decomandat situat in complexul rezidential River s Towers intr-o zona premium chiar langa Iulius Mall Complet mobilat si utilat modern Centrala termica proprie Aer conditionat Spatii generoase de depozitare Ideal pentru o persoana sau un cuplu Acces facil la mijloace de transport magazine restaurante parc si toate facilitatile urbane importante Chirie lunara 420 EUR
Uneori tot ce ai nevoie este un loc simplu dar facut cu grija Un spatiu care te lasa sa respiri dupa o zi lunga unde fiecare detaliu iti face viata mai usoara Aceasta garsoniera de pe Drumul Sarii e exact despre asta -- confort real fara artificii Luminoasa si echilibrata garsoniera ofera tot ce conteaza un spatiu practic curat mobilat modern si complet utilat gata sa fie locuit Dimineata te intampina cu lumina naturala iar seara poti savura linistea unei zone cu vecini civilizati si acces rapid catre tot ce ai nevoie -- metrou supermarketuri parcuri cafenele Daca iti doresti un loc care sa iti ofere stabilitate confort si accesibilitate aceasta locuinta e alegerea potrivita Nu promite lux ci un sentiment de echilibru si apartenenta - exact ceea ce cauti cand vrei un acasa adevarat
etaj 6/7 confort 1 an 2019 bloc nou civilizat centrala propie aer conditionat complet amenajat modern 3 minute STB acces rapid Lidl Penny locatie excelenta
La o distanta de 5 minute fata de metrou etajul 8/11 va oferim spre inchiriere garsoniera SD libera mobilata utilata Garsoniera are gresie faianta parchet termopan AC Cerem sioferim seriozitate
București - 28 Iulie 2025
350 €
Atenție
Din motive de securitate și pentru protecția utilizatorilor, această funcționalitate nu este disponibilă pentru locația ta.