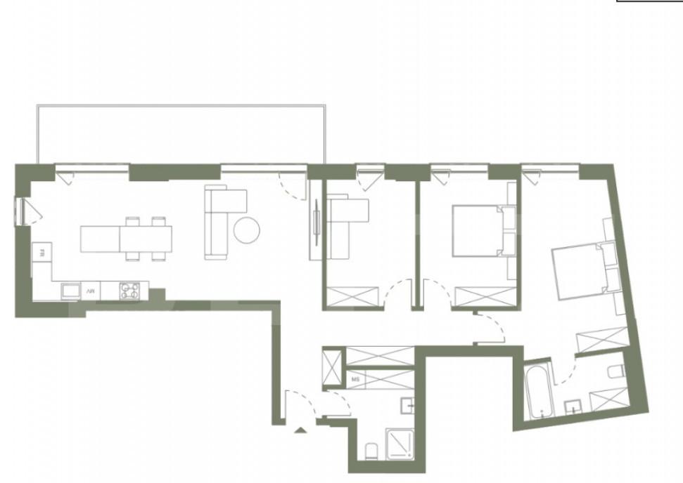
Blitz va prezinta Ansamblul ERA by Hexagon - un concept modern de regenerare urbana situat pe malul raului Nadas in inima Clujului Proiectul combina locuinte de 2 3 4 camere alaturi de studio-uri duplexuri cu gradina si penthouse-uri cu facilitati integrate spatii verzi piste pentru bicicleta pod pietonal gradinita supermarket si zone comunitare Materialele si dotarile sunt de cel mai inalt nivel iar ansamblul respecta standardele nZEB prin solutii sustenabile energie geotermala pompe de caldura panouri solare In plus Hexagon are o reputatie solida in piata--acest proiect este ideal pentru clientii care cauta confort calitate si un stil de viata urban responsiv Apartamentele se predau FINISATE si cu baile utilate Confortul termic pe sezon de vara este gandit in felul urmator -Jaluzelele se inchid manual sau automat in conditii de insorire Recuperatoarele de caldura asigura aportul de aer proaspat la interior pentru un climat sanatos si economie de energie -Pompele de caldura produc agentul termic pentru sistemul de racire pasiva de la nivelul tavanelor din spatiile de locuit -Panourile fotovoltaice furnizeaza energia electrica pentru functionarea pompelor de caldura Sistemul de automatizare al cladirii optimizeaza consumul de energie Confortul termic pe sezon de iarna este gandit in felul urmator -recuperatoarele de caldura asigura aportul de aer proaspat la interior pentru un climat sanatos si economie de energie -Iarna pompele de caldura produc agentul termic necesar sistemului de incalzire din tavanele apartamentelor -iarna in perioada foarte rece cazanele pe gaz completeaza puterea necesara producerii agentului termic Sistemul de automatizare al cladirii optimizeaza consumul de energie Apartamentul prezentat are o suprafata utila de 99 4 mp plus un balcon de 12 mp Pretul afisat este valabil pentru plata unui avans de 30 fara TVA Pentru plata unui avans de 60 pretul este de 254 310 euro fara TVA Pentru plata unui avans de 90 pretul este de 246 525 euro fara TVA Pretul parcarilor subterane este de 14 500 plus TVA Cod oferta / ID BLITZ P150629 Id intern P150629
⚠ AtenÈ›ie !
Nu plăti niciodată în avans într-un cont bancar până când nu l-ai întâlnit pe vânzător și ați semnat un acord.
Nu furniza informații confidențiale în discuții pe WhatsApp/Telegram sau alte aplicații de mesagerie unde utilizatorii își ascund ușor identitatea, deoarece te poți expune la fraude sau înșelăciuni.
Nu furniza niciodată detaliile cardului tău bancar (număr, data expirării, CVV). Te expune direct la fraude bancare.
Primirea unui mesaj pe WhatsApp/Telegram cu un ID scanat nu înseamnă că ai identificat cumpărătorul. Acest lucru se face pe loc, când semnați un acord de cumpărare.
Când comanzi online, alege livrarea cu verificare. Pentru un cost relativ mic, te protejezi de eventuale neplăceri.
Blitz va propune spre vanzare o garsoniera luminoasa si bine impartita situata la parterul unui bloc construit in 2008 Are 20 mp utili si este compusa din camera spatioasa bucatarie separata baie si hol - tot ce ai nevoie pentru confortul de zi cu zi Este amplasata foarte aproape de Spitalul Judetean si Universitatea de Medicina si Farmacie ceea ce o face perfecta atat pentru locuit cat si pentru investitie inchiriere catre studenti sau cadre medicale Zona este linistita cu acces rapid la magazine statii de autobuz si alte puncte de interes Avantaje o Locatie excelenta - langa Spitalul Judetean si UMF o Bloc nou 2008 curat si bine intretinut o Compartimentare practica o Ideala pentru o persoana sau un cuplu tanar Cod oferta / ID BLITZ P155983 Id intern P155983
Blitz va propune un loc in care fiecare membru al familiei tale isi gaseste coltul de liniste dar si spatiul in care se bucura de momente impreuna Un apartament cu suficient loc pentru vise mari pentru joaca relaxare munca de acasa sau cine lungi in familie Acest apartament total decomandat cu o suprafata generoasa este mai mult decat o simpla locuinta - este fundalul ideal pentru un stil de viata echilibrat adaptabil in care spatiul lucreaza in favoarea ta Bucataria este deja amenajata - locul perfect pentru retete de familie povesti dimineata la cafea si seri petrecute gatind impreuna Livingul spatios cu balcon inchis poate deveni zona ta de relaxare sau biroul tau luminos Cele 3 dormitoare dintre care unul cu balcon deschis ofera intimitate si confort fiecarui membru al familiei Doua bai bine pozitionate ideale pentru viata de zi cu zi a unei familii active Holurile largi cu spatii de depozitare generoase aduc ordine si fun...
Blitz va prezinta un apartament complet decomandat cu 3 camere situat in zona Garii pe Aleea Harniciei intr-o locatie accesibila si bine conectata la facilitatile urbane Caracteristici principale Suprafata utila 69 mp Parter din 6 etaje - acces facil ideal pentru toate varstele Orientare sud-est - apartament foarte luminos Complet utilat partial mobilat - gata de mutat Compartimentare practica o Living generos o 2 dormitoare o Bucatarie separata o 2 bai o Balcon inchis o 2 holuri spatioase Dotari importante Centrala termica proprie - eficienta si confort termic 2 pivnite - una dintre ele cu acces din exterior ideala pentru depozitare suplimentara sau spatiu de hobby Localizare avantajoasa Zona Garii - acces rapid la transport magazine scoli si alte puncte de interes Strada linistita cu vecinatate buna Un apartament ideal pentru familii persoane care cauta spatiu bine impartit si lumina naturala intr-o zona linistita dar foarte bine conect...
Blitz va ofera spre vanzare un apartament spatios cu 2 camere decomandat situat in zona centrala a orasului Gaesti la etajul 2 al unui bloc solid bine intretinut Apartamentul ofera un spatiu generos si o compartimentare practica living luminos dormitor confortabil bucatarie spatioasa baie hol generos si doua balcoane Proprietatea se vinde nerenovata oferind astfel posibilitatea viitorului proprietar de a o amenaja dupa propriul gust si stil Un avantaj important il reprezinta cele doua garaje incluse in pret ideale atat pentru parcare cat si pentru depozitare suplimentara Blocul este amplasat intr-o zona centrala linistita cu acces facil la magazine scoli parc si mijloace de transport Cod oferta / ID BLITZ P155841 Id intern P155841
Blitz propune spre inchiriere un apartament cu 4 camere situat in zona centrala ideal pentru cei care cauta spatiu confort si acces rapid la toate punctele de interes Proprietatea impresioneaza prin suprafata generoasa compartimentarea functionala si luminozitatea naturala abundenta Dispune de doua balcoane mari perfecte pentru relaxare sau spatiu suplimentar de depozitare Situat la etajul 4/4 apartamentul beneficiaza de centrala proprie este mobilat si partial utilat fiind gata de mutare O alegere potrivita pentru cei care apreciaza un stil de viata confortabil intr-o zona premium a orasului Cod oferta / ID BLITZ P159918 Id intern P159918
Oferim spre vanzare un apartament cu 4 camere in zona Independentei Nord Este pozitionat la etajul 3 al unui bloc cu regimul de inaltime P 4 finalizat inainte de 2000 Compartimentarea este decomandata suprafata utila este de 80 mp si se prezinta astfel bucatarie living 3 dormitoare hol 2 bai si balcon de 3 mp Apartament ideal pentru o familie datorita suprafetei si compartimentarii Este situat in zona foarte buna aproape de statii de mijloc de transport in comun si magazine In imediata apropiere se afla licee scoli generale si gradinite Apartamentul se vinde complet mobilat si utilat baile sunt in curs de renovare Va asteptam la vizionare ID Extern P121343 Id intern P121343
PYF006B10487 Imagineaza-ti locuinta perfecta care sa reflecte personalitatea ta si sa satisfaca toate nevoile tale Echipa noastra dedicata te va ajuta in cautarea locuintei ideale Portofoliul nostru include exact ceea ce iti doresti tu si familia ta Alege PYF REAL ESTATE pentru a transforma visul tau in realitate PYF REAL ESTATE va propune prin agentul de zona Gabi T spre vanzare un apartament situat in zona Militari Residence mai exact pe strada Tineretului in imediata apropiere a metroului autobuzului zonelor comerciale restaurantelor situat la 15 minute de statia de metrou Preciziei intr-un imobil construit in anul 2018 finalizat avand structura de monolit si compartimentari de caramida Imobilul are izolatie exterioara si interioara apartamentul compus din patru camere avand trei dormitoare doua bai si o bucatarie este situat la etajul 4 M si are destinatie rezidentiala Avand o suprafata 100mp etajul 4 avand suprafata de 56mp iar mansarda 40mp d...
Agentia Imobiliara Fides Estate Centrum SRL - Centrum-Imobiliare ro va ofera pentru vanzare un apartament situat pe Bulevardul Lascar Catargiu 24-26 fost Ana Ipatesc la doi pasi de Romana sau de Victoriei bloc stradal intrare si vedere laterala fara zgomot Apartamentul are o suprafata totala de 126 18 mp din care suprafata utila de 116 10 mp balcon 10 08 mp Beneficiaza de boxa de 4 53 mp cu acte si intabulata in Cartea Funciara Marele avantaj al acestui apartament este ca puteti achizitiona si un garaj situat la parterul blocului Garajul este cu acte si intabulat in Cartea Funciara Suprafata garajului este de 15 95 mp cu o deschidere de 2 97 mp si lungime de 5 38 mp Inaltimea garajului este de 5 metri Accesul in garaj se face atat prin scara de serviciu cat si prin exteriorul cladirii Compatimentare O camera ce se poate folosi pentru camera de zi 22 28 mp 3 camere individuale de 10 37 33 04 si 22 28 mp cu folosinta in functie de necesitatile fiecaruia Benef...
Va prezentam un duplex format din etajul 1 si mansarda in Cartier 23 August pe strada Rodnei la numai 10 minute metrou Republica si parc intr-o vila construita in 2011 Sunt 10 minute de Dedeman si Carrefour Duplexul este format din living mare de 34 mp 4 dormitoare 3 bai bucatarie mare 2 terase si anexe este complet mobilat si utilat are gresie faianta parchet termopane usa metalica teren in suprafata de 36 mp Suprafata generoasa 180 mp - ideala pentru o familie 3 grupuri sanitare cu geam la baia mare - ventilatie naturala Bucatarie spatioasa perfecta pentru gatit si socializare Centrala termica proprie - costuri reduse si confort sporit Duplexul dispune si de o baterie solara curent trifazic si 7 aparate de aer conditionat functionale Bloc ingrijit si linistit ideal pentru un camin confortabil Va asteptam la vizionare
Blitz propune spre vanzare un penthouse modern si spatios situat intr-o zona de dezvoltare noua si linistita din Bistrita Aceasta proprietate redefineste confortul urban oferind o suprafata utila generoasa si un spatiu exterior privat Ideal pentru o familie sau pentru cei care pretuiesc spatiul si calitatea vietii Suprafata Utila 136 8 mp Compartimentare 4 Camere 3 Dormitoare Bai 2 pentru un plus de confort Extra 2 Spatii de depozitare Zona de Zi Living Bucatarie open-space 36 9 mp Compartimentare Functionala Designul interior a fost gandit pentru a maximiza utilitatea si lumina naturala Living Bucatarie 36 9 mp Un spatiu deschis 3-Dormitoare 2-Grupuri Sanitare Atuul Major Terasa Extravaganta suprafata exacta a terasei este de 335 8 mp Spatiu Exterior Privat Terasa se intinde pe o mare parte din perimetrul apartamentului oferind un potential imens de amenajare Avantaje Acces rapid la punctele de interes ale orasului dar ferit de...
Bistriţa-Năsăud - 20 Noiembrie 2025
260.000 €
Atenție
Din motive de securitate și pentru protecția utilizatorilor, această funcționalitate nu este disponibilă pentru locația ta.